vinhtuong đăng vào lúc 19/02/2026 - 11:17
Bản vẽ nhà cấp 4 là yếu tố quan trọng giúp định hình công năng, thẩm mỹ và chi phí xây dựng phù hợp với nhu cầu thực tế. Với thiết kế linh hoạt và tối ưu diện tích sử dụng, nhà cấp 4 ngày càng được nhiều gia đình lựa chọn. Hãy cùng Vĩnh Tường khám phá những bản vẽ mẫu nhà cấp 4 đẹp, ấn tượng và dễ ứng dụng trong bài viết dưới đây.
Bản vẽ nhà mái lệch cấp 4 mang đến vẻ ngoài hiện đại, trẻ trung và độc đáo. Thiết kế mái lệch không chỉ giúp thoát nước tốt mà còn tạo điểm nhấn ấn tượng cho tổng thể kiến trúc. Đây là lựa chọn phù hợp với các gia đình trẻ yêu thích phong cách khác biệt và cá tính.

Bản vẽ mẫu nhà cấp 4 mái lệch đầy đủ tiện nghi (Nguồn: Internet)

Mẫu nhà cấp 4 mái lệch đẹp, ấn tượng (Nguồn: Internet)
>> Tìm hiểu thêm:
Bản vẽ nhà cấp 4 mái bằng thường được áp dụng cho những mẫu nhà mang phong cách tối giản hoặc hiện đại. Kiểu mái này giúp tiết kiệm chi phí thi công, dễ dàng lắp đặt hệ thống điện năng lượng mặt trời hoặc bố trí sân thượng. Mái bằng cũng giúp công trình vững chắc và phù hợp với khu vực đô thị.

Bản vẽ nhà cấp 4 mái bằng 3 phòng ngủ (Nguồn: Internet)

Mẫu nhà cấp 4 mái bằng hiện đại, sang trọng (Nguồn: Internet)
>>> Xem thêm:
Bản vẽ nhà cấp 4 mái Nhật thể hiện sự tinh tế và nhẹ nhàng trong thiết kế. Kiểu nhà mái Nhật có độ dốc nhẹ, đua ra nhiều hướng, tạo sự thanh thoát cho ngôi nhà. Mẫu thiết kế này phù hợp với những gia đình yêu thích sự hài hòa giữa truyền thống và hiện đại.

Bản vẽ nhà cấp 4 mái Nhật 4 phòng ngủ phù hợp với những gia đình đông thành viên (Nguồn: Internet)

Mẫu nhà cấp 4 mái Nhật 3 phòng ngủ hiện đại, tiết kiệm chi phí xây dựng (Nguồn: Internet)
>>> Xem thêm:
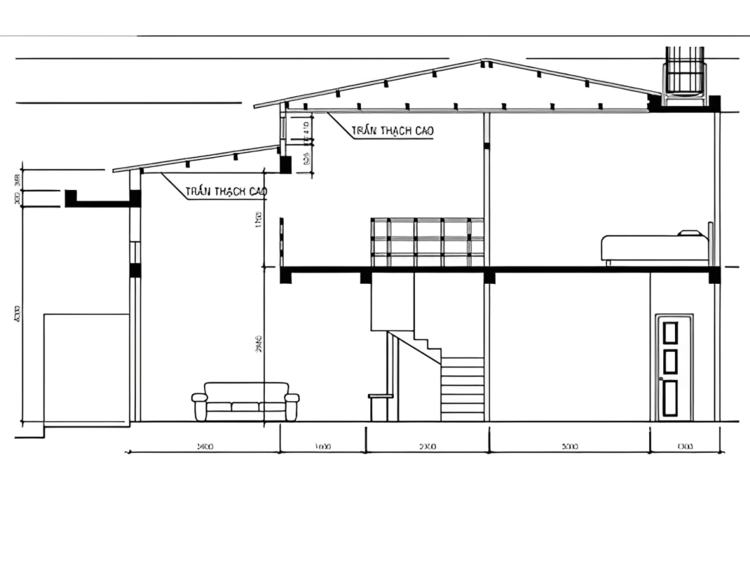
Bản vẽ nhà cấp 4 mái Thái được ưa chuộng nhờ vẻ đẹp sang trọng, khả năng thoát nước tốt và chống nóng hiệu quả. Kiểu nhà mái Thái có độ dốc vừa phải, giúp ngôi nhà trông cao ráo và bề thế hơn. Đây là lựa chọn lý tưởng cho khí hậu nóng ẩm như ở Việt Nam.
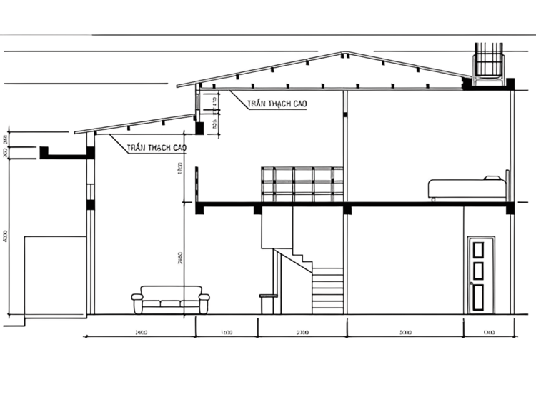
Đặc biệt, nhà mái Thái kết hợp cùng hệ trần thạch cao cao cấp từ Vĩnh Tường đang là một trong những sự lựa chọn tối ưu nhất, được nhiều gia chủ ưa chuộng:
🔹 Trần thạch cao Vĩnh Tường – Siêu Bền X:
Sử dụng tấm thạch cao Vĩnh Tường-Gyproc Siêu Bền X kết hợp cùng khung xương TIKA, hệ trần này nổi bật với công nghệ Lõi Tổ Ong và Sợi Siêu Bền, cho khả năng chống võng vượt trội, tiết kiệm chi phí đáng kể. Đây là lựa chọn lý tưởng cho nhà mái Thái có trần nhà đẹp cao, cần độ ổn định và bền bỉ.
🔹 Trần thạch cao Vĩnh Tường SIÊU BẢO VỆ:
Tấm thạch cao Siêu Bảo Vệ VĨNH TƯỜNG-gyproc là sự lựa chọn toàn diện với tính năng chống ẩm mốc, chống cháy, cách nhiệt, giảm nứt và lọc không khí đến 80%, phù hợp với khí hậu nóng ẩm tại Việt Nam. Nhờ thiết kế linh hoạt và chất lượng vượt trội, trần thạch cao Vĩnh Tường ngày càng được ưa chuộng trong các mẫu nhà cấp 4 mái Thái hiện đại.
Sự kết hợp giữa kiến trúc mái Thái tinh tế và hệ trần thạch cao chất lượng cao từ Vĩnh Tường chính là lời khẳng định cho một không gian sống đẳng cấp, tiện nghi và bền vững theo thời gian.

Bản vẽ nhà cấp 4 mái Thái 3 phòng ngủ tiết kiệm chi phí và thời gian thi công (Nguồn: Internet)

Mẫu nhà cấp 4 mái Thái 8x12m hài hòa với thiên nhiên (Nguồn: Internet)
>>> Tham khảo: 25+ Mẫu thiết kế nhà mái Thái 1 tầng đẹp, đơn giản, giá rẻ
Bản vẽ nhà cấp 4 mái tôn thường được lựa chọn khi gia chủ muốn tiết kiệm chi phí mà vẫn đảm bảo tính thẩm mỹ cơ bản. Mái tôn nhẹ, dễ lắp đặt và phù hợp với nhiều kiểu kiến trúc. Tuy nhiên, cần lưu ý đến giải pháp cách âm và chống nóng mái tôn để tăng sự thoải mái cho không gian sống.


Bản vẽ nhà cấp 4 mái tôn tiết kiệm tối đa chi phí (Nguồn: Internet)
>>> Tham khảo:
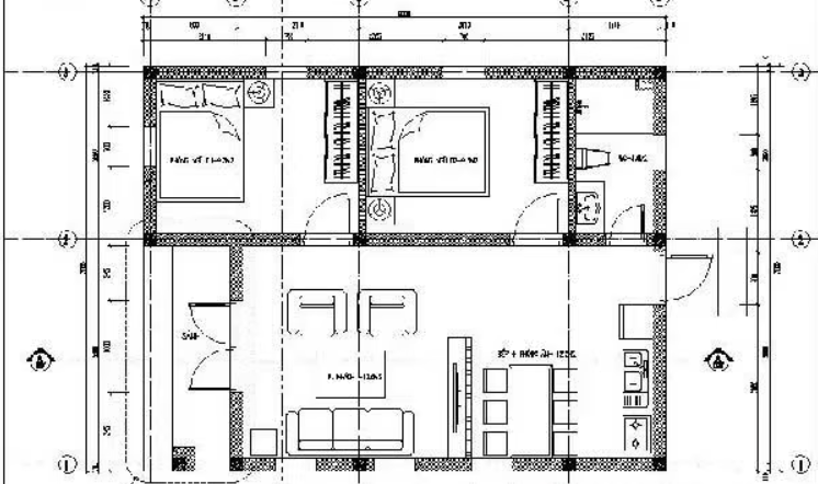
Bản vẽ nhà cấp 4 diện tích 4x13m có gác lửng là giải pháp thông minh giúp mở rộng không gian sống trên nền diện tích nhỏ. Gác lửng (gác xép) thường được bố trí làm phòng ngủ, phòng thờ hoặc kho chứa, giúp ngôi nhà trở nên tiện nghi và thoáng đãng hơn.

Bản vẽ nhà gác lửng diện tích 4x13m giúp tối ưu diện tích sử dụng (Nguồn: Internet)

Mẫu nhà gác lửng 2 phòng ngủ diện tích 4x13m sang trọng, hiện đại (Nguồn: Internet)
>>> Tham khảo:
Với chiều dài nhỉnh hơn, bản vẽ nhà cấp 4 diện tích 4x16m cho phép bố trí từ 2 đến 3 phòng ngủ cùng khu vực sinh hoạt chung hợp lý. Thiết kế này phù hợp với các lô đất dạng ống phổ biến ở khu vực thành phố hoặc khu dân cư đông đúc.

Bản vẽ nhà cấp 4 diện tích 4x16m phù hợp với vùng thành thị (Nguồn: Internet)

Mẫu nhà cấp 4 diện tích 4x16m sử dụng tông màu nhã nhặn, thanh lịch (Nguồn: Internet)
>>> Tham khảo thêm: 30+ mẫu nhà cấp 4 gác lửng đẹp hiện đại, sang trọng
Bản vẽ nhà cấp 4 diện tích 5x20m hiện đại mang đến không gian sống rộng rãi với đầy đủ phòng khách, bếp, phòng ngủ và sân vườn nhỏ. Kiến trúc hiện đại kết hợp với công năng khoa học giúp ngôi nhà trở thành lựa chọn lý tưởng cho gia đình trẻ.

Bản vẽ nhà cấp 4 diện tích 5x20m hiện đại với sân trước rộng rãi (Nguồn: Internet)

Mẫu nhà cấp 4 đẹp 5x20m phù hợp với gia đình nhỏ, thiết kế gọn gàng và tiện nghi (Nguồn: Internet)
>> Xem thêm: 55+ gợi ý xây nhà cấp 4 trọn gói 150 triệu đẹp, tiết kiệm nhất
Bản vẽ nhà cấp 4 diện tích 6x12m phù hợp với những lô đất hình chữ nhật, giúp tối ưu hóa công năng sử dụng. Thiết kế này có thể bố trí 2 phòng ngủ, phòng khách liên thông với bếp, tạo sự liền mạch trong sinh hoạt hàng ngày.

Bản vẽ nhà cấp 4 diện tích 6x12m được bố trí khoa học, tối ưu công năng cho gia đình nhỏ (Nguồn: Internet)

Mẫu nhà cấp 4 diện tích 6x12m mang đến không gian sống gọn gàng, tiện nghi và tiết kiệm chi phí xây dựng (Nguồn: Internet)
Bản vẽ thiết kế nhà cấp 4 mặt tiền 6m thường được áp dụng cho nhà phố hoặc đất phân lô vuông vức. Mẫu nhà này có thể kết hợp thêm sân trước, tiểu cảnh hoặc gara, tạo điểm nhấn cho phần mặt tiền và tăng tính tiện ích.

Bản vẽ thiết kế nhà phố đẹp mặt tiền 6m được sắp xếp hợp lý, đảm bảo thẩm mỹ và công năng sử dụng (Nguồn: Internet)

Mẫu nhà cấp 4 mặt tiền 6m phù hợp với lô đất ngang hẹp, thiết kế đơn giản mà vẫn đầy đủ tiện nghi (Nguồn: Internet)
>> Xem thêm:
Bản vẽ nhà cấp 4 diện tích 7x10m tuy không quá rộng nhưng vẫn đủ để bố trí không gian sống tiện nghi cho gia đình 3–4 người. Đây là mẫu nhà phù hợp cho các khu vực nông thôn hoặc đất nền vuông, dễ thi công và tiết kiệm chi phí.

Bản vẽ nhà cấp 4 diện tích 7x10m được thiết kế tối ưu, phù hợp cho gia đình 3–4 người sinh sống thoải mái (Nguồn: Internet)

Mẫu nhà cấp 4 nông thôn đơn giản diện tích 7x10m mang đến không gian sống gọn gàng, tiện nghi và phù hợp với nhiều phong cách thiết kế (Nguồn: Internet)
Với diện tích vừa đủ, bản vẽ nhà cấp 4 diện tích 7x12m cho phép linh hoạt trong việc phân chia phòng ngủ, phòng khách và bếp ăn. Mẫu nhà này mang lại sự thoải mái trong sinh hoạt mà vẫn đảm bảo yếu tố thẩm mỹ tổng thể.

Bản vẽ nhà cấp 4 diện tích 7x12m được bố trí hợp lý, đáp ứng đầy đủ nhu cầu sinh hoạt cho gia đình nhỏ (Nguồn: Internet)

Mẫu nhà cấp 4 diện tích 7x12m là lựa chọn lý tưởng cho gia đình trẻ với thiết kế hiện đại và công năng đầy đủ (Nguồn: Internet)
>> Xem thêm:
Bản vẽ nhà cấp 4 diện tích 10x10m là lựa chọn lý tưởng cho các gia đình muốn có không gian sống vuông vắn, cân đối. Với diện tích này, bạn có thể bố trí đến 3 phòng ngủ cùng sân vườn nhỏ, tạo nên môi trường sống tiện nghi và gần gũi thiên nhiên.

Bản vẽ nhà cấp 4 diện tích 10x10m được thiết kế vuông vức, dễ thi công và tối ưu không gian sử dụng (Nguồn: Internet)

Mẫu nhà cấp 4 diện tích 10x10m mang đến không gian sống rộng rãi, phù hợp cho gia đình từ 4–6 người (Nguồn: Internet)
Bản vẽ nhà cấp 4 có gác lửng là giải pháp mở rộng không gian sống hiệu quả cho những ngôi nhà có diện tích đất không quá lớn. Phần gác lửng có thể tận dụng làm phòng ngủ, phòng thờ hoặc khu làm việc, vừa tăng thêm công năng vừa tạo điểm nhấn cho ngôi nhà.

Bản vẽ nhà cấp 4 có gác lửng giúp mở rộng không gian sử dụng, phù hợp với những lô đất diện tích hạn chế (Nguồn: Internet)

Mẫu nhà cấp 4 có gác lửng là giải pháp tối ưu cho không gian sống tiện nghi trên diện tích xây dựng nhỏ (Nguồn: Internet)
>>> Tham khảo: 35+ Mẫu nhà gác lửng 3 phòng ngủ phù hợp với gia đình đông thành viên
Bản vẽ nhà cấp 4 chữ L được ưa chuộng nhờ khả năng phân chia không gian linh hoạt và tạo được khoảng sân thoáng ở giữa. Mẫu nhà này phù hợp với khu đất rộng ngang, dễ dàng bố trí tiểu cảnh, gara hoặc sân chơi phía trước.

Bản vẽ nhà cấp 4 chữ L được thiết kế linh hoạt, thuận tiện cho việc phân chia các khu vực chức năng trong nhà (Nguồn: Internet)
Bản vẽ nhà cấp 4 chữ U mang lại sự đối xứng, thông thoáng và riêng tư cho từng không gian bên trong. Khoảng trống giữa hai nhánh của nhà thường được tận dụng làm sân vườn, hồ cá hoặc nơi thư giãn, rất phù hợp với những ai yêu thích lối sống hòa mình với thiên nhiên.

Bản vẽ nhà cấp 4 chữ U tạo không gian sống đối xứng, thông thoáng và dễ dàng bố trí sân vườn ở giữa (Nguồn: Internet)

Mẫu nhà cấp 4 chữ U mang đến không gian sống thoáng đãng, tạo sự kết nối hài hòa giữa các phòng chức năng (Nguồn: Internet)
Bản vẽ nhà ống cấp 4 là lựa chọn phổ biến cho các khu vực thành thị hoặc khu dân cư có mặt tiền hẹp. Thiết kế này thường kéo dài theo chiều sâu, bố trí không gian liền mạch từ phòng khách đến bếp và phòng ngủ, tối ưu hóa diện tích hiệu quả.

Bản vẽ nhà ống cấp 4 được thiết kế tối ưu cho lô đất hẹp, đảm bảo đầy đủ công năng và tiện nghi sử dụng (Nguồn: Internet)

Mẫu nhà ống đẹp với thiết kế gọn gàng, hiện đại và tiết kiệm chi phí (Nguồn: Internet)
>>> Xem thêm:
Bản vẽ mẫu nhà cấp 4 nở hậu phù hợp với những lô đất có hình dáng đặc biệt, thóp đầu và rộng dần về sau. Thiết kế cần đảm bảo sự hài hòa giữa thẩm mỹ và phong thủy, đồng thời tận dụng tối đa phần diện tích phía sau để bố trí công năng hợp lý.

Bản vẽ mẫu nhà cấp 4 nở hậu được bố trí thông minh, tận dụng lợi thế đất để mở rộng không gian sống hiệu quả (Nguồn: Internet)

Mẫu nhà cấp 4 nở hậu giúp tối ưu diện tích phía sau, mang lại không gian sống rộng rãi và thoáng mát hơn (Nguồn: Internet)
Bản vẽ nhà cấp 4 nông thôn thường hướng đến sự đơn giản, thoáng mát và gần gũi với thiên nhiên. Kiến trúc chú trọng đến công năng sử dụng, sự tiện lợi trong sinh hoạt và khả năng thích nghi với điều kiện khí hậu tại địa phương.

Bản vẽ mẫu nhà cấp 4 nông thôn 3 phòng ngủ được thiết kế đơn giản, phù hợp với nhu cầu sử dụng và cảnh quan vùng quê (Nguồn: Internet)

Mẫu nhà cấp 4 nông thôn mang phong cách mộc mạc, gần gũi thiên nhiên và đáp ứng đầy đủ công năng cho gia đình (Nguồn: Internet)
>>> Xem thêm:
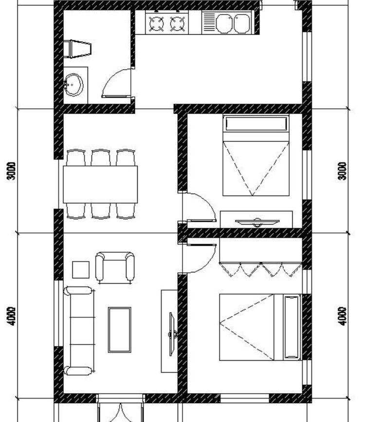
Bản vẽ nhà cấp 4 đơn giản 2 phòng ngủ là lựa chọn tối ưu cho gia đình nhỏ hoặc vợ chồng trẻ. Thiết kế tập trung vào công năng cơ bản như phòng khách, bếp, nhà vệ sinh và hai phòng ngủ được bố trí linh hoạt, đảm bảo tiện nghi mà vẫn tiết kiệm chi phí xây dựng.

Bản vẽ nhà cấp 4 đơn giản 2 phòng ngủ được bố trí hợp lý, phù hợp với gia đình nhỏ và chi phí xây dựng tiết kiệm (Nguồn: Internet)
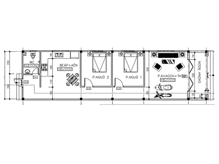
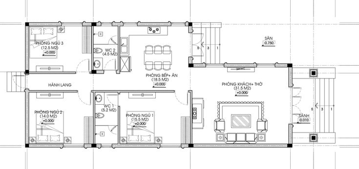
Bản vẽ nhà cấp 4 3 phòng ngủ phù hợp với gia đình có từ 4–6 thành viên. Cách bố trí không gian được tính toán kỹ lưỡng, tạo sự liên kết giữa các phòng chức năng và mang lại cảm giác rộng rãi, thoải mái cho người sử dụng.

Bản vẽ nhà cấp 4 3 phòng ngủ được thiết kế khoa học, đáp ứng nhu cầu sinh hoạt cho gia đình từ 4–6 người (Nguồn: Internet)
>> Xem thêm:
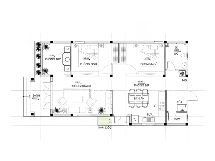
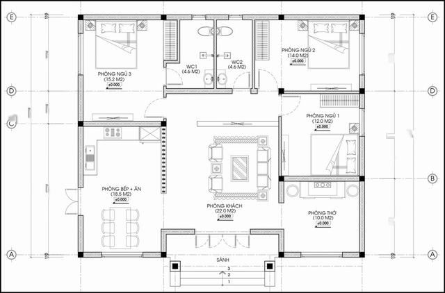
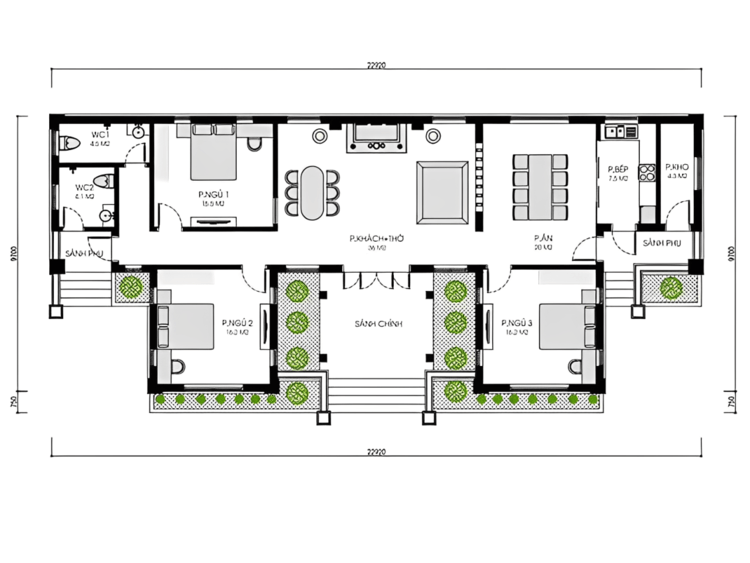
Bản vẽ nhà cấp 4 có 3 phòng ngủ, 1 phòng thờ không chỉ đáp ứng đầy đủ công năng sinh hoạt mà còn đảm bảo yếu tố phong thủy. Thiết kế mái Thái giúp ngôi nhà trở nên cao ráo, sang trọng,đồng thời sử dụng vách ngăn phòng thờ để đảm bảo sự trang nghiêm, tách biệt với không gian chung.

Bản vẽ nhà cấp 4 có 3 phòng ngủ, 1 phòng thờ được bố trí hợp lý, đảm bảo không gian sinh hoạt và yếu tố phong thủy cho gia đình (Nguồn: Internet)
>> Xem thêm các mẫu nhà lắp ghép:
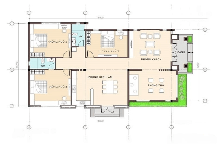
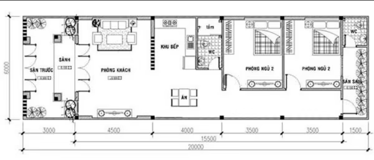
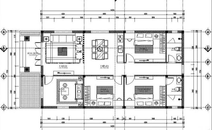
Bản vẽ nhà cấp 4 4 phòng ngủ là lựa chọn lý tưởng cho đại gia đình nhiều thế hệ. Thiết kế cần sự khéo léo để đảm bảo sự riêng tư cho từng thành viên mà vẫn giữ được sự kết nối giữa các khu vực sinh hoạt chung bằng vách ngăn phòng khách và bếp, vách ngăn cầu thang.

Bản vẽ nhà cấp 4 4 phòng ngủ phù hợp cho gia đình nhiều thế hệ, đảm bảo không gian sống riêng tư và tiện nghi (Nguồn: Internet)
>> Tham khảo: 45+ Mẫu nhà cấp 4 mái Nhật 4 phòng ngủ đẹp hiện đại, đơn giản nhất
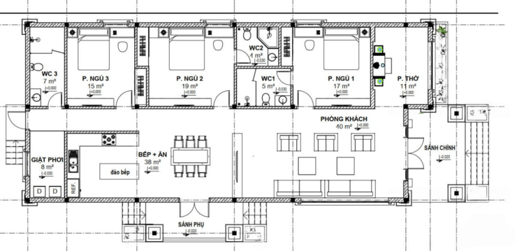
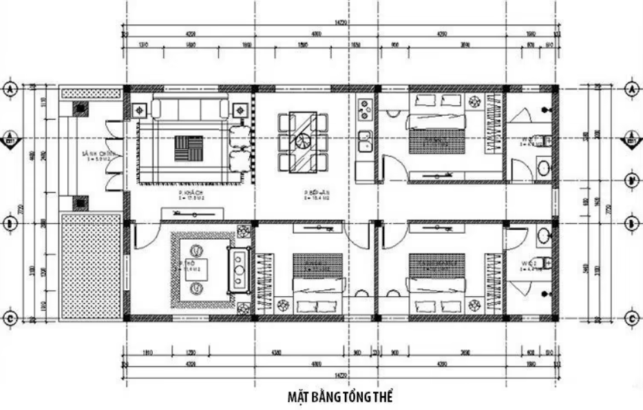
Bản vẽ nhà cấp 4 3 phòng ngủ 100m2 giúp cân bằng giữa diện tích và công năng sử dụng. Trên nền diện tích 100m2, việc bố trí ba phòng ngủ hợp lý kết hợp cùng không gian mở cho phòng khách và bếp sẽ tạo nên tổng thể hài hòa, phù hợp với nhu cầu sống hiện đại.

Bản vẽ nhà cấp 4 3 phòng ngủ 100m2 được thiết kế tối ưu, mang lại không gian sống tiện nghi và phù hợp với gia đình 4–5 người (Nguồn: Internet)
Bản vẽ nhà cấp 4 có gara ô tô mang lại sự thuận tiện trong sinh hoạt hàng ngày, đặc biệt phù hợp với các gia đình sở hữu xe riêng. Gara có thể được thiết kế liền kề hoặc tích hợp trong khối nhà chính, vừa tiết kiệm diện tích vừa đảm bảo tính thẩm mỹ tổng thể.

Bản vẽ nhà cấp 4 có gara ô tô được thiết kế tiện lợi, giúp bảo vệ phương tiện và tối ưu công năng sử dụng (Nguồn: Internet)
Bản vẽ nhà cấp 4 có sân vườn hướng đến không gian sống gần gũi thiên nhiên, tạo cảm giác thư thái và thoáng đãng. Sân vườn có thể là nơi bố trí tiểu cảnh, cây xanh hoặc khu vực thư giãn ngoài trời, rất lý tưởng cho những ai yêu thích lối sống xanh.

Bản vẽ nhà cấp 4 có sân vườn mang đến không gian sống xanh mát, gần gũi thiên nhiên và thư giãn mỗi ngày (Nguồn: Internet)
>> Xem thêm:
Bản vẽ nhà cấp 4 giá 500 triệu khi xây dựng được thiết kế tối ưu về chi phí nhưng vẫn đảm bảo các công năng cơ bản. Mẫu nhà này phù hợp với gia đình trẻ hoặc người có thu nhập trung bình, thường sử dụng vật liệu phổ thông và phong cách kiến trúc đơn giản, dễ thi công.

Bản vẽ nhà cấp 4 giá 500 triệu khi xây dựng được tối ưu chi phí mà vẫn đảm bảo đầy đủ công năng cho gia đình nhỏ (Nguồn: Internet)
>> Xem thêm:
Bản vẽ nhà cấp 4 có hồ bơi kiểu Mỹ mang đến không gian sống sang trọng và đậm chất nghỉ dưỡng. Thiết kế thường đi kèm với sân vườn rộng, cửa kính lớn và bố trí không gian mở để tối đa hóa ánh sáng tự nhiên và sự kết nối giữa bên trong và bên ngoài.

Bản vẽ nhà cấp 4 kiểu Mỹ chi tiết từng không gian (Nguồn: Internet)
>> Một số thiết kế khác:
Xem thêm các bước thi công vách ngăn thạch cao Vĩnh Tường chi tiết qua video dưới đây:
>> Một số thiết kế vách ngăn phổ biến:
Hy vọng những gợi ý về bản vẽ nhà cấp 4 trong bài viết đã mang đến cho bạn cái nhìn tổng quan và nhiều ý tưởng thiết thực trong quá trình lên kế hoạch xây dựng tổ ấm. Tùy theo diện tích đất, ngân sách và nhu cầu sử dụng, bạn hoàn toàn có thể lựa chọn mẫu thiết kế phù hợp để đảm bảo công năng, thẩm mỹ và tính lâu dài cho công trình.
Nếu bạn cần thêm tư vấn về giải pháp thi công hiệu quả, lựa chọn vật liệu chất lượng hay thiết kế trần - tường - vách đạt chuẩn kỹ thuật, đừng ngần ngại:
Địa chỉ trụ sở chính: Tầng 8 - Tòa nhà SOFIC Tower, 10 Đường Mai Chí Thọ, Quận 2, Thành phố Hồ Chí Minh.
Thời gian hoạt động:
Thứ 2 - Thứ 6: từ 8h30 – 17h30
Thứ 7: Từ 8h00 - 12h00
Liên hệ qua số điện thoại: 1800-1218 hoặc trang website: https://vinhtuong.com/lien-he
Tag: vật liệu xây dựng, phòng khách đẹp, trần thạch cao phòng khách, trang trí phòng khách, phòng bếp đẹp, mẫu trần thạch cao phòng ngủ, thi công trần thạch cao, vách ngăn cầu thang tam cấp, phào chỉ thạch cao, trần thạch cao phẳng, trần thạch cao phòng bếp, thiết kế nhà vệ sinh và nhà tắm riêng, thiết kế ban công, trần thạch cao phòng thờ, trần thạch cao giật cấp, phòng khách nhà ống 5m hiện đại, phòng khách liền bếp nhà ống, vách tường lắp ghép, vách ngăn phòng khách chung cư