vinhtuong đăng vào lúc 08/12/2025 - 17:13

40+ Mẫu nhà cấp 4 mái Thái 3 phòng ngủ đẹp, hiện đại, phổ biến nhất hiện nay (Nguồn: Internet)
Mẫu nhà cấp 4 đẹp mái Thái 3 phòng ngủ từ lâu đã trở thành lựa chọn phổ biến của nhiều gia đình Việt Nam, ở cả thành thị lẫn nông thôn. Không chỉ mang đến không gian sống thoải mái, mẫu nhà đẹp này còn có thiết kế mặt tiền đơn giản nhưng cũng không kém phần đẹp mắt và hiện đại. Bài viết này, Vĩnh Tường sẽ giúp bạn khám phá những mẫu nhà cấp 4 mái Thái 3 phòng ngủ đẹp, xu hướng mới nhất.
Nhà mái Thái là kiểu kiến trúc nhà mái ngói rất được ưa chuộng tại Việt Nam. Mẫu nhà này có thiết kế mái dốc đặc trưng với cảm hứng từ phong cách kiến trúc Thái Lan. Nhà mái Thái không chỉ mang đến vẻ đẹp sang trọng, ấn tượng mà còn đảm bảo đầy đủ công năng khi sử dụng.

Tham khảo mẫu nhà mái Thái 1 tầng 3 phòng ngủ đẹp, thiết kế đơn giản và tiết kiệm chi phí thi công (Nguồn: Internet)
>> Xem thêm:
Nhà cấp 4 mái Thái 3 phòng ngủ giúp hạn chế nước bị ứ đọng khi trời mưa và nâng cao khả năng chống thấm. Đồng thời, mẫu nhà này thường mang đến vẻ đẹp hiện đại với kiểu dáng cao thanh thoát. Bên cạnh đó, khả năng chịu nhiệt của nhà mái Thái khá cao, làm dịu mát không gian nhà trong những ngày hè oi bức. Bên cạnh đó, các vật liệu xây dựng như ngói đất nung, gạch không nung và kính cường lực thường được ưu tiên sử dụng trong thiết kế nhà này, vừa đảm bảo độ bền vừa phù hợp với yếu tố thẩm mỹ và khí hậu.
Kiểu nhà này phù hợp với những gia đình có diện tích đất vừa phải và muốn tận dụng tối đa không gian sống. Với lối kiến trúc kết hợp hài hòa giữa nét đẹp truyền thống của mái nhà Thái và các yếu tố hiện đại trong thiết kế nội thất và ngoại thất. Với thiết kế đơn giản, gần gũi và phù hợp với khí hậu nhiệt đới ở nước ta, mẫu nhà này hiện đang được ưa chuộng ở những gia đình trẻ, có con nhỏ và những gia đình có thu nhập trung bình ở khu vực nông thôn hoặc ngoại thành.
>> Xem thêm:

Mẫu nhà cấp 4 mái thái 8x12m đẹp, hiện đại (Nguồn: Internet)

Mẫu nhà cấp 4 nông thôn 3 phòng ngủ thiết kế mái Thái diện tích 120m2, thiết kế hiện đại, sang trọng (Nguồn: Internet)
>> Xem thêm: 101+ mẫu nhà 2 tầng đẹp đơn giản, hiện đại nhất

Xây nhà cấp 4 mái Thái có 3 phòng ngủ đẹp, thiết kế vừa hiện đại, vừa mang nét cổ điển nhờ những họa tiết ánh kim (Nguồn: Internet)
>> Xem thêm:

Mẫu nhà cấp 4 đẹp 100m2 3 phòng ngủ thiết kế mái Thái đẹp, đơn giản phù hợp ở nông thôn (Nguồn: Internet)

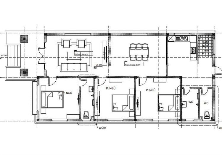
Bản vẽ mặt bằng nhà cấp 4 mái Thái có 3 phòng ngủ 1 phòng thờ, thiết kế hình ống phù hợp với những miếng đất dài hẹp (Nguồn: Internet)
Tham khảo thêm:
Nhà cấp 4 mái Thái 3 phòng ngủ được ứng dụng nhiều cho các gia đình đông thành viên ở nông thôn. Tuy nhiên, thiết kế nhà cấp 4 nông thôn đơn giản và nhỏ hơn nhằm tiết kiệm chi chí cùng có không gian sân vườn mát mẻ. Với 3 phòng ngủ, phòng khách, bếp và các khu vực chức năng khác, ngôi nhà đáp ứng đầy đủ nhu cầu sinh hoạt của một gia đình.

Mẫu nhà ống đẹp thiết kế cấp 4 mái Thái 3 phòng ngủ đẹp, phù hợp với khu vực nông thôn (Nguồn: Internet)

Mẫu mặt tiền nhà cấp 4 mái Thái 3 phòng ngủ đơn giản, thiết kế gam màu xanh tươi mới (Nguồn: Internet)
>> Top 40 mẫu thiết kế nhà cấp 4 mái bằng đẹp, hiện đại, thiết kế mới nhất

Mẫu nhà tiền chế đẹp thiết kế cấp 4 mái Thái 3 phòng ngủ tiện nghi (Nguồn: Internet)

Mẫu nhà tiền chế cấp 4 mái thái 3 phòng ngủ phổ biến ở nông thôn (Nguồn: Internet)

Tham khảo thiết kế mặt tiền nhà cấp 4 mái thái 3 phòng ngủ đơn giản, tiết kiệm chi phí thi công (Nguồn: Internet)
>> 30+ Mẫu nhà gác lửng 3 phòng ngủ đẹp, hiện đại, đẳng cấp nhất

Tham khảo mẫu nhà cấp 4 mái Thái có phòng ngủ đẹp cho nữ, vợ chồng, có khu vực sân vườn xanh mát, thoáng đãng (Nguồn: Internet)

Nhà cấp 4 nông thôn có 3 phòng ngủ master, 1 phòng khách đẹp, thiết kế tối giản nhằm tiết kiệm chi phí thi công (Nguồn: Internet)

Thiết kế nhà cấp 4 mái thái 3 phòng ngủ tân cổ điển đơn giản cho khu vực nông thôn (Nguồn: Internet)
>> Để nhận thông tin và báo giá chi tiết hệ trần - tường - vách thạch cao làm nhà cấp 4 mái Thái 3 phòng ngủ, vui lòng bấm:
Để làm mới kiểu nhà truyền thống này, bạn có thể lựa chọn những mẫu nhà cấp 4 mái Thái 3 phòng ngủ hiện đại, tạo điểm nhấn bằng phong cách bài trí phóng khoáng. Các đường nét kiến trúc được đơn giản hóa, tạo nên vẻ đẹp thanh lịch và hiện đại. Đặc biệt, bạn nên xây dựng trên quỹ đất lớn, dành diện tích phía trước làm khu vực tiểu cảnh, giúp tổng thể thiết kế hài hòa hơn.
>> Xem thêm:

Nhà cấp 4 mái Thái có phòng ngủ cho bé gái, vợ chồng tiện nghi cùng mặt tiền trang trí hiện đại, thiết kế kiểu chữ L (Nguồn: Internet)

Khu vực mặt tiền được thiết kế rộng thoáng, đẹp mắt (Nguồn: Internet)

Mẫu nhà cấp 4 mái thái 3 phòng ngủ màu hồng đẹp, bố trí thêm tiểu cảnh để không gian thông thoáng và xanh mát hơn (Nguồn: Internet)

Trang trí mặt tiền nhà cấp 4 mái Thái 3 phòng ngủ nhỏ kết hợp giữa nét truyền thống và hiện đại, tạo nên vẻ đẹp độc đáo và ấn tượng (Nguồn: Internet)

Bản vẽ thiết kế nhà cấp 4 mái thái 3 phòng ngủ 1 phòng khách (Nguồn: Internet)

Mặt tiền nhà cấp 4 mái thái 3 phòng ngủ đẹp, thiết kế đơn giản, hài hòa với thiên nhiên (Nguồn: Internet)
>> Xem thêm:
Mẫu nhà cấp 4 đẹp 3 phòng ngủ thiết kế mái Thái, chữ L có kiểu dáng khá đặc biệt, hình ống thon dài và khu vực bếp ăn, nhà vệ sinh bên cạnh tạo thành khung chữ L, giúp tối ưu hóa diện tích sử dụng, tạo ra nhiều khoảng thông gió tự nhiên. Bên cạnh đó, mẫu nhà này thường rất phổ biến ở khu vực nông thôn, chẳng hạn như mẫu nhà cấp 4 chữ L mái tôn, mái ngói. Thông thường, gia chủ sẽ thiết kế thêm một cửa ra vào để tiện lợi hơn cho việc di chuyển, sinh hoạt.

Mẫu nhà chữ L giả ngói đẹp, thiết kế sân vườn thoáng mát (Nguồn: Internet)
>> Nhà ba gian là gì? Đặc điểm thiết kế nhà 3 gian truyền thống
Trang trí mặt tiền nhà cấp 4 mái Thái 3 phòng ngủ dạng này thường đòi hỏi diện tích đất khá lớn. Sân vườn được thiết kế hài hòa với kiến trúc nhà, tạo không gian xanh mát và gần gũi với thiên nhiên.

Mẫu nhà cấp 4 mái Thái 3 phòng ngủ có hồ bơi và sân vườn xanh mát (Nguồn: Internet)

Mẫu mặt tiền nhà cấp 4 mái Thái có sân vườn sẽ được bố trí cây cối phía trước hoặc bên hông nhà, tạo không gian xanh mát (Nguồn: Internet)
Tham khảo thêm:
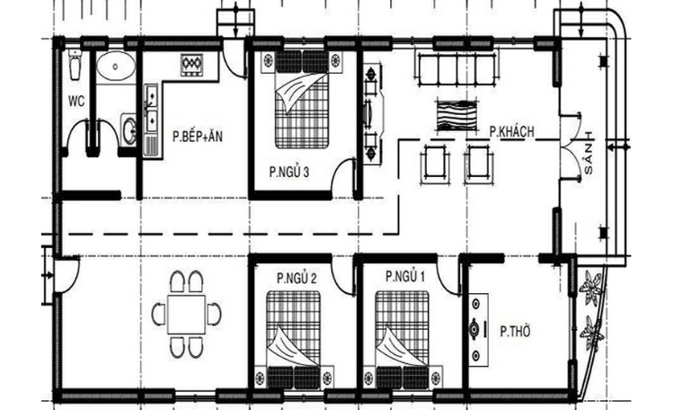
Nếu không có đủ không gian thi công, bạn có thể lựa chọn mẫu nhà cấp 4 mái Thái 3 phòng ngủ có gác lửng đẹp. Thông thường, kiểu nhà cấp 4 gác lửng này sẽ được trang trí mặt tiền là phòng khách, phòng bếp và 1 phòng trủ ở tầng trệt, phòng thờ và 2 phòng ngủ ở tầng lửng. Phần gác lửng giúp tận dụng không gian phía trên để bố trí thêm phòng ngủ, tạo thêm không gian riêng tư, linh hoạt trong bố trí công năng. Nhà gác lửng 3 phòng ngủ này là một trong những lựa chọn lý tưởng cho gia đình đông thành viên với diện tích đất xây nhà hạn chế.

Thiết kế mặt tiền nhà cấp 4 gác lửng 200 triệu tối ưu không gian nhưng vẫn giữ được nét sang trọng, hiện đại (Nguồn: Internet)
>> 30+ Mẫu nhà gác lửng 2 phòng ngủ đẹp hiện đại, tiện nghi nhất
Ở khu vực nông thôn, mọi người thường chuộng kiểu nhà cấp 4 mái Thái lợp ngói. Mẫu nhà này vừa đẹp, vừa bền chắc lại thi công nhanh. Tuy nhiên, bạn cần lựa chọn màu sơn phù hợp với tone màu đỏ tươi của mái ngói.

Thiết kế mẫu nhà cấp 4 nông thôn 250 triệu mái ngói truyền thống đẹp nhưng không mất đi tính thẩm mỹ cho ngôi nhà (Nguồn: Internet)

Mái ngói giúp tăng tuổi thọ cho ngôi nhà, mát mẻ vào mùa hè và ấm áp vào mùa đông (Nguồn: Internet)(Nguồn: Internet)
>> Xem thêm:
Mẫu nhà cấp 4 mái Thái 3 phòng ngủ lợp mái Tôn sẽ dễ thi công và có giá thành rẻ hơn, giúp giảm chi phí xây dựng. Bên cạnh đó mái tôn có nhiều màu sắc, kiểu dáng và hoa văn khác nhau, giúp bạn dễ dàng lựa chọn để phù hợp với phong cách kiến trúc của ngôi nhà.

Mẫu nhà cấp 4 đẹp 5x20 mái Thái mái tôn đơn giản, tiết kiệm chi phí (Nguồn: Internet)
>> Để nhận thông tin và báo giá chi tiết hệ trần - tường - vách thạch cao làm nhà cấp 4 mái Thái 3 phòng ngủ, vui lòng bấm:
Nhà cấp 4 mái Thái 3 phòng ngủ 1 phòng thờ sẽ được bài trí tùy vào sở thích cá nhân. Thông thường, kiểu nhà này sẽ thiết kế phòng khách ngay cửa chính ra vào, bên cạnh là phòng thờ, tiếp đến là không gian phòng ngủ riêng biệt.

Thiết kế 1 gian phòng thờ tách biệt (Nguồn: Internet)

Bản vẽ nhà cấp 4 mái Thái 3 phòng ngủ 1 phòng thờ
>> Xem thêm:
Nhà cấp 4 mái Thái 100m2 là khổ nhà vừa khớp với thiết kế 3 phòng ngủ. Để “ăn gian” diện tích và tổng quan ngôi nhà thông thoáng hơn, bạn có thể lắp đặt hệ thống cửa sổ kính đẹp, hiện đại.

Thiết kế mẫu nhà cấp 4 đẹp 100m2 3 phòng ngủ mái Thái nhỏ đẹp (Nguồn: Internet)
>> 54 Mẫu nhà cấp 4 đẹp giá rẻ 300 triệu đơn giản, hiện đại
Nhà cấp 4 mái Thái 3 phòng ngủ 120m2 thường được thiết kế theo phong cách đơn giản, hiện đại. Tương tự như kiểu nhà 100m2, tuy nhiên bạn có thể tận dụng khoảng diện tích lớn hơn để làm sân phơi, chỗ để xe hoặc sân vườn tiểu cảnh.

Thiết kế nhà cấp 4 mái Thái 3 phòng ngủ hiện đại, diện tích 120m2 (Nguồn: Internet)
>> Xem thêm:
100+ mẫu nhà ống 3 tầng 4m hiện đại, mặt tiền đẹp
Tổng hợp 35+ mẫu nhà ống đẹp 3 tầng 5m xu hướng thiết kế
Hiện nay, nhà cấp 4 mái Thái còn được thiết kế theo nhiều kiểu mẫu hiện đại, tân cổ điển hoặc mang hơi hướng sân vườn biệt thự. Vì vậy, công tác thi công sẽ phức tạp hơn, đòi hỏi một bản vẽ hoàn hảo, xây dựng tỉ mỉ, chăm chút.
Nhà cấp 4 mái Thái có thể được phân loại dựa trên diện tích, công năng hoặc số phòng. Ví dụ như nhà cấp 4 mái Thái 1 phòng ngủ, 2 phòng ngủ hoặc 3 phòng ngủ.
Ngoài ra, bạn cần lưu ý thi công hệ trần nhà cấp 4 mái Thái 3 phòng ngủ bền chắc, hiện đại và đa dạng công năng để giúp tổng thể ngôi nhà hài hòa hơn. Dưới đây là một số mẫu trần nhà phổ biến và được ưa chuộng nhất hiện nay gia chủ cùng thầu thợ có thể tham khảo:
Trần thạch cao Vĩnh Tường SIÊU BẢO VỆ là sự kết hợp hoàn hảo giữa Tấm thạch cao Siêu Bảo Vệ VĨNH TƯỜNG-gyproc và khung trần chìm Vĩnh Tường BASI® hoặc Khung trần chìm Vĩnh Tường ALPHA®. Tất cả tạo nên một hệ trần nhà cấp 4 mái Thái 3 phòng ngủ an toàn cho sức khỏe, đẹp mắt, nổi bật với các tính năng: siêu thanh lọc không khí 80%, siêu chống võng - chống cháy - chống nứt và đặc biệt là siêu chống nồm ẩm.
Đây là hệ trần siêu bền, có cấu tạo từ Tấm Thạch Cao VĨNH TƯỜNG-gyproc Siêu Bền X và Khung trần chìm Vĩnh Tường TIKA® hoặc khung trần chìm Vĩnh Tường ALPHA®. Với công nghệ Lõi Tổ Ong kết hợp Sợi Siêu Bền, hệ trần này có khả năng chống võng tốt, vì vậy, thời gian vận chuyển và thi công nhanh hơn, giúp bạn tiết kiệm chi phí. Đồng thời, trần còn có khả năng uốn cong tốt, dễ dàng tạo hình, phù hợp với mọi thiết kế trần chìm, giúp căn nhà bạn sẽ trở nên đẹp mắt và ấn tượng hơn.
Thiết kế trần la phông Vĩnh Tường Ánh Kim là lựa chọn lý tưởng cho kiểu nhà cấp 4 mái Thái 3 phòng ngủ nhờ khả năng thi công nhanh chóng và mẫu mã đa dạng, nổi bật với họa tiết ánh kim sang trọng, lấp lánh. Không chỉ mang lại vẻ đẹp thẩm mỹ tinh tế, sản phẩm còn tích hợp nhiều tính năng ưu việt như:
Không cong vênh, đảm bảo bề mặt trần luôn phẳng đẹp.
Khả năng cách nhiệt vượt trội, giúp giảm nhiệt lên đến 5 độ C, mang lại không gian sống mát mẻ, thoáng đãng.
Dễ cắt góc nhỏ, không bể mẻ cạnh, bề mặt cạnh tấm sau khi cắt vẫn mịn đẹp, thuận lợi cho thi công.
Chịu nước, bền trên 5 năm, không bị ảnh hưởng bởi độ ẩm và thời tiết.
Bảo hành 5 năm bay màu hoa văn, giữ trọn vẻ đẹp lâu dài.
An toàn và thân thiện, với cam kết "5 không": Không bay màu – Không giòn bể – Không cháy – Không độc hại – Không bay thóc.
Nhờ những ưu điểm nổi bật này, trần Vĩnh Tường Ánh Kim không chỉ nâng tầm vẻ đẹp kiến trúc mà còn giúp bạn xây dựng một không gian sống bền vững, mát mẻ và an toàn cho cả gia đình.

Bộ sưu tập 5 mẫu Tấm trang trí Vĩnh Tường DECO® Ánh Kim mới nhất
Vui lòng liên hệ với Vĩnh Tường để được tư vấn thông tin chi tiết và báo giá hệ trần làm nhà cấp 4 mái Thái 3 phòng ngủ qua:
Hotline: 1800-1218
Chi phí xây dựng nhà cấp 4 mái Thái 3 phòng ngủ phụ thuộc vào rất nhiều yếu tố, bao gồm:
Ước tính chi phí:
Ví dụ: Với một ngôi nhà cấp 4 mái Thái 3 phòng ngủ có diện tích xây dựng 100m2, chi phí ước tính có thể như sau:
***Lưu ý: Đây chỉ là con số ước tính để bạn tham khảo, chi phí thực tế có thể cao hơn hoặc thấp hơn tùy thuộc vào các yếu trên. Bạn nên liên hệ với các đơn vị thi công thể được báo giá chính xác nhất.
>> Có thể bạn quan tâm:
Dù xây dựng nhà cấp 4 mái Thái 3 phòng ngủ hay bất cứ công trình nào, việc đầu tiên mà bạn cần phải làm là lựa chọn phong cách thiết kế và ước tính chi phí thi công. Điều này sẽ giúp bạn tránh được tình trạng thâm hụt kinh phí, đồng thời lựa chọn bản thiết kế, màu sắc, cách bài trí không gian phù hợp.
Nếu muốn thiết kế thêm khuôn viên sân vườn, bạn nên lựa chọn màu sắc cây cối hài hòa với tổng quan ngôi nhà. Đồng thời, kết hợp các yếu tố phong thủy để xác định hướng nhà, màu sắc hoặc cách bài trí hợp mệnh, đón may mắn tài lộc.
Quan trọng hơn hết, bạn cần lựa chọn đơn vị thi công uy tín và vật liệu xây dựng chất lượng, chính hãng. Bởi chúng sẽ quyết định đến tuổi thọ, công năng và tính thẩm mỹ của toàn ngôi nhà.
Chi phí xây nhà cấp 4 có 3 phòng ngủ thường dao động từ 400 triệu đến 1 tỷ đồng, tùy thuộc vào diện tích, kiểu thiết kế, chất lượng vật liệu, và địa điểm xây dựng. Tuy nhiên, để có dự toán chính xác, cần liên hệ đơn vị thi công để được tư vấn chi tiết chính xác nhất.
Chi phí xây nhà cấp 4 mái Thái 120m² thường từ 700 triệu đến 1,2 tỷ đồng, tùy vào phong cách thiết kế, chất liệu xây dựng và khu vực thi công.
Chi phí xây nhà cấp 4 diện tích 70m² dao động từ 400 triệu đến 700 triệu đồng, phụ thuộc vào mức độ hoàn thiện và vật liệu sử dụng.
Chi phí xây nhà cấp 4 diện tích 100m² ước tính từ 500 triệu đến 900 triệu đồng, tùy vào thiết kế, nội thất và địa điểm xây dựng.
Lưu ý: Chi phí ước tính trên mang tính chất tham khảo, giá tiền thực tế có thể cao hơn hoặc thấp hơn tùy thuộc vào nhiều yếu tố. Bạn nên liên hệ với các đơn vị thi công thể được báo giá chính xác nhất.
Nhà cấp 4 mái Thái 3 phòng ngủ đẹp với thiết kế hiện đại, tiện nghi đã trở thành lựa chọn hàng đầu của nhiều gia đình. Hy vọng rằng, với những gợi ý mà Vĩnh Tường chia sẻ trên sẽ giúp gia chủ sẽ có thêm nhiều ý tưởng mới mẻ cho căn nhà mơ ước của mình. Nếu cần hỗ trợ, tư vấn về thiết kế và vật liệu thạch cao làm trần nhà cấp 4 mái Thái, quý khách vui lòng liên hệ với Vĩnh Tường thông qua:
Địa chỉ trụ sở chính: Tầng 8 - Tòa nhà SOFIC Tower, 10 Đường Mai Chí Thọ, Quận 2, Thành phố Hồ Chí Minh.
Thời gian hoạt động:
Thứ 2 - Thứ 6: từ 8h30 – 17h30
Thứ 7: Từ 8h00 - 12h00
Liên hệ qua số điện thoại: 1800-1218 hoặc trang website: https://vinhtuong.com/lien-he
Tag: trần thạch cao phòng khách, trần thạch cao giật cấp, trần thạch cao tân cổ điển, trần thạch cao phòng ngủ, trần thạch cao phẳng, trần thạch cao phòng bếp, trần thạch cao phòng ngủ trẻ em, mẫu trần thạch cao phòng khách 25m2, trần thạch cao phòng ngủ nhỏ 10m2, vách cách âm, vách tiêu âm, vách ngăn chống cháy, vách ngăn nhà vệ sinh , vách ngăn văn phòng, vách tivi, tầng trệt, ban công, mẫu thiết kế ban công đẹp, thiết kế nhà vệ sinh và nhà tắm riêng, thiết kế nhà vệ sinh, mẫu nhà vệ sinh nhỏ đẹp, nhà tắm đẹp