vinhtuong đăng vào lúc 13/04/2025 - 22:49

Mẫu nhà cấp 4 3 phòng ngủ đẹp, hiện đại, xu hướng mới nhất (Nguồn: Internet)
Mẫu nhà cấp 4 đẹp 3 phòng ngủ được nhiều người lựa chọn bởi tính thẩm mỹ cao, tiết kiệm chi phí. Trong bài viết này, hãy cùng Vĩnh Tường tìm hiểu top 40+ mẫu thiết kế nhà cấp 4 đẹp 3 phòng ngủ thiết kế mới nhất hiện nay.
Mẫu nhà cấp 4 nông thôn 3 phòng ngủ sở hữu nhiều ưu điểm nổi bật, mang đến cho bạn không gian sống tiện nghi, thoải mái, tối ưu nhất:
Tiết kiệm chi phí xây dựng: Nhà cấp 4 là lựa chọn hợp lý với ngân sách hạn chế. Nhờ thiết kế đơn giản, ít tầng và vật liệu phổ biến, chi phí đầu tư thường thấp hơn nhiều so với nhà cao tầng hoặc biệt thự, nhưng vẫn đảm bảo đầy đủ tiện nghi.
Không gian sống thoáng đãng, gần gũi thiên nhiên: Đặc trưng của nhà cấp 4 ở nông thôn là sự gắn kết với không gian xanh: sân vườn, tiểu cảnh, hàng rào cây… tạo nên môi trường sống trong lành, yên tĩnh – lý tưởng để nghỉ ngơi sau ngày dài làm việc.
Công năng linh hoạt, phù hợp gia đình nhiều thế hệ: Với 3 phòng ngủ được bố trí hợp lý, mẫu nhà này đáp ứng tốt nhu cầu sinh hoạt của các gia đình từ 4–6 người. Không gian phòng khách, bếp, phòng thờ và khu sinh hoạt chung được thiết kế hài hòa, tạo sự kết nối giữa các thành viên.
Dễ dàng nâng cấp, mở rộng trong tương lai: Cấu trúc nhà cấp 4 thuận lợi cho việc cơi nới, xây thêm tầng lửng hoặc mở rộng phòng khi gia đình có thêm thành viên. Đây là ưu điểm lớn giúp gia chủ chủ động trong kế hoạch dài hạn.
Đa dạng thiết kế, phù hợp khí hậu Việt Nam: Từ mái Thái, mái Nhật đến mái bằng hiện đại – các mẫu nhà cấp 4 không chỉ đẹp về thẩm mỹ mà còn thích nghi tốt với điều kiện khí hậu nóng ẩm. Khả năng chống thấm, cách nhiệt và thông gió tự nhiên được tối ưu hiệu quả.

Nhà cấp 4 3 phòng ngủ được ưa chuộng do có nhiều ưu điểm tuyệt vời (Nguồn: Internet)

Mẫu nhà cấp 4 3 phòng ngủ tiết kiệm chi phí (Nguồn: Internet)

Thiết kế nhà cấp 4 3 phòng ngủ đầy đủ tiện ích, tiện nghi (Nguồn: Internet)

Mẫu nhà cấp 4 đẹp 3 phòng ngủ bố trí công năng linh hoạt (Nguồn: Internet)

Tham khảo mẫu nhà cấp 4 mái Nhât 3 phòng ngủ đẹp, thiết kế đơn giản, tinh tế và sang trọng. Khu vực sân rộng rãi, tận dụng làm chỗ đậu đỗ xe hợp lý (Nguồn: Internet)

Xây nhà cấp 4 cách âm 3 phòng ngủ chữ L, thiết kế thêm một cửa chính để tiện cho việc di chuyển và sinh hoạt (Nguồn: Internet)

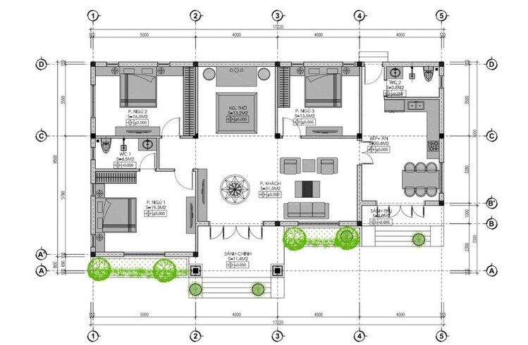
Bản vẽ nhà cấp 4 đẹp 3 phòng ngủ 100m2, bố trí các phòng công năng một cách tiện nghi (Nguồn: Internet)

Mẫu nhà cấp 4 3 phòng ngủ đẹp, thiết kế mái Nhật hiện đại, độc đáo có thi công tường cách âm (Nguồn: Internet)

Nếu chi phí thi công thấp, bạn có thể tham khảo mẫu nhà gác lửng 3 phòng ngủ đơn giản này (Nguồn: Internet)

Khu vực mặt tiền nhà cấp 4 đẹp 3 phòng ngủ được thiết kế tối giản hình hộp, trần hộp và phối màu ấm cúng, hiện đại (Nguồn: Internet)

Trang trí phòng khách nhỏ 15m2 của nhà cấp 4 3 phòng ngủ hiện đại, sang trọng, trang trí nội thất hài hòa với tổng thể căn nhà (Nguồn: Internet)

Phòng bếp đẹp của căn nhà cấp 4 đẹp 3 phòng ngủ được thiết kế riêng, đảm bảo tính riêng tư khi sinh hoạt (Nguồn: Internet)

Nếu yêu thích phong cách thiết kế hiện đại, sang trọng, bạn hãy tham khảo mẫu nhà cấp 4 3 phòng ngủ trên (Nguồn: Internet)

Ngôi nhà tận dụng hầu hết ánh sáng từ tự nhiên, thiết kế nội thất màu gỗ ấm cúng. Đồng thời, thiết kế mẫu nhà gác lửng 3 phòng ngủ để tối ưu diện tích, đảm bảo bố trí đầy đủ các phòng công năng (Nguồn: Internet)

Thiết kế nhà cấp 4 mái thái 3 phòng ngủ để "ăn gian" chiều cao căn nhà, thông thoáng không gian hơn (Nguồn: Internet)

Mẫu nhà cấp 4 nông thôn 3 phòng ngủ nhỏ đẹp, thiết kế đơn giản nhưng không kém phần tinh tế (Nguồn: Internet)

Bản vẽ nhà cấp 4 đẹp 3 phòng ngủ đẹp, thiết kế vuông vức phù hợp với phong thủy (Nguồn: Internet)

Xu hướng xây nhà cấp 4 3 phòng ngủ 120m2 với thiết kế mái Nhật đẹp mắt, hiện đại. Khu vực mặt tiền thông thoáng, đan xen nét cổ điển nhờ họa tiết trên hàng rào chắn (Nguồn: Internet)

Mẫu nhà cấp 4 nông thôn đơn giản 3 phòng ngủ rộng rãi, thoáng mát, thiết kế đơn giản và tiết kiệm chi phí (Nguồn: Internet)

Thi công nhà cấp 4 3 phòng ngủ nhỏ đẹp, thiết kế chữ L đơn giản, tiện nghi. Điểm nhấn cho tổng quan căn nhà là hệ thống cửa kính hỗ trợ đón nắng, đón gió làm thông thoáng không gian (Nguồn: Internet)

Mẫu nhà cấp 4 đẹp 3 phòng ngủ đẹp, kích thước 5x20 tương tự như thiết kế nhà ống. Với dáng nhà này, khu vực phòng ngủ thường được bố trí đều hai bên hông, cuối cùng là khu vực bếp và nhà vệ sinh (Nguồn: Internet)

Tham khảo thiết kế nhà cấp 4 3 phòng ngủ mái bằng đẹp, hiện đại với mặt tiền thông thoáng (Nguồn: Internet)

Phá cách trong thiết kế nhà cấp 4 đẹp 3 phòng ngủ với kiểu mái lệch hiện đại, độc đáo, hạn chế tình trạng ứ đọng nước vào mùa mưa (Nguồn: Internet)

Nếu diện tích đất rộng hơn, bạn có thể tham khảo nhà cấp 4 nông thôn 3 phòng ngủ 120m2 với phần mái lệch mới lạ này (Nguồn: Internet)

Mẫu nhà cấp 4 3 phòng ngủ đẹp, hiện đại, được ưa chuộng nhất hiện nay (Nguồn: Internet)

Khu vực sân rộng rãi, thoáng mát của nhà cấp 4 đẹp 3 phòng ngủ mà gia chủ có thể tận dụng làm chỗ đậu đỗ xe tiện nghi (Nguồn: Internet)
>> Để nhận thông tin và báo giá chi tiết hệ trần - tường - vách thạch cao làm nhà cấp 4 có 3 phòng ngủ, vui lòng bấm:
Mẫu nhà cấp 4 với 3 phòng ngủ nông thôn rất phù hợp với lối kiến trúc hài hòa với thiên nhiên, không quá cầu kỳ. Kiểu nhà cấp 4 nông thôn này thích hợp với thiết kế hình khối vuông vức cùng gam màu trắng tối giản.

Mẫu nhà cấp 4 đẹp 3 phòng ngủ đẹp, thiết kế đơn giản cho khu vực nông thôn (Nguồn: Internet)
Một kiểu thiết kế với mẫu nhà cấp 4 với 3 phòng ngủ mà bạn có thể tham khảo là phong cách Châu Âu hiện đại, đơn giản. Kiểu nhà này thường có khu vực sân vườn thoáng mát, sử dụng hệ thống giếng trời bên hông để tận dụng tối đa ánh sáng tự nhiên. Đặc biệt, cách phối màu nâu gỗ mang đến một không gian sinh hoạt ấm cúng cho gia đình.

Mẫu nhà cấp 4 3 phòng ngủ đẹp, thiết kế hiện đại (Nguồn: Internet)
Nhà cấp 4 ở Việt Nam thường được thiết kế theo phòng cách hình chữ L. Với thiết kế này, bạn sẽ có một khu vực sinh hoạt rộng rãi, thoải mái hơn. Bạn có thể xây dựng một ngôi nhà sang trọng, hiện đại bằng cách sử dụng cửa kính hoặc đồ nội thất bằng gỗ.

Mẫu nhà cấp 4 đẹp 3 phòng ngủ chữ L phổ biến (Nguồn: Internet)
Mẫu nhà cấp 4 thiết kế mái Thái sẽ giúp tổng quan ngôi nhà cao ráo, thông thoáng hơn. Nếu không muốn đi theo hơi hướng truyền thống, bạn có thể lựa chọn mái ngói màu xám, cùng tone với màu sơn để hài hòa hơn.

Mẫu nhà cấp 4 mái Thái 3 phòng ngủ nhỏ với thiết kế đơn giản (Nguồn: Internet)
Tham khảo thêm:
Thiết kế nhà cấp 4 mái Nhật với 3 phòng ngủ đang được nhiều người ưa thích và khá phổ biến trong những năm gần đây. Kiểu nhà này thường có phần mái thoải hơn mái Thái, dung hòa giữa phong cách phương Đông và phương Tây.

Mẫu nhà mái Nhật đơn giản nhưng không kém phần hiện đại, sang trọng (Nguồn: Internet)
Tham khảo thêm:
Việc xây dựng các mẫu nhà cấp 4 mái bằng với 3 phòng ngủ thường đơn giản hơn so với các kiểu mái khác. Các chi tiết của kiểu nhà này không quá cầu kỳ, giúp bạn có thể rút ngăn thời gian xây dựng và đưa vào sử dụng một cách nhanh chóng.

Mẫu nhà cấp 4 mái bằng 5x20 với 3 phòng ngủ nhỏ đẹp, sang trọng (Nguồn: Internet)
Tham khảo thêm:
Nếu muốn xây dựng nhà cấp 4 theo phong cách mới lạ, độc đáo thì bạn có thể lựa chọn mái lệch. Đặc biệt, kiểu mái này có độ dốc lý tưởng, hỗ trợ thoát nước nhanh, chống ứ đọng nước gây thấm dột trong mùa mưa.

Mẫu nhà cấp 4 5x20 mái lệch đẹp, thiết kế độc đáo (Nguồn: Internet)
Bạn có thể thiết kế mẫu nhà đẹp cấp 4 với 3 phòng ngủ mái tôn nhằm giảm chi phí xây dựng mà vẫn đảm bảo đầy đủ công năng và tính thẩm mỹ.

Mẫu nhà cấp 4 chữ L mái tôn có 3 phòng ngủ đẹp, tiết kiệm chi phí thi công (Nguồn: Internet)
>> Để nhận thông tin và báo giá chi tiết hệ trần - tường - vách thạch cao làm nhà cấp 4 có 3 phòng ngủ, vui lòng bấm:
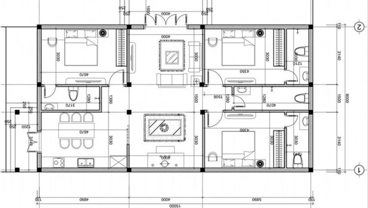
Mẫu nhà cấp 4 3 phòng ngủ 100m2 sở hữu không gian rộng rãi, phù hợp cho 3-5 thành viên sinh sống. Đối với kiểu nhà này, bạn nên sử dụng thiết kế đơn giản, không quá cầu kỳ và tập trung vào việc tối đa hóa công năng sử dụng.

Mẫu nhà cấp 4 3 phòng ngủ 100m2 đẹp, thiết khu vực sân rộng rãi (Nguồn: Internet)
Mẫu nhà cấp 4 với 3 phòng ngủ 120m2 thường được thiết kế theo cấu trúc liền mạch, các phòng được sắp xếp hợp lý, phù hợp và tính thẩm mỹ cao.

Mẫu nhà cấp 4 đẹp 3 120m2 rộng rãi, sân vườn thoáng mát (Nguồn: Internet)
Nhà cấp 4 với 3 phòng ngủ với bếp riêng sẽ tạo sự thoải mái và tiện nghi trong sinh hoạt cho các thành viên.

Mẫu nhà cấp 4 được thiết kế khu vực bếp và phòng ăn riêng biệt (Nguồn: Internet)
Gác lửng là phương án tối ưu nhất cho những ngôi nhà cấp 4 với 3 phòng ngủ có diện tích khiêm tốn. Kiểu nhà này mang vẻ hiện đại, giảm chi phí xây dựng đáng kể.

Mẫu nhà gác lửng giúp mở rộng không gian sinh hoạt (Nguồn: Internet)
Thiết kế phòng thờ riêng biệt sẽ giúp bạn đảm bảo được tính riêng tư và thiêng liêng khi làm lễ bái. Bên cạnh đó, bạn cũng có thể xây dựng phòng thờ bên cạnh phòng khách, sử dụng hệ thống vách ngăn để tối ưu diện tích nhưng vẫn đảm bảo tính thẩm mỹ.

Bản vẽ nhà cấp 4 đẹp 3 phòng ngủ 1 phòng thờ cùng mẫu nhà đẹp (Nguồn: Internet)

Mẫu nhà cấp 4 3 phòng ngủ 1 phòng thờ đơn giản, hiện đại, đẹp kèm bản vẽ (Nguồn: Internet)

Thiết kế gian phòng thờ riêng biệt bên trong các ngôi nhà cấp 4 3 phòng ngủ 1 phòng thờ (Nguồn: Internet)
Nếu bạn đang có ý định xây dựng nhà cấp 4 với 3 phòng ngủ thì cần lưu ý một số điểm như sau:
Việc thiết kế, thi công trần nhà đẹp đúng quy cách là một trong những yếu tố quan trọng giúp tạo nên ngôi nhà cấp 4 gồm 3 phòng ngủ sang trọng, vững chắc. Để đảm bảo cả hai yếu tố bền đẹp và chất lượng, bạn nên tham khảo hệ thống trần chính hãng từ Vĩnh Tường:
1. Trần thạch cao Vĩnh Tường SIÊU BẢO VỆ
Trần thạch cao Vĩnh Tường SIÊU BẢO VỆ có cấu tạo từ Tấm thạch cao Siêu Bảo Vệ VĨNH TƯỜNG-gyproc và khung trần chìm Vĩnh Tường BASI® Plus hoặc khung trần chìm Vĩnh Tường ALPHA. Tất cả hình thành nên một hệ trần nhà cấp 4 có 3 phòng ngủ bền đẹp với các tính năng nổi bật: siêu thanh lọc không khí 80%, siêu chống nồm ẩm, siêu chống nứt, chống võng và chống cháy hiệu quả.
2. Trần thạch cao Vĩnh Tường – Siêu Bền X
Với cấu tạo từ Tấm Thạch Cao VĨNH TƯỜNG-gyproc Siêu Bền X và Khung trần chìm Vĩnh Tường TIKA® hoặc Khung trần chìm Vĩnh Tường ALPHA®, sản phẩm có nhiều tính năng nổi bật như:
3. La phông Vĩnh Tường Ánh Kim
La phông Vĩnh Tường Ánh Kim được làm từ nền tấm xi măng siêu bền DURAflex 2X, có kích thước 605x605 hoặc 605x1210, phù hợp với kiểu nhà cấp 4 đẹp 3 phòng ngủ. Sản phẩm sở hữu những ưu điểm vượt trội:
Đẹp: La phông Vĩnh Tường Ánh Kim có nhiều mẫu hoa văn độc đáo, họa tiết ánh kim sắc nét, mang đến hệ trần thẩm mỹ và sang trọng.
Mát: Lớp giấy bạc ở mặt lưng tấm hỗ trợ cách nhiệt, chống nóng hiệu quả, có thể giảm nhiệt độ không gian đến 5 độ C, giúp nhà bạn luôn mát mẻ, dễ chịu, rất phù hợp với khí hậu nóng ẩm.
Bền màu: Sản phẩm được làm từ chất liệu cao cấp, ngăn chặn các tác nhân gây lão hóa màu sắc. Nhờ đó, trần nhà luôn sáng bóng và giữ được màu sắc bền bỉ trên 5 năm, kèm theo bảo hành 5 năm về độ bền màu và họa tiết, hạn chế bay màu và xuống cấp.
Không cong vênh: Giữ cho bề mặt trần luôn phẳng đẹp theo thời gian, đảm bảo tính thẩm mỹ và độ bền công trình.
Dễ thi công: Có thể cắt góc nhỏ mà không làm bể mẻ cạnh; phần cạnh sau khi cắt vẫn mịn màng, sắc nét, đảm bảo tính hoàn thiện cao cho toàn bộ hệ trần.
Kháng ẩm, chịu nước tốt: Không bị ảnh hưởng bởi thời tiết hay độ ẩm, giúp trần nhà luôn bền đẹp qua nhiều năm sử dụng.
An toàn tuyệt đối cho người sử dụng: Cam kết "5 không": Không bay màu – Không giòn bể – Không bắt cháy – Không chứa chất độc hại – Không bay thóc.

Bộ sưu tập 5 mẫu Tấm trang trí Vĩnh Tường DECO® Ánh Kim mới nhất
Mọi thông tin chi tiết và báo giá hệ trần Vĩnh Tường chính hãng cho nhà cấp 4 có 3 phòng ngủ, các bạn có thể liên hệ với Vĩnh Tường qua:
Tổng đài chăm sóc khách hàng: chamsockhachhang@vinhtuong.com
Hotline: 1800-1218
Chi phí xây dựng nhà cấp 4 với 3 phòng ngủ sẽ tùy thuộc vào đặc điểm, vật liệu và thiết kế của công trình. Để được tư vấn và báo giá chi tiết, bạn vui lòng liên hệ trực tiếp đơn vị thi công.
Chi phí xây nhà cấp 4 có 3 phòng ngủ sẽ phụ thuộc vào bản vẽ thiết kế và vật liệu xây dựng, bạn vui lòng liên hệ đơn vị thi công để nhận báo giá chi tiết.
Nhà cấp 4 có 3 phòng ngủ thường không “kén” phong cách thiết kế, bạn có thể lựa chọn mái bằng hiện đại, mái Thái truyền thống hoặc mái lệch độc đáo. Tuy nhiên, hãy đảm bảo màu sắc hài hòa giữa phần mái, phần tường nhà và nội thất.
Qua bài viết trên, Vĩnh Tường đã chia sẻ đến bạn top 20+ mẫu thiết kế nhà cấp 4 3 phòng ngủ đẹp, hiện đại, hot nhất hiện nay. Hy vọng những thông tin trên có thể giúp bạn lựa chọn cho mình một mẫu nhà cấp 4 đẹp 3 phòng ngủ phù hợp và ưng ý. Nếu có bất kỳ thắc mắc nào hoặc cần tư vấn vật liệu thạch cao Vĩnh Tường, quý khách vui lòng liên hệ qua:
Thứ 2 - Thứ 6: Từ 8h30 – 17h30
Thứ 7: Từ 8h00 - 12h00