vinhtuong đăng vào lúc 22/02/2026 - 13:39
Mẫu nhà cấp 4 đẹp mái Nhật là thiết kế nhà mái ngói đang được rất nhiều người ưa chuộng, đáp ứng được yêu cầu về công năng sử dụng và vẻ ngoài thẩm mỹ. Hãy cùng Vĩnh Tường tìm hiểu top 30 mẫu nhà cấp 4 mái Nhật 3 phòng ngủ đẹp nhất 2026 dưới bài viết sau nhé!
Hiện nay, nhà mái Nhật cấp 4 có 2 dạng chính là mái ngói dốc và mái ngói phẳng. Hai loại mái này có những điểm khác biệt cơ bản sau:
Mái ngói dốc: Mái nhà kiểu Nhật sẽ được thiết kế ra nhiều hướng, với các mái lớn xếp chồng lên nhau, tạo cảm giác gợn sóng mềm mại.
Mái ngói phẳng: Kiểu mái này có đặc điểm là phần mái rộng và căng ra cả 4 góc, giúp hạn chế mưa nắng hắt vào nhà. Các gia đình trẻ thường yêu thích và lựa chọn loại mái này.

Mái nhà cấp 4 mái Nhật có độ dốc thấp với các lớp xếp chồng lên nhau mềm mại (Nguồn: Internet)

Mẫu nhà cấp 4 đẹp giá rẻ 300 triệu mái Nhật 3 phòng ngủ hiện đại, tiện nghi, sang trọng (Nguồn: Internet)

Mẫu nhà cấp 4 mái Nhật 3 phòng ngủ 9x12m với hai mái chính phụ thẳng hàng kết hợp trần thạch cao giật cấp (Nguồn: Internet)

Mẫu nhà 3 gian mái Nhật đơn giản, thiết kế cổng độc đáo, đẹp mắt (Nguồn: Internet)

Mẫu nhà cấp 4 mái Nhật 3 phòng ngủ có trần nhà đẹp, chi phí xây dựng thấp, có bãi đỗ xe ô tô (Nguồn: Internet)
>> Xem thêm:
Cả 2 loại nhà mái Thái cấp 4 hay mái Nhật đều sử dụng vật liệu ngói để lợp mái, giúp ngôi nhà mát mẻ và thẩm mỹ hơn. Tuy vậy, hai kiểu nhà này vẫn có một số điểm khác nhau như:
Nhà cấp 4 mái Thái 3 phòng ngủ có phần mái dốc, đỉnh chóp cao và nhọn hơn.
Nhà cấp 4 mái Nhật 3 phòng ngủ có độ dốc dưới 40%, đảm bảo nước mưa có thể thoát ra ngoài và giúp cân bằng khuôn mái một cách hợp lý.
>>Tham khảo thêm:

Nhà mái Nhật 3 phòng ngủ có lắp đặt trần nổi và thiết kế nhiều cửa kính để đón ánh sáng tự nhiên (Nguồn: Internet)
Trần nhà cấp 4 khi được thiết kế và xây dựng phải phù hợp với phong cách và phối cảnh tổng thể. Đồng thời, đảm bảo vững kết cấu để tăng tính chịu lực cho phần mái, trần thạch cao chống nóng, cách nhiệt hiệu quả. Để đáp ứng những yêu cầu đó, bạn có thể lựa chọn hệ trần Vĩnh Tường bền đẹp, chính hãng. Nổi bật với 3 sản phẩm:
1. Trần thạch cao Vĩnh Tường SIÊU BẢO VỆ
Trần thạch cao Vĩnh Tường SIÊU BẢO VỆ là sự kết hợp hoàn hảo giữa Tấm thạch cao Siêu Bảo Vệ VĨNH TƯỜNG-gyproc và Khung trần chìm Vĩnh Tường BASI® hoặc Khung trần chìm Vĩnh Tường ALPHA®. Tất cả tạo nên một hệ trần nhà cấp 4 mái Nhật 3 phòng ngủ bền đẹp, an toàn cho sức khỏe, nổi bật với các tính năng: siêu thanh lọc không khí 80%, siêu chống cháy, siêu chống nồm ẩm, siêu chống võng, siêu chống nứt.
2. Trần thạch cao Vĩnh Tường Siêu Bền X
Hệ trần này có cấu tạo từ Tấm Thạch Cao VĨNH TƯỜNG-gyproc Siêu Bền X và Khung trần chìm Vĩnh Tường TIKA® hoặc khung trần chìm Vĩnh Tường ALPHA®. Nhờ công nghệ Lõi Tổ Ong kết hợp Sợi Siêu Bền, hệ trần có tính năng chống võng vượt trội, trọng lượng nhẹ hơn 10% các tấm thạch cao thông thường. Đồng thời, hệ trần còn sở hữu khả năng uốn cong linh hoạt, giúp gia chủ và thầu thợ có thể thiết kế nhiều kiểu dáng trần chìm đẹp mắt, ấn tượng.
3. La phông Vĩnh Tường Ánh Kim
Thiết kế la phông Vĩnh Tường phù hợp với kiểu nhà cấp 4 mái Nhật 3 phòng ngủ bởi có thể thi công nhanh và đa dạng mẫu mã. Bởi la phông là vật liệu có nhiều ưu điểm, đặc biệt là mẫu la phông Vĩnh Tường Ánh Kim:
Không cong vênh, đảm bảo bề mặt trần luôn phẳng đẹp.
Khả năng cách nhiệt vượt trội, giúp giảm nhiệt lên đến 5 độ C, mang lại không gian sống mát mẻ, thoáng đãng.
Dễ cắt góc nhỏ, không bể mẻ cạnh, bề mặt cạnh tấm sau khi cắt vẫn mịn đẹp, thuận lợi cho thi công.
Chịu nước, bền trên 5 năm, không bị ảnh hưởng bởi độ ẩm và thời tiết.
Bảo hành 5 năm bay màu hoa văn, giữ trọn vẻ đẹp lâu dài.
An toàn và thân thiện, với cam kết "5 không": Không bay màu – Không giòn bể – Không cháy – Không độc hại – Không bay thóc.

Bộ sưu tập 5 mẫu Tấm trang trí Vĩnh Tường DECO® Ánh Kim mới nhất
Vui lòng liên hệ với Vĩnh Tường để được tư vấn thông tin chi tiết và báo giá hệ trần nhà cấp 4 mái Nhật 3 phòng ngủ:
Hotline: 1800-1218
Bạn có thể lựa chọn xây nhà cấp 4 mái Nhật 3 phòng ngủ ở nông thôn thay cho những ngôi nhà mái Thái đã quá phổ biến. Mẫu nhà cấp 4 nông thôn đơn giản này thường có thiết kế không quá cầu kỳ và khoảng sân rộng.

Mẫu nhà cấp 4 đẹp 5x20 với thiết kế mái Nhật đơn giản, hiện đại (Nguồn: Internet)

Mẫu nhà cấp 4 mái Nhật 3 phòng ngủ nông thôn đẹp đẽ, có lắp đặt vật liệu cách âm cách nhiệt (Nguồn: Internet)

Mẫu thiết kế nhà cấp 4 mái Nhật 3 phòng ngủ đơn giản với lối vào lát gạch giả cỏ và tường thạch cao đẹp cho ngôi nhà (Nguồn: Internet)

Bản vẽ nhà mái nhật 1 tầng 3 phòng ngủ đơn giản, giá rẻ tiết kiệm chi phí ở nông thôn (Nguồn: Internet)
>> Xem thêm
Hiện nay, các gia đình trẻ thường ưa chuộng mẫu nhà cấp 4 mái Nhật 3 phòng ngủ hiện đại. Trong đó, thiết kế phổ biến là 1 phòng ngủ master cho bố mẹ và 2 phòng ngủ nhỏ cho các con, đảm bảo tiện ích và sự hài hòa cho không gian.

Mẫu nhà 3 gian mái Nhật thiết kế 1 tầng và trần thạch cao nổi mang phong cách hiện đại (Nguồn: Internet)

Mẫu nhà cấp 4 mái Nhật 3 phòng ngủ 120m2 trần hộp có tiểu cảnh và chỗ đậu xe hơi (Nguồn: Internet)

Mẫu nhà cấp 4 mái Nhật 3 phòng ngủ có lắp đặt trần giật cấp được ưa chuộng, phổ biến nhất hiện nay (Nguồn: Internet)

Mẫu nhà cấp 4 mái Nhật 3 phòng ngủ độc đáo, thêm cây xanh để tạo bóng mát (Nguồn: Internet)

Nhà cấp 4 mái Nhật 3 phòng ngủ có trang trí tường nhà đẹp với hiện đại kết hợp thêm cửa gỗ sang trọng (Nguồn: Internet)

Mẫu nhà cấp 4 mái Nhật đẹp, thiết kế tường trắng mái đỏ lạ mắt (Nguồn: Internet)

Mẫu nhà 3 gian mái nhật thiết kế 1 tầng đẹp có lắp đặt trần thạch cao chìm, mặt tiền vân đá tinh tế (Nguồn: Internet)

Bản vẽ nhà mái nhật 1 tầng 3 phòng ngủ giá rẻ, tiết kiệm chi phí (Nguồn: Internet)
>> Để nhận thông tin và báo giá chi tiết hệ trần - tường - vách thạch cao làm nhà cấp 4 mái Nhật 3 phòng ngủ, vui lòng bấm:
>> Tìm hiểu thêm về nồm ẩm miền Bắc:
Nếu muốn xây nhà cấp 4 mái Nhật sang trọng, theo hơi hướng biệt thự mini, bạn có thể tham khảo mẫu thiết kế dưới đây. Lấy cảm hứng từ thiết kế nhà kiểu Nhật, không gian nên được bố trí nội thất tinh gọn, ưu tiên tone màu nâu và hệ thống đèn vàng ấm cúng. Phòng khách có thể tạo điểm nhấn bằng vách ngăn cầu thang tam cấp gỗ kết hợp kệ ti vi.

Mẫu nhà cấp 4 3 phòng ngủ mái Nhật sang trọng, thiết kế hơi hướng biệt thự mini (Nguồn: Internet)

Mẫu nhà cấp 4 mái Nhật 3 phòng ngủ đẹp với thiết kế tinh tế, nguy nga (Nguồn: Internet)

Mẫu nhà cấp 4 mái Nhật 3 phòng ngủ có lắp đặt trần thạch cao tân cổ điển kiểu biệt thự lộng lẫy, khang trang (Nguồn: Internet)

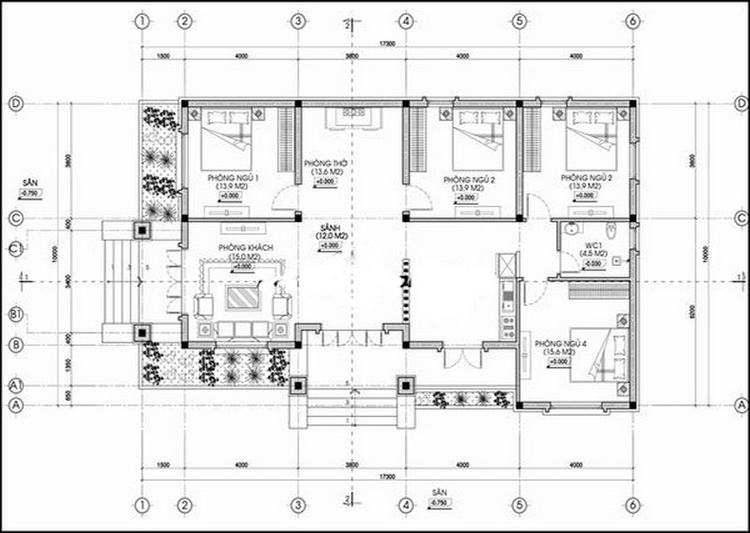
Bản vẽ nhà mái nhật 1 tầng 3 phòng ngủ 1 phòng thờ sang trọng, đẳng cấp (Nguồn: Internet)
>> Xem thêm:
Mẫu nhà cấp 4 đẹp 100m2 3 phòng ngủ nổi bật với thiết kế mái Nhật, không gian rộng rãi, phù hợp cho gia đình 3-6 thành viên. Với kiểu nhà này, bạn nên sử dụng vách ngăn phòng khách và bếp để tạo điểm nhấn cho không gian và giảm bớt mùi thức ăn lan ra khắp nhà. Vách thạch cao này có thể tích hợp hệ tủ để thuận tiện cho việc lưu trữ đồ đạc.

Mẫu nhà cấp 4 mái nhật 3 phòng ngủ 100m2 có lắp đặt tấm thạch cao giá rẻ nhưng đẹp, hiện đại(Nguồn: Internet)

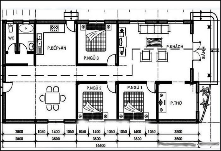
Bản vẽ nhà cấp 4 mái Nhật 3 phòng ngủ 100m2 với công năng đầy đủ (Nguồn: Internet)
>> Xem thêm:
Kiểu nhà này thường được thiết kế theo cấu trúc liền mạch và các phòng được sắp xếp hợp lý, phù hợp và tính thẩm mỹ cao. Không gian bên phải nên thi công phòng khách và bến liên thông, còn bên trái có thể bố trí phòng ngủ cho ông bà và bên ngoài làm khu vực giải trí cho các con ngay cạnh kệ ti vi.

Mẫu nhà cấp 4 mái Nhật có 3 phòng ngủ và phòng khách đẹp, rộng 120m2 với phần mái lắp cửa thông gió (Nguồn: Internet)

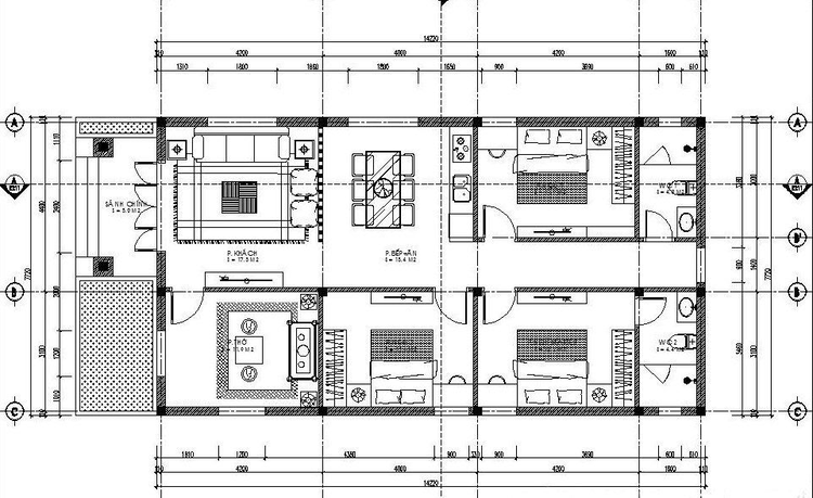
Bản vẽ nhà cấp 4 mái Nhật 3 phòng ngủ hợp phong thủy, đem lại may mắn cho gia đình (Nguồn: Internet)
>> Xem thêm:
Mẫu nhà cấp 4 chữ L mái Nhật 3 phòng ngủ sẽ giúp không gian trong nhà thông thoáng hơn, thiết kế 2 cửa chính tiện lợi cho việc sinh hoạt. Đặc biệt, bạn có thể tận dụng phần sân khuyết góc để làm sân phơi hoặc chỗ đậu xe. Bên trong có thể bố trí đầy đủ công năng, từ phòng khách, phòng bếp đến phòng ngủ và các khu vực nhà vệ sinh, nhà tắm.

Mẫu nhà cấp 4 chữ L 3 phòng ngủ thiết kế mái Nhật đẹp có lắp tấm tiêu âm, hiện đại (Nguồn: Internet)

Mẫu nhà cấp 4 mái Nhật 3 phòng ngủ tiện nghi có ống khói và hai cửa chính (Nguồn: Internet)
>> Xem thêm:
Đặc trưng của nhà cấp 4 mái Nhật là thường kết hợp cùng khoảng sân vườn thoáng rộng. Gia chủ có thể tận dụng phần không gian này để làm chỗ đậu xe hoặc đặt bàn ghế sinh hoạt ngoài trời. Tổng thể kiến trúc ngôi nhà nên lấy cảm hứng theo nhà ba gian để có thể hứng gió và ngắm cảnh từ khu vườn xung quanh.

Mẫu nhà vườn đẹp với sân vườn gần gũi thiên nhiên, thiết kế cửa sổ nhôm kính đón ánh sáng (Nguồn: Internet)

Tham khảo mẫu nhà cấp 4 mái Nhật 3 phòng ngủ có sân vườn đơn giản (Nguồn: Internet)
>> Để nhận thông tin và báo giá chi tiết hệ trần - tường - vách thạch cao làm nhà cấp 4 mái Nhật 3 phòng ngủ, vui lòng bấm:
>> Xem thêm:
Nếu diện tích đất thi công đủ rộng, bạn nên thiết kế không gian phòng thờ riêng biệt để đảm bảo tính trang nghiêm. Với những mẫu nhà có diện tích hạn chế hơn có thể sử dụng vách ngăn phòng thờ để phân chia linh hoạt và vẫn đảm bảo tính trang nghiêm cho khu vực linh thiêng.

Tham khảo thiết kế phòng thờ đẹp riêng biệt trong nhà cấp 4 (Nguồn: Internet)

Mẫu nhà cấp 4 mái Nhật 3 phòng ngủ đơn giản, sang trọng (Nguồn: Internet)
>> Xem thêm:
Bạn có thể lựa chọn xây nhà cấp 4 mái Nhật 3 phòng ngủ với chi phí thi công thấp dưới đây. Với mẫu nhà đẹp này, bạn không cần phải thiết kế quá cầu kỳ và nên tập trung vào tối ưu công năng sử dụng. Phòng ngủ có thể ưu tiên để đảm bảo sự thoải mái còn lại thiết kế phòng khách, phòng bếp và 1-2 nhà vệ sinh nhỏ.

Mẫu nhà cấp 4 mái Nhật đẹp, chi phí thi công thấp (Nguồn: Internet)

Mẫu nhà cấp 4 mái Nhật 3 phòng ngủ nhỏ chi phí thấp dạng chữ U (Nguồn: Internet)
Tham khảo thêm:
Xác định thời gian bắt đầu: Các dự án xây dựng sẽ được tiến hành thuận lợi, đúng tiến độ và đạt chất lượng cao nhất nhờ vào việc tính toán thời gian khởi công một cách hợp lý.
Tìm hiểu nguồn vật liệu xây dựng: Để chọn được vật liệu chất lượng cao với giá cả phải chăng, bạn có thể tham khảo những ngôi nhà đã được xây dựng và so sánh giá cả và chất lượng tại các nhà cung cấp khác để có thông tin khách quan nhất.
Lựa chọn đơn vị thi công đáng tin cậy: Đây là một yếu tố quan trọng, bạn nên xem xét nhiều đơn vị khác nhau trước khi quyết định chọn một đơn vị ưng ý nhất.
Tính toán chi phí xây nhà: Việc này sẽ giúp dễ dàng hơn trong việc lựa chọn loại nhà và phong cách phù hợp.

Xây dựng nhà cấp 4 mái Nhật 3 phòng ngủ cần tìm đơn vị cung cấp vật liệu uy tín (Nguồn: Internet)
>> Xem thêm:
Chi phí xây dựng nhà cấp 4 mái Nhật 3 phòng ngủ sẽ tùy thuộc vào phong cách thiết kế, nguyên vật liệu, nhân công,... Từ số lượng phòng, số lượng vách như vách ngăn cầu thang, vách ngăn phòng khách hoặc vách ngăn phòng ngủ,... đều sẽ phát sinh thêm chi phí.Bạn vui lòng liên hệ trực tiếp đơn vị thi công để nhận báo giá chi tiết.

Chi phí xây dựng nhà cấp 4 mái Nhật 3 phòng ngủ tùy thuộc vào rất nhiều yếu tố (Nguồn: Internet)
Mẫu nhà cấp 4 mái Nhật lấy ý tưởng từ Nhật Bản nhưng khi du nhập vào Việt Nam thì đã có sự điều chỉnh để phù hợp với thẩm mỹ và điều kiện khí hậu của Việt Nam. Mái Nhật có độ dốc nhẹ, đảm bảo được tính thoát nước khi trời mưa.
>> Tìm hiểu thêm:
Chi phí xây dựng nhà cấp 4 mái Nhật 3 phòng ngủ sẽ tùy thuộc vào phong cách thiết kế, nguyên vật liệu, nhân công,... Bạn vui lòng liên hệ trực tiếp đơn vị thi công để nhận báo giá chi tiết.
>> Xem thêm:
Trong bài viết trên, Vĩnh Tường đã giúp bạn tổng hợp các mẫu nhà cấp 4 mái Nhật 3 phòng ngủ đẹp, hiện đại, hợp xu hướng. Hy vọng bạn có thể tìm được thiết kế đúng với sở thích, nhu cầu sử dụng và chi phí thi công hiện có. Nếu cần hỗ trợ, tư vấn thêm về vật liệu thạch cao làm trần nhà cấp 4 đẹp, quý khách vui lòng liên hệ với Vĩnh Tường thông qua:
Thứ 2 - Thứ 6: Từ 8h30 – 17h30
Thứ 7: Từ 8h00 - 12h00
Tag: la phông trần thạch cao, la phông cách nhiệt, vách tiêu âm, tấm cách nhiệt chống cháy, vật liệu cách âm phòng ngủ, tấm cách nhiệt, chống nóng tường nhà, cách làm nhà mát vào mùa hè, bạc cách nhiệt, tường bị ẩm mốc, chống ẩm mốc, trần thạch cao bị thấm nước, cách chống nóng cho nhà mái bằng, cách nhiệt tường hướng tây, trần thạch cao phòng khách, trần thạch cao phòng thờ, trần thạch cao phòng bếp, trần thạch cao phòng ngủ, trần thạch cao văn phòng