vinhtuong đăng vào lúc 09/10/2025 - 18:00
Mẫu nhà cấp 4 đẹp giá rẻ 300 triệu là lựa chọn hoàn hảo cho các gia đình tại nông thôn và ngoại ô thành phố. Với thiết kế đơn giản giúp tối ưu hóa không gian và chi phí xây dựng, mẫu nhà đẹp này đảm bảo đầy đủ công năng sử dụng và mang đến một không gian sống thoải mái, hiện đại.

Mẫu nhà cấp 4 đẹp giá rẻ 300 triệu được ưa chuộng, mới nhất (Nguồn: Internet)
Mẫu nhà cấp 4 đẹp giá rẻ 300 triệu được ưa chuộng do tối ưu chi phí mà vẫn đầy đủ công năng và tiện nghi sinh hoạt. Mẫu nhà cấp 4 đẹp này sở hữu những đặc điểm nổi bật sau:
Không gian sống tiện nghi: Nhà cấp 4 được bố trí khoa học với phòng khách liền bếp, 2–3 phòng ngủ, phòng bếp và nhà vệ sinh, đáp ứng đầy đủ nhu cầu sinh hoạt cho cả gia đình.
Thiết kế linh hoạt: Đa dạng phong cách từ hiện đại, cổ điển đến tân cổ điển, dễ dàng lựa chọn theo sở thích và lối sống.
Chi phí hợp lý: Sử dụng vật liệu phổ biến giúp tối ưu chi phí xây dựng so với các loại hình nhà khác.
Thân thiện môi trường: Thiết kế nhiều cửa sổ lớn, tận dụng ánh sáng và gió tự nhiên, giúp tiết kiệm điện năng và mang lại không gian sống trong lành.
Nhà cấp 4 hiện đại giá rẻ 300 triệu là ngôi nhà lý tưởng cho những gia đình trẻ, vợ chồng mới cưới hoặc những người có thu nhập thấp - trung bình. Để xây nhà cấp 4 đẹp, giá rẻ với ngân sách 300 triệu, bạn có thể tham khảo các mẫu nhà có diện tích nhỏ, thiết kế đơn giản và sử dụng vật liệu tiết kiệm. Một số gợi ý bao gồm nhà cấp 4 mái tôn hoặc mái bằng, với diện tích khoảng 50-60m2.

Mẫu nhà cấp 4 đẹp giá rẻ 300 triệu mới nhất 2025 (Nguồn: Internet)
>> Xem thêm:
Mẫu nhà cấp 4 mái Thái 300 triệu đang ngày càng được ưa chuộng tại các vùng nông thôn và ngoại ô. Thiết kế nhà mái Thái 300 triệu thường đơn giản, tinh tế với gam màu trung tính cùng hệ mái thái truyền thống đã tạo nên một phong cách kiến trúc vừa hiện đại, vừa gần gũi thiên nhiên.

Nhà cấp 4 mái Thái 3 phòng ngủ 300 triệu với không gian xanh (Nguồn: Internet)

Mẫu nhà cấp 4 mái Thái 8x12m giá rẻ 300 triệu tinh tế và sang trọng (Nguồn: Internet)

Mẫu nhà cấp 4 đẹp giá rẻ 300 triệu mái Thái tiện nghi (Nguồn: Internet)
>> Xem thêm:
Nhà cấp 4 mái Nhật giá 300 triệu là sự lựa chọn hoàn hảo cho những ai yêu thích phong cách kiến trúc Nhật Bản. Với thiết kế tối ưu hóa không gian và sử dụng vật liệu thân thiện với môi trường, nhà mái Nhật 300 triệu không chỉ đẹp mắt mà còn rất tiết kiệm năng lượng. Bạn sẽ có một không gian sống thoải mái, tràn đầy ánh sáng tự nhiên mà không cần phải lo lắng về vấn đề tài chính.

Mẫu nhà cấp 4 mái Nhật 4 phòng ngủ giá rẻ 300 triệu (Nguồn: Internet)

Mẫu nhà mái Nhật 1 tầng giá rẻ 300 triệu đơn giản, thanh lịch (Nguồn: Internet)

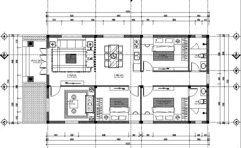
Bản vẽ nhà cấp 4 đẹp giá rẻ 300 triệu mái Nhật (Nguồn: Internet)
>> Tham khảo:
Với thiết kế đơn giản nhưng tinh tế, nhà cấp 4 mái bằng giá 300 triệu mang đến một không gian sống hiện đại và thoải mái. Nhiều ô cửa kính lớn được bố trí khéo léo, giúp ngôi nhà luôn tràn đầy ánh sáng tự nhiên và không khí trong lành.
Bên cạnh đó, các không gian chức năng trong nhà được sắp xếp một cách khoa học, tối ưu hóa diện tích sử dụng. Điều này giúp đáp ứng đầy đủ nhu cầu sinh hoạt của các gia đình có từ 2-4 thành viên.

Mẫu nhà cấp 4 đẹp giá rẻ 300 triệu mái bằng (Nguồn: Internet)

Nhà cấp 4 mái bằng 5x20 giá 300 triệu với không gian sống hiện đại (Nguồn: Internet)

Bản vẽ nhà cấp 4 đẹp giá rẻ 300 triệu 3D (Nguồn: Internet)
>> Xem thêm:
So với mái Thái hay mái Nhật, nhà cấp 4 đẹp giá rẻ 300 triệu sử dụng mái tôn có chi phí xây dựng và thời gian thi công ngắn hơn đáng kể. Tuy nhiên, vào mùa hè, mái tôn dễ hấp thụ nhiệt, khiến không gian sống trở nên nóng bức. Bên cạnh đó, tiếng ồn do mưa rơi trên mái tôn cũng là một hạn chế cần cân nhắc.

Mẫu nhà cấp 4 đẹp 5x20 giá rẻ 300 triệu kết hợp mái tôn (Nguồn: Internet)

Mẫu nhà cấp 4 đẹp mái tôn đẹp, giá 300 triệu (Nguồn: Internet)

Mẫu nhà cấp 4 đẹp giá rẻ 300 triệu thiết kế mái tôn hiện đại (Nguồn: Internet)
>> Xem thêm:
Nhà cấp 4 mái lệch với mức đầu tư 300 triệu đang ngày càng được nhiều gia chủ ưa chuộng. Kiến trúc mái lệch, được cách điệu từ mái dốc truyền thống, đã tạo nên một phong cách độc đáo và ấn tượng cho ngôi nhà. Với hai kiểu mái phổ biến là dốc một phía hoặc dốc hai phía, nhà mái lệch không chỉ mang đến vẻ đẹp mới lạ mà còn giúp ngôi nhà trở nên thông thoáng và hiện đại hơn.

Mẫu nhà cấp 4 mái lệch đẹp 300 triệu (Nguồn: Internet)

Mẫu nhà cấp 4 đẹp giá rẻ 300 triệu mái lệch độc đáo (Nguồn: Internet)

Một số mẫu nhà cấp 4 mái lệch giá 300 triệu phù hợp cho những bạn trẻ yêu thích sự phá cách, mới mẻ (Nguồn: Internet)
>> Tham khảo:
Với mức đầu tư 300 triệu, nhà cấp 4 2 phòng ngủ là lựa chọn lý tưởng cho các cặp vợ chồng trẻ. Gia chủ có thể bố trí một phòng ngủ master với thiết kế nhà vệ sinh và nhà tắm riêng cho bố mẹ, một phòng ngủ nhỏ cho các con, đáp ứng đầy đủ nhu cầu sinh hoạt của gia đình nhỏ.

Mẫu nhà cấp 4 đẹp giá rẻ 300 triệu 2 phòng ngủ (Nguồn: Internet)

Mẫu nhà gác lửng 2 phòng ngủ giá rẻ chỉ 300 triệu (Nguồn: Internet)

Mẫu nhà cấp 4 đẹp giá rẻ 300 triệu có 2 phòng ngủ, 1 bếp, 1 phòng khách, 1 nhà vệ sinh (Nguồn: Internet)
>> Xem thêm:
Với mức đầu tư 300 triệu đồng, bạn hoàn toàn có thể sở hữu một ngôi nhà đẹp, hiện đại với đầy đủ tiện nghi. Mẫu nhà cấp 4 3 phòng ngủ 300 triệu thường được thiết kế với 3 phòng ngủ, phòng khách, bếp ăn kết hợp linh hoạt, cùng các không gian phụ như phòng tắm, nhà vệ sinh. Đặc biệt, mặt tiền nhà cấp 4 đẹp 3 phòng ngủ 300 triệu được chú trọng thiết kế, tạo điểm nhấn ấn tượng và không gian bên trong được bố trí khoa học, tận dụng tối đa ánh sáng tự nhiên.

Mẫu nhà cấp 4 mái nhật 3 phòng ngủ 3 phòng ngủ (Nguồn: Internet)

Mẫu nhà cấp 4 nông thôn 3 phòng ngủ giá 300 triệu (Nguồn: Internet)

Mẫu nhà cấp 4 đẹp giá rẻ có 3 phòng ngủ phù hợp với gia đình có 3-6 thành viên (Nguồn: Internet)

Bản vẽ nhà cấp 4 3 phòng ngủ 100m2 giá rẻ chỉ 300 triệu với đầy đủ tiện nghi cho cả gia đình (Nguồn: Internet)
>> Xem thêm:
Mẫu nhà cấp 4 chữ L giá 300 triệu đang ngày càng được ưa chuộng nhờ thiết kế thông minh và tính thẩm mỹ cao. Với cấu trúc hình chữ L đặc trưng, ngôi nhà không chỉ tận dụng tối đa diện tích đất mà còn tạo ra không gian sống đa dạng và linh hoạt.
Nhà chữ L thường được thiết kế phòng khách ngay khi bước vào nhà, tạo cảm giác ấm cúng, sang trọng cho căn nhà. Bên cạnh đó, phòng ngủ nhà cấp 4 chữ L thường có 3 phòng ngủ, được bố trí khoa học, đảm bảo sự riêng tư cho từng thành viên. Ngoài ra, nhà bếp thường nằm đối diện với các phòng khách, thuận tiện cho việc nấu nướng và sinh hoạt hàng ngày, có thể kết hợp vách ngăn phòng khách để giảm bớt mùi đồ ăn bay vào không gian chung.

Mẫu nhà cấp 4 chữ L đẹp giá 300 triệu (Nguồn: Internet)

Mẫu nhà cấp 4 chữ L với tính thẩm mỹ cao (Nguồn: Internet)

Nhà cấp 4 đẹp giá rẻ 300 chữ L hiện đại, tinh tế (Nguồn: Internet)
>> Xem thêm:
Với diện tích đất hạn hẹp, nhà cấp 4 gác lửng là giải pháp tối ưu để bạn có được không gian sống rộng rãi và thoải mái mà vẫn tiết kiệm chi phí. Tầng trệt thường được bố trí phòng khách, bếp ăn và một phòng ngủ, trong khi gác lửng là nơi lý tưởng để bố trí các phòng ngủ còn lại và phòng thờ. Thiết kế nhà gác lửng giúp tận dụng tối đa diện tích, mang đến không gian sống tiện nghi và hiện đại.

Mẫu nhà cấp 4 gác lửng đẹp, giá 300 triệu (Nguồn: Internet)

Mẫu trần thạch cao nhà gác lửng cấp 4 giúp tận dụng tối đa diện tích nhà ở (Nguồn: Internet)

Nhà cấp 4 đẹp giá 300 triệu có gác lửng là điểm nhấn cho ngôi nhà (Nguồn: Internet)
>> Xem thêm:
Với mức đầu tư 300 triệu, những nhà cấp 4 nông thôn đơn giản là lựa chọn lý tưởng, mang đến không gian sống tiện nghi, hiện đại, gần gũi với thiên nhiên. Các mẫu thiết kế thường ưu tiên sự tối giản, gọn gàng trong bố cục, tận dụng tối đa ánh sáng và gió trời để tạo cảm giác thông thoáng. Dù chi phí thấp, bạn vẫn có thể sở hữu một ngôi nhà đầy đủ công năng, bao gồm phòng khách, bếp, 1–2 phòng ngủ và khu vệ sinh riêng biệt thông qua vách ngăn phòng khách và bếp. Đây là giải pháp nhà ở phù hợp cho gia đình trẻ hoặc người lớn tuổi mong muốn một tổ ấm an yên giữa vùng quê thanh bình.

Mẫu nhà cấp 4 đẹp giá rẻ 300 triệu nông thôn (Nguồn: Internet)

Mẫu nhà cấp 4 ở nông thôn (Nguồn: Internet)

Mẫu nhà cấp 4 đẹp giá rẻ 300 triệu cho các gia chủ ở khu vực nông thôn (Nguồn: Internet)
>> Xem thêm:
Mẫu nhà đẹp cấp 4 giá 300 triệu là sự kết hợp hoàn hảo giữa vẻ đẹp hiện đại và tính ứng dụng cao. Với thiết kế đơn giản, tối ưu hóa không gian, ngôi nhà không chỉ mang đến một không gian sống thoải mái mà còn thể hiện gu thẩm mỹ tinh tế của gia chủ.

Mẫu nhà cấp 4 đẹp giá rẻ 300 triệu đơn giản (Nguồn: Internet)

Mẫu nhà cấp 4 đẹp, đơn giản giá 300 triệu (Nguồn: Internet)

Mẫu nhà đơn giản chỉ với 300 triệu nhưng đầy đủ tiện nghi (Nguồn: Internet)
>> Xem thêm:
Ngôi nhà cấp 4 giá rẻ 300 triệu với phong cách hiện đại sẽ mang đến cho bạn một không gian sống thoải mái, thư giãn. Thiết kế tối giản, sử dụng tông màu sáng và hệ thống cửa kính rộng giúp ngôi nhà luôn tràn đầy ánh sáng và gió mát, tạo cảm giác dễ chịu cho mọi thành viên trong gia đình

Mẫu nhà cấp 4 đẹp giá rẻ 300 triệu hiện đại (Nguồn: Internet)

Mẫu nhà cấp 4 hiện đại mang đến cho bạn không gian sống thoải mái (Nguồn: Internet)

Mẫu nhà cấp 4 đẹp giá rẻ 300 triệu mang phong cách hiện đại, cuốn hút (Nguồn: Internet)
>> Tham khảo:
Mẫu nhà cấp 4 đẹp giá rẻ 300 triệu tiện nghi thường đi theo xu hướng thiết kế tối giản, tập trung vào tối ưu công năng và tiết kiệm chi phí. Những ngôi nhà này thường tận dụng vật liệu hiện đại như kính cường lực, gỗ công nghiệp để giảm giá thành mà vẫn đảm bảo độ bền và tính thẩm mỹ cao.
Thay vì chạy theo những chi tiết cầu kỳ, phong cách hiện đại trong các mẫu nhà cấp 4 giá 300 triệu ưu tiên sự thông thoáng, bố cục hợp lý và tận dụng tối đa ánh sáng tự nhiên. Có thể kết hợp làm vách cầu thang tam cấp để không gian sống luôn sáng sủa, mát mẻ và dễ chịu. Mẫu nhà này là lựa chọn lý tưởng cho những ai mong muốn sở hữu một ngôi nhà đẹp, đầy đủ tiện nghi mà không cần đầu tư quá lớn.

Mẫu nhà cấp 4 đẹp giá rẻ 300 triệu tiện nghi, xu hướng tối giản (Nguồn: Internet)

Mẫu nhà cấp 4 tiện nghi, thẩm mỹ giá chỉ 300 triệu (Nguồn: Internet)
>> Tham khảo:
Mẫu nhà vườn cấp 4 đẹp giá rẻ 300 triệu là là xu hướng thiết kế nhà được ưa chuộng hiện nay nhờ chi phí hợp lý, không gian sống thoáng đãng và gần gũi thiên nhiên. Với thiết kế đơn giản, bố trí công năng thông minh và tận dụng tốt diện tích đất vườn, những mẫu nhà này không chỉ đáp ứng nhu cầu sinh hoạt cơ bản mà còn mang lại cảm giác thư thái, thoải mái cho gia chủ. Mẫu nhà vườn 300 triệu này là lựa chọn lý tưởng cho các gia đình ở nông thôn hoặc vùng ven đô đang tìm kiếm một tổ ấm vừa đẹp vừa tiết kiệm.

Mẫu nhà cấp 4 đẹp giá rẻ 300 triệu có sân vườn (Nguồn: Internet)

Mẫu nhà cấp 4 đẹp giá rẻ 300 triệu có sân vườn thoáng đãng (Nguồn: Internet)

Nhà cấp 4 giá rẻ 300 triệu có thêm sân vườn xanh ngát, mát mẻ (Nguồn: Internet)
>> Xem thêm:
Việc thiết kế gara ô tô ngay trong ngôi nhà cấp 4 đang trở thành xu hướng được nhiều gia đình tại các đô thị lựa chọn. Giải pháp này không chỉ giúp đảm bảo chỗ đậu xe an toàn mà còn tạo nên một không gian sống tiện nghi, hiện đại.

Mẫu nhà cấp 4 đẹp giá rẻ 300 triệu có gara (Nguồn: Internet)

Mẫu nhà cấp 4 đẹp giá rẻ 300 triệu có gara tiện nghi (Nguồn: Internet)

Nhà cấp 4 có gara để xe ô tô, xe máy rộng rãi (Nguồn: Internet)
>> Xem thêm:
Ngôi nhà cấp 4 3 phòng ngủ phong cách Nhật Bản với mức đầu tư 300 triệu là sự kết hợp hoàn hảo giữa vẻ đẹp tinh tế và tính kinh tế. Với thiết kế tối giản, ngôi nhà không chỉ tiết kiệm chi phí xây dựng mà còn mang đến không gian sống hiện đại, phù hợp với xu hướng sống của giới trẻ.

Mẫu nhà cấp 4 đẹp giá rẻ 300 triệu kiểu Nhật (Nguồn: Internet)

Mẫu nhà cấp 4 3 phòng ngủ phong cách Nhật Bản với mức đầu tư 300 triệu (Nguồn: Internet)

Nhà cấp 4 giá rẻ kiểu Nhật đơn giản nhưng tinh tế, thanh thoát (Nguồn: Internet)
Nếu bạn yêu thích sự tinh tế, sang trọng của kiến trúc cổ điển nhưng vẫn muốn không gian sống hiện đại, tiện nghi, thì mẫu nhà cấp 4 đẹp giá rẻ 300 triệu phong cách tân cổ điển sẽ là lựa chọn hoàn hảo. Với đường nét mềm mại, chi tiết trang trí tinh xảo và gam màu trang nhã, ngôi nhà mang đến vẻ đẹp vừa cổ kính vừa thời thượng. Đặc biệt, phòng ngủ tân cổ điển với nội thất hài hòa, bố trí hợp lý sẽ tạo nên không gian nghỉ ngơi ấm cúng, đậm chất thẩm mỹ cho gia chủ.

Mẫu nhà cấp 4 giá rẻ 300 triệu phong cách tân cổ điển (Nguồn: Internet)

Nhà cấp 4 mang phong cách tân cổ điển sang trọng, rộng rãi (Nguồn: Internet)

Nhà cấp 4 đẹp giá rẻ giá 300 triệu mang phong cách tân cổ điển (Nguồn: Internet)
Với ngân sách 300 triệu đồng, bạn hoàn toàn có thể sở hữu một ngôi nhà cấp 4 mang đậm phong cách Bắc Âu. Kết hợp hài hòa giữa nét hiện đại và truyền thống, những ngôi nhà này không chỉ mang đến không gian sống tiện nghi mà còn thể hiện gu thẩm mỹ tinh tế của gia chủ. Chính vì vậy, phong cách kiến trúc Bắc Âu ngày càng được nhiều người yêu thích và lựa chọn.

Mẫu nhà cấp 4 giá rẻ 300 triệu phong cách Bắc Âu (Nguồn: Internet)

Phong cách Bắc Âu lạ mắt, mĩ miều (Nguồn: Internet)
Mẫu nhà cấp 4 đẹp giá rẻ 300 triệu giả biệt thự là giải pháp lý tưởng cho những ai yêu thích vẻ ngoài sang trọng, bề thế nhưng vẫn muốn tiết kiệm chi phí xây dựng. Với thiết kế mái Thái hoặc mái Nhật, mặt tiền chỉn chu và bố cục cân đối, ngôi nhà sở hữu thiết kế biệt thự, tạo ấn tượng mạnh ngay từ cái nhìn đầu tiên. Dù chi phí chỉ khoảng 300 triệu, bạn vẫn có thể sở hữu không gian sống đầy đủ tiện nghi với 2–3 phòng ngủ, phòng khách rộng, bếp ăn thoáng, nhà tắm, nhà vệ sinh riêng và sân vườn nhỏ xanh mát, phù hợp cho gia đình trẻ ở nông thôn hoặc vùng ven đô.

Mẫu nhà cấp 4 đẹp giá rẻ 300 triệu giả biệt thự (Nguồn: Internet)

Mẫu nhà cấp 4 giả biệt thự với cảm giác sang trọng và hiện đại (Nguồn: Internet)

Mẫu nhà cấp 4 biệt thự lộng lẫy với giá 300 triệu (Nguồn: Internet)
Diện tích của một ngôi nhà cấp 4 với ngân sách 300 triệu đồng phụ thuộc vào nhiều yếu tố như thiết kế tổng thể, loại vật liệu sử dụng, giá nhân công và vị trí xây dựng. Tuy nhiên, với mức chi phí này, bạn hoàn toàn có thể sở hữu một căn nhà cấp 4 có diện tích dao động từ 50m² đến 80m².
Không gian bên trong có thể được sắp xếp hợp lý để đảm bảo sự tiện nghi và đáp ứng nhu cầu sinh hoạt hàng ngày:
Với cách bố trí thông minh và lựa chọn vật liệu hợp lý, một căn nhà cấp 4 trong tầm giá 300 triệu vẫn có thể mang đến sự tiện nghi và không gian sống thoải mái cho gia đình.

Diện tích 50m² đến 80m² sẽ là lựa chọn phù hợp để xây nhà với giá 300 triệu (Nguồn: Internet)
Nhà cấp 4 đẹp giá rẻ 300 triệu hiện đang trở thành xu hướng và được nhiều hộ gia đình yêu thích, lựa chọn nhờ những đặc điểm nổi bật sau:
Bên cạnh những ưu điểm nổi bật, mẫu nhà cấp 4 đẹp giá rẻ 300 triệu cũng tồn tại một số hạn chế mà chủ đầu tư cần cân nhắc kỹ lưỡng trước khi đưa ra quyết định. Cụ thể như:
Việc xây dựng một ngôi nhà cấp 4 đẹp và tiện nghi đòi hỏi sự đầu tư kỹ lưỡng. Hãy tham khảo ý kiến của các chuyên gia để có được thiết kế tối ưu nhất, lựa chọn vật liệu xây dựng chất lượng và bố trí nội thất khoa học để khắc phục những hạn chế của mẫu nhà này.

Xây nhà cấp 4 giá rẻ 300 triệu sẽ có những ưu điểm và nhược điểm mà các gia chủ nên tìm hiểu trước (Nguồn: Internet)
Thiết kế mở giúp không gian nhà cấp 4 trở nên rộng rãi và thông thoáng hơn dù diện tích không quá lớn. Các khu vực như phòng khách, bếp và phòng ăn thường được kết nối liền mạch, hạn chế vách ngăn để tạo sự liền mạch, tăng cường ánh sáng và gió tự nhiên. Bên cạnh đó, việc sử dụng cửa kính lớn cũng là một giải pháp hiệu quả giúp mở rộng không gian và mang đến tầm nhìn thoáng đãng, gần gũi hơn với thiên nhiên.

Thiết kế mở là một giải pháp tuyệt vời cho nhà cấp 4 trở nên thông thoáng hơn (Nguồn: Internet)
Xu hướng kết hợp cây xanh vào thiết kế nhà cấp 4 không chỉ giúp cải thiện chất lượng không khí mà còn tạo điểm nhấn thẩm mỹ và cảm giác thư giãn. Những khoảng sân nhỏ, giếng trời hoặc vườn đứng trong nhà giúp không gian sống trở nên trong lành và gần gũi với thiên nhiên. Ngoài ra, việc bố trí cây xanh hợp lý còn có tác dụng giảm nhiệt, giúp căn nhà mát mẻ hơn vào mùa hè mà không cần sử dụng quá nhiều điều hòa.

Không gian xanh chính là yếu tố quan trọng giúp ngôi nhà trở nên đẹp hơn (Nguồn: Internet)
Phong cách hiện đại với đường nét đơn giản, tinh tế là lựa chọn phổ biến trong các thiết kế nhà cấp 4 giá rẻ 300 triệu. Việc tối giản các chi tiết trang trí giúp tiết kiệm chi phí thi công nhưng vẫn đảm bảo tính thẩm mỹ. Màu sắc chủ đạo thường là các gam trung tính như trắng, xám, be kết hợp với các điểm nhấn từ nội thất gỗ hoặc kim loại để tạo sự sang trọng và thanh lịch.

Mẫu nhà cấp 4 hiện nay hầu hết mang phong cách hiện đại, đẹp mắt (Nguồn: Internet)
Gỗ, đá, gạch mộc hay tre nứa là những vật liệu tự nhiên được ưu tiên trong thiết kế nhà cấp 4 hiện nay. Chúng không chỉ giúp giảm chi phí mà còn mang lại cảm giác ấm cúng, gần gũi. Các vật liệu này có độ bền cao, dễ dàng thi công và bảo dưỡng, đồng thời giúp căn nhà hòa hợp với thiên nhiên hơn.

Với vật liệu tự nhiên có thể xây dựng ngôi nhà với giá rẻ, giúp tiết kiệm chi phí cho gia chủ (Nguồn: Internet)
>> Một số thiết kế dành cho phòng khách:
Tối ưu hóa không gian là yếu tố quan trọng giúp nhà cấp 4 diện tích nhỏ vẫn đầy đủ tiện nghi. Cách bố trí nội thất thông minh như giường tầng, tủ âm tường, bàn gấp hay kệ đa năng giúp tiết kiệm diện tích tối đa. Ngoài ra, việc lựa chọn gam màu sáng, sử dụng gương trang trí hay tận dụng ánh sáng tự nhiên cũng góp phần làm không gian rộng rãi và thông thoáng hơn.

Tối ưu hóa không gian giúp tiết kiệm chi phí mà vẫn mang đến một ngôi nhà hiện đại cho gia chủ (Nguồn: Internet)
Xây dựng một ngôi nhà cấp 4 với ngân sách 300 triệu đồng hoàn toàn khả thi. Tuy nhiên, để dự án thành công, bạn cần có kế hoạch chi tiêu hợp lý. Chi phí xây dựng nhà cấp 4 phụ thuộc vào nhiều yếu tố như diện tích sàn, vật liệu xây dựng, thiết kế, đơn giá nhân công và nội thất.
Ngoài ra, hình thức thi công cũng ảnh hưởng đến chi phí. Bạn có thể chọn xây dựng trọn gói để đảm bảo chất lượng hoặc tự thuê nhân công để tiết kiệm. Bên cạnh đó, các gói dịch vụ khác nhau cũng sẽ có mức giá khác nhau. Để tối ưu hóa chi phí, bạn nên lựa chọn vật liệu xây dựng phù hợp, thiết kế đơn giản, tối ưu hóa không gian và so sánh giá cả giữa các đơn vị thi công.

Nếu gia chủ biết cách tính toán hợp lý thì sẽ xây thành công nhà với giá 300 triệu (Nguồn: Internet)
>> Có thể bạn quan tâm:
Xây dựng một ngôi nhà cấp 4 đẹp, tiện nghi với ngân sách 300 triệu đồng hoàn toàn khả thi. Để dự án thành công, bạn cần lưu ý những điều sau:

Tìm hiểu chi phí xây dựng trước khi chọn nhà cấp 4 với giá 300 triệu (Nguồn: Internet)
Hy vọng những thông tin trên đã giúp bạn có cái nhìn tổng quan về các mẫu nhà cấp 4 đẹp giá rẻ 300 triệu. Hãy kết hợp những thông tin này với sở thích cá nhân và nhu cầu của gia đình để lựa chọn mẫu nhà phù hợp nhất, biến ngôi nhà trở thành tổ ấm lý tưởng. Nếu có bất kỳ thắc mắc nào về thiết kế và vật liệu thạch cao làm trần nhà đẹp, bạn có thể liên hệ với Vĩnh Tường thông qua:
Địa chỉ trụ sở chính: Tầng 8 - Tòa nhà SOFIC Tower, 10 Đường Mai Chí Thọ, Quận 2, Thành phố Hồ Chí Minh.
Thời gian hoạt động:
Thứ 2 - Thứ 6: từ 8h30 – 17h30
Thứ 7: Từ 8h00 - 12h00
Liên hệ qua số điện thoại: 1800-1218 hoặc trang website: https://vinhtuong.com/lien-he
Các bài viết về trần thạch cao: trần thạch cao phòng khách, mẫu trần thạch cao phòng ngủ, trần thạch cao phòng ngủ trẻ em, trần thạch cao phòng ngủ nhỏ 10m2, trần thạch cao phòng thờ, trần nhà vệ sinh, trần thạch cao phòng bếp, mẫu trần thạch cao phòng khách 25m2, trần thạch cao văn phòng, trần thạch cao tân cổ điển, mẫu trần thạch cao phòng khách hình chữ nhật, mẫu trần thạch cao phòng khách hình tròn, mẫu trần thạch cao phòng khách có quạt trần, trần thạch cao hình ngôi sao, mẫu trần thạch cao hình elip