vinhtuong đăng vào lúc 28/11/2025 - 20:53
Mẫu nhà 2 tầng đẹp, thiết kế hiện đại, xu hướng (Nguồn: Internet)
Nhà 2 tầng đang trở thành lựa chọn phổ biến của nhiều gia đình hiện nay nhờ tính tiện nghi, thẩm mỹ và khả năng tiết kiệm diện tích. Không chỉ đáp ứng nhu cầu sinh hoạt cơ bản, mẫu nhà đẹp này còn mang đến sự linh hoạt trong thiết kế và phong cách đa dạng, phù hợp với nhiều không gian và mục đích sử dụng khác nhau. Trong bài viết này, Vĩnh Tường sẽ giới thiệu đến bạn những mẫu nhà 2 tầng đẹp, đơn giản, hiện đại nhất 2025.
Nhà 2 tầng đẹp ngày càng được ưa chuộng trong thiết kế nhà ở hiện đại nhờ sự cân bằng giữa công năng, thẩm mỹ và chi phí xây dựng. So với nhà cấp 4, nhà 2 tầng giúp tối ưu hóa diện tích sử dụng trên cùng một mặt bằng, đặc biệt phù hợp với các khu đất có diện tích hạn chế.
Không chỉ vậy, kiến trúc 2 tầng còn cho phép phân chia không gian sống một cách linh hoạt và hiệu quả. Tầng trệt thường được bố trí các khu vực sinh hoạt chung như phòng khách, bếp và phòng ăn, trong khi tầng trên dành cho không gian riêng tư như phòng ngủ và phòng làm việc. Nhờ đó, sự riêng tư và tiện nghi trong sinh hoạt gia đình được đảm bảo tối đa, đặc biệt phù với thiết kế nhà ống 2 tầng.
Bên cạnh tính thực dụng, nhà 2 tầng còn có nhiều lựa chọn về phong cách kiến trúc – từ hiện đại, tân cổ điển đến phong cách nhiệt đới hay tối giản. Điều này mang đến cho gia chủ cơ hội thể hiện cá tính và gu thẩm mỹ một cách rõ nét. Chính vì vậy, mẫu nhà này không chỉ đáp ứng tốt nhu cầu ở mà còn góp phần nâng tầm giá trị sống cho gia đình.

Mẫu nhà 2 tầng đẹp, được nhiều gia đình ưa chuộng hiện nay (Nguồn: Internet)
>> Tham khảo:
Mẫu nhà 2 tầng hiện đại, tối giản thường ưu tiên sử dụng các đường nét vuông vức, kết hợp kính lớn và vật liệu hiện đại như trần thạch cao, phào chỉ thạch cao, inox,... Bên cạnh đó, gia chủ nên ưu tiên tạo không gian mở và thoáng mát, tối ưu ánh sáng tự nhiên, mang lại cảm giác rộng rãi như nhà cấp 4 hiện đại.

Mẫu nhà 2 tầng đẹp giá 700 triệu hiện đại, rộng rãi với tông trắng kem sang trọng (Nguồn: Internet)

Mẫu nhà 2 tầng đẹp ở nông thôn ấn tượng tiện nghi xu hướng mới nhất 2025 (Nguồn: Internet)
>> Xem thêm: 53+ Mẫu thiết kế nội thất phòng khách đẹp và hiện đại nhất.

Mẫu nhà 2 tầng đơn giản, tiết kiệm chi phí (Nguồn: Internet)

Mẫu nhà 2 tầng đẹp, hiện đại thiết kế mái Nhật (Nguồn: Internet)

Mẫu nhà 2 tầng hiện đại, thiết kế hài hoà, cân đối (Nguồn: Internet)
>> Xem thêm:
Mẫu nhà 2 tầng đẹp đơn giản thường tập trung vào thiết kế gọn gàng, tối ưu hóa không gian sử dụng và tiết kiệm chi phí xây dựng. Với kiểu dáng vuông vắn hoặc chữ nhật cơ bản, ngôi nhà thường sử dụng các đường nét thẳng và tông màu trung tính để tạo cảm giác thanh lịch và hiện đại. Bên cạnh đó, nội thất được lựa chọn kỹ lưỡng với những món đồ cần thiết, đảm bảo sự tiện nghi mà không làm rối mắt.

Mẫu nhà 2 tầng đẹp, hiện đại và ấn tượng (Nguồn: Internet)

Mẫu nhà mái lệch 2 tầng đẹp với mặt tiền nhỏ tiện nghi (Nguồn: Internet)

Mẫu nhà 2 tầng nông thôn 800 triệu đơn giản, giá rẻ (Nguồn: Internet)

Mẫu nhà 2 tầng đẹp, đơn giản nhưng sang trọng, hài hoà với thiên nhiên (Nguồn: Internet)

Mẫu nhà 2 tầng đẹp, thiết kế đơn giản, tối ưu chi phí (Nguồn: Internet)
>> Xem thêm: 25+ Mặt tiền nhà gác lửng 5m đẹp, ấn tượng, được ưa chuộng

Mẫu nhà 2 tầng đơn giản, tối ưu diện tích (Nguồn: Internet)

Mẫu nhà 2 tầng đơn giản, thiết kế gần gũi thiên nhiên, phổ biến ở nông thôn (Nguồn: Internet)
>> Tham khảo:
Nhà 2 tầng phong cách tân cổ điển là sự kết hợp hài hòa giữa nét cổ điển và hiện đại, với các chi tiết phào chỉ, cột trụ tinh tế. Để ngôi nhà toát lên vẻ sang trọng, thanh lịch thì trần nhà nên ưu tiên thiết kế trần thạch cao tân cổ điển.

Mẫu nhà 2 tầng đẹp giá 1 tỷ phong cách tân cổ điển (Nguồn: Internet)

Mẫu nhà 2 tầng phong cách tân cổ điển ấn tượng (Nguồn: Internet)
>>> Tham khảo:
Mẫu nhà chữ L có 2 tầng được thiết kế theo nhiều phong cách khác nhau, từ hiện đại, tân cổ điển đến đơn giản, mộc mạc đáp ứng mọi sở thích của gia chủ. Bên cạnh đó, chủ nhà cũng nên thiết kế nhiều cửa sổ để tận dụng tối đa ánh sáng tự nhiên và các kiến trúc đơn giản tạo cảm giác thoáng đãng cho ngôi nhà.

Thiết kế nhà ống chữ L 2 tầng hiện đại, ấn tượng (Nguồn: Internet)

Mẫu nhà 2 tầng đẹp, hiện đại (Nguồn: Internet)

Nhà mái Nhật chữ L 2 tầng kết hợp sân vườn xanh mát, hiện đại (Nguồn: Internet)
>>Tham khảo các mẫu nhà khác:
Nhà 2 tầng 1 tum mang đến một không gian sống đa năng và linh hoạt. Với tầng tum, gia chủ có thêm không gian để tận dụng vào nhiều mục đích khác nhau như làm phòng ngủ đẹp đến phòng khách hoặc phòng thờ. Ngoài ra, thiết kế này không chỉ giúp bạn mở rộng diện tích sử dụng mà còn tạo nên một không gian sống độc đáo, phù hợp với nhiều phong cách khác nhau.

Thiết kế nhà 2 tầng 1 tum hiện đại, ấn tượng với nhiều hoa tươi, cây xanh (Nguồn: Internet)

Sử dụng nhiều cây xanh trang trí cùng tường màu trắng be tạo nên một không gian căn nhà đẹp, hiện đại (Nguồn: Internet)
>> Gợi ý mẫu nhà đẹp:
Nhà mái Thái 2 tầng hoặc nhà mái Thái 1 tầng là lựa chọn lý tưởng cho nhiều gia đình Việt Nam, đặc biệt là những ai yêu thích không gian sống giản dị, gần gũi với thiên nhiên.

Mẫu nhà mái Thái 2 tầng được nhiều người ưa chuộng hiện nay (Nguồn: Internet)

Mẫu thiết kế nhà mái Thái đẹp, hiện đại phong cách Châu Âu (Nguồn: Internet)

Thiết kế nhà đẹp 2 tầng mái Thái hiện đại, tiết kiệm chi phí thi công (Nguồn: Internet)
>> Xem thêm:
Nhà mái Nhật 2 tầng với thiết kế mái ngói dốc nhẹ và kết cấu gỗ tre truyền thống, đã trở thành biểu tượng của làng quê Việt Nam. Kiểu nhà này không chỉ thích nghi được với khí hậu nhiệt đới nước ta mà còn mang đến không gian sống gần gũi, ấm cúng cho gia đình của bạn.

Nhà mái Nhật phong cách hiện đại, độc đáo (Nguồn: Internet)

Nhà ngói mái Nhật 2 tầng phong cách hiện đại, ấn tượng (Nguồn: Internet)

Thiết kế nhà mái Nhật 2 tầng độc đáo với sân vườn rộng rãi, thoải mái (Nguồn: Internet)
>> Tham khảo:
Nhà mái bằng mặc dù không có sự bề thế hay đồ sộ như mái Thái, nhưng lại có những ưu điểm vượt trội. Chẳng hạn như, mái bằng không chỉ đảm bảo sự an toàn và ổn định cho ngôi nhà của bạn mà còn dễ dàng lắp đặt hệ thống năng lượng mặt trời, giúp tiết kiệm chi phí xây dựng.

Mẫu nhà 2 tầng mái bằng đẹp, sang trọng (Nguồn: Internet)

Thiết kế nhà mái bằng 2 tầng đơn giản, phù hợp với khu vực nông thôn (Nguồn: Internet)
>> Tham khảo thêm:
Mẫu nhà 2 tầng mái ngói là lựa chọn hoàn hảo cho những gia đình muốn sở hữu một ngôi nhà đẹp, bền vững và mang đậm nét truyền thống của Việt Nam. Đồng thời, nhà mái ngói này hoàn toàn phù hợp với những gia chủ có điều kiện đất đai hạn chế bởi thiết kế đơn giản giúp tiết kiệm diện tích.

Mẫu nhà mái ngói 2 tầng được nhiều người ưa chuộng hiện nay (Nguồn: Internet)
>> Xem thêm:
Mẫu nhà 2 tầng diện tích 4x15m đẹp, đơn giản với thiết kế nhà ống mái bằng giúp tối ưu diện tích. Đồng thời, kết hợp cùng hệ thống cửa sổ kính và giếng trời tạo cảm giác thông thoáng, thư giãn cho gia chủ.

Mẫu nhà 2 tầng với diện tích 4x15m hiện đại (Nguồn: Internet)
>> Xem thêm: 54+ Mẫu thiết kế nội thất phòng khách đẹp, sang trọng nhất 2025
Mẫu nhà 2 tầng mái bằng 5x15m với thiết kế nhà ống thoáng đãng và ban công rộng rãi, mang đến một không gian sống thư thái, tràn đầy ánh sáng tự nhiên cho gia chủ.

Mẫu nhà ống mái bằng diện tích 5x15m đơn giản (Nguồn: Internet)
Nhà ống 2 tầng 4x14m là lựa chọn hoàn hảo cho những gia đình trẻ, ít thành viên. Với thiết kế 2 tầng thông minh, bố trí không gian hợp lý, mẫu nhà này không chỉ mang đến sự tiện nghi, thoải mái mà còn giúp gia chủ tiết kiệm đáng kể chi phí xây dựng.

Mẫu nhà ống 2 tầng đẹp, hiện đại với diện tích hạn chế (Nguồn: Internet)

Mẫu thiết kế đơn giản cho những gia chủ có diện tích đất hạn chế (Nguồn: Internet)
>> Gợi ý:
Mẫu nhà tiền chế 2 tầng có thiết kế đơn giản và thời gian thi công nhanh nên tiết kiệm chi phí hơn so với các mẫu nhà khác. Bên cạnh đó, thiết kế nhà tiền chế đẹp này cũng được nhiều gia chủ tin dùng trong công trình dân dụng để thay thế những ngôi nhà bê tông truyền thống.

Mẫu nhà tiền chế kết hợp sân vườn xanh mát, hiện đại (Nguồn: Internet)

Thiết kế nhà tiền chế 2 tầng 5x20m đơn giản, sang trọng (Nguồn: Internet)
>> Tham khảo: 35 mẫu thiết kế phòng khách liền bếp 20m2 đẹp tiết kiệm diện tích
Mẫu nhà ống đẹp là giải pháp tối ưu cho các gia đình nhỏ tại thành thị, nơi quỹ đất thường hạn chế. Thiết kế dạng ống giúp tận dụng chiều sâu của lô đất để bố trí không gian hợp lý: tầng trệt thường dành cho phòng khách, bếp – ăn, nhà vệ sinh và một sân nhỏ phía trước hoặc sau để đón gió và ánh sáng tự nhiên.
Tầng 2 có thể bố trí 2–3 phòng ngủ với ban công hoặc giếng trời ở giữa, giúp không gian luôn thoáng đãng và dễ chịu. Nhờ đó, dù diện tích bề ngang khiêm tốn, mẫu nhà ống đẹp 2 tầng này vẫn đảm bảo sự riêng tư cho từng thành viên mà không gây cảm giác chật chội.

Mẫu nhà ống 2 tầng đẹp, hiện đại với diện tích 5x20m (Nguồn: Internet)
>> Gợi ý mẫu phòng khách:
30+ mẫu phòng khách tân cổ điển nhà ống đẹp, sang trọng nhất 2025
99+ Mẫu phòng khách liền bếp nhà ống đẹp, xu hướng mới nhất hiện nay
Nhà 2 tầng mặt tiền 6m là giải pháp hoàn hảo cho những lô đất nhỏ, đặc biệt phù hợp với các gia đình trẻ hoặc những người có ngân sách hạn chế. Với thiết kế thông minh, bạn có thể tận dụng tối đa diện tích để tạo nên không gian sống đầy đủ tiện nghi, từ phòng khách, phòng bếp đến phòng ngủ.

Nhà đẹp 2 tầng mặt tiền 6m thiết kế đơn giản, sang trọng (Nguồn: Internet)

Nhà ngói mái Nhật 2 tầng phong cách hiện đại, ấn tượng (Nguồn: Internet)
>> Xem thêm: 55+ Mẫu thiết kế phòng bếp đẹp hiện đại, độc đáo sang trọng 2024
Kiểu nhà phố 2 tầng với mặt tiền rộng 8m thường sử dụng kiến trúc hiện đại. Bên cạnh đó, gia chủ nên bố trí không gian thoáng mát, kết hợp hài hòa giữa yếu tố thẩm mỹ và công năng.

Mẫu nhà phố đẹp nhà 2 tầng mặt tiền 8m đẹp, tiện nghi, ấn tượng (Nguồn: Internet)
>> Xem thêm:
Mẫu nhà vuông 2 tầng 80m² là sự lựa chọn hoàn hảo cho những gia đình trẻ năng động. Với thiết kế mái bằng hiện đại, gia chủ nên ưu tiên sử dụng trần thạch cao để đảm bảo độ thông thoáng cho không gian. Vì vật liệu này có khả năng cách nhiệt và chống nóng cực kỳ hiệu quả.

Mẫu nhà vuông 2 tầng 80m² là sự lựa chọn hoàn hảo cho những gia đình trẻ (Nguồn: Internet)
>> Tham khảo:
Mẫu nhà vuông 2 tầng 100m2 đang là xu hướng nhà ở được ưa chuộng nhất hiện nay. Với kết cấu vuông vắn, chịu lực tốt, mẫu thiết kế này không chỉ đảm bảo sự bền vững theo thời gian mà còn giúp tối ưu không gian sống, mang đến cảm giác thư thái, thoải mái cho mọi thành viên trong gia đình bạn.

Mẫu nhà 2 tầng hiện đại xu hướng hiện nay (Nguồn: Internet)
>> Xem thêm:
Mẫu nhà ngang 10m 2 tầng hiện đại với thiết kế mặt tiền rộng rãi kết hợp với hệ thống cửa kính lớn, tạo nên một không gian sống mở, tràn đầy ánh sáng. Bên cạnh đó, việc lựa chọn vật liệu xây dựng cao cấp, bền đẹp sẽ giúp ngôi nhà của bạn luôn giữ được giá trị thẩm mỹ theo thời gian.

Mẫu nhà ngang 10m2 2 tầng hiện đại với thiết kế mặt tiền rộng rãi kết hợp hệ thống cửa kính lớn (Nguồn: Internet)
>> Xem thêm:
Với thiết kế linh hoạt, mẫu nhà 2 tầng 4 phòng ngủ dưới 1 tỷ có nhiều mẫu mã, đáp ứng đa dạng nhu cầu của các gia đình. Từ phong cách truyền thống đến hiện đại, từ không gian sống chung đến phòng ngủ riêng tư, tất cả đều được cân nhắc kỹ lưỡng để mang đến một ngôi nhà 2 tầng 1 tỷ đầy lý tưởng cho cả gia đình bạn.

Mẫu nhà 2 tầng 4 phòng ngủ với diện tích 8x12m phổ biến hiện nay (Nguồn: Internet)

Mẫu nhà 2 tầng đẹp giá 1 tỷ (Nguồn: Internet)
Mẫu nhà 2 tầng đẹp ở nông thôn thường được thiết kế với cấu trúc đơn giản, sử dụng vật liệu truyền thống như gạch, ngói, gỗ. Điều này không chỉ giúp ngôi nhà trở nên bền vững với thời gian mà còn tối ưu không gian sống, tiết kiệm chi phí xây dựng và mang đến sự tiện nghi cho gia chủ.

Mẫu nhà 2 tầng nông thôn đẹp, thiết kế đơn giản, tiết kiệm chi phí (Nguồn: Internet)

Thiết kế nhà 2 tầng nông thôn tập trung vào công năng sử dụng là chính (Nguồn: Internet)
>> Tham khảo:
Mẫu nhà 2 tầng có sân vườn là sự kết hợp hoàn hảo giữa kiến trúc nhà hiện đại và không gian sống xanh mát. Với thiết kế nhà sân vườn tối giản, gam màu nâu trắng làm chủ đạo kết hợp cùng hồ cá Koi, lối đi lát đá mang đến một nơi thư giãn lý tưởng cho gia chủ.

Thiết kế nhà vườn 2 tầng hiện đại, gần gũi với thiên nhiên (Nguồn: Internet)

Kiểu nhà mái Nhật 2 tầng đẹp, độc đáo với thiết kế mặt tiền xanh mát (Nguồn: Internet)

Mẫu biệt thự đẹp, hiện đại với thiết kế sân vườn nhiều hoa tươi và cây xanh (Nguồn: Internet)
Thiết kế nhà 2 tầng với không gian mở thường ưu tiên sử dụng nhiều cửa kính lớn để tạo sự thông thoáng, đón được nhiều ánh sáng tự nhiên. Đồng thời, sự kết hợp thêm sân vườn phía trước nhà cũng được nhiều gia đình lựa chọn để tạo điểm nhấn ấn tượng cho mặt tiền căn nhà.

Nhà đẹp 2 tầng với nội thất toàn kính, tạo sự thông thoáng cho nhà ở (Nguồn: Internet)

Không gian thông thoáng với thiết kế nhà ống 2 tầng đẹp, hiện đại (Nguồn: Internet)
>> Xem thêm:
Nhà kính 2 tầng với hệ thống cửa kính cường lực lớn không chỉ tạo nên vẻ đẹp hiện đại, sang trọng mà còn mang đến cho gia chủ không gian sống tràn đầy ánh sáng tự nhiên. Bên cạnh đó, việc ứng dụng công nghệ điều hòa không khí thông minh giúp tối ưu hóa việc sử dụng năng lượng, bảo vệ môi trường tự nhiên.

Không gian tràn ngập ánh sáng khi sử dụng những tấm kính lớn trang trí nhà 2 tầng (Nguồn: Internet)
Mẫu nhà 2 tầng mái bằng thiết kế toàn kính thoáng mát, rộng rãi (Nguồn: Internet)
Thiết kế biệt thự, villa 2 tầng hiện đại với hệ thống cửa sổ lớn, không chỉ mang đến không gian sống tràn ngập ánh sáng tự nhiên, tạo cảm giác thư thái mà còn đáp ứng tiêu chuẩn sống hiện đại, sự tiện nghi và thoải mái cho cả gia đình.

Căn Villa hiện đại với thiết kế 2 tầng toàn cửa kính mang đến không gian đầy ánh sáng tự nhiên (Nguồn: Internet)

Thiết kế biệt thự 2 tầng hiện đại với sân thượng rộng rãi kết hợp nhiều cây xanh (Nguồn: Internet)
>> Tham khảo thêm: 35+ mẫu phòng ngủ màu hồng đẹp mê hồn, ấn tượng nhất
Mẫu biệt thự sân vườn 2 tầng sang trọng (Nguồn: Internet)
Mẫu thiết kế nhà dưới 1 tỷ kết hợp hồ bơi hiện đại, tiện nghi (Nguồn: Internet)
Homestay 2 tầng là một trong những xu hướng thiết kế nhà ở được ưa chuộng hiện nay. Với sự đa dạng trong thiết kế, từ phong cách hiện đại, tối giản đến truyền thống, cổ điển, mẫu nhà homestay không chỉ mang đến những trải nghiệm sống độc đáo cho gia chủ mà còn tạo nên một hình thức kinh doanh tiềm năng, thu hút nhiều du khách và nhà đầu tư.

Thiết kế mẫu homestay sân vườn xanh mát, gần gũi với thiên nhiên (Nguồn: Internet)

Mẫu homestay 2 tầng tân cổ điển đẹp, sang trọng (Nguồn: Internet)
>> Xem thêm: 53+ Mẫu decor phòng trọ sinh viên 15m2 không gác đẹp, chi phí thấp
Bản vẽ nhà 2 tầng là một tài liệu kỹ thuật quan trọng, giúp gia chủ và người thi công hình dung rõ ràng ngôi nhà khi hoàn thành. Từ đó, bạn sẽ có cơ sở để đưa ra những quyết định chính xác về vật liệu xây dựng, diện tích đất, dự trù chi phí và phong cách thiết kế căn nhà phù hợp.
Mẫu nhà 2 tầng giá 500 triệu có thiết kế đơn giản, tiết kiệm chi phí nhưng vẫn đảm bảo công năng sử dụng. Với ngân sách này, ngôi nhà có thể bao gồm 2-3 phòng ngủ, 1 phòng khách, bếp và thiết kế nhà vệ sinh. Đây là mẫu nhà phù hợp với những gia đình nhỏ ở nông thôn hoặc ngoại thành. Ngoài ra, gia chủ nên sử dụng các thiết kế không gian mở để tạo cảm giác rộng rãi hơn.

Thiết kế nhà đẹp 2 tầng đẹp giá 500 triệu (Nguồn: Internet)
Với mức chi phí 700 triệu, bạn có thể sở hữu một ngôi nhà 2 tầng hiện đại với diện tích từ 80-100m². Thiết kế mẫu nhà 2 tầng đẹp giá 700 triệu có thể linh hoạt với 3 phòng ngủ, 1 phòng khách, bếp và 2 nhà vệ sinh. Mẫu nhà này phù hợp cho các gia đình mong muốn không gian tiện nghi, thoải mái với chi phí hợp lý.

Mẫu nhà 2 tầng đẹp giá 700 triệu (Nguồn: Internet)
Mẫu nhà 2 tầng đẹp giá 1 tỷ là kiểu nhà 2 tầng có thiết kế sang trọng và hiện đại, với diện tích từ 100-150m². Với ngân sách 1 tỷ, bạn có thể sở hữu ngôi nhà với 3-4 phòng ngủ, phòng khách rộng rãi, khu vực bếp ăn tiện nghi và 2-3 phòng vệ sinh. Gia chủ có thể sử dụng vật liệu xây dựng cao cấp hơn, đồng thời có thể kết hợp các thiết kế như mái Thái hoặc mái lệch để tạo điểm nhấn. Ngoài ra, không gian sân vườn nhỏ hoặc ban công rộng cũng có thể được tích hợp để mang lại sự thoáng đãng và gần gũi với thiên nhiên.

Mẫu nhà 2 tầng đẹp giá 1 tỷ (Nguồn: Internet)

Mẫu nhà 2 tầng đẹp giá 1 tỷ (Nguồn: Internet)
Bản vẽ nhà 2 tầng mặt tiền 5m thường được thiết kế tối ưu hóa không gian theo chiều cao, phù hợp với các khu đất có diện tích hạn chế ở đô thị. Mặt tiền rộng 5m tạo điều kiện để bố trí kiến trúc hiện đại, với ban công thoáng, cửa kính lớn lấy sáng tự nhiên và các đường nét tối giản, tinh tế. Tầng trệt thường gồm phòng khách, bếp và khu vệ sinh, trong khi tầng trên bố trí 2–3 phòng ngủ cùng phòng thờ hoặc phòng sinh hoạt chung. Bản vẽ chú trọng đến sự thông thoáng và công năng, đảm bảo sinh hoạt tiện nghi cho gia đình 4–5 người.

Tham khảo mẫu thiết kế nhà ống 2 tầng 5x20 đẹp, không gian và vị trí các phòng công năng rất hợp lý (Nguồn: Internet)
Bản vẽ mẫu nhà 2 tầng đẹp có sân thượng thường được thiết kế theo phong cách hiện đại, tối ưu hóa không gian sống và nghỉ ngơi. Sân thượng được bố trí ở tầng trên cùng, có thể sử dụng làm khu vườn nhỏ, nơi phơi đồ, hoặc không gian thư giãn với bàn trà ngoài trời. Mặt bằng tầng 1 thường bao gồm phòng khách rộng rãi, bếp ăn liên thông và một phòng ngủ tiện lợi. Tầng 2 là không gian riêng tư với các phòng ngủ và lối lên sân thượng. Thiết kế này phù hợp với những gia đình yêu thích không gian mở và mong muốn có thêm khu vực sinh hoạt ngoài trời.

Bản vẽ nhà 2 tầng có sân thượng tiết kiệm chi phí, dễ ứng dụng (Nguồn: Internet)
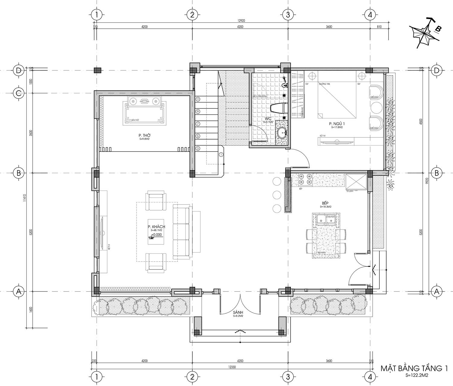
Bản vẽ nhà 2 tầng 4 phòng ngủ rộng rãi là lựa chọn lý tưởng cho gia đình đông thành viên, từ 5–6 người trở lên. Thiết kế tập trung vào sự cân đối giữa các không gian sinh hoạt chung và riêng tư. Tầng trệt thường bố trí phòng khách lớn, bếp ăn tiện nghi, một phòng ngủ và phòng vệ sinh. Tầng lầu gồm 3 phòng ngủ còn lại, trong đó có phòng ngủ master rộng rãi kèm phòng thay đồ hoặc thiết kế nhà vệ sinh và nhà tắm riêng. Bản vẽ cũng tính toán kỹ lưỡng hệ thống thông gió và lấy sáng, tạo môi trường sống thoáng đãng và tiện nghi.
Mẫu bản vẽ mặt bằng nhà 2 tầng phong cách hiện đại chú trọng vào sự tối giản, thoáng đãng và kết nối không gian. Tầng 1 thường bố trí phòng khách rộng kết hợp khu vực bếp ăn mở liền kề, tạo cảm giác liền mạch và rộng rãi. Một phòng ngủ nhỏ hoặc phòng làm việc cũng được lồng ghép khéo léo. Tầng 2 bố trí các phòng ngủ với nhà vệ sinh riêng hoặc chung tùy nhu cầu, có thể thêm không gian sinh hoạt chung hoặc phòng thờ. Thiết kế tận dụng cửa kính lớn, giếng trời và ban công để lấy sáng tự nhiên, tạo nên không gian sống tiện nghi và hiện đại.

Mặt bằng nhà 2 tầng tối giản với 2 phòng ngủ, phù hợp với những gia đình ít thành viên (Nguồn: Internet)
Để ước tính chi phí xây dựng, bạn có thể tham khảo các phương pháp sau:
Mức giá tham khảo cho xây dựng nhà 2 tầng (đơn giá/m²):
Ví dụ tham khảo:
Nếu xây nhà 2 tầng 120m² với mức hoàn thiện cơ bản, chi phí ước tính là 120m² x 6.500.000 VNĐ/m² = 780.000.000 VNĐ (chưa bao gồm chi phí thiết kế và các hạng mục phát sinh).
Không nên chọn vật liệu giá rẻ, kém chất lượng: Việc lựa chọn vật liệu xây dựng không rõ nguồn gốc chỉ vì mục tiêu tiết kiệm có thể dẫn đến giảm tuổi thọ và chất lượng công trình. Thay vào đó, nên ưu tiên các loại vật liệu bền vững, đa công năng và có mức giá hợp lý như trần thạch cao Vĩnh Tường, giúp đảm bảo cả về thẩm mỹ lẫn độ bền lâu dài.
Thi công không tính đến yếu tố thời tiết: Điều kiện thời tiết bất lợi như mùa mưa không chỉ gây cản trở tiến độ mà còn làm tăng chi phí phát sinh để bảo vệ vật tư và đảm bảo an toàn lao động. Do đó, việc lựa chọn thời điểm xây dựng hợp lý, đặc biệt là trong mùa khô, sẽ giúp giảm thiểu rủi ro và tối ưu chi phí thi công.
>> Nên xây nhà vào mùa nào trong năm là tốt nhất 2025
Không dự trù chi phí phát sinh: Thiếu kế hoạch dự phòng tài chính dễ khiến chủ đầu tư gặp khó khăn khi phát sinh các hạng mục ngoài dự kiến. Vì vậy, nên tính toán thêm khoảng 10% – 15% chi phí dự phòng vào tổng ngân sách để chủ động xử lý các tình huống phát sinh và đảm bảo tiến độ công trình.
Thay đổi thiết kế trong quá trình xây dựng: Việc điều chỉnh thiết kế khi công trình đã khởi công không chỉ kéo dài thời gian thi công mà còn ảnh hưởng đến kết cấu tổng thể và làm đội chi phí. Bên cạnh đó, những thay đổi không được tính toán kỹ lưỡng có thể gây ra rủi ro kỹ thuật. Gia chủ nên thống nhất phương án thiết kế ngay từ đầu và tuân thủ chặt chẽ theo kế hoạch đã đề ra.
Thiếu giám sát công trình: Việc không giám sát thường xuyên khiến công trình dễ gặp tình trạng thiếu hụt vật tư, chất lượng không đạt yêu cầu hoặc tiến độ chậm trễ. Do đó, gia chủ nên chủ động dành thời gian theo dõi hoặc thuê đơn vị giám sát chuyên nghiệp để đảm bảo mỗi hạng mục thi công đều đạt tiêu chuẩn chất lượng và hoàn thành đúng thời gian.

Nếu diện tích đất lớn, bạn có thể thỏa sức thiết kế nhà với sân vườn rộng rãi, có sân vườn, tum (Nguồn: Internet)
>> Có thể bạn quan tâm:
Bài viết này đã giúp bạn tổng hợp những mẫu nhà 2 tầng đẹp, hiện đại, thiết kế mới nhất. Hy vọng bạn có thể lựa chọn được mẫu thiết kế phù hợp với sở thích, công năng và chi phí thi công. Nếu có bất kỳ thắc mắc nào về thiết kế và vật liệu thạch cao, bạn có thể liên hệ Vĩnh Tường thông qua:
Địa chỉ trụ sở chính: Tầng 8 - Tòa nhà SOFIC Tower, 10 Đường Mai Chí Thọ, Quận 2, Thành phố Hồ Chí Minh.
Thời gian hoạt động:
Thứ 2 - Thứ 6: từ 8h30 – 17h30
Thứ 7: Từ 8h00 - 12h00
Liên hệ qua số điện thoại: 1800-1218 hoặc trang website: https://vinhtuong.com/lien-he
Tag: trần thạch cao phòng khách, trần thạch cao tân cổ điển, trần thạch cao phòng ngủ, trần thạch cao phẳng, trần thạch cao phòng bếp, trần thạch cao văn phòng, vách ngăn phòng khách và bếp, vách ngăn phòng thờ, vách ngăn phòng khách, vách cách âm, vách tiêu âm, vách ngăn chống cháy, vách ngăn nhà vệ sinh, vách ngăn văn phòng, tấm cách nhiệt, tấm tiêu âm, vách tường lắp ghép, vách ngăn phòng ngủ, vách ngăn phòng khách chung cư, vách tivi phòng khách