vinhtuong đăng vào lúc 28/02/2026 - 23:54
Hiện nay hầu hết các khu vực đô thị và một số vùng nông thôn dân cư đông đúc đều quy hoạch đất ở theo hình chữ nhật với chiều ngang nhỏ hơn nhiều lần so với chiều dài. Đó cũng là lý do các mẫu nhà đẹp này dần được ưa chuộng, với đầy đủ công năng và chi phí thi công vừa phải. Trong bài viết này, Vĩnh Tường sẽ giới thiệu đến bạn những mẫu nhà ống 2 tầng đẹp, đơn giản, thiết kế hiện đại nhất 2025.

Tìm hiểu chương trình khuyến mãi cho chủ nhà
Mẫu nhà ống 2 tầng đẹp với hệ trần ấn tượng không chỉ nổi bật bởi kiến trúc hiện đại và mặt tiền hài hòa, mà còn gây ấn tượng mạnh nhờ thiết kế trần nhà độc đáo. Hệ trần trong ngôi nhà được xử lý tinh tế với các cấp giật khối, kết hợp đèn LED âm trần tạo chiều sâu và điểm nhấn ánh sáng nổi bật. Phòng khách thường sử dụng trần thạch cao thả hoặc trần giật cấp, phối màu trung tính như trắng – xám – vàng nhạt để tôn lên vẻ sang trọng, trong khi khu bếp hoặc phòng ngủ có thể dùng trần phẳng kết hợp nan trang trí để tạo cảm giác ấm cúng, dễ chịu. Thiết kế trần không chỉ giúp tối ưu thẩm mỹ nội thất mà còn hỗ trợ cách âm, chống nóng và tăng sự thông thoáng cho không gian sống – đặc biệt phù hợp với những ngôi nhà ống có diện tích hạn chế về chiều ngang nhưng cần tạo điểm nhấn chiều cao.

Mẫu nhà 2 tầng đẹp kiểu nhà ống ấn tượng

Mẫu nhà ống 2 tầng có cách âm và tiêu âm đang được nhiều người ưa chuộng hiện nay (Nguồn: Internet)

Mẫu thiết kế nhà đẹp 2 tầng đẹp, hiện đại (Nguồn: Internet)

Mẫu nhà phố đẹp xây kiểu nhà ống 2 tầng thiết kế có ban công nhỏ để trồng cây (Nguồn: Internet)
Đối với loại nhà ống 2 tầng, có rất nhiều phong cách thiết kế trần nhà để bạn có thể tham khảo. Tuy nhiên, la phông Vĩnh Tường Ánh Kim, trần thạch cao Vĩnh Tường Siêu Bền X và trần thạch cao Vĩnh Tường SIÊU BẢO VỆ là hai loại trần được nhiều chủ đầu tư ưu tiên sử dụng nhất bởi chất lượng vượt trội và đa dạng mẫu mã.
Trần thạch cao Vĩnh Tường SIÊU BẢO VỆ có cấu tạo từ Tấm thạch cao Siêu Bảo Vệ VĨNH TƯỜNG-gyproc và khung trần chìm Vĩnh Tường BASI® hoặc khung trần chìm Vĩnh Tường ALPHA. Đây là hệ trần dược nhiều người ứng dụng làm trần nhà ống 2 tầng bởi các tính năng vượt trội mà nó mang lại: siêu chống nồm ẩm, siêu chống cháy, chống võng, chống nứt và thanh lọc không khí 80%.
>>> Tham khảo:
Các mẫu nhà ống 2 tầng ở nông thôn thường chú trọng vào độ bền và công năng sử dụng. Do đó, bạn có thể thấy những thiết kế được ưa chuộng đa phần không quá cầu kỳ về ngoại thất mà hướng đến sự thuận tiện trong quá trình sinh hoạt.

Mẫu nhà 2 tầng đẹp ở nông thôn với thiết kế hiện đại, mới lạ (Nguồn: Internet)

Tương tự, mẫu nhà 2 tầng nông thôn 800 triệu được thiết kế khá đơn giản, màu sắc nhã nhặn (Nguồn: Internet)

Mẫu nhà 2 tầng đẹp giá 700 triệu có thiết kế mái bằng hiện đại. (Nguồn: Internet)

Bể chứa nước của mẫu thiết kế nhà đẹp 2 tầng thường được đặt bên trên phần mái để tiết kiệm không gian xây phòng công năng. Đồng thời, bạn có thể xây thêm cầu thang lên mái, tận dụng diện tích trên này để trồng rau xanh hoặc cây cảnh. (Nguồn: Internet)
>>> Xem thêm:
Nếu không muốn sử dụng tông màu trắng đơn điệu, bạn có thể tham khảo mẫu nhà ống 2 tầng mặt tiền đẹp, hiện đại này. Điểm nhấn là khoảng tường được ốp gỗ nâu sẫm, tạo cảm giác thân thuộc, ấm cúng cho gia đình. Đặc biệt, khi kết hợp cùng hệ thống đèn led chiếu sáng ban đêm và trần thạch cao nổi thì chắc chắn nhà bạn sẽ trở nên lung linh, sang trọng hơn rất nhiều.
>> Để nhận thông tin và báo giá chi tiết hệ trần - tường - vách thạch cao làm nhà cấp 4 chữ L mái tôn, vui lòng bấm:

Mẫu nhà ống đẹp 2 tầng kết hợp mảng tường được ốp gỗ tạo cảm giác ấm cúng, sang trọng (Nguồn: Internet)

Mẫu thiết kế nhà ống nông thôn theo phong cách hiện đại (Nguồn: Internet)
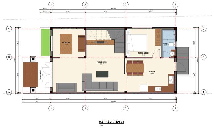
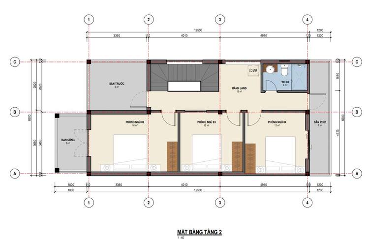
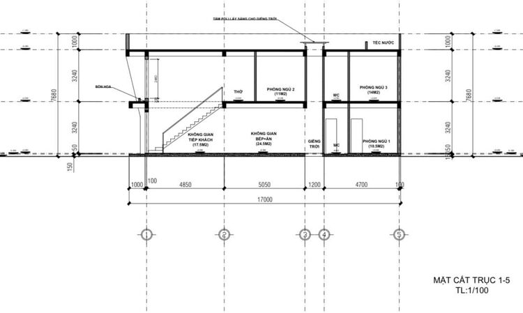
Để dễ dàng thi công, bạn có thể tham khảo bản vẽ 3D nhà ống 2 tầng đẹp, bố trí các phòng công năng vô cùng hợp lý dưới đây:


>> Để nhận thông tin và báo giá chi tiết hệ trần - tường - vách thạch cao làm nhà cấp 4 chữ L mái tôn, vui lòng bấm:
Nếu kinh phí xây dựng có phần hạn chế, bạn có thể tham khảo mẫu nhà ống 2 tầng đầy đủ công năng như gợi ý dưới đây.

Mẫu nhà cấp 3 dạng ống 2 tầng thiết kế đơn giản, tiết kiệm chi phí (Nguồn: Internet)

Mẫu thiết kế nhà ống hiện đại 3 tầng đơn giản, đẹp, tiết kiệm chi phí (Nguồn: Internet)

Mẫu nhà ống 2 tầng thiết kế đơn giản, chi phí thấp (Nguồn: Internet)
>> Xem thêm:
Các mẫu nhà ống 2 tầng thiết kế theo phong cách hiện đại thường rất chú trọng đến khả năng đón gió, đón sáng của ngôi nhà. Như thiết kế dưới đây, kiến trúc sư đã thiết kế ban công kết hợp với cửa kính lớn, giúp căn nhà luôn tràn ngập ánh sáng tự nhiên, đặc biệt là không gian phòng khách.

Mẫu nhà ống 2 tầng được thiết kế nhiều cửa kính để đón nắng (Nguồn: Internet)

Mẫu nhà 2 tầng hiện đại có phòng bếp nhà ống 5m phù hợp cho khu vực thành phố. Tổng quan màu sắc rất hài hòa, căn nhà được thiết kế tối giản theo hình hộp, không quá nhiều họa tiết cầu kỳ (Nguồn: Internet)

Mẫu mặt tiền nhà ống 2 tầng hiện đại, đẹp nhất hiện nay. Khu vực bên hông được thiết kế nhiều cửa sổ chính đan xen, nhằm hạn chế tình trạng tù bí cho các phòng công năng. (Nguồn: Internet)

Mẫu nhà ống 2 tầng hiện đại với cây cảnh xung quanh (Nguồn: Internet)

Mẫu thiết kế nhà ống 2 tầng hiện đại, được nhiều người ưa chuộng (Nguồn: Internet)
>>> Xem thêm:
>> Để nhận thông tin và báo giá chi tiết hệ trần - tường - vách thạch cao làm nhà ống, vui lòng bấm:
Những mẫu nhà 2 tầng với diện tích 5x20 đang thu hút nhiều sự quan tâm hiện nay. Dù không rộng rãi, nhưng diện tích này đủ để bạn bố trí không gian nhà 2 tầng tiện nghi và thoải mái. Loại hình thiết kế nhà phố này đặc biệt phù hợp cho các gia đình trẻ với nhiều ưu điểm như tiết kiệm chi phí và đa dạng phong cách.

Thiết kế mẫu nhà 2 tầng đẹp giá 1 tỷ hiện đại, phần ban công trồng thêm tiểu cảnh xanh mát (Nguồn: Internet)

Tham khảo mẫu thiết kế nhà ống 2 tầng 5x20 đẹp, không gian và vị trí các phòng công năng rất hợp lý (Nguồn: Internet)

Mẫu nhà ống 2 tầng đẹp nhất, được ưa chuộng nhất hiện nay. Thiết kế mái lệch độc đáo, hạn chế được tình trạng ứ đọng nước vào mùa mưa. (Nguồn: Internet)

Mẫu thiết kế nhà ống 2 tầng có gara và sử dụng khung trần nổi ở phòng khách (Nguồn: Internet)

Mẫu nhà đẹp 5x20 dạng nhà ống phong cách hiện đại, có chỗ đỗ xe ô tô (Nguồn: Internet)
>> Xem thêm:
>> Để nhận thông tin và báo giá chi tiết hệ trần - tường - vách thạch cao làm nhà cấp 4 chữ L mái tôn, vui lòng bấm:
Một điểm đặc biệt của các ngôi nhà ống có diện tích 5x20m là có đủ không gian cho gia chủ sở hữu sân trước và sân sau. Nhờ vào chiều dài này, gia đình có thể tận dụng sân trước để làm gara ô tô hoặc không gian chơi cho trẻ nhỏ, đây là những ý tưởng khá hợp lý và sáng tạo.

Bản vẽ 3D nhà ống 2 tầng 5x20 có thiết kế một khoảng sân trước để làm gara (Nguồn: Internet)
Ngoài ra, các bạn có thể tham khảo thêm một số bản vẽ 3D nhà ống 2 tầng 5x20 khác dưới đây:

Bản vẽ 3D nhà ống 2 tầng 5x20 có 1 tum (Nguồn: Internet)

Bản vẽ 3D nhà ống 2 tầng 5x20m đẹp, hiện đại (Nguồn: Internet)
>>> Tham khảo:
Với diện tích 5x16m, bạn có thể xây nhà ống 2 tầng từ 2 - 4 phòng ngủ. Đồng thời, nên ưu tiên sử dụng thiết kế mái bằng, mặt tiền hình hộp tối giản để tổng thể kiến trúc ngôi nhà hiện đại hơn. Phần mái bằng có thể thiết kế thêm 1 tầng tum hoặc tận dụng làm tầng thượng trồng cây cảnh. Đặc biệt, khu vực sân trước nhà thường được tối ưu làm chỗ đậu đỗ xe hoặc trồng thêm một số cây xanh để phòng khách nhà ống 5m thêm phần thông thoáng.

Thiết kế nhà ống 2 tầng 5x16 đẹp, phần sân trước nhà được tận dụng làm gara để ô tô tiện lợi (Nguồn: Internet)

Mẫu nhà mái lệch dạng ống 2 tầng tuyệt đẹp, sang trọng, điểm xuyến thêm các chậu tiểu cảnh xanh tươi (Nguồn: Internet)

Mẫu nhà ống 2 tầng 1 tum 5x16m đẹp, hiện đại (Nguồn: Internet)

Bản vẽ thiết kế nhà ống 2 tầng 5x16m đầy đủ công năng (Nguồn: Internet)
>> Để nhận thông tin và báo giá chi tiết hệ trần - tường - vách thạch cao làm nhà ống, vui lòng bấm:
>>> Xem thêm:
Thông thường các mẫu nhà phố rất khó để tận dụng ánh sáng từ hai bên hông nhà. Do đó, bạn có thể thiết kế thêm phần tum kết hợp với giếng trời nhằm đảm bảo ánh sáng tự nhiên cho ngôi nhà. Ngoài ra, bạn có thể tận dụng phần sân thượng để trồng cây hoặc sử dụng vào các mục đích khác.
>> Xem thêm:

Mẫu thiết kế nhà ống có trần thạch cao 2 tầng 1 tum 3 phòng ngủ (Nguồn: Internet)

Mẫu nhà ống 2 tầng có tum phong cách hiện đại (Nguồn: Internet)

Thiết kế tầng tum làm sân thượng trồng cây xanh mát (Nguồn: Internet)
>> Tìm hiểu thêm về nồm ẩm miền Bắc:
Với diện tích đất mặt tiền hẹp, bạn có thể thiết kế một khoảng sân phía trước để làm chỗ đậu đỗ xe như gợi ý bên dưới. Bên cạnh đó, nếu có đủ chi phí thi công, bạn có thể làm phần hầm tách biệt dành để đậu xe.

Mẫu nhà ống 2 tầng có gara đậu xe trước nhà (Nguồn: Internet)

Thiết kế nhà ống 2 tầng mặt tiền 5m có phòng bếp đẹp và gara rộng (Nguồn: Internet)

Mẫu nhà ống 2 tầng mái Nhật có thiết kế hầm đỗ xe (Nguồn: Internet)

Mẫu nhà ống 2 tầng mái Thái thiết kế hình chữ L có cách âm phòng ngủ hiện đại, thoáng mát (Nguồn: Internet)
>> Để nhận thông tin và báo giá chi tiết hệ trần - tường - vách thạch cao làm nhà ống, vui lòng bấm:
Giếng trời là một không gian được thiết kế theo hướng phương thẳng đứng, từ tầng trệt lên đến mái của một ngôi nhà cao tầng. Đây là một yếu tố rất phổ biến và có vai trò quan trọng trong thiết kế của các công trình nhà ở dân dụng. Giếng trời mang lại nhiều lợi ích, không chỉ làm cho không gian sống trong nhà ống 2 tầng trở nên thoáng mát hơn mà còn có tác động tích cực về mặt phong thủy.

Mẫu thiết kế nhà ống 2 tầng diện tích 5x20m có thi công trần thạch cao và giếng trời (Nguồn: Internet)

Mẫu nhà ống 2 tầng có giếng trời tạo không gian thoáng đãng (Nguồn: Internet)

Khoảng giếng trời bên hông thoáng đãng cho thiết kế nhà ống (Nguồn: Internet)

Mẫu thiết kế giếng trời cho nhà ống 2 tầng phong cách hiện đại (Nguồn: Internet)
>> Để nhận thông tin và báo giá chi tiết hệ trần - tường - vách thạch cao làm nhà cấp 4 chữ L mái tôn, vui lòng bấm:
Thiết kế mái bằng hiện đại mặc dù không có sự bề thế hay đồ sộ như mái Thái, nhưng lại có những ưu điểm vượt trội. Với thiết kế đơn giản và trang nhã, mái bằng đáp ứng được những tiêu chí tối thiểu mà vẫn mang lại vẻ đẹp tinh tế cho ngôi nhà. Đặc biệt, mái bằng phù hợp với thiết kế nhà ống 2 tầng, giúp tạo sự hài hòa cho không gian mặt tiền và giải quyết hiệu quả hạn chế về diện tích khu đất. Đồng thời, phương án thiết kế này cũng đáp ứng được các tiêu chuẩn kỹ thuật xây dựng, đảm bảo sự an toàn và ổn định cho ngôi nhà.

Mẫu nhà ống 2 tầng mái bằng đẹp ở nông thôn (Nguồn: Internet)

Mẫu nhà ống 2 tầng mái bằng 7x10m đẹp, sang trọng (Nguồn: Internet)

Mẫu nhà ống 2 tầng mái bằng 5x20 đơn giản, hiện đại (Nguồn:Internet)

Thiết kế nhà ống 2 tầng mái bằng đẹp, hiện đại (Nguồn: Internet)

Mẫu nhà ống 2 tầng mặt tiền đẹp, thiết kế mái bằng hiện đại và sang trọng (Nguồn: Internet)

Thiết kế mẫu nhà ống 2 tầng chi phí thấp, tổng quan ngôi nhà đơn giản, không quá cầu kỳ (Nguồn: Internet)
>> Để nhận thông tin và báo giá chi tiết hệ trần - tường - vách thạch cao làm nhà ống, vui lòng bấm:
Mẫu nhà ống 2 tầng mái lệch không chỉ tạo cảm giác hiện đại mà còn góp phần tăng cường khả năng thoát nước, hạn chế tình trạng thấm dột đối với những khu vực có mùa mưa kéo dài.

Mẫu nhà ống mái lệch giúp hạn chế tình trạng thấm dột (Nguồn: Internet)

Thiết kế nhà ống 2 tầng có vách thạch cao đẹp, độc đáo, điểm nhấn là độ nghiêng cao hơn thông thường của phần mái (Nguồn: Internet)

Mẫu nhà ống 2 tầng thiết kế mái lệch độc đáo, hiện đại (Nguồn: Internet)

Mẫu thiết kế nhà ống 2 tầng hình chữ L với mái lệch đầy ấn tượng (Nguồn: Internet)
>> Để nhận thông tin và báo giá chi tiết hệ trần - tường - vách thạch cao làm nhà ống, vui lòng bấm:
Thiết kế mái Thái như gợi ý dưới đây mang đến cảm giác khá cổ điển, rất phù hợp với thị hiếu của hầu hết người Việt Nam. Không gian nhà khá rộng rãi nên có thể lựa chọn thiết kế phòng ngủ master, nhà vệ sinh và nhà tắm riêng biệt.

Thiết kế nhà ống mái Thái phù hợp với thị hiếu của nhiều người Việt (Nguồn: Internet)

Mẫu nhà ống 2 tầng đẹp ở nông thôn, thiết kế mái Thái được ưa chuộng nhất 2025. (Nguồn: Internet)

Mẫu nhà ống này cần diện tích thi công khá lớn. Đồng thời, phần mặt tiền được trang trí thêm cây cối xung quanh, giúp không gian thoáng mát hơn (Nguồn: Internet)
>> Để nhận thông tin và báo giá chi tiết hệ trần - tường - vách thạch cao làm nhà cấp 4 chữ L mái tôn, vui lòng bấm:
Đối với các mẫu nhà ống 2 tầng, việc bố trí các khu vực chức năng khá thoải mái. Như gợi ý dưới đây, toàn bộ các khu vực cần thiết như phòng khách, nhà bếp, phòng ngủ, phòng thờ… đều đầy đủ và hợp lý.

Mẫu thiết kế nhà ống 2 tầng 3 phòng ngủ có gara để xe (Nguồn: Internet)

Mẫu nhà ống 2 tầng 3 phòng ngủ cho gia đình trẻ có con nhỏ (Nguồn: Internet)

Bản vẽ 3D nhà ống 2 tầng 5x20m có 3 phòng ngủ đầy đủ tiện nghi (Nguồn: Internet)
>> Để nhận thông tin và báo giá chi tiết hệ trần - tường - vách thạch cao làm nhà ống, vui lòng bấm:
Với những gia đình đông người, bạn có thể tham khảo cách bố trí dưới đây, đảm bảo các công năng sử dụng như phòng khách, phòng ngủ và khu vực phòng thờ hợp phong thủy.

Thiết kế nhà ống 4 phòng ngủ cho những gia đình đông thành viên (Nguồn: Internet)

Mẫu nhà ống 2 tầng thiết kế 4 phòng ngủ cho bé trai, gái tiện nghi, thích hợp cho gia đình nhiều thế hệ (Nguồn: Internet)

Mẫu nhà mái Nhật 4 phòng ngủ được thiết kế 2 tầng (Nguồn: Internet)

Mẫu nhà ống 2 tầng 4 phòng ngủ, 1 phòng thờ (Nguồn: Internet)
>> Để nhận thông tin và báo giá chi tiết hệ trần - tường - vách thạch cao làm nhà cấp 4 chữ L mái tôn, vui lòng bấm:
Thi công nhà ống 2 tầng mặt tiền 5m khá phổ biến ở các khu vực đô thị. Thiết kế dưới đây giúp bạn tận dụng tối đa ánh sáng tự nhiên, khắc phục hiệu quả những nhược điểm phổ biến của các mẫu nhà ống.
>> Xem thêm: Tổng hợp 35+ mẫu nhà ống đẹp 3 tầng 5m xu hướng thiết kế 2025

Có thể thiết kế nhà với nhiều cửa kính để tận dụng ánh sáng (Nguồn: Internet)

Mẫu nhà ống 2 tầng mặt tiền 5m có sử dụng trần thả diệt khuẩn độc đáo, ấn tượng (Nguồn: Internet)

Mẫu nhà ống 2 tầng dành cho khu vực có mặt tiền 5m (Nguồn: Internet)
>> Để nhận thông tin và báo giá chi tiết hệ trần - tường - vách thạch cao làm nhà ống, vui lòng bấm:
Phần mặt tiền 6m tương đối rộng rãi nên bạn hoàn toàn có thể thoải mái thiết kế theo sở thích, có thể trồng thêm vài cây cảnh và hoa như gợi ý dưới đây để ngôi nhà thêm phần sinh động.
>> Xem thêm: 100+ mẫu nhà ống 3 tầng 4m hiện đại, mặt tiền đẹp năm

Gợi ý mẫu nhà ống 3 tầng đẹp với mặt tiền 6m cùng phối cảnh cây xanh (Nguồn: Internet)

Với mặt tiền rộng 6m, bạn có thể thiết kế thêm phần ban công ở bên hông để làm khu vực sinh hoạt ngoài trời. (Nguồn: Internet)

Toàn cảnh căn nhà ống 2 tầng tuyệt đẹp, thiết kế vừa có nét hiện đại, vừa có nét đơn giản truyền thống (Nguồn: Internet)
Với phần mặt tiền 7m, việc bố trí các khu vực chức năng, đặc biệt là các phòng ngủ thông thoáng hoàn toàn không khó với các kiến trúc sư. Như thiết kế dưới đây, mỗi căn phòng đều có cửa sổ và đảm bảo được sự riêng tư tối đa trong quá trình sử dụng.

Mẫu nhà ống 2 tầng mặt tiền 7m đơn giản, phổ biến nhất (Nguồn: Internet)

Tham khảo mẫu thiết kế nhà ống 2 tầng đẹp, bạn có thể tùy chỉnh theo kích thước thực của thuở đất (Nguồn: Internet)
>> Để nhận thông tin và báo giá chi tiết hệ trần - tường - vách thạch cao làm nhà cấp 4 chữ L mái tôn, vui lòng bấm:
Nếu sở hữu mặt tiền lên đến 8m, bạn có thể cân nhắc lựa chọn các mẫu nhà ống có giếng trời hoặc tiểu cảnh bên hông nhà để tận dụng tối đa ánh sáng tự nhiên, đặc biệt là với các công trình nhà ở đô thị. Cổng nhà có thể bố trí hàng rào hoặc các mảng tường kín để vừa tạo khoảng sân thông thoáng cho ngôi nhà vừa đảm bảo sự riêng tư. Có thể sử dụng gạch ốp mặt tiền để tránh tường bị ẩm mốc, làm tăng tuổi thọ cho công trình theo thời gian.

Mẫu nhà ống 2 tầng mặt tiền 8m hiện đại, sang trọng (Nguồn: Internet)

Mẫu thiết kế nhà ống 2 tầng có mặt tiền 8m rộng rãi, sang trọng có phòng khách liền bếp nhà ống tiện nghi (Nguồn: Internet)

Mẫu nhà ống 2 tầng mặt tiền 8m có thiết kế hầm đỗ xe (Nguồn: Internet)
>> Để nhận thông tin và báo giá chi tiết hệ trần - tường - vách thạch cao làm nhà ống, vui lòng bấm:
>> Tham khảo:
Do mặt tiền nhà ống thường khá hẹp, nên việc bố trí không gian sao cho hợp lý và khoa học là yếu tố then chốt. Thông thường, tầng 1 sẽ dành cho phòng khách, bếp – ăn và 1 phòng ngủ hoặc nhà vệ sinh nhỏ, trong khi tầng 2 bố trí phòng ngủ chính, phòng ngủ phụ, phòng thờ và khu giặt phơi. Việc phân chia này giúp tận dụng tối đa diện tích mà vẫn đảm bảo sự riêng tư và tiện nghi cho từng khu vực. Ngoài ra, các lối đi và cầu thang cũng được tính toán hợp lý để không gây cảm giác chật chội hay bí bách, có thể thiết kế vách ngăn cầu thang tam cấp để đảm bảo sự thông thoáng.
Một trong những xu hướng được áp dụng rộng rãi trong nhà ống 2 tầng là thiết kế nội thất theo phong cách mở. Thay vì chia nhỏ không gian bằng các bức tường dày, các khu vực như phòng khách, bếp và khu ăn uống thường được bố trí liên thông để tạo cảm giác rộng rãi và thông thoáng hơn. Sự liên kết giữa các không gian không chỉ giúp tối ưu diện tích sử dụng mà còn góp phần kết nối các thành viên trong gia đình. Bên cạnh đó, việc sử dụng các vật liệu nhẹ, nội thất thông minh và màu sắc tươi sáng cũng là cách hiệu quả để tăng chiều sâu cho không gian.

Mẫu nhà ống 2 tầng hiện đại, sang trọng (Nguồn: Internet)
Do đặc điểm nhà ống có ít mặt thoáng, nên việc tận dụng ánh sáng tự nhiên là yếu tố quan trọng giúp ngôi nhà trở nên sáng sủa và tiết kiệm điện năng. Thiết kế thường sử dụng cửa kính lớn ở mặt tiền, cửa sổ giật cấp ở tầng lầu hoặc hệ giếng trời ở giữa nhà để lấy sáng và đối lưu không khí. Ánh sáng tự nhiên không chỉ làm cho không gian sống dễ chịu hơn mà còn giúp ngăn ngừa ẩm mốc – một vấn đề phổ biến trong những ngôi nhà có ít cửa sổ.
Mặc dù diện tích đất hạn chế, nhưng thiết kế nhà ống hiện đại ngày nay vẫn cố gắng dành một phần nhỏ diện tích cho không gian xanh như sân trước, ban công trồng cây, hoặc giếng trời kết hợp tiểu cảnh. Những mảng xanh này không chỉ mang lại giá trị thẩm mỹ mà còn cải thiện chất lượng không khí và giúp điều hòa nhiệt độ bên trong nhà. Với một vài chậu cây cảnh, gạch lát sân có họa tiết cây cỏ hoặc gạch sỏi, gia chủ có thể tạo ra một khoảng nghỉ ngơi thư giãn giữa lòng thành phố chật chội.

Nhà ống 2 tầng có sân vườn và không gian xanh (Nguồn: Internet)
>> Xem thêm:
Mẫu nhà ống đẹp 2 tầng có đặc điểm nổi bật là chiều rộng nhỏ hơn nhiều lần so với chiều dài. Tổng thể căn nhà sau khi hoàn thiện sẽ có dạng hình khối chữ nhật, phân thành 2 tầng với đầy đủ các khu vực chức năng cần thiết.
Khi thiết kế mẫu nhà 2 tầng kiểu nhà ống cần tuân thủ một số tiêu chuẩn quan trọng nhằm đảm bảo tính thẩm mỹ, công năng sử dụng và sự an toàn cho ngôi nhà. Dưới đây là một số tiêu chuẩn cơ bản:
Diện tích và mặt bằng: Diện tích và mặt bằng là yếu tố quan trọng trong thiết kế nhà ống 2 tầng. Nhà ống thường có chiều rộng từ 3m đến 5m, phù hợp với những mảnh đất hẹp tại các khu đô thị. Chiều dài nhà ống dao động từ 10m đến 20m, tùy thuộc vào diện tích đất cụ thể, giúp tạo nên hình dáng chữ nhật đặc trưng. Việc bố trí mặt bằng cần đảm bảo tối ưu không gian sử dụng và phân chia hợp lý các khu vực chức năng như phòng khách, phòng ngủ, bếp, nhà tắm và nhà vệ sinh.
Chiều cao tầng: Tiêu chuẩn chiều cao tầng trong nhà ống 2 tầng thường được quy định từ 3m đến 3,6m cho tầng trệt và tầng lầu. Việc tuân thủ chiều cao này giúp tạo không gian thông thoáng, đảm bảo sự thoải mái khi sử dụng. Bên cạnh đó, chiều cao hợp lý còn giúp tiết kiệm chi phí xây dựng, đồng thời tạo sự hài hòa về tỷ lệ cho toàn bộ ngôi nhà, không bị quá cao hoặc quá thấp so với mặt tiền hẹp.
Phân bổ không gian: Nhà ống 2 tầng cần được thiết kế với sự phân bổ không gian hợp lý để tận dụng tối đa diện tích. Tầng trệt thường là nơi bố trí phòng khách đẹp, bếp và khu vực ăn uống, trong khi tầng 2 thường là các phòng ngủ và phòng làm việc. Việc bố trí phải đảm bảo sự liên kết giữa các không gian chức năng, vừa tạo cảm giác rộng rãi, vừa đảm bảo tính riêng tư. Ngoài ra, khu vực vách cầu thang cũng cần được tính toán kỹ để không chiếm quá nhiều diện tích.
Ánh sáng và thông gió: Do chiều rộng hẹp, nhà ống 2 tầng cần chú trọng đến việc tối ưu ánh sáng và thông gió tự nhiên. Các giải pháp phổ biến bao gồm thiết kế giếng trời, sử dụng cửa kính lớn, hoặc bố trí cửa sổ ở mặt trước và sau nhà. Việc này giúp lưu thông không khí tốt hơn, tạo không gian thoáng đãng, hạn chế tình trạng tường bị ẩm mốc vào mùa mưa và còn giúp tiết kiệm năng lượng chiếu sáng vào ban ngày.
Phong cách thiết kế: Nhà ống 2 tầng cần có sự hài hòa giữa các không gian. Thiết kế nội thất phòng khách là chủ đạo để lựa chọn vật trang trí cho những không gian khác. Phong cách hiện đại thường sử dụng các đường nét thẳng, vật liệu kính, gỗ và kim loại để tạo cảm giác trẻ trung và sang trọng. Ngược lại, phòng khách tân cổ điển lại chú trọng đến chi tiết trang trí cầu kỳ hơn, mang lại vẻ đẹp cổ điển và quý phái cho ngôi nhà.
An toàn và kết cấu: Đối với nhà ống 2 tầng, việc đảm bảo kết cấu an toàn là vô cùng quan trọng. Phần móng nhà cần được thiết kế vững chắc, nhất là khi xây dựng trên đất yếu hoặc đất hẹp. Các cột, dầm và tường chịu lực phải được tính toán kỹ lưỡng để đảm bảo ngôi nhà có thể chịu được tác động từ môi trường, như gió, động đất hoặc các yếu tố thời tiết khác. Ngoài ra, các tiêu chuẩn về phòng cháy chữa cháy và an toàn điện nước cũng phải được đảm bảo tuyệt đối.
Những tiêu chuẩn này giúp thiết kế nhà ống 2 tầng không chỉ đảm bảo về mặt thẩm mỹ mà còn an toàn và tiện nghi trong quá trình sử dụng.

Nhà ống 2 tầng được xây dựng phổ biến ở những khu vực đông dân, đất dài và hẹp (Nguồn: Internet)
>> Xem thêm:
Một trong những lý do khiến nhà ống 2 tầng trở thành xu hướng phổ biến hiện nay chính là nhờ những lợi thế rõ rệt về chi phí, thời gian thi công và khả năng thích ứng với nhiều kiểu đất:
Chi phí xây dựng hợp lý: So với các mẫu nhà cao tầng hoặc biệt thự, nhà ống 2 tầng có chi phí đầu tư vừa phải, phù hợp với tài chính của nhiều gia đình trẻ hoặc hộ gia đình trung lưu.
Thời gian thi công nhanh: Do kết cấu đơn giản và không đòi hỏi kỹ thuật quá phức tạp, thời gian xây dựng nhà ống 2 tầng thường rút ngắn, giúp gia chủ sớm ổn định nơi ở và tiết kiệm chi phí nhân công.
Tối ưu hóa công năng trên diện tích hẹp: Với cách bố trí không gian thông minh, nhà ống 2 tầng hoàn toàn có thể đáp ứng đầy đủ nhu cầu sinh hoạt như phòng khách, bếp, 2–3 phòng ngủ, phòng thờ, sân phơi… ngay cả khi diện tích đất chỉ khoảng 4–5m mặt tiền.
Thẩm mỹ hiện đại, dễ tùy biến: Nhà ống 2 tầng dễ dàng thiết kế theo nhiều phong cách khác nhau – từ hiện đại, tân cổ điển đến tối giản. Ngoài ra, mặt tiền cũng có thể linh hoạt biến hóa với nhiều chất liệu và màu sắc khác nhau.

Mẫu nhà ống đẹp 2 tầng thiết kế mái hình chóp độc đáo kết hợp với mẫu trần thả đẹp (Nguồn: Internet)
Tuy sở hữu nhiều ưu điểm, nhà ống 2 tầng cũng tồn tại một số hạn chế nhất định mà gia chủ cần cân nhắc trước khi xây dựng:
Hạn chế về chiều ngang: Do đặc điểm hình dạng “ống”, ngôi nhà thường có mặt tiền hẹp, dẫn đến việc bố trí nội thất hoặc lấy sáng ngang gặp nhiều khó khăn nếu không có giếng trời hoặc khoảng thông tầng.
Thiếu sự riêng tư giữa các không gian: Nếu không thiết kế kỹ lưỡng, các khu vực trong nhà có thể bị thông nhau quá nhiều, gây cảm giác thiếu kín đáo, đặc biệt là khi có khách đến thăm hoặc nhà có nhiều thế hệ cùng sinh sống.
Khó thay đổi kết cấu trong tương lai: Khi đã xây cố định theo dạng ống, việc cải tạo hoặc mở rộng không gian (đặc biệt là chiều ngang) sẽ gặp nhiều hạn chế hơn so với những dạng nhà vuông hoặc biệt thự.
>> Xem thêm:
Tùy theo nhu cầu và phong cách lựa chọn, chi phí thiết kế của mỗi mẫu nhà đẹp sẽ khác nhau. Để đáp ứng mọi nhu cầu khách hàng, Vĩnh Tường cung cấp 3 gói thiết kế như sau:
| Hạng mục thiết kế | Đơn giá (VNĐ/m²) | Mô tả chi tiết |
| Thiết kế kiến trúc cơ bản | 150.000 | Bản vẽ mặt bằng, mặt đứng, mặt cắt |
| Thiết kế kiến trúc và phối cảnh 3D | 160.000 - 180.000 | Bản vẽ mặt bằng, mặt đứng, mặt cắt, phối cảnh mặt tiền hoặc toàn bộ ngôi nhà |
| Thiết kế kiến trúc và nội thất 3D | 180.000 - 200.000 |
Bao gồm bản vẽ kiến trúc + phối cảnh nội thất phòng khách, bếp, phòng ngủ |
| Thiết kế full hồ sơ kỹ thuật | 180.000 - 200.000 | Hồ sơ đầy đủ kiến trúc + kết cấu + điện nước + phối cảnh 3D nội & ngoại thất |
Lưu ý: Bảng giá trên chỉ mang tính chất tham khảo vì chi phí có thể khác nhau tùy theo nhu cầu và quy mô của căn nhà.
>> Xem thêm:
Khi thi công nhà ống 2 tầng, đặc biệt là ở khu vực đô thị, bạn cần lưu ý một số điểm sau để đảm bảo công trình đáp ứng được nhu cầu sinh hoạt cần thiết và độ bền sử dụng tối đa:
Lưu ý về diện tích sử dụng: Không ít người vì diện tích đất hạn chế nên muốn xây dựng nhà ống trên toàn bộ phần đất sở hữu mà không chú ý đến nhu cầu sử dụng cũng như khả năng đón sáng, đón gió của công trình. Điều này rất dễ gây lãng phí tiền bạc, khó khắc phục các nhược điểm của nhà ống thông thường.
Thiết kế: Thiết kế là phần rất quan trọng nếu bạn muốn có một ngôi nhà độc đáo, thẩm mỹ cao. Trước khi tiến hành xây dựng, bạn nên cân nhắc các yếu tố về sở thích như lựa chọn trần nhà đẹp, màu sơn cho ngôi nhà...và nhu cầu sử dụng cũng như điều kiện tài chính để tránh phát sinh ngoài ý muốn.
Lựa chọn vật liệu thi công: Nếu muốn ngôi nhà bền vững theo thời gian, bạn cần chú ý lựa chọn vật liệu thi công chất lượng, thân thiện với người sử dụng và có khả năng chống chịu tốt trong môi trường khí hậu khắc nghiệt.

Trước khi thi công nhà ống 2 tầng, các bạn cần lưu ý chọn kiểu dáng thiết kế và vật liệu thi công phù hợp (Nguồn: Internet)
>> Có thể bạn quan tâm:
Bài viết này đã giúp bạn tổng hợp những mẫu nhà ống 2 tầng đẹp, hiện đại, thiết kế mới nhất. Hy vọng bạn có thể lựa chọn được mẫu thiết kế phù hợp với sở thích, công năng và chi phí thi công. Mọi thắc mắc về giải pháp trần thạch cao, vui lòng liên hệ:
Địa chỉ trụ sở chính: Tầng 8 - Tòa nhà SOFIC Tower, 10 Đường Mai Chí Thọ, Quận 2, Thành phố Hồ Chí Minh.
Thời gian hoạt động:
Thứ 2 - Thứ 6: từ 8h30 – 17h30
Thứ 7: Từ 8h00 - 12h00
Liên hệ qua số điện thoại: 1800-1218 hoặc trang website: https://vinhtuong.com/lien-he
Tag: trần thạch cao phòng khách, mẫu trần thạch cao phòng ngủ, trần thạch cao phòng ngủ trẻ em, trần thạch cao phòng ngủ nhỏ 10m2, trần thạch cao phòng thờ, trần nhà vệ sinh, trần thạch cao phòng bếp, mẫu trần thạch cao phòng khách 25m2, trần thạch cao văn phòng, trần thạch cao tân cổ điển, mẫu trần thạch cao phòng khách hình chữ nhật, mẫu trần thạch cao phòng khách hình tròn, mẫu trần thạch cao phòng khách có quạt trần, trần thạch cao hình ngôi sao, mẫu trần thạch cao hình elip