75+ mẫu nhà gác lửng 3 phòng ngủ đẹp, hiện đại, giá rẻ nhất 2026
Logo Vinh Tuong

vinhtuong đăng vào lúc 16/12/2025 - 16:31

75+ mẫu nhà gác lửng 3 phòng ngủ đẹp, hiện đại, chi phí thấp 2026

75+ mẫu nhà gác lửng 3 phòng ngủ đẹp, hiện đại, chi phí thấp 2026

Mẫu nhà gác lửng 3 phòng ngủ 500 triệu đẹp, hiện đại, ấn tượng

Mẫu nhà gác lửng 3 phòng ngủ đẹp, đơn giản, giá rẻ 500 triệu (Nguồn: Internet)

Mục Lục
Xem thêm

Hiện nay các gia đình có 2, 3 thế hệ cùng sinh sống vẫn rất phổ biến. Đây cũng là lý do các mẫu nhà đẹp, nhà gác lửng 3 phòng ngủ rất được quan tâm. Kiểu thiết kế này có thể đáp ứng đầy đủ nhu cầu cho các thành viên trong gia đình với mức giá rất hợp lý. Cùng Vĩnh Tường tham khảo ngay 30+ mẫu nhà gác lửng 3 phòng ngủ hiện đại trong bài viết để có thêm nhiều ý tưởng cho tổ ấm của mình!

Liên Hệ Để Được Tư Vấn

Ưu điểm của nhà gác lửng 3 phòng ngủ

Tối ưu hóa không gian

Một trong những đặc trưng dễ nhận thấy nhất của các mẫu nhà gác lửng 3 phòng ngủ là khả năng tận dụng không gian linh hoạt, đảm bảo được sự thông thoáng cần thiết cho ngôi nhà. Bên cạnh đó, khu vực gác lửng có thể cải tạo thành phòng thờ, khu vực đọc sách hoặc phòng ngủ phụ tùy theo nhu cầu.

Nhà gác lửng 3 phòng ngủ

Mẫu nhà cấp 4 đẹp có gác lửng 3 phòng ngủ đơn giản và hiện đại (Nguồn: Internet)

>> Nhà gác lửng là gì? Khái niệm và ưu điểm nổi bật khi thiết kế | Vĩnh Tường

Tiết kiệm chi phí

Bên cạnh đó, so với các mẫu nhà 3 phòng ngủ khác, nhà cấp 4 gác lửng thường có chi phí hoàn thiện thấp hơn do có thiết kế đơn giản, ít tầng giúp tiết kiệm đáng kể chi phí nhân công và vật liệu xây dựng

Tính toán vật tư tại đây

Thiết kế đa dạng

Ngoài ra, các mẫu nhà gác lửng 3 phòng ngủ hiện nay không bị giới hạn bởi một phong cách nhất định. Tùy vào nhu cầu và sở thích của gia chủ, đơn vị thi công có thể triển khai nhiều mẫu thiết kế khác nhau.

  • Phong cách hiện đại: Ưu tiên tối đa hóa ánh sáng tự nhiên qua hệ cửa kính rộng và vật liệu thạch cao, kết hợp nội thất đơn giản, sắc trắng – xám – be làm chủ đạo, giúp không gian trở nên mở, thanh lịch và dễ chịu.
  • Phong cách cổ điển: Gợi nhớ nét đẹp truyền thống thông qua việc sử dụng chất liệu như gỗ tự nhiên, gạch nung, kết hợp với các chi tiết nội thất mang hơi thở hoài cổ, tạo nên vẻ đẹp sang trọng và ấm áp.
  • Phong cách tối giản: Lược bỏ mọi chi tiết cầu kỳ, tập trung vào bố cục gọn gàng, màu sắc nhẹ nhàng như trắng, kem, ghi sáng… giúp ngôi nhà luôn gọn gàng, thoáng đãng và thư giãn.

Báo giá ngay

>> Tham khảo thêm:

Thích hợp với nhiều đối tượng

Nhà gác lửng 3 phòng ngủ là lựa chọn lý tưởng cho nhiều nhóm đối tượng nhờ thiết kế thông minh, tận dụng tối đa không gian mà vẫn đảm bảo sự riêng tư và tiện nghi. Với diện tích không quá lớn nhưng được phân chia hợp lý, kiểu nhà này phù hợp cho:

  • Gia đình trẻ từ 3–5 thành viên: Có thể thiết kế phòng ngủ master cho bố mẹ và 2 phòng ngủ nhỏ cho con cái có không gian sinh hoạt riêng biệt, tạo sự thoải mái trong sinh hoạt hàng ngày.

  • Gia đình có người lớn tuổi: Thiết kế gác lửng cho phép bố trí một phòng ngủ ở tầng trệt, thuận tiện cho ông bà hoặc người lớn tuổi không phải leo cầu thang.

  • Người độc thân hoặc cặp đôi đầu tư cho tương lai: Với chi phí xây dựng hợp lý và công năng đầy đủ, nhà gác lửng 3 phòng ngủ là giải pháp tiết kiệm nhưng vẫn đảm bảo không gian để mở rộng gia đình sau này.

  • Nhà cho thuê hoặc homestay: Với nhu cầu lưu trú ngắn hạn hoặc dài hạn ngày càng tăng, mẫu nhà này cũng rất phù hợp để đầu tư làm nhà trọ cao cấp hoặc homestay.

Mẫu nhà gác lửng 3 phòng ngủ với nhiều ưu điểm nổi bật

Mẫu nhà gác lửng 3 phòng ngủ với nhiều ưu điểm nổi bật (Nguồn: Internet)

Liên Hệ Để Được Tư Vấn

>> Xem thêm:

Top các mẫu nhà gác lửng 3 phòng ngủ đẹp, ấn tượng nhất 2025

1. Mẫu nhà cấp 4 gác lửng 3 phòng ngủ 4x15

Mẫu nhà cấp 4 gác lửng 3 phòng ngủ kích thước 4x15m là lựa chọn lý tưởng cho những gia đình sở hữu diện tích đất vừa phải. Thiết kế này không chỉ tối ưu hóa không gian sống mà còn đảm bảo đầy đủ tiện nghi cho các thành viên trong gia đình. Phần gác lửng được bố trí hợp lý, giúp mở rộng diện tích sử dụng mà không làm tăng chi phí xây dựng đáng kể. Việc tận dụng ánh sáng tự nhiên và thông gió hiệu quả mang lại không gian sống thoải mái và thoáng đãng.

Mẫu nhà gác lửng 3 phòng ngủ 4x15 hiện đại, giá rẻ 300 triệu

Mẫu nhà mái Nhật 1 tầng có gác lửng 3 phòng ngủ 4x15 hiện đại, giá rẻ 300 triệu (Nguồn: Internet)

 Tìm thầu thợ thi công

>>> Tham khảo: 

  • 100+ Mẫu nhà mái Nhật đẹp và thịnh hành nhất năm 2025
  • 20+ Mẫu nhà mái Nhật 2 tầng đẹp hiện đại, xu hướng hiện nay

2. Mẫu nhà gác lửng 3 phòng ngủ 5x12

Với diện tích 5x12m, mẫu nhà gác lửng 3 phòng ngủ phù hợp với những khu đất nhỏ hoặc nằm trong khu đô thị đông dân cư. Dù diện tích không lớn, nhưng nhờ vào thiết kế gác lửng thông minh, ngôi nhà vẫn đáp ứng đầy đủ công năng cần thiết. Các khu vực như phòng khách, bếp, phòng ngủ và gác lửng được sắp xếp khoa học, tận dụng tối đa từng mét vuông. Đây là giải pháp hiệu quả cho các gia đình trẻ hoặc gia đình từ 3–5 người.

Mẫu nhà cấp 4 gác lửng 3 phòng ngủ 5x12 tiện nghi, đầy đủ công năng

Mẫu nhà mái Thái 1 tầng có gác lửng 3 phòng ngủ 5x12 tiện nghi, đầy đủ công năng (Nguồn: Internet)

Tìm thầu thợ thi công

>>> Tham khảo: 

3. Mẫu nhà cấp 4 gác lửng 3 phòng ngủ 5x15

Mẫu nhà cấp 4 gác lửng 3 phòng ngủ kích thước 5x15m mang đến sự cân đối giữa diện tích xây dựng và chi phí đầu tư. Với mặt tiền nhà gác lửng rộng 5m, ngôi nhà dễ dàng thiết kế theo nhiều phong cách như hiện đại, mái Thái hay mái lệch. Tầng trệt bố trí các không gian sinh hoạt chung, trong khi phần gác lửng được tận dụng để bố trí phòng ngủ hoặc phòng thờ. Kiến trúc này phù hợp với cả thành thị và nông thôn, đặc biệt dành cho những gia đình mong muốn không gian sống tiện nghi mà vẫn tiết kiệm chi phí.

Mẫu nhà cấp 4 gác lửng 3 phòng ngủ 5x15 đẹp, hiện đại nhất 2025

Mẫu nhà cấp 4 gác lửng 3 phòng ngủ 5x15 đẹp, hiện đại nhất 2025 (Nguồn: Internet)

Tìm thầu thợ thi công

>>> Xem thêm:

  • 35+ mẫu nhà cấp 4 mái Thái đẹp, xu hướng, tiết kiệm chi phí
  • 25+ mẫu nhà cấp 4 mái Nhật đẹp, hiện đại, sang trọng, ấn tượng

4. Mẫu nhà gác lửng 3 phòng ngủ 5x20m

Nhà cấp 4 gác lửng 3 phòng ngủ diện tích 5x20m là lựa chọn hoàn hảo cho những gia đình trẻ khi vừa đáp ứng được nhu cầu về không gian sống tiện nghi, vừa tiết kiệm được chi phí xây dựng tương tự như nhà cấp 4 mái bằng 5x20. Với thiết kế nhà ống dài, nhà gác lửng 3 phòng ngủ  không chỉ giúp tận dụng tối đa diện tích mà còn tạo nên một không gian sống liền mạch, thuận tiện cho việc sinh hoạt. Ngoài ra,  bạn có thể bố trí cửa sổ và các ô thoáng hợp lý để ngôi nhà luôn tràn đầy ánh sáng tự nhiên và thông thoáng, thoải mái.

Mẫu thiết kế nhà ống gác lửng 5x30m

Mẫu nhà ống đẹp có gác lửng 5x30m rộng rãi, có chiều sâu (Nguồn: Internet)

Thiet-ke-nha-gac-lung-500-trieu

Thiết kế nhà ống cấp 4 có gác lửng với gam màu trắng hiện đại (Nguồn: Internet)

Tìm thầu thợ thi công

>> Xem thêm:

  • 101+ Mẫu nhà ống 2 tầng đẹp, hiện đại và đơn giản, giá dưới 1 tỷ
  • 53+ Mẫu nhà ống hiện đại 3 tầng đẹp hút hồn, HOT nhất 2025

5. Mẫu nhà gác lửng 3 phòng ngủ đẹp 140m2

Với diện tích xây dựng trên 100m2, mẫu nhà cấp 4 3 phòng ngủ trở nên vô cùng linh hoạt, đáp ứng được đa dạng nhu cầu của gia chủ. Ngoài những cách bố trí không gian cơ bản như phòng khách, bếp, phòng ngủ, nhà tắmnhà vệ sinh thì gia chủ còn có thể bố trí thêm phòng tập gym, phòng đọc sách hay thậm chí là một góc làm việc yên tĩnh, thư giãn sau một ngày làm việc căng thẳng.

Bố trí nội thất nhà gác lửng 3 phòng ngủ 140m2

Bố trí nội thất nhà gác lửng 3 phòng ngủ 140m2 (Nguồn: Internet)

Nhà gác lửng 3 phòng ngủ 500 triệu

Mẫu nhà cấp 4 nông thôn 3 phòng ngủ kết hợp gác lửng với 500 triệu (Nguồn: Internet)

Tìm thầu thợ thi công

>>> Xem thêm: 

6. Mẫu nhà gác lửng 3 phòng ngủ 300 triệu

Các mẫu nhà gác lửng 3 phòng ngủ 300 triệu là gợi ý tối ưu cho những gia đình muốn tối đa không gian sinh hoạt với mức kinh phí phải chăng. Không cần phải bỏ ra khoản đầu tư ban đầu quá lớn, bạn hoàn toàn có thể sở hữu một căn nhà đầy đủ công năng, tiện nghi và hiện đại, bao gồm 3 phòng ngủ, phòng khách liên bếp 20m2 tiết kiệm diện  và 2 nhà vệ sinh nhỏ đẹp.

Mẫu nhà gác lửng 3 phòng ngủ 300 triệu hiện đại, ấn tượng

Mẫu nhà gác lửng 3 phòng ngủ 300 triệu đơn giản (Nguồn: Internet)

Nhà gác lửng 3 phòng ngủ 300 triệu thiết kế tiết kiệm chi phí

Mẫu nhà gác lửng 3 phòng ngủ 300 triệu với thiết kế cầu thang nối liền gác lửng để mở rộng diện tích căn nhà (Nguồn: Internet)

Bản vẽ nhà gác lửng 3 phòng ngủ 300 triệu tiện nghi

Bản vẽ mặt bằng tầng trệt nhà cấp 4 gác lửng 3 phòng ngủ mái dốc hiện đại giá 300 triệu (Nguồn: Internet)

Tìm thầu thợ thi công

Tham khảo:

7. Mẫu nhà gác lửng 3 phòng ngủ 400 triệu

Với kinh phí ban đầu khoảng 400 triệu, bạn hoàn toàn có thể sở hữu một không gian sống tiện nghi với mẫu nhà gác lửng 3 phòng ngủ. Thiết kế này phù hợp với gia đình từ 2-3 thế hệ, cần nhiều khu vực chức năng có thể linh hoạt thay đổi khi cần thiết. Theo đó, phần gác lửng có thể sử dụng làm phòng thờ, khu vực đọc sách hay phòng ngủ phụ.

Mẫu nhà gác lửng  3 phòng ngủ  400 triệu

Mẫu nhà gác lửng 400 triệu với 3 phòng ngủ hiện đại, sang trọng (Nguồn: Internet)

Mẫu nhà gác lửng  3 phòng ngủ  400 triệu (1)

Phòng khách nhà ống 5m hiện đại với thiết kế gác lửng 3 phòng ngủ (Nguồn: Internet)

Tìm thầu thợ thi công

>> Xem thêm:

  • Nhà sàn là gì? Mẫu nhà sàn đẹp, kiến trúc độc đáo ấn tượng
  • Mẫu nhà gỗ đẹp, hiện đại, xu hướng được ưa chuộng nhất
  • Nhà ba gian là gì? Mẫu thiết kế nhà 3 gian truyền thống đơn giản

8. Mẫu nhà gác lửng 3 phòng ngủ 500 triệu

Hiện nay, nhà gác lửng 3 phòng ngủ 500 triệu rất đa dạng về kiểu dáng thiết kế. Bạn có thể trang trí gác lửng tối giản, hiện đại hoặc cổ điển tùy theo sở thích cá nhân. Ngoài ra, có thể thiết kế vách ngăn cầu thang với phòng khách để tạo điểm nhấn cho không gian, đặc biệt là vách ngăn cầu thang tam cấp sẽ giúp tối ưu công năng sử dụng.

Nhà gác lửng 3 phòng ngủ 500 triệu (1)

Mẫu thiết kế nhà gác lửng 500 triệu hiện đại, tối giản (Nguồn: Internet)

nhà gác lửng 3 phòng ngủ 500 triệu (2)

Trang trí nhà gác lửng 3 phòng ngủ 500 triệu đẹp với bức tranh đơn giản, ấn tượng (Nguồn: Internet)

Tìm thầu thợ thi công

>> Xem thêm: 

9. Mẫu nhà gác lửng 3 phòng ngủ 600 triệu

Với mức tài chính 600 triệu, gia chủ có thể chú trọng hơn về chất lượng vật liệu và nội thất trong quá trình thi công. Điều này không chỉ giúp tăng độ bền cho công trình mà còn tăng thêm sự sang trọng, tiện nghi trong quá trình sử dụng về sau. Ngoài ra, nếu muốn ngôi nhà tăng thêm phần thú vị, thiết kế nhà vườn là gợi ý cực kỳ lý tưởng.

Kiểu nhà gác lửng 600 triệu với 3 phòng ngủ

Kiểu nhà gác lửng 600 triệu với 3 phòng ngủ ngủ tiện nghi, độc đáo (Nguồn: Internet)

nhà gác lửng 600 triệu với 3 phòng ngủ

Trang trí phòng khách nhà gác lửng 600 triệu với ghế sofa màu sáng (Nguồn: Internet)

Bản vẽ mặt bằng tầng lầu nhà cấp 4 gác lửng 3 phòng ngủ 600 triệu

Bản vẽ mặt bằng tầng lầu nhà cấp 4 gác lửng 3 phòng ngủ 600 triệu (Nguồn: Internet)

Tìm thầu thợ thi công

>> Xem thêm: 

10. Mẫu nhà gác lửng 3 phòng ngủ 700 triệu

Các mẫu nhà gác lửng 300 ngủ 700 triệu nên lựa chọn một số thiết kế thông minh, tận dụng tối đa diện tích để không gian sống tiện nghi và sang trọng hơn. Ngoài ra, với chi phí 700 triệu, gia chủ có thể đầu tư thiết kế nhà kiểu Nhật nếu muốn trải nghiệm không gian sống nhẹ nhàng, thư thái và vô cùng ấm cúng.

65+ Mẫu nhà gác lửng 3 phòng ngủ đẹp, hiện đại nhất 2025 | DURAflex

Trang trí nhà gác lửng 3 phòng ngủ 700 triệu bằng gỗ độc đáo (Nguồn: Internet)

Trang trí nhà gác lửng 3 phòng ngủ 700 triệu

Thiết kế nhà gác lửng 3 phòng ngủ 700 triệu hiện đại với hệ trần thạch cao ấn tượng (Nguồn: Internet)

Tìm thầu thợ thi công

>> Xem thêm: 

11. Mẫu nhà gác lửng 3 phòng ngủ ở nông thôn

Đặc trưng ở các khu vực nông thôn là diện tích xây dựng khá rộng rãi. Do đó, gia chủ có thể lựa chọn các mẫu nhà gác lửng 3 phòng ngủ rộng rãi, gần gũi với thiên nhiên. Thiết kế này rất phù hợp với các gia đình có nhiều thế hệ, đặc biệt là các thành viên lớn tuổi.

Ngoài ra, hiện nay, mẫu nhà gác lửng với hệ trần thạch cao hiện rất thịnh hành, được nhiều gia chủ yêu thích nhờ kết hợp nhiều ưu điểm vượt trội như thẩm mỹ cao, khả năng cách âm, cách nhiệt, chống cháy lan hiệu quả.

Thiết kế nhà gác lửng 3 phòng ngủ

Mẫu nhà gác lửng 3 phòng ngủ ở nông thôn đơn giản (Nguồn: Internet)

Mẫu nhà gác lửng 3 phòng mái lệch

Thiết kế nhà gác lửng 3 phòng ngủ với mái lệch độc đáo, hiện đại (Nguồn: Internet)

Tìm thầu thợ thi công

>> Xem thêm: 

12. Mẫu nhà gác lửng 3 phòng ngủ hiện đại

Với thiết kế thông minh và linh hoạt, mẫu nhà gác lửng 3 phòng ngủ hiện đại là giải pháp tối ưu cho những gia chủ có không gian sống hạn chế. Việc sử dụng các đường nét đơn giản, vật liệu kính, thép và gỗ cùng với mẫu trần thạch cao phòng ngủ độc đáo, đèn LED chiếu sáng tự nhiên đã tạo cho bạn một không gian sống hiện đại, sang trọng và đầy đủ tiện nghi.

Mẫu nhà gác lửng 3 phòng ngủ giá rẻ 300 triệu với nội thất gỗ

Mẫu nhà gác lửng 3 phòng ngủ đẹp, hiện đại(Nguồn: Internet)

Mẫu nhà gác lửng 3 phòng ngủ đẹp, hiện đại

Mẫu nhà gác lửng 3 phòng ngủ đẹp, hiện đại (Nguồn: Internet)

Tìm thầu thợ thi công

13. Mẫu nhà gác lửng 3 phòng ngủ đơn giản

Với phong cách thiết kế tối giản, tập trung vào công năng sử dụng đã tạo nên một nhà gác lửng 3 phòng ngủ hiện đại và thanh lịch. Mẫu nhà gác lửng này là lựa chọn hoàn hảo cho những gia chủ có diện tích đất hạn chế khi vừa giúp bạn tiết kiệm diện tích đất, tiết kiệm chi phí, vừa tăng không gian sống cho căn nhà.

Mẫu nhà cấp 4 3 phòng ngủ có gác lửng hiện đại giá 300 triệu

Mẫu nhà cấp 4 3 phòng ngủ có gác lửng hiện đại giá 300 triệu (Nguồn: Internet)

mặt tiền nhà gác lửng 3 phòng ngủ

Mẫu nhà gác lửng đơn giản với thiết kế 3 phòng ngủ (Nguồn: Internet)

Tìm thầu thợ thi công

>> Xem thêm: Mẫu nhà mái lệch thiết kế đẹp, hiện đại, được ưa chuộng

14. Mẫu nhà cấp 4 gác lửng 3 phòng ngủ 1 phòng thờ

Thờ cúng ông bà tổ tiên là một phần không thể thiếu trong văn hoá Việt Nam. Thông thường, các mẫu nhà gác lửng 3 phòng ngủ sẽ bố trí phòng thờ ở khu vực tầng lửng. Điều này sẽ đảm bảo được sự trang trọng, riêng tư cho khu vực thờ tự và thuận tiện trong quá trình sinh hoạt hằng ngày.

Nhà cấp 4 gác lửng 3 phòng ngủ 1 phòng thờ đơn giản

Mẫu nhà cấp 4 mái thái 8x12m gác lửng 3 phòng ngủ 1 phòng thờ đơn giản (Nguồn: Internet)

Thiết kế nhà gác lửng với 3 phòng ngủ 1 phòng thờ ấn tượng

Thiết kế nhà gác lửng với 3 phòng ngủ 1 phòng thờ ấn tượng (Nguồn: Internet)

Tìm thầu thợ thi công

15. Mẫu nhà gác lửng 3 phòng ngủ có sân thượng

Đối với các mẫu nhà gác lửng 3 phòng ngủ xây dựng ở khu vực đô thị hoặc có diện tích đất hẹp, thiết kế sân thượng sẽ là gợi ý lý tưởng để nâng cao chất lượng sống. Khu vực này cho phép các thành viên có không gian thư giãn, hóng mát hoặc tổ chức các bữa tiệc nhỏ ít người.

mẫu nhà gác lửng 3 phòng ngủ có sân thượng

Thiết kế mẫu nhà gác lửng 3 phòng ngủ có sân thượng (Nguồn: Internet)

>> 54+ Mẫu nhà cấp 4 đẹp, giá rẻ 300 triệu, đơn giản, tiết kiệm chi phí 

mẫu nhà gác lửng 3 phòng ngủ có sân thượng

Không gian nhà gác lửng ấn tượng hơn với thiết kế sân thượng rộng rãi (Nguồn: Internet)

Tìm thầu thợ thi công

16. Mẫu nhà gác lửng 3 phòng ngủ có sân vườn

Các mẫu thiết kế nhà gác lửng 3 phòng ngủ có sân vườn thường ưu tiên sự đơn giản, tinh tế và các đường nét gọn gàng. Cây xanh và các loại hoa sẽ được bố trí một cách tinh tế để tạo điểm nhấn cho căn nhà mà không làm rối mắt người nhìn.

Thiết kế nhà gác lửng 3 phòng ngủ có sân vườn

Thiết kế nhà gác lửng 3 phòng ngủ có sân vườn tinh tế, hiện đại (Nguồn: Internet)

Tìm thầu thợ thi công

>> Tham khảo thêm: 

17. Mẫu nhà gác lửng 3 phòng ngủ chữ L

Thiết kế gác lửng 3 phòng ngủ nhà cấp 4 chữ L giúp tối đa hoá không gian sinh hoạt động thời tận dụng triệt để ánh sáng tự nhiên. Đây được xem là lựa chọn thông minh cho các khu đất có diện tích dài nhưng hẹp về chiều rộng.

Nhà gác lững chữ L nông thôn 3 phòng ngủ

Thiết kế nhà gác lửng nông thôn chữ L đơn giản (Nguồn: Internet)

Nhà cấp 4 gác lửng 3 phòng ngủ chữ L

Nhà cấp 4 gác lửng 3 phòng ngủ chữ L phổ biến hiện nay (Nguồn: Internet)

Tìm thầu thợ thi công

18. Mẫu nhà gác lửng 3 phòng ngủ mái tôn

Nhà gác lửng 3 phòng ngủ mái tôn khá phổ biến ở một số khu vực. Mái tôn có thể thi công nhanh chóng, độ bền cao với mức chi phí phải chăng. Ngoài ra, mái tôn cũng giúp thoát nước tốt hơn đối với những khu vực mưa nhiều.

Mẫu nhà gác lửng 3 phòng ngủ mái tôn

Mẫu nhà gác lửng 3 phòng ngủ mái tôn đơn giản (Nguồn: Internet)

nhà gác lửng 3 phòng ngủ mái tôn đơn giản

Thiết kế nhà mái tôn hiện đại cho nhà có diện tích hạn chế (Nguồn: Internet)

Tính toán vật tư tại đây

>> 35+ Mẫu nhà mái lệch đẹp, hiện đại, được ưa chuộng hiện nay 

19. Mẫu nhà gác lửng 3 phòng ngủ mái ngói

Các mẫu nhà gác lửng 3 phòng ngủ mái ngói có ưu điểm vượt trội là mát mẻ vào mùa hè và ấm áp vào mùa đông, rất phù hợp với các khu vực có điều kiện thời tiết khắc nghiệt. Hơn nữa, phần mái ngói cũng rất phù hợp với thiết kế kiểu cổ điển, truyền thống.

Thiết kế nhà gác lửng mái ngói

Thiết kế nhà mái lệch hiện đại cho nhà gác lửng 3 phòng ngủ (Nguồn: Internet)

Kiểu nhà gác lửng mái ngói đơn giản

Kiểu nhà gác lửng mái ngói đơn giản, hiện đại (Nguồn: Internet)

Tính toán vật tư tại đây

20. Mẫu nhà gác lửng 3 phòng ngủ mái Thái

Thiết kế gác lửng nhà mái Thái có độ dốc vừa phải, hỗ trợ thoát nước tốt đồng thời tạo ấn tượng về mặt thị giác nhiều hơn so với các thiết kế khác. Ngoài ra, phần nhô của mái cũng giúp phần gác lửng thêm rộng rãi, thoải mái, thuận tiện sử dụng.

nhà gác lửng 3 phòng ngủ mái Thái

Mẫu nhà gác lửng 3 phòng ngủ mái Thái (Nguồn: Internet)

>> Top 30 mẫu nhà lắp ghép 50 triệu giá rẻ đẹp, tiện nghi nhất 2025 

nhà gác lửng mái Thái hiện đại

Mẫu nhà cấp 4 mái Thái 3 phòng ngủ đẹp, tiện nghi (Nguồn: Internet)

Tính toán vật tư tại đây

21. Mẫu nhà gác lửng 3 phòng ngủ mái Nhật

Các thiết kế nhà gác lửng 3 phòng ngủ mái Nhật khá được ưa chuộng trong những năm gần đây. Kiểu mái có độ dốc vừa phải, thiết kế rộng rãi rất phù hợp cho các khu vực ngoại ô hoặc làm nhà nghỉ dưỡng.

Mẫu nhà mái Nhật gác lửng 3 phòng hiện đại

Mẫu nhà cấp 4 mái Nhật 3 phòng ngủ đơn giản, hiện đại (Nguồn: Internet)

Mẫu nhà gác lửng 500 triệu đẹp

Mẫu nhà gác lửng 500 triệu đẹp, hiện đại (Nguồn: Internet)

Tính toán vật tư tại đây

>> Xem thêm: Tổng hợp nhà cấp 4 mái Nhật 4 phòng ngủ, xu hướng Hot nhất hiện nay

22. Mẫu nhà gác lửng 3 phòng ngủ mái bằng

Thiết kế nhà gác lửng mái bằng giúp gia chủ có thể tận dụng tối đa diện tích sử dụng, đặc biệt là với những khu vực có diện tích thi công nhỏ hẹp. Phần mái bằng có thể sử dụng như sân thượng để trồng cây hoặc nghỉ ngơi thư giãn. 

Mẫu nhà mái bằng gác lửng

Mẫu nhà gác lửng 3 phòng ngủ đẹp, hiện đại (Nguồn: Internet)

Thiết kế nhà gác lửng mái bằng

Thiết kế nhà gác lửng mái bằng hiện đại, tinh tế (Nguồn: Internet)

Tính toán vật tư tại đây

>> Xem thêm:

23. Mẫu nhà gác lửng 3 phòng ngủ mái lệch

Các mẫu nhà gác lửng 3 phòng ngủ mái lệch mang đến tổng thể hiện đại, sang trọng khó rời mắt. Đặc biệt, phần mái lệch không chỉ giúp tăng khả năng thoát nước mà còn là điểm nhấn ấn tượng so với các thiết kế phổ biến khác.

Mẫu nhà mái lệch gác lửng ấn tượng

Mẫu nhà mái lệch gác lửng ấn tượng (Nguồn: Internet)

Kiểu nhà gác lửng mái lệch hiện đại

Kiểu nhà gác lửng mái lệch hiện đại (Nguồn: Internet)

Tính toán vật tư tại đây

>> Đọc thêm:

24. Mẫu mặt tiền nhà gác lửng 3 phòng ngủ đẹp

Mặt tiền nhà gác lửng 3 phòng ngủ thường được thiết kế hiện đại, tối ưu ánh sáng và công năng sử dụng. Tùy theo diện tích và sở thích cá nhân, bạn có thể lựa chọn phong cách mặt tiền phù hợp như:

  • Mặt tiền mái lệch hiện đại: Tạo điểm nhấn với kiến trúc bất đối xứng, kết hợp lam gỗ và kính cường lực, phù hợp với nhà phố.

  • Mặt tiền mái Thái truyền thống: Phù hợp vùng nông thôn, kết hợp sân vườn xanh mát, mang lại sự mát mẻ và gần gũi thiên nhiên.

  • Mặt tiền nhà ống tối giản: Thiết kế phẳng, sử dụng tông màu trung tính và cửa kính lớn, giúp nhà trông cao ráo và thoáng đãng hơn.

  • Mặt tiền có gara ô tô: Thích hợp gia đình đông người, tích hợp không gian để xe phía trước hoặc bên hông, không ảnh hưởng thẩm mỹ tổng thể.

Mặt tiền nhà gác lửng 3 phòng ngủ ấn tượng nhất 2025

Mặt tiền nhà gác lửng 3 phòng ngủ ấn tượng nhất 2025 (Nguồn: Internet)

Báo giá ngay

Mặt tiền nhà gác lửng 3 phòng ngủ đẹp, hiện đại, sang trọng

Mặt tiền nhà gác lửng 3 phòng ngủ đẹp, hiện đại, sang trọng (Nguồn: Internet)

Mặt tiền nhà gác lửng 3 phòng ngủ đẹp, giá rẻ

Mặt tiền nhà gác lửng 3 phòng ngủ đẹp, giá rẻ (Nguồn: Internet)

Tính toán vật tư tại đây

>> Xem thêm: 

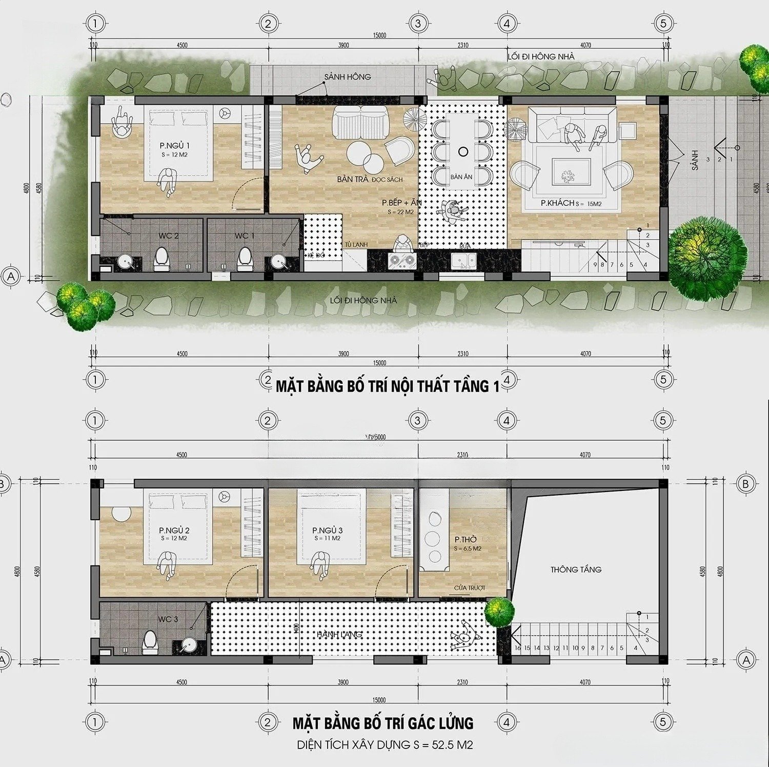
Bản vẽ nhà gác lửng 3 phòng ngủ chi tiết, đầy đủ công năng

Nhà gác lửng 3 phòng ngủ là lựa chọn hoàn hảo cho các gia đình có từ 3–5 thành viên, vừa đảm bảo đủ không gian sinh hoạt, vừa tiết kiệm diện tích xây dựng. Với thiết kế tầng lửng, không gian trong nhà được mở rộng một cách thông minh mà không cần gia tăng chiều cao công trình quá nhiều. Các bản vẽ nhà gác lửng hiện nay thường được bố trí rất hợp lý, tận dụng tối đa diện tích để phân chia các khu vực chức năng như phòng khách, bếp, phòng ngủ, phòng làm việc, khu vệ sinh và khu sinh hoạt chung.

Ngoài yếu tố thẩm mỹ, mỗi bản vẽ còn chú trọng đến công năng sử dụng, sự thông thoáng và khả năng đón sáng tự nhiên, mang lại trải nghiệm sống thoải mái, tiện nghi cho cả gia đình. Tùy theo diện tích đất, nhu cầu và phong cách sống, các mẫu nhà gác lửng có thể linh hoạt về cách sắp xếp không gian cũng như lựa chọn vật liệu thi công.

Hãy cùng Vĩnh Tường khám phá một số bản vẽ nhà gác lửng 3 phòng ngủ chi tiết, đầy đủ tiện nghi dưới đây để tìm ra thiết kế phù hợp nhất cho tổ ấm của bạn:

Bản vẽ nhà gác lửng 3 phòng ngủ chi tiết, đầy đủ công năng giá rẻ 500 triệu

Bản vẽ nhà gác lửng 3 phòng ngủ chi tiết, đầy đủ công năng (Nguồn: Internet)

Bản vẽ nhà gác lửng 3 phòng ngủ 500 triệu hiện đại, được ưa chuộng

Bản vẽ nhà gác lửng 3 phòng ngủ tiện nghi, công năng hiện đại (Nguồn: Internet)

 Tìm thầu thợ thi công

Bản vẽ nhà gác lửng 3 phòng ngủ 500 triệu hiện đại, được ưa chuộng

Bản vẽ nhà gác lửng 3 phòng ngủ 500 triệu hiện đại, được ưa chuộng (Nguồn: Internet)

Bản vẽ nhà cấp 4 3 phòng ngủ thiết kế hiện đại, đầy đủ tiện ích

Bản vẽ nhà cấp 4 3 phòng ngủ thiết kế hiện đại, đầy đủ tiện ích (Nguồn: Internet)

Tìm thầu thợ thi công

>> Xem thêm:

Mẫu phối cảnh nhà gác lửng 3 phòng ngủ 500 triệu đẹp

Mẫu thiết kế phòng khách nhà gác lửng 3 phòng ngủ 500 triệu

Thiết kế phòng khách nhà gác lửng không chỉ phục vụ nhu cầu sinh hoạt cho cả gia đình mà còn là điểm nhấn ấn tượng, nổi bật gu thẩm mỹ của gia chủ. Bạn có thể thiết kế phòng khách theo nhiều phong cách khác nhau như hiện đại, tối giản, cổ điển, tân cổ điển,...Ngoài ra, bạn có thể kết hợp các cửa sổ, làm trần thạch cao giật cấp, phào thạch cao,đèn LED âm tường để không gian phòng khách thêm ánh sáng và độc đáo hơn.

Mẫu bố trí phòng khách nhà gác lửng hiện đại

Mẫu bố trí phòng khách hiện đại, độc đáo được ưa thích hiện nay (Nguồn: Internet)

Liên Hệ Để Được Tư Vấn

Mẫu thiết kế tầng lửng tiện nghi, tối ưu diện tích

Gác lửng không chỉ đơn thuần là nơi nghỉ ngơi mà còn là không gian đa năng và linh hoạt. Chỉ với một chút sáng tạo, bạn hoàn toàn có thể biến gác lửng thành góc làm việc yên tĩnh, góc trang điểm xinh xắn hay thậm chí là một thư viện nhỏ xinh. Điều này không chỉ giúp bạn tiết kiệm diện tích mà còn mang đến cho căn phòng sự tiện nghi và thẩm mỹ.

Thiết kế gác lửng 3 phòng ngủ thông minh

Thiết kế gác lửng thông minh, tiện nghi trong phòng khách chung cư (Nguồn: Internet)

Liên Hệ Để Được Tư Vấn

>> Đọc thêm:

Mẫu thiết kế cầu thang nhà gác lửng 3 phòng ngủ 500 triệu

Cầu thang không chỉ là lối đi nối liền giữa tầng trệt và gác lửng mà còn là không gian sống đa năng, góp phần tạo nên vẻ đẹp thẩm mỹ cho ngôi nhà. Bạn có thể tận dụng phần không gian dưới cầu thang để thiết kế thêm giá sách, tủ đựng đồ hoặc thậm chí là một góc làm việc nhỏ. Ngoài ra, việc kết hợp cầu thang cùng những vật liệu trang trí như các loại trần thạch cao, gỗ, đá tự nhiên hoặc kính để không gian phòng khách trở nên ấn tượng, độc đáo hơn. 

Mẫu thiết kế cầu thang hiện đại cho nhà gác lửng 3 phòng ngủ

Mẫu thiết kế cầu thang hiện đại cho nhà gác lửng 3 phòng ngủ (Nguồn: Internet)

Liên Hệ Để Được Tư Vấn

>> Xem thêm: 

Lưu ý khi xây nhà gác lửng 3 phòng ngủ

Để sở hữu được một mẫu nhà gác lửng 3 phòng ngủ vừa ý với mức chi phí phù hợp, gia chủ nên lưu ý những vấn đề sau:

Thủ tục pháp lý

Trước khi khởi công xây nhà, việc chuẩn bị đầy đủ các thủ tục pháp lý là điều cần thiết để đảm bảo công trình được xây dựng hợp pháp và tránh những rắc rối không đáng có về sau.

  • Giấy phép xây dựng: Đây là loại văn bản bắt buộc do cơ quan chức năng cấp, cho phép chủ đầu tư được tiến hành xây dựng công trình trên khu đất hợp pháp. Việc xin giấy phép xây dựng không chỉ giúp bạn yên tâm trong quá trình thi công mà còn bảo vệ quyền lợi nếu xảy ra tranh chấp hoặc kiểm tra từ cơ quan quản lý.

  • Tìm hiểu quy hoạch khu vực: Trước khi thiết kế và xây dựng, bạn cần kiểm tra kỹ các quy định quy hoạch tại địa phương như: chiều cao tối đa, mật độ xây dựng, khoảng lùi công trình, chỉ giới đường đỏ,... Việc vi phạm các yếu tố này có thể dẫn đến yêu cầu điều chỉnh thiết kế, đình chỉ thi công hoặc thậm chí là cưỡng chế tháo dỡ.

Kỹ thuật

Để đảm bảo công trình nhà gác lửng 3 phòng ngủ có độ bền cao và vận hành an toàn, bạn cần quan tâm đến một số yếu tố kỹ thuật quan trọng sau:

  • Kết cấu chịu lực: Hệ kết cấu cần được thiết kế vững chắc, đặc biệt là khu vực gác lửng – nơi có thể chịu tải trọng lớn từ người sử dụng và nội thất. Việc tính toán chính xác khả năng chịu lực sẽ giúp ngôi nhà bền vững theo thời gian và đảm bảo an toàn trong quá trình sử dụng.

  • Hệ thống điện nước: Thiết kế hệ thống cấp thoát nước và điện cần được lên kế hoạch chi tiết, đảm bảo vận hành ổn định, tiết kiệm không gian và thuận tiện trong quá trình bảo trì. Việc bố trí dây điện, đường ống nên tránh những vị trí quan trọng trong kết cấu hoặc ảnh hưởng đến thẩm mỹ không gian.

  • Giải pháp cách âm, chống nóng: Để tạo nên không gian sống dễ chịu, gia chủ nên chú trọng vào vật liệu cách âm và chống nóng cho mái gác lửng. Trần la phông cách nhiệt Ánh Kim Vĩnh Tường là một giải pháp hiệu quả – vật liệu nhẹ, dễ thi công, có khả năng chống ẩm, chịu nhiệt và hạn chế tiếng ồn. Việc sử dụng tấm Ánh Kim không chỉ góp phần nâng cao thẩm mỹ tổng thể cho ngôi nhà mà còn giúp bảo vệ sức khỏe của cả gia đình bằng cách giảm thiểu tác động từ môi trường bên ngoài như nhiệt độ cao hay ẩm mốc.

Nội thất

Nội thất đóng vai trò quan trọng trong việc tối ưu công năng và nâng cao thẩm mỹ cho không gian sống. Với nhà gác lửng 3 phòng ngủ – nơi diện tích thường được sử dụng linh hoạt, việc lựa chọn nội thất thông minh sẽ giúp không gian trở nên rộng rãi và tiện nghi hơn. Dưới đây là một số gợi ý:

  • Giường tầng hoặc giường có ngăn kéo: Đây là lựa chọn lý tưởng cho phòng ngủ nhỏ, đặc biệt là phòng trẻ em. Giường tầng giúp tận dụng chiều cao, còn giường có ngăn kéo bên dưới giúp tăng không gian lưu trữ mà không tốn thêm diện tích sàn.

  • Tủ quần áo âm tường hoặc treo tường: Thiết kế âm tường hoặc treo tường giúp tủ hòa vào không gian, tạo cảm giác gọn gàng, thông thoáng, đồng thời tối đa hóa diện tích sử dụng.

  • Bàn ăn gấp gọn hoặc bàn đa năng: Các loại bàn có thể gấp lại sau khi sử dụng hoặc tích hợp nhiều chức năng như bàn ăn kiêm kệ để đồ sẽ phù hợp với không gian sinh hoạt nhỏ, giúp dễ dàng thay đổi công năng khi cần thiết.

  • Tận dụng khu vực dưới cầu thang: Không gian dưới gầm cầu thang thường bị bỏ trống. Bạn có thể tận dụng khu vực này làm tủ chứa đồ, kệ sách hoặc góc làm việc nhỏ – vừa thẩm mỹ vừa gia tăng tiện ích.

  • Thiết bị vệ sinh tiết kiệm diện tích: Nên ưu tiên các thiết bị như bồn cầu âm tường, lavabo treo, vòi sen âm tường,... giúp phòng tắm trở nên rộng rãi và hiện đại hơn.

Lưu ý khi xây nhà gác lửng 3 phòng ngủ

Nhà cấp 4 nông thôn đơn giản có gác lửng 3 phòng ngủ 500 triệu có sân vườn xanh mát (Nguồn: Internet)

Liên Hệ Để Được Tư Vấn

>> Đọc thêm:

Chi phí xây nhà gác lửng 3 phòng ngủ

Các khoản chi phí chính khi xây nhà gác lửng 3 phòng ngủ

  • Chi phí nhân công: Dao động trong khoảng 1.100.000 – 1.500.000 VNĐ/m², tùy khu vực, thời điểm thi công và độ phức tạp thiết kế.

  • Chi phí phần thô: Khoảng 3.200.000 – 3.600.000 VNĐ/m², bao gồm móng, khung, tường bao và hệ thống điện nước cơ bản.

  • Chi phí xây dựng trọn gói: Tùy vào chất lượng vật liệu và mức độ hoàn thiện, giá ước tính từ 4.500.000 – 6.000.000 VNĐ/m².

  • Chi phí nội thất: Nếu đầu tư nội thất cơ bản, có thể dao động từ 80 – 150 triệu đồng, hoặc hơn tùy nhu cầu.

  • Chi phí phát sinh: Bao gồm xin phép xây dựng, ép cọc, thiết kế riêng, điều chỉnh theo thực tế… khoảng 5 – 10% tổng ngân sách.

Cách tính chi phí xây dựng nhà gác lửng 3 phòng ngủ

Công thức cơ bản: Chi phí xây dựng = Tổng diện tích xây dựng × Đơn giá thi công

Cách tính diện tích xây dựng (ước tính):

  • Tầng trệt: tính 100% diện tích sàn

  • Gác lửng: thường tính 50 – 70% diện tích sàn tầng trệt

  • Phần mái: tính 30 – 50%, tùy vào mái tôn, mái bê tông hay mái thái

  • Phần móng: tính thêm 30 – 50%, tùy địa chất và kết cấu móng

Ví dụ tham khảo:

  • Nhà 5×14m: sàn tầng trệt = 70m²

  • Gác lửng ~ 50% = 35m² → Tổng diện tích xây dựng khoảng 105m²

Giả sử chọn gói xây trọn gói 5.000.000 VNĐ/m², thì: → Chi phí dự kiến = 105m² × 5.000.000 = 525.000.000 VNĐ

Nếu diện tích lớn hơn, hoặc chọn gói cao cấp hơn, chi phí có thể dao động từ 600 – 800 triệu đồng, tùy vào thiết kế và vật liệu.

Chi phí xây nhà gác lửng 3 phòng ngủ

Chi phí xây nhà gác lửng 3 phòng ngủ dao động nhiều mức giá (Nguồn: Internet)

BÁO GIÁ NGAY

>> Xem thêm:

Một số câu hỏi thường gặp về nhà gác lửng 3 phòng ngủ

Nhà gác lửng 3 phòng ngủ bao nhiêu tiền?

Chi phí xây nhà gác lửng 3 phòng ngủ dao động từ 500 – 800 triệu đồng, tùy diện tích, vật liệu và mức hoàn thiện. Với diện tích 70–90m² sàn, gác lửng 50–70%, chi phí trọn gói trung bình khoảng 5 – 6 triệu đồng/m².

Nhà gác lửng nên xây cao bao nhiêu?

Chiều cao lý tưởng cho nhà gác lửng là 4,8 – 5,5m tính từ sàn tầng trệt đến mái. Trong đó, tầng trệt khoảng 2,6 – 2,8m, gác lửng từ 2,2 – 2,5m để đảm bảo thông thoáng và thoải mái khi sử dụng.

>> Có thể bạn quan tâm:

Nhà gác lửng 3 phòng ngủ là một trong những mẫu thiết kế phổ biến, được nhiều gia đình lựa chọn. Tuy nhiên, để đảm bảo độ bền và tính thẩm mỹ, gia chủ nên dành thời gian tìm hiểu và lựa chọn vật liệu thi công phù hợp, chất lượng cho công trình của mình. Liên hệ với Vĩnh Tường để được tư vấn qua:

         Thứ 2 - Thứ 6: từ 8h30 – 17h30 

         Thứ 7: Từ 8h00 - 12h00

Tag: trần thạch cao phòng khách, mẫu trần thạch cao phòng ngủ, trần thạch cao phòng ngủ trẻ em, trần thạch cao phòng ngủ nhỏ 10m2, trần thạch cao phòng thờ, trần nhà vệ sinh, trần thạch cao phòng bếp, mẫu trần thạch cao phòng khách 25m2, trần thạch cao văn phòngtrần thạch cao tân cổ điển, mẫu trần thạch cao phòng khách hình chữ nhật, mẫu trần thạch cao phòng khách hình tròn, mẫu trần thạch cao phòng khách có quạt trần, trần thạch cao hình ngôi sao, mẫu trần thạch cao hình elip, tầng trệt, ban công, mẫu thiết kế ban công đẹp, thiết kế nhà vệ sinh và nhà tắm riêng, thiết kế nhà vệ sinh, mẫu nhà vệ sinh nhỏ đẹp, nhà tắm đẹp 

Bạn thấy bài viết này có hữu ích hay không

Về Vĩnh Tường

Xem thêm

Góc Nhà Thầu 5 Sao

Xem thêm

Tính toán định mức thi công

Xem thêm

Bảng giá sản phẩm năm 2026

Xem thêm

Giải pháp đa tiện nghi

Xem thêm