vinhtuong đăng vào lúc 08/02/2026 - 11:29

Nhà gác lửng đang dần trở thành xu hướng thiết kế được ưa chuộng trong kiến trúc đô thị hiện đại, đặc biệt phù hợp với những khu đất có diện tích hạn chế. Kiểu nhà này không chỉ giúp mở rộng không gian sinh hoạt mà còn tối ưu hóa chi phí đầu tư xây dựng, mang lại giá trị thẩm mỹ cao. Trong nội dung bài viết dưới đây, Vĩnh Tường sẽ cùng bạn tìm hiểu nhà gác lửng là gì cũng như giới thiệu đến bạn những mẫu nhà gác lửng đẹp, hiện đại, được ưa chuộng trong năm 2026.
Nhà gác lửng là gì? Nhà gác lửng, hay nhà tầng lửng hoặc nhà có gác xép, là kiểu nhà có một tầng trung gian nằm giữa các tầng chính, không được tính là một tầng riêng biệt. Gác lửng có diện tích nhỏ hơn, trần thấp hơn và thường được dùng để tăng diện tích sử dụng một cách hiệu quả cho những ngôi nhà có diện tích hẹp hoặc bị hạn chế về chiều cao.

Nhà gác lửng phù hợp với nhiều đối tượng (Nguồn: Internet)
Đặc điểm của nhà gác lửng:
Cấu trúc trung gian: Gác lửng là tầng nằm giữa tầng trệt và mái, không chiếm toàn bộ diện tích sàn như một tầng lầu thông thường. Đây là giải pháp kiến trúc giúp mở rộng công năng mà không làm thay đổi kết cấu tổng thể.
Vị trí bố trí linh hoạt: Thường được xây phía trên phòng khách, phòng bếp hoặc hành lang có trần thạch cao đẹp, tùy thuộc vào mục đích sử dụng và bố cục không gian. Có thể thiết kế theo kiểu mở hoặc khép kín để phù hợp với tính chất sinh hoạt.
Kết nối không gian hiệu quả: Gác lửng thường được kết nối với tầng trệt thông qua cầu thang nhỏ gọn, đôi khi được thiết kế như một chi tiết trang trí, tạo điểm nhấn cho không gian nội thất.
Phù hợp với công trình có diện tích hạn chế: Do không chiếm nhiều diện tích sàn và tận dụng tốt chiều cao, nhà gác lửng rất phù hợp cho các công trình nhà phố, nhà cấp 4 gác lửng hoặc nhà có diện tích nhỏ nhưng cần nhiều công năng.
>> Tìm hiểu thêm:
Nhà gác lửng là giải pháp lý tưởng cho những ngôi nhà có diện tích đất hạn chế. Nhờ thiết kế chồng tầng nhưng không xây tầng lầu hoàn chỉnh, phần gác có thể tận dụng làm phòng ngủ, phòng làm việc, góc thư giãn hoặc phòng sinh hoạt chung, giúp mở rộng diện tích sử dụng mà không làm thay đổi kết cấu tổng thể của ngôi nhà. Ngoài ra, thiết kế gác xép cũng tạo cảm giác thông thoáng và cao ráo hơn cho không gian tầng trệt nhờ chiều cao trần được nâng lên.
So với việc xây thêm tầng lầu, mẫu nhà đẹp gác lửng giúp giảm đáng kể chi phí thi công nhờ tiết kiệm nguyên vật liệu (sắt thép, xi măng, gạch ốp lát), thời gian xây dựng và công thợ. Đồng thời, chi phí hoàn thiện (hệ thống điện nước, vách cầu thang, nội thất…) cũng thấp hơn so với nhà hai tầng, tương tự như cấu trúc nhà 1 trệt 1 lầu nhưng tối ưu chi phí hơn. Đây là lựa chọn phù hợp cho những gia đình có ngân sách hạn chế nhưng vẫn muốn sở hữu ngôi nhà đầy đủ tiện nghi và không gian sinh hoạt linh hoạt.
Nhà gác lửng có thể được thiết kế theo nhiều phong cách như hiện đại, tối giản, tân cổ điển, hoặc nhà kiểu Nhật, nhà ba gian. Chủ nhà có thể sáng tạo không gian nội thất theo sở thích, thậm chí biến phần gác thành điểm nhấn kiến trúc với lan can kính, cầu thang gỗ, hoặc hệ thống đèn trần tinh tế. Gác lửng cũng có thể được bố trí ở nhiều vị trí khác nhau trong nhà, tùy theo mục đích sử dụng và ánh sáng tự nhiên.
Nhà gác lửng phù hợp với đa dạng đối tượng, từ các cặp vợ chồng trẻ mới lập gia đình, gia đình có con nhỏ, đến người độc thân cần một không gian riêng tư nhỏ gọn. Bên cạnh đó, những người lớn tuổi cũng có thể sinh hoạt thoải mái ở tầng trệt, trong khi phần gác lửng dành cho con cháu hoặc khách đến chơi. Đây là kiểu nhà dễ tiếp cận, tiết kiệm và linh hoạt trong cách sử dụng, phù hợp cả ở thành thị lẫn nông thôn.

Nhà gác lửng giúp tối ưu diện tích, mang đến không gian sống thoáng đãng, thoải mái (Nguồn: Internet)
>> Có thể bạn quan tâm:
Mẫu nhà gác lửng 2 phòng ngủ là lựa chọn lý tưởng cho các gia đình nhỏ từ 3–4 thành viên. Không gian ngôi nhà vừa đảm bảo đầy đủ tiện nghi vừa tối ưu diện tích xây dựng. Với thiết kế tầng lửng thông minh, các khu vực chức năng trong nhà được bố trí một cách khoa học, giúp tăng tính riêng tư cho từng thành viên mà vẫn giữ được sự kết nối trong không gian chung.
Phong cách thiết kế của mẫu nhà này thường theo xu hướng hiện đại, tối giản, phù hợp với lối sống năng động. Nội thất được lựa chọn kỹ lưỡng, đề cao công năng sử dụng và khả năng mở rộng không gian sống. Ngôi nhà được bố trí không gian thông thoáng, tận dụng tối đa ánh sáng tự nhiên mang lại cảm giác rộng rãi, tiện nghi.

Mẫu nhà gác lửng 2 phòng ngủ đẹp, hiện đại nhất (Nguồn: Internet)
>> Xem thêm:
Mẫu nhà gác lửng 3 phòng ngủ là lựa chọn lý tưởng cho những gia đình có từ 4–6 thành viên. Kiểu nhà này là sự kết hợp hoàn hảo giữa công năng và yếu tố thẩm mỹ. Với thiết kế linh hoạt, 3 phòng ngủ được bố trí khoa học, tích hợp thêm phòng khách và phòng bếp. Phần gác lửng đóng vai trò như tầng trung gian, vừa tiết kiệm diện tích xây dựng, vừa tăng thêm không gian sinh hoạt. Đây là mẫu nhà phù hợp với cả khu vực thành thị và nông thôn, đặc biệt lý tưởng với những ai tìm kiếm một tổ ấm hiện đại, tiện nghi.

Mẫu nhà cấp 4 đẹp 3 phòng ngủ có gác lửng tiện nghi cho gia đình đông người (Nguồn: Internet)
>> Xem thêm:
Nhà gác lửng 4 phòng ngủ là lựa chọn lý tưởng cho những gia đình có nhiều thế hệ cùng sinh sống hoặc gia đình đông thành viên. Với thiết kế hợp lý và bố cục thông minh, mẫu nhà này giúp tạo nên không gian sống tiện nghi, hiện đại mà vẫn đảm bảo tính riêng tư cho từng cá nhân trong gia đình. Mỗi phòng ngủ được bố trí tách biệt, giúp tối ưu hóa sự yên tĩnh và thoải mái, trong khi khu vực sinh hoạt chung như phòng khách và bếp được kết nối mở để mở rộng không gian, tăng tính liên kết.
Để đạt hiệu quả sử dụng tối đa, khi thiết kế nhà gác lửng 4 phòng ngủ, chủ đầu tư nên ưu tiên việc sắp xếp các phòng ngủ ở cuối nhà hoặc trên tầng lửng nhằm giảm thiểu tiếng ồn và tạo không gian riêng tư. Đây là giải pháp thiết kế vừa đáp ứng nhu cầu công năng, vừa thể hiện phong cách sống tinh tế, hiện đại của gia chủ.

Mẫu nhà gác lửng 4 phòng ngủ đẹp, thể hiện gu thẩm mỹ của gia chủ (Nguồn: Internet)
>> Xem thêm: 45+ Mẫu nhà cấp 4 mái Nhật 4 phòng ngủ đẹp, đơn giản, hiện đại 2026
Mẫu nhà gác lửng 200 triệu là giải pháp nhà ở tiết kiệm, phù hợp với các gia đình nhỏ hoặc có ngân sách hạn chế. Mẫu nhà này có thiết kế tập trung vào công năng sử dụng, bố trí tối giản với tầng trệt gồm phòng khách, bếp ăn, nhà vệ sinh nhỏ và một phòng ngủ. Tầng gác lửng có thể tận dụng làm thêm một phòng ngủ hoặc không gian sinh hoạt chung. Đây là giải pháp giúp tối ưu diện tích trên lô đất nhỏ mà còn đáp ứng đầy đủ nhu cầu sinh hoạt cơ bản, đồng thời đảm bảo sự thông thoáng, tiện nghi và dễ dàng thi công trong thời gian ngắn.

Mẫu nhà gác lửng 200 triệu phù hợp với diện tích đất nhỏ hẹp (Nguồn: Internet)
>> Tham khảo:
Mẫu nhà gác lửng 300 triệu là sự lựa chọn tối ưu dành cho các gia đình đang tìm kiếm một ngôi nhà hiện đại nhưng đảm bảo ngân sách hợp lý. Các phòng ngủ được bố trí khoa học, đảm bảo sự riêng tư và thoải mái cho từng thành viên trong gia đình. Đồng thời, khu vực sinh hoạt chung như phòng khách, bếp và tầng lửng được sắp xếp linh hoạt, mang lại cảm giác thông thoáng và gắn kết. Dù giới hạn trong mức chi phí khoảng 300 triệu đồng, mẫu nhà vẫn đáp ứng được các tiêu chí về công năng, thẩm mỹ và độ bền trong sử dụng.

Mẫu nhà cấp 4 3 phòng ngủ 300 triệu có gác lửng đẹp, độc đáo (Nguồn: Internet)
>> Xem thêm:
Nhà gác lửng với ngân sách khoảng 500 triệu đồng, mang đến không gian sống hiện đại, thoáng đãng và tiện nghi. Mẫu nhà này thường đa dạng về kiểu dáng, từ phong cách tối giản trẻ trung đến kiểu truyền thống mang nét gần gũi, ấm cúng. Phần gác lửng không chỉ tạo thêm không gian sinh hoạt mà còn tăng tính thẩm mỹ cho ngôi nhà. Ngoài ra, gia chủ có thể tích hợp sân vườn nhỏ, ban công xanh mát, mang đến cảm giác thư giãn và thoải mái ngay trong chính tổ ấm của mình.

Thiết kế nhà gác lửng 500 triệu với hệ vách ngăn phòng ngủ hài hòa, ấn tượng (Nguồn: Internet)
>> Xem thêm:
Mẫu nhà cấp 4 gác lửng 700 triệu là lựa chọn lý tưởng cho gia đình 4–5 người với thiết kế hiện đại, tối ưu công năng và chi phí hợp lý. Với mức kinh phí này, bạn có thể xây dựng ngôi nhà có 2–3 phòng ngủ, phòng khách, bếp, gác lửng làm phòng thờ hoặc phòng ngủ phụ. Kiến trúc thường theo phong cách tối giản, mái Thái hoặc mái lệch, kết hợp với cửa kính và không gian mở, mang lại sự thông thoáng và tiện nghi cho sinh hoạt hàng ngày.

Mẫu nhà gác lửng 700 triệu tối giản, tiết kiệm chi phí (Nguồn: Internet)
>> Xem thêm:
Nhà gác lửng phong cách hiện đại đang trở thành lựa chọn phổ biến nhờ khả năng tối ưu không gian, với vẻ ngoài trẻ trung, tinh tế. Thiết kế tập trung vào sự tối giản với bố cục mạch lạc, sử dụng các đường nét, hình khối rõ ràng. Tầng lửng thường được mở rộng tầm nhìn, kết nối trực tiếp với không gian bên dưới thông qua cầu thang sắt hoặc gỗ tối giản, tạo hiệu ứng thị giác liền mạch và thông thoáng.
Thông thường, tầng trệt sẽ là khu vực sinh hoạt chung gồm phòng khách, bếp và bàn ăn, trong khi tầng lửng được bố trí như không gian nghỉ ngơi, học tập hoặc làm việc riêng tư. Sự kết hợp khéo léo giữa công năng và thẩm mỹ giúp mẫu nhà gác lửng hiện đại vừa tiện nghi, vừa phản ánh phong cách sống năng động, cá tính của gia chủ.

Mẫu nhà gác lửng hiện đại với đầy đủ mọi công năng phục vụ cho sinh hoạt của gia đình (Nguồn: Internet)
>> Xem thêm:
Mẫu nhà gác lửng theo phong cách tối giản đề cao tính ứng dụng, sự tiện nghi trong thiết kế. Ngồi nhà được thiết kế chú trọng tối ưu công năng, lược bỏ hoàn toàn các chi tiết rườm rà. Khu vực gác lửng thường được bố trí làm phòng ngủ, góc làm việc hoặc khu vực đọc sách, đảm bảo tính riêng tư mà vẫn kết nối chặt chẽ với không gian chính.
Tông màu chủ đạo của các mẫu nhà gác lửng phong cách tối giản thường ưu tiên sử dụng gạch ốp tường, gạch lát nền là các gam trung tính như trắng, ghi sáng, be hoặc gỗ nhạt. Đồ nội thất được lựa chọn theo hướng tối giản, nhẹ nhàng, kiểu dáng đơn giản và ít chi tiết, giúp quá trình sắp xếp và vệ sinh dễ dàng.

Mẫu nhà gác lửng đơn giản mà đẹp (Nguồn: Internet)
>> Tham khảo:
Các mẫu nhà cấp 4 có gác lửng với kích thước 4x10m, 4x12m và 4x13m là giải pháp tối ưu cho những lô đất hẹp ngang nhưng vẫn đảm bảo đầy đủ công năng sử dụng. Với diện tích 4x10m, ngôi nhà thường được bố trí 1 phòng ngủ trên gác lửng, phòng khách, bếp và nhà vệ sinh ở tầng trệt – phù hợp cho người độc thân hoặc vợ chồng trẻ. Trong khi đó, các mẫu 4x12m và 4x13m có không gian rộng rãi hơn, cho phép thi công 2 phòng ngủ, thiết kế nhà vệ sinh và nhà tắm riêng thoải mái.

Thiết kế nhà cấp 4 nông thôn đơn giản có gác lửng tập trung nhiều vào công năng (Nguồn: Internet)
>> Xem thêm:
Mẫu nhà gác lửng có kích thước 5x12m phù hợp với những lô đất có diện tích khiêm tốn. Thiết kế này cho phép bố trí linh hoạt 2 phòng ngủ, phòng khách, phòng bếp mà vẫn đảm bảo sự thông thoáng, khoa học.
Phần gác lửng thường được thiết kế theo kiểu mở tạo cảm giác cao ráo, rộng rãi hơn cho toàn bộ ngôi nhà. Mẫu nhà này đang được ưa chuộng tại các đô thị lớn và khu dân cư đông đúc bởi có chi phí hợp lý, thiết kế tối giản, hiện đại.

Mẫu nhà gác lửng 5x12m năng động, trẻ trung (Nguồn: Internet)
>> Tham khảo: 28+ Mẫu nhà cấp 4 đẹp 5x20 xu hướng hiện đại, chi phí thấp nhất
Nhà cấp 4 mái bằng có gác lửng là lựa chọn lý tưởng cho những ai yêu thích phong cách trẻ trung, hiện đại và muốn tối ưu không gian sống. Thiết kế mái bằng không chỉ tạo vẻ ngoài khỏe khoắn, vững chãi mà còn mang lại nhiều công năng như trồng cây xanh, bố trí sân thượng thư giãn hay lắp hệ thống điện năng lượng mặt trời, góp phần tiết kiệm chi phí lâu dài.
Không gian gác lửng thường được thiết kế mở, kết nối với phòng khách hoặc bếp, tạo cảm giác rộng rãi và thông thoáng. Kiểu kiến trúc này đặc biệt phù hợp với nhà phố hoặc lô đất hẹp, giúp tận dụng tối đa diện tích mà vẫn đảm bảo yếu tố thẩm mỹ, tiện nghi.

Mẫu nhà cấp 4 mái bằng 5x20 có gác lửng đẹp, hiện đại ở vùng nông thôn (Nguồn: Internet)
Nhà mái Thái có gác lửng là một trong những lựa chọn nhà mái ngói được nhiều gia đình Việt yêu thích nhờ sự kết hợp hài hòa giữa tính thẩm mỹ truyền thống và tiện nghi hiện đại. Kiểu mái Thái đặc trưng với độ dốc vừa phải không chỉ giúp thoát nước hiệu quả trong mùa mưa mà còn mang đến vẻ ngoài thanh thoát, sang trọng cho tổng thể kiến trúc.
Thiết kế không gian trong mẫu nhà này được bố trí khoa học mà vẫn đảm bảo sự riêng tư cho các thành viên gia đình.

Mẫu nhà gác lửng mái Thái được ưa chuộng ở nông thôn lẫn thành thị (Nguồn: Internet)
>> Tham khảo:
Nhà gác lửng mái lệch gây ấn tượng với thiết kế phá cách, trẻ trung và đầy cá tính. Phần mái được thiết kế lệch nhau theo một độ dốc nhất định, tạo hình khối độc đáo và tăng khả năng thoát nước mưa hiệu quả. Gác lửng thường được bố trí linh hoạt làm phòng ngủ, phòng thờ hoặc góc làm việc riêng tư. Mẫu nhà mái lệch này phù hợp với các gia đình yêu thích sự hiện đại và mong muốn có một công trình kiến trúc nổi bật giữa khu dân cư.

Mẫu nhà gác lửng mái lệch độc đáo, thu hút ánh nhìn (Nguồn: Internet)
>> Tham khảo:
Nhà cấp 4 có gác lửng mái tôn là lựa chọn phổ biến nhờ chi phí xây dựng tiết kiệm nhưng vẫn đảm bảo công năng sử dụng. Mái tôn nhẹ, dễ thi công và đa dạng mẫu mã, giúp giảm tải kết cấu móng và rút ngắn thời gian xây dựng. Gác lửng được tận dụng để bố trí thêm phòng ngủ, đáp ứng nhu cầu của gia đình 3–5 người. Mẫu nhà này phù hợp với người có ngân sách hạn chế nhưng vẫn muốn sở hữu một không gian sống tiện nghi, thông thoáng và dễ bảo trì.

Mẫu nhà cấp 4 gác lửng mái tôn giá rẻ, phổ biến ở nông thôn (Nguồn: Internet)
>> Xem thêm:
Nhà gác lửng thiết kế không gian mở đang là lựa chọn ưu tiên của nhiều gia chủ yêu thích sự thông thoáng và tính kết nối cao trong sinh hoạt. Thay vì chia tách các khu vực như phòng khách, bếp hay khu vực tầng lửng bằng tường kín, không gian được bố trí mở hoàn toàn, tạo nên một tổng thể hài hòa và xuyên suốt.
Lối thiết kế này không chỉ giúp mở rộng tầm nhìn, tăng cảm giác rộng rãi cho ngôi nhà mà còn tối ưu lưu thông không khí và ánh sáng tự nhiên.

Nhà gác lửng với không gian mở tiết kiệm diện tích tối đa (Nguồn: Internet)
>> Tham khảo:
Mẫu nhà tiền chế gác lửng hay còn gọi là nhà khung thép gác lửng là giải pháp xây dựng hiện đại, tiết kiệm và linh hoạt, phù hợp với nhu cầu nhà ở, văn phòng hoặc nhà trọ. Nhờ sử dụng kết cấu khung thép, ngôi nhà thép tiền chế này được thi công nhanh chóng, dễ mở rộng và giảm đáng kể chi phí xây dựng so với nhà bê tông truyền thống. Phần gác lửng được thiết kế gọn gàng bên trong kết cấu thép, giúp tăng diện tích sử dụng mà không cần tốn thêm diện tích sàn. Kiểu nhà này đặc biệt phù hợp với đất có diện tích nhỏ hoặc khu vực cần hoàn thiện công trình trong thời gian ngắn.

Mẫu nhà tiền chế đẹp có gác lửng hiện đại, bền, tiết kiệm chi phí (Nguồn: Internet)
>> Xem thêm:
Mẫu nhà phố gác lửng là lựa chọn tối ưu cho các lô đất mặt tiền hẹp, sâu và nằm trong khu dân cư đông đúc. Thiết kế gác lửng giúp tăng thêm diện tích sử dụng mà không cần xây tầng lầu, từ đó tiết kiệm chi phí và thời gian thi công. Phần gác thường được bố trí làm phòng ngủ, phòng thờ hoặc phòng làm việc, trong khi tầng trệt vẫn đầy đủ phòng khách, bếp và nhà vệ sinh. Kiến trúc nhà phố đẹp có gác lửng thường mang phong cách hiện đại, sử dụng cửa kính, mặt tiền tối giản và màu sắc trung tính, mang lại cảm giác rộng rãi và thoáng sáng.
>> Xem thêm: 17+ Mặt tiền nhà gác lửng 5m đẹp, ấn tượng nhất 2026

Mẫu nhà phố có gác lửng hiện đại, tối ưu chi phí (Nguồn: Internet)
Mẫu nhà gác lửng chữ L là kiểu thiết kế được nhiều gia đình ưa chuộng nhờ bố cục linh hoạt, dễ tạo khoảng sân thoáng mát hoặc chỗ để xe ngay trong khuôn viên nhà. Kiến trúc nhà chữ L không chỉ giúp tách biệt rõ ràng các không gian sinh hoạt mà còn tận dụng được ánh sáng và gió tự nhiên tốt hơn so với nhà vuông truyền thống. Phần gác lửng thường được bố trí làm phòng ngủ hoặc phòng thờ, trong khi tầng trệt có thể sắp xếp phòng khách, bếp và 1 phòng ngủ tiện lợi. Mẫu nhà này phù hợp với những lô đất có chiều ngang tương đối và nhu cầu sống thoải mái, riêng tư.
>> Xem thêm: 30+ mẫu nhà mái Thái 2 tầng đẹp nhất, hiện đại, xu hướng 2026

Mẫu nhà cấp 4 chữ L có gác lửng hiện đại, tiết kiệm diện tích (Nguồn: Internet)
Mẫu nhà gác lửng có phòng thờ đẹp là lựa chọn được nhiều gia đình Việt yêu thích nhờ đảm bảo sự trang nghiêm, yên tĩnh cho không gian thờ cúng mà vẫn tiết kiệm diện tích xây dựng. Phòng thờ thường được bố trí trên gác lửng – nơi cao ráo, riêng biệt và hạn chế ảnh hưởng từ sinh hoạt hằng ngày bên dưới. Thiết kế này vừa thuận tiện trong bố trí công năng (phòng khách, bếp, phòng ngủ ở tầng trệt), vừa thể hiện sự tôn kính tổ tiên theo quan niệm truyền thống. Gia chủ có thể thi công thêm vách ngăn phòng thờ hoa văn đẹp để tạo thêm điểm nhấn.

Mẫu nhà gác lửng với thiết kế phòng thờ đẹp, hiện đại (Nguồn: Internet)
>> Tham khảo: 25+ Mẫu nhà đẹp 1 tầng, sang trọng, hiện đại, được ưa chuộng
Mẫu nhà gác lửng có giếng trời là giải pháp thiết kế thông minh giúp tăng cường ánh sáng tự nhiên và lưu thông không khí cho toàn bộ ngôi nhà. Giếng trời thường được bố trí ở giữa nhà hoặc cuối nhà, kết hợp với cầu thang hoặc sân vườn nhỏ, giúp không gian gác lửng không bị bí bách, nhất là với nhà ống hoặc nhà phố. Nhờ giếng trời, cả tầng trệt và gác lửng đều trở nên sáng sủa, tiết kiệm điện năng và mang lại cảm giác gần gũi thiên nhiên. Giải pháp này cực kỳ tối ưu vì nhà gác lửng không thể thiết kế ban công đón gió.

Mẫu nhà gác lửng có giếng trời hiện đại, tối ưu ánh sáng, tiết kiệm điện năng (Nguồn: Internet)
>> Tham khảo:
Phòng khách trong nhà gác lửng thường có trần cao hơn so với nhà cấp 4 thông thường, tạo cảm giác rộng rãi và thoáng đãng. Và để tận dụng lợi thế này, các kiến trúc sư thường bố trí hệ đèn thả trần, kết hợp với tường nhấn bằng đá, gỗ hoặc màu sơn trung tính nhằm tạo chiều sâu cho không gian. Bên cạnh đó, việc lựa chọn nội thất theo phong cách tối giản, bố cục gọn gàng và ưu tiên ánh sáng tự nhiên từ giếng trời hoặc ô cửa lớn sẽ giúp phòng khách đẹp, sáng sủa và sang trọng hơn. Ngoài ra, phần gác lửng phía trên nếu có lan can kính hoặc nan gỗ cũng sẽ trở thành điểm nhấn thẩm mỹ cho toàn bộ không gian.

Trang trí phòng khách nhà gác lửng ấn tượng (Nguồn: Internet)
>> Tham khảo:
Thiết kế gác lửng cần chú trọng đến sự thông thoáng và tính riêng tư, vì vậy phần gác thường được mở một phần ra phòng khách bên dưới, vừa tạo sự liên kết, vừa không bị bí bách. Cầu thang dẫn lên gác lửng cũng đóng vai trò quan trọng trong thẩm mỹ tổng thể – có thể thiết kế dạng chữ U, chữ L hoặc cầu thang xương cá kết hợp tay vịn gỗ và kính hiện đại. Bên cạnh đó, việc tận dụng gầm cầu thang làm tủ chứa đồ, kệ sách hoặc góc tiểu cảnh sẽ giúp tiết kiệm diện tích và tăng tính tiện nghi. Và nếu bố trí hợp lý, toàn bộ không gian gác lửng sẽ trở thành điểm nhấn kiến trúc đầy sáng tạo trong ngôi nhà.
>> Xem thêm: Top 22+ mẫu nhà 2 tầng nông thôn 500 triệu đẹp, tối ưu chi phí

Mẫu thiết kế gác lửng đẹp, tiện nghi, tối ưu không gian (Nguồn: Internet)
Thiết kế gác lửng cần chú trọng đến sự thông thoáng và tính riêng tư, vì vậy phần gác thường được mở một phần ra phòng khách bên dưới, vừa tạo sự liên kết, vừa không bị bí bách. Cầu thang dẫn lên gác lửng cũng đóng vai trò quan trọng trong thẩm mỹ tổng thể – có thể thiết kế dạng chữ U, chữ L hoặc cầu thang xương cá kết hợp tay vịn gỗ và kính hiện đại. Bên cạnh đó, việc tận dụng gầm cầu thang làm tủ chứa đồ, kệ sách hoặc góc tiểu cảnh sẽ giúp tiết kiệm diện tích và tăng tính tiện nghi. Và nếu bố trí hợp lý, toàn bộ không gian gác lửng sẽ trở thành điểm nhấn kiến trúc đầy sáng tạo trong ngôi nhà.

Mẫu thiết kế cầu thang nhà gác lửng hiện đại, ấn tượng (Nguồn: Internet)
>> 51+ Mẫu phòng khách nhà ống 5m có cầu thang đẹp, tiện nghi
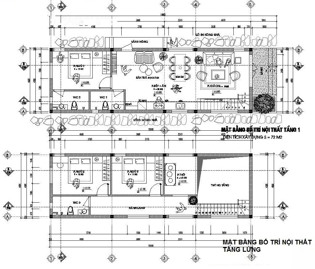
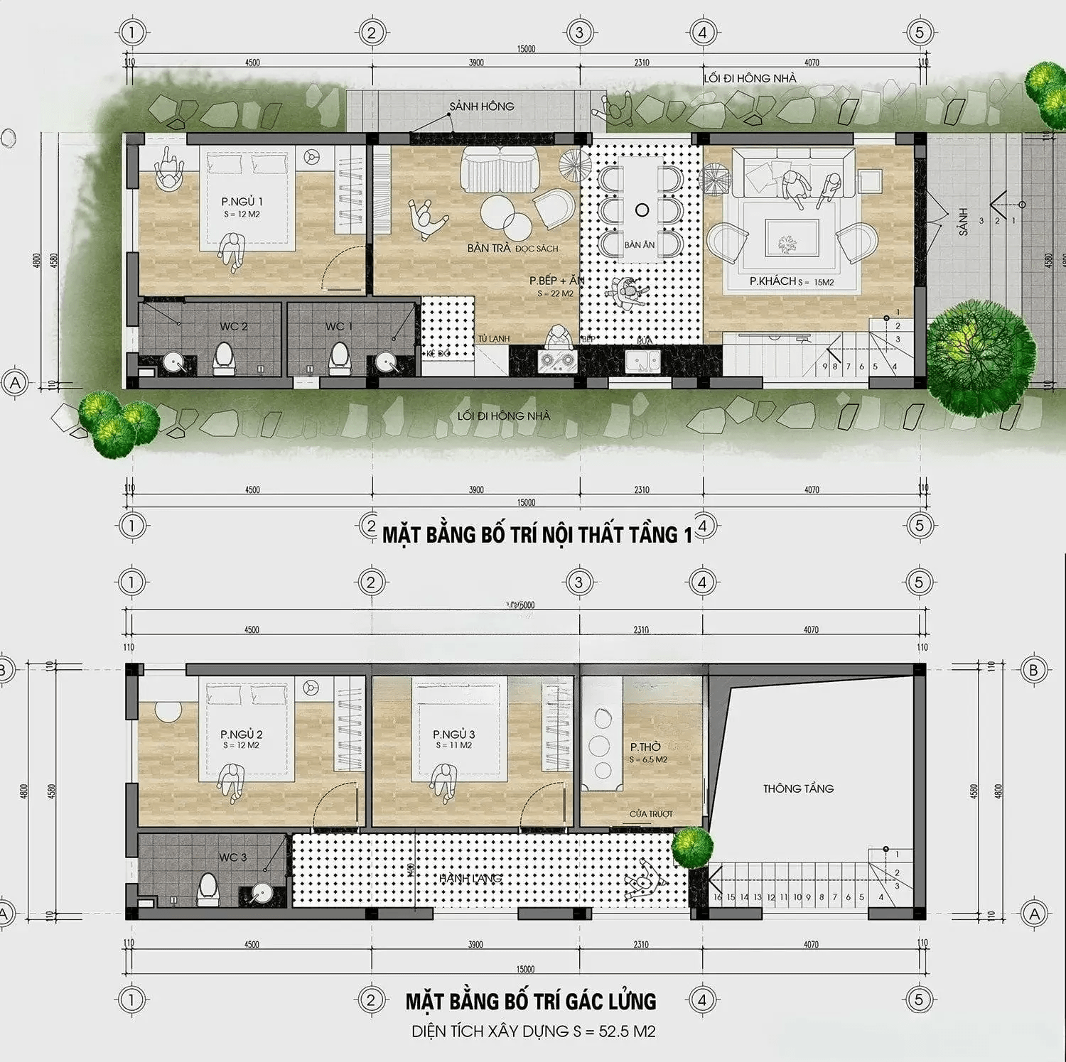
Bản vẽ nhà gác lửng là giải pháp thiết kế linh hoạt, phù hợp với nhiều loại hình nhà ở như nhà phố, nhà ống hoặc nhà cấp 4 nông thôn. Kiểu nhà này giúp mở rộng diện tích sử dụng mà không cần xây tầng lầu, từ đó tiết kiệm chi phí xây dựng và thời gian thi công. Thông thường, tầng trệt sẽ được bố trí phòng khách, bếp – ăn, 1 đến 2 phòng ngủ và khu vực vệ sinh chung; trong khi đó, phần gác lửng được tận dụng để làm phòng ngủ phụ, phòng thờ hoặc không gian sinh hoạt chung tùy theo nhu cầu. Bên cạnh việc tối ưu công năng, kiến trúc sư còn chú trọng đến yếu tố thông thoáng bằng cách bố trí giếng trời, cửa sổ cao hoặc khe lấy sáng. Ngoài ra, chiều cao tầng lửng cũng được tính toán hợp lý để không tạo cảm giác bí bách mà vẫn đảm bảo sự riêng tư. Và với thiết kế linh hoạt như vậy, bản vẽ nhà gác lửng không chỉ phù hợp với gia đình ít người mà còn là lựa chọn lý tưởng cho các cặp vợ chồng trẻ muốn sở hữu tổ ấm tiện nghi, hiện đại trên diện tích đất vừa phải.

Bản vẽ nhà gác lửng 3 phòng ngủ hiện đại, tiện nghi (Nguồn: Internet)

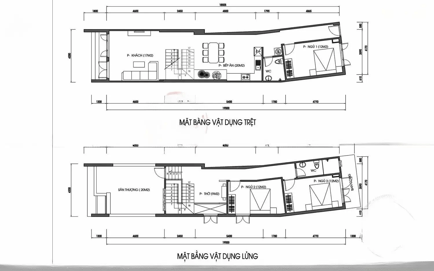
Bản vẽ nhà cấp 4 gác lửng chi tiết, giá rẻ (Nguồn: Internet)

Bản vẽ nhà gác lửng chi tiết, giá rẻ (Nguồn: Internet)
>> 17+ bản vẽ nhà cấp 4 3 phòng ngủ 100m2 tiện nghi, được ưa chuộng
Nhân công xây dựng: Từ 1.100.000 – 1.500.000 VNĐ/m², thay đổi theo khu vực (nông thôn – thành phố) và độ phức tạp.
Thi công phần thô: Dao động 3.200.000 – 3.600.000 VNĐ/m², bao gồm móng, sàn, tường, khung nhà.
Gói trọn gói hoàn thiện: Từ 4.500.000 – 6.000.000 VNĐ/m², tùy vật liệu, phong cách thiết kế và mức độ đầu tư nội thất.
Tổng chi phí xây nhà gác lửng được xác định dựa trên diện tích xây dựng thực tế và đơn giá thi công. Diện tích này bao gồm: phần móng (tính 30–50% diện tích sàn tùy loại móng), tầng trệt, tầng lửng (thường chiếm 50–70% diện tích sàn trệt) và mái (tùy hình thức mái mà được tính từ 30% đến 100%).
Công thức dự toán chi phí như sau:
Chi phí xây dựng = Tổng diện tích xây dựng x Đơn giá thi công
Ví dụ minh họa:
Một ngôi nhà gác lửng có diện tích tầng trệt là 80m², phần gác lửng chiếm 60%, tương đương 48m². Tổng diện tích sàn sẽ là:
80m² (tầng 1) + 48m² (gác lửng) = 128m²
Nếu gia chủ lựa chọn gói thi công tiêu chuẩn với đơn giá 5.000.000 VNĐ/m², tổng chi phí sẽ là:
128m² x 5.000.000 = 640.000.000 VNĐ
Trong trường hợp diện tích lớn hơn, ví dụ tầng trệt 100m² và gác lửng chiếm 65%, tổng diện tích xây dựng sẽ khoảng 165m². Với đơn giá hoàn thiện chất lượng cao khoảng 5.800.000 VNĐ/m², chi phí trọn gói có thể đạt:
165m² x 5.800.000 = 957.000.000 VNĐ
Lưu ý:
Để đo lường chính xác diện tích cần xây dựng, bao gồm cả phần gác lửng, sân trước, ban công hoặc các khu vực phụ trợ.
Gia chủ nên lựa chọn vật liệu và đơn vị thi công uy tín, phù hợp ngân sách và cam kết chất lượng công trình.
Để biết được con số chính xác cho công trình của mình gia chủ nên yêu cầu báo giá chi tiết từ nhà thầu đồng thời kiểm soát các hạng mục và hạn chế phát sinh không đáng có.
>> Có thể bạn cần:
Trước khi khởi công, bạn cần kiểm tra kỹ các quy định xây dựng tại địa phương, đặc biệt là về chiều cao tầng, mật độ xây dựng và số tầng được phép xây. Dù nhà gác lửng không phải là một tầng riêng biệt, nhưng vẫn ảnh hưởng đến chiều cao công trình, nên cần được thể hiện rõ trong bản vẽ xin phép xây dựng. Bên cạnh đó, bạn nên chuẩn bị đầy đủ hồ sơ pháp lý gồm giấy chứng nhận quyền sử dụng đất, bản vẽ thiết kế, đơn xin cấp phép xây dựng và các thủ tục liên quan. Nếu thuê đơn vị thiết kế – thi công trọn gói, họ sẽ hỗ trợ bạn hoàn tất hồ sơ và nộp lên UBND cấp quận/huyện.
Khi thiết kế nhà gác lửng, chiều cao tầng là yếu tố cần được tính toán hợp lý để không gian không bị bí bách. Thông thường, tầng trệt nên cao từ 3,6–3,9m, còn tầng lửng khoảng 2,4–2,7m. Hệ thống móng và kết cấu chịu lực cũng cần đảm bảo chắc chắn để nâng đỡ phần gác, nhất là khi sử dụng vật liệu nặng như gạch, bê tông hoặc cầu thang đúc. Ngoài ra, cần bố trí giếng trời hoặc ô thoáng gần cầu thang để tăng khả năng thông gió, tránh hiện tượng hầm nóng. Nếu thi công sai kỹ thuật, nhà gác lửng có thể bị võng sàn, nứt trần hoặc ảnh hưởng đến kết cấu tổng thể.
>> Lưu ý xây móng nhà cấp 4 có gác lửng
Do không gian không quá lớn nên nội thất trong nhà gác lửng cần được bố trí khoa học, ưu tiên phong cách tối giản, gọn gàng và tiện dụng. Nên tận dụng gầm cầu thang làm tủ chứa đồ, kệ sách hoặc góc làm việc để tối ưu diện tích. Đối với trần nhà và gác lửng, việc sử dụng thạch cao là giải pháp phổ biến vì dễ thi công, giúp tối ưu ánh sáng, cách âm, cách nhiệt, chống cháy hiệu quả. Trần thạch cao còn cho phép tạo hình linh hoạt, dễ kết hợp đèn led âm trần để tăng hiệu ứng ánh sáng và chiều sâu cho không gian. Bên cạnh đó, thạch cao cũng giúp che khuyết điểm hệ thống điện, ống nước và mang lại vẻ đẹp hiện đại, tinh tế cho toàn bộ ngôi nhà.
Dưới đây là một số thiết kế trần thạch cao phòng khách được ưa chuộng nhất hiện nay đến từ thương hiệu Vĩnh Tường:
🔹 Trần thạch cao Vĩnh Tường – Siêu Bền X:
Sử dụng tấm thạch cao Vĩnh Tường-Gyproc Siêu Bền X kết hợp cùng khung xương TIKA, hệ trần này nổi bật với công nghệ Lõi Tổ Ong và Sợi Siêu Bền, cho khả năng chống võng vượt trội, đảm bảo độ chắc chắn và bền đẹp trong suốt quá trình sử dụng. Đây là lựa chọn lý tưởng cho nhà gác lửng có trần nhà đẹp, cao, cần độ ổn định và bền bỉ.
🔹 Trần thạch cao Vĩnh Tường SIÊU BẢO VỆ:
Tấm thạch cao Siêu Bảo Vệ VĨNH TƯỜNG-gyproc là sự lựa chọn toàn diện với tính năng chống ẩm mốc, chống cháy, cách nhiệt, giảm nứt và lọc không khí đến 80%, phù hợp với khí hậu nóng ẩm tại Việt Nam. Dòng trần này không chỉ đáp ứng tiêu chuẩn an toàn mà còn góp phần nâng tầm thẩm mỹ cho không gian thông tầng nhà gác lửng hiện đại

Khi thiết kế nhà gác lửng gia chủ nên ưu tiên lựa chọn vật liệu các vật liệu bền vững (Nguồn: Internet)
Nhà gác lửng không chỉ là giải pháp kiến trúc tối ưu cho những không gian hạn chế diện tích mà còn mang lại sự linh hoạt, tiện nghi và thẩm mỹ trong thiết kế. Hy vọng những chia sẻ trong bài viết sẽ giúp bạn có thêm nhiều gợi ý trong quá trình lên ý tưởng và xây dựng ngôi nhà mơ ước.
Liên hệ ngay với Vĩnh Tường nếu bạn đang cần thêm thông tin về trần, vách thạch cao:
Địa chỉ trụ sở chính: Tầng 8 - Tòa nhà SOFIC Tower, 10 Đường Mai Chí Thọ, Quận 2, Thành phố Hồ Chí Minh.
Thời gian hoạt động:
Thứ 2 - Thứ 6: từ 8h30 – 17h30
Thứ 7: Từ 8h00 - 12h00
Liên hệ qua số điện thoại: 1800-1218 hoặc trang website: https://vinhtuong.com/lien-he
Tag: trần thạch cao phòng khách, trần thạch cao giật cấp, trần thạch cao tân cổ điển, trần thạch cao phòng ngủ, trần thạch cao phẳng, trần thạch cao phòng bếp, trần thạch cao phòng ngủ trẻ em, mẫu trần thạch cao phòng khách 25m2, trần thạch cao phòng ngủ nhỏ 10m2, vách cách âm, vách tiêu âm, vách ngăn chống cháy, vách ngăn nhà vệ sinh, vách ngăn văn phòng, vách tivi, vách ngăn phòng khách và bếp, vách ngăn phòng khách, vách ngăn nhà vệ sinh, tấm cách nhiệt, tấm tiêu âm, vách tường lắp ghép, vách ngăn phòng ngủ, vách ngăn phòng khách chung cư, nhà tắm đẹp, mặt tiền nhà gác lửng 5m