vinhtuong đăng vào lúc 07/03/2026 - 17:50
Nhà phố đẹp không chỉ là nơi để ở, mà còn là không gian thể hiện cá tính và phong cách sống của mỗi gia đình. Với sự sáng tạo trong phong cách thiết kế, sự kết hợp giữa kiến trúc cùng nội thất, những mẫu nhà đẹp này luôn thu hút được sự quan tâm của rất nhiều gia chủ. Ở bài viết này, hãy cùng Vĩnh Tường khám phá các mẫu nhà phố đẹp với những phong cách kiến trúc cực kỳ độc đáo.
Mẫu nhà phố đẹp 1 tầng là lựa chọn lý tưởng cho những gia đình yêu thích không gian sống gọn gàng, tiện nghi và tiết kiệm chi phí. Thiết kế thường tập trung vào sự hài hòa giữa công năng và thẩm mỹ, phổ biến gồm 2–3 phòng ngủ, phòng khách liền bếp và khoảng sân nhỏ phía trước. Dù chỉ 1 tầng, nhưng nhờ cách bố trí thông minh và ưu tiên sử dụng màu sắc sáng, gia chủ vẫn có thể có cho mình không gian sống rộng thoáng, hiện đại và đáp ứng đầy đủ nhu cầu sinh hoạt của gia đình.
>>> Xem thêm:

Mẫu nhà phố 1 tầng đẹp, tiện nghi, tiết kiệm chi phí (Nguồn: Internet)

Mẫu nhà đẹp 1 tầng giá rẻ cho gia đình trẻ 2 - 3 thành viên (Nguồn: Internet)
Nhà phố 2 tầng là một trong những lựa chọn phổ biến cho các gia đình sống ở đô thị hoặc khu vực có diện tích đất hạn chế. Với thiết kế thông minh, mẫu nhà 2 tầng đẹp kiểu phố có thể mang lại sự cân bằng giữa thẩm mỹ và công năng sử dụng.
>> Xem thêm:

Mẫu thiết kế nhà phố 2 tầng trần nổi phù hợp cho gia đình từ 2 - 4 thành viên (Nguồn: Internet)

Mẫu thiết kế nhà phố 2 tầng có trần giật cấp với phong cách trang nhã, sang trọng (Nguồn: Internet)
Nhà phố 3 tầng là một lựa chọn tuyệt vời cho những gia đình cần không gian sống rộng rãi hơn nhà ống 2 tầng mà vẫn giữ được tính tiện nghi và tiết kiệm diện tích. Với thiết kế cao tầng, nhà phố 3 tầng không chỉ tối ưu hóa diện tích sử dụng mà còn đáp ứng nhu cầu về không gian sinh hoạt cho các thành viên trong gia đình.

Mẫu nhà phố 3 tầng có trần thạch cao nổi cực kỳ sang trọng, tiện nghi (Nguồn: Internet)

Mẫu thiết kế nhà ống hiện đại 3 tầng phù hợp với gia đình đông thành viên (Nguồn: Internet)
>> Xem thêm:
Với cấu trúc 4 tầng, mẫu nhà phố này mang lại không chỉ không gian sống rộng rãi mà còn tạo sự tiện nghi cho các gia đình có đông thành viên hoặc nhu cầu sử dụng nhiều phòng chức năng khác nhau như phòng khách liền bếp nhà ống. Với chiều cao ấn tượng, nhà phố 4 tầng tạo nên vẻ ngoài đẹp mắt và sang trọng. Các thiết kế hiện đại kết hợp với các vật liệu xây dựng cao cấp giúp nâng cao giá trị thẩm mỹ và tính năng của ngôi nhà.

Mẫu thiết kế nhà phố 4 tầng có vách ngăn cách nhiệt và sử dụng cửa kính lớn đón ánh sáng tự nhiên (Nguồn: Internet)

Mẫu thiết kế nhà phố 4 tầng có hệ khung xương trần thạch cao chìm và sử dụng màu sắc ấm cúng (Nguồn: Internet)
>>> Xem thêm:
Nhà mái Nhật kiểu phố là một xu hướng thiết kế nhà phố đang được ưa chuộng hiện nay, đặc biệt tại các khu vực đô thị. Với sự kết hợp giữa kiến trúc truyền thống Nhật Bản và phong cách hiện đại, nhà phố mái Nhật mang lại vẻ đẹp thanh thoát, nhẹ nhàng và rất tinh tế.

Mẫu nhà phố mái Nhật có trần thạch cao chống nóng thoáng mát, hài hòa với thiên nhiên (Nguồn: Internet)

Mẫu thiết kế nhà mái Nhật 2 tầng có ban công lớn tạo không gian thoáng đãng (Nguồn: Internet)
>> Xem thêm:
Nhà mái Thái kiểu phố là một trong những kiểu nhà phổ biến hiện nay. Kiểu mái này nổi bật với sự dốc, rộng và đẹp mắt, tạo nên không gian sống thoáng đãng, mát mẻ. Nhà phố mái Thái mang đến sự sang trọng và tinh tế, phù hợp với phong cách kiến trúc hiện đại hay phòng khách tân cổ điển hoặc cả những ngôi nhà có phong cách Á Đông.

Mẫu nhà cấp 4 mái Thái 3 phòng ngủ kiểu phố mang lại vẻ đẹp sang trọng (Nguồn: Internet)

Mẫu nhà phố mái Thái có phòng thờ đẹp và sân vườn rộng lớn, thoáng đãng (Nguồn: Internet)
>>> Xem thêm:
Nhà mái lệch không chỉ mang lại một diện mạo mới mẻ cho ngôi nhà mà còn giúp tối ưu hóa không gian sử dụng. Kiểu mái lệch giúp tận dụng tối đa ánh sáng tự nhiên, đặc biệt là ở các khu vực phía mái có độ dốc cao hơn. Điều này giúp cho không gian bên trong nhà luôn thông thoáng, mát mẻ, tiết kiệm năng lượng điện sử dụng cho hệ thống chiếu sáng.

Mẫu nhà phố mái lệch có trần chống nồm ẩm với phong cách thiết kế mới lạ, hiện đại (Nguồn: Internet)

Mẫu thiết kế nhà phố mái lệch có gác xép sang trọng, tiện nghi (Nguồn: Internet)
>> Tham khảo:
Nhà cấp 4 mái bằng kiểu phố là kiến trúc đơn giản, hiện đại, đặc trưng với phần mái phẳng, không có độ dốc. Đây là một trong những lựa chọn phổ biến trong xây dựng nhà phố hiện nay, đặc biệt ở các khu đô thị nơi diện tích đất hạn chế và nhu cầu sử dụng không gian hiệu quả rất cao.

Mẫu nhà phố mái bằng có vách thạch cao đẹp và phần mặt tiền được thiết kế độc đáo (Nguồn: Internet)

Mẫu thiết kế nhà phố mái bằng có sử dụng vật liệu chống tường bị ẩm mốc phù hợp với những mảnh đất có diện tích nhỏ (Nguồn: Internet)
>> Xem thêm:
Nhà phố đơn giản đẹp là lựa chọn lý tưởng cho những ai yêu thích sự nhẹ nhàng, tinh gọn trong không gian sống. Thiết kế tập trung vào công năng, hạn chế chi tiết rườm rà và ưu tiên sử dụng vật liệu phổ thông như gạch trơn, mái bằng hoặc trần thạch cao phẳng. Màu sắc thường là các tông trung tính như trắng, xám, be, giúp ngôi nhà vừa sáng sủa vừa dễ phối nội thất. Dù đơn giản, nhưng với cách bố trí hợp lý và chú trọng ánh sáng tự nhiên, những mẫu nhà này vẫn toát lên vẻ đẹp hài hòa, thanh lịch và gần gũi – rất phù hợp với nhịp sống đô thị hiện đại.

Thiết kế nhà phố đơn giản đẹp, tiết kiệm chi phí (Nguồn: Internet)

Mẫu nhà phố đơn giản đẹp, xu hướng được ưa chuộng hiện nay (Nguồn: Internet)
>>> Xem thêm:
Nhà phố hiện đại là một trong những lựa chọn phổ biến trong thiết kế và xây dựng nhà ở ngày nay, đặc biệt ở các khu đô thị. Mẫu nhà này thường có thiết kế tối giản, chú trọng vào việc tạo không gian mở và sử dụng các yếu tố đơn giản nhưng tinh tế như thi công trần thạch cao.

Mẫu nhà phố hiện đại có làm trần thạch cao với phong cách thiết kế mới mẻ, phóng khoáng (Nguồn: Internet)

Mẫu nhà phố hiện đại có phào thạch cao và không gian thoáng mát, gần gũi với thiên nhiên (Nguồn: Internet)
>>> Tham khảo:
Nhà phố cổ điển là một phong cách kiến trúc mang đậm dấu ấn lịch sử, với những đường nét thiết kế sang trọng kết hợp với các loại trần như: Trần thả thạch cao, trần chìm... Mẫu nhà này thường chú trọng vào sự hài hòa giữa các yếu tố truyền thống và tính thẩm mỹ vững bền, mang lại không gian sống vừa sang trọng, vừa ấm cúng.

Mẫu nhà phố cổ điển có nhiều phòng ngủ nhỏ mang lại vẻ đẹp sang trọng (Nguồn: Internet)

Mẫu thiết kế nhà phố cổ điển có la phông thạch cao kết hợp với phong cách hiện đại (Nguồn: Internet)
>> Xem thêm:
Nhà phố 2 mặt tiền là loại hình nhà phố có lợi thế đặc biệt với hai mặt tiếp giáp với đường, mang lại nhiều lợi ích về cả công năng sử dụng và tính thẩm mỹ. Kiểu nhà này thường được xây dựng tại các khu vực có vị trí đắc địa, dễ dàng tiếp cận giao thông. Nhà phố 2 mặt tiền có thể được áp dụng cho nhiều phong cách thiết kế, từ hiện đại đến cổ điển, và thường có không gian thoáng đãng, linh hoạt hơn các loại nhà phố thông thường.

Mẫu nhà phố 2 mặt tiền có thi công tường cách âm cực kỳ sang trọng, đẳng cấp (Nguồn: Internet)

Mẫu nhà phố 2 mặt tiền có tranh tường thạch cao tận dụng tối đa ánh sáng và gió trời tự nhiên (Nguồn: Internet)
>> Xem thêm:
Nhà phố mặt tiền rộng (4m - 8m) là một trong những lựa chọn phổ biến tại các khu đô thị, đặc biệt là những khu vực có diện tích đất hạn chế. Mặt tiền rộng giúp ngôi nhà đón nhận ánh sáng tự nhiên. Điều này không chỉ giúp tiết kiệm năng lượng mà còn tạo không gian sống trong lành, thoáng đãng và dễ chịu.

Mẫu nhà phố mặt tiền rộng có trần thạch cao siêu thanh lọc không khí kết hợp màu sắc cực kỳ tinh tế (Nguồn: Internet)

Mẫu nhà phố mặt tiền rộng có sơn vách thạch cao theo phong cách tân cổ điển (Nguồn: Internet)
>> Xem thêm:
Nhà phố 2-4 phòng ngủ là lựa chọn phổ biến cho các gia đình có nhu cầu sinh sống tại khu vực đô thị nhưng vẫn muốn một không gian thoải mái và tiện nghi. Với số lượng phòng ngủ linh hoạt từ 2 đến 4 phòng, mẫu nhà này có thể đáp ứng nhu cầu đa dạng của các gia đình từ ít đến đông thành viên.

Mẫu nhà phố 2 - 4 phòng ngủ có lắp đặt trần thạch cao giật cấp kín phù hợp với gia đình đông thành viên (Nguồn: Internet)

Mẫu nhà phố có cách âm phòng ngủ thoáng mát, gần gũi với thiên nhiên (Nguồn: Internet)
>> Tìm hiểu thêm về nồm ẩm miền Bắc:
Các mẫu nhà phố hiện nay được thiết kế để tận dụng tối đa diện tích. Với kích thước phổ biến có mặt tiền từ 4m đến 7m và chiều sâu từ 15m đến 20m, nhà phố thường có kết cấu hình chữ nhật kết hợp với vật liệu làm từ thạch cao và xây cao tầng nhằm tận dụng ánh sáng cùng gió tự nhiên.
Kiến trúc nhà phố ưu tiên phong cách tối giản, mạnh mẽ, sử dụng vật liệu và gam màu theo xu hướng mới như sử dụng trần thạch cao, ốp tường bằng gạch men, màu thường là trắng kết hợp với màu tối... Tuy nhiên, những ngôi nhà này thường gặp hạn chế trong việc bố trí không gian linh hoạt và khả năng thông gió, chiếu sáng tự nhiên nên thường ưu tiên thiết kế ban công và nhiều cửa sổ lớn.

Nhà phố thường có kết cấu và mẫu trần thạch cao phòng khách hình chữ nhật (Nguồn: Internet)

Mẫu nhà 2 tầng đẹp hiện đại, sang trọng (Nguồn: Internet)

Thiết kế nhà gác lửng kiểu nhà phố phù hợp với những mảnh đất có diện tích hẹp (Nguồn: Internet)

Mẫu nhà ống cấp 4 với thiết kế kiểu phố ấn tượng, hiện đại (Nguồn: Internet)

Nhà phố có trần thạch cao giật cấp mang nhiều ưu điểm vượt trội, được rất nhiều gia chủ lựa chọn (Nguồn: Internet)
>> Tìm hiểu thêm:
Trong đó, trần thạch cao Vĩnh Tường - Siêu Bền X và Siêu Bảo Vệ là 2 sản phẩm nổi bật nhất, được nhiều gia chủ lựa chọn. Hệ trần thạch cao Vĩnh Tường Siêu Bền X ứng dụng công nghệ độc quyền kết hợp lõi tổ ong và sợi siêu bền, mang đến nhiều ưu điểm nổi bật:

Hệ trần thạch cao Vĩnh Tường SIÊU BẢO VỆ được tạo ra từ sự kết hợp hoàn hảo giữa Tấm thạch cao Siêu Bảo Vệ Vĩnh Tường-Gyproc và khung xương Vĩnh Tường BASI® hoặc khung xương Vĩnh Tường ALPHA. Với những tính năng vượt trội, sản phẩm này là giải pháp lý tưởng cho trần nhà phố mang đến khả năng chống nồm ẩm, chống cháy an toàn, hạn chế võng và nứt trần. Đồng thời, hệ trần này còn giúp thanh lọc không khí tới 80%, tạo nên không gian sống trong lành và bền vững.

>> Tham khảo các thiết kế không gian bên trong:
Thiết kế mặt tiền ấn tượng: Mặt tiền nhà phố đóng vai trò quan trọng trong việc tạo ấn tượng ban đầu. Thiết kế mặt tiền nên kết hợp hài hòa giữa các yếu tố như cửa chính, cửa sổ, ban công, vật liệu trang trí phòng khách nhà cấp 4 theo kiểu phố làm sao để vừa đẹp mắt, vừa phù hợp với phong thủy.
Những lưu ý này sẽ giúp bạn tạo ra một ngôi nhà phố đẹp, phản ánh đúng phong cách sống của bạn, đồng thời mang lại sự hài hòa và tinh tế trong từng chi tiết.
>> Có thể bạn quan tâm:
Báo giá thiết kế nhà phố có thể dao động khá rộng tùy thuộc vào các yếu tố như diện tích xây dựng, phong cách thiết kế, vị trí, và yêu cầu đặc biệt của gia chủ như lắp đặt thêm các vật liệu cách âm cách nhiệt, phụ kiện trần thạch cao. Dưới đây là một số thông tin tham khảo về giá thiết kế nhà phố:

Giá thiết kế nhà phố có tấm tiêu âm và phụ thuộc vào rất nhiều yếu tố khác nhau (Nguồn: Internet)
Báo giá thi công xây dựng nhà phố phụ thuộc vào nhiều yếu tố như diện tích, phong cách thiết kế, vị trí thi công, loại vật liệu sử dụng như trần thạch cao phẳng, mẫu sơn trần nhà đẹp… và yêu cầu đặc biệt của gia chủ. Dưới đây là bảng giá tham khảo cho việc thi công xây dựng nhà phố:
>> Xem thêm:
Thiết kế nhà phố cần đáp ứng các chức năng cơ bản để phục vụ tốt đời sống của gia đình. Trước hết, ngôi nhà cần bảo vệ các thành viên trong gia đình bằng cách tạo ra một không gian an toàn, thân thiện và ấm cúng. Các phòng sinh hoạt cần được bố trí hợp lý như phòng khách liền bếp 20m2 và tạo không gian riêng tư cho từng người trong gia đình. Bên cạnh đó, nhà cũng cần đáp ứng nhu cầu tái tạo năng lượng cho các hoạt động hàng ngày như ăn uống, ngủ nghỉ, vệ sinh cá nhân, và hỗ trợ sự phát triển của mỗi thành viên.
>> Xem thêm: Tổng hợp mẫu phòng bếp nhà ống 5m đẹp, hiện đại, sang trọng nhất hiện nay

Thiết kế kiến trúc nhà phố yêu cầu những tiêu chuẩn riêng để mang lại không gian sống tiện nghi, hiện đại cho các thành viên trong gia đình (Nguồn: Internet)
Với diện tích trung bình khoảng 7m²/người, mỗi phòng như phòng khách, phòng ăn và phòng ngủ cần có diện tích phù hợp. Có thể thiết kế phòng khách kết hợp phòng thờ nhà ống. Các phòng này cũng cần được thiết kế sao cho có sự kết nối thuận tiện và hợp lý, dễ dàng di chuyển giữa các không gian.
Việc dự trù kinh phí tối đa là bước quan trọng để đảm bảo chi tiêu được kiểm soát chặt chẽ. Gia chủ cần lập kế hoạch chi tiết, bao gồm các khoản chi cho thiết kế, vật liệu, thi công và các chi phí phát sinh, từ đó tránh được tình trạng vượt ngân sách.
Phong cách thiết kế ngôi nhà cần phản ánh được cá tính, sở thích và nhu cầu sử dụng của gia đình. Điều này không chỉ mang lại sự thoải mái trong sinh hoạt mà còn tạo nên giá trị thẩm mỹ lâu dài cho ngôi nhà.
Thời điểm xây nhà ảnh hưởng lớn đến tiến độ và chi phí công trình. Gia chủ nên lựa chọn thời điểm khô ráo, ít mưa để giảm rủi ro về thời tiết, đồng thời tận dụng các thời kỳ giá vật liệu và nhân công ổn định.
Chọn vật liệu xây dựng vừa phù hợp với ngân sách vừa đảm bảo chất lượng là yếu tố then chốt. Gia chủ có thể cân nhắc sử dụng các loại vật liệu hiện đại, bền đẹp, giá cả hợp lý để tối ưu hóa hiệu quả đầu tư.
Đơn vị thi công trọn gói giàu kinh nghiệm sẽ đảm bảo chất lượng công trình, từ khâu thiết kế đến hoàn thiện. Họ không chỉ hỗ trợ gia chủ trong việc quản lý chi phí mà còn đảm bảo tiến độ và tính thẩm mỹ của ngôi nhà.
>> Xem thêm:
Bản vẽ thiết kế nhà phố là một phần quan trọng trong quá trình xây dựng, giúp gia chủ và các nhà thầu hiểu rõ cách bố trí, chức năng và hình thức của ngôi nhà. Dưới đây là các loại bản vẽ thiết kế nhà phố phổ biến, được áp dụng nhiều hiện nay:

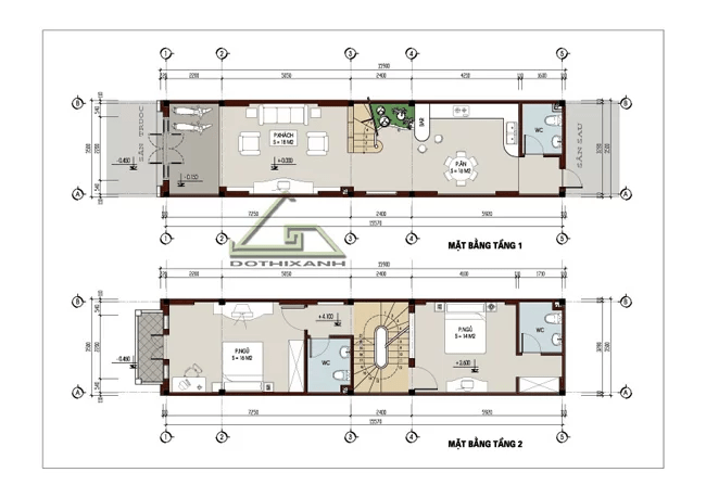
Bản vẽ thiết kế nhà phố 2 tầng (Nguồn: Internet)

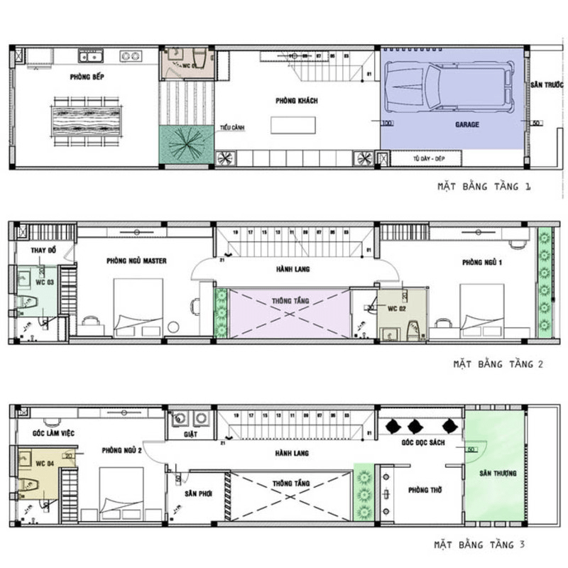
Bản vẽ thiết kế nhà phố 3 tầng (Nguồn: Internet)

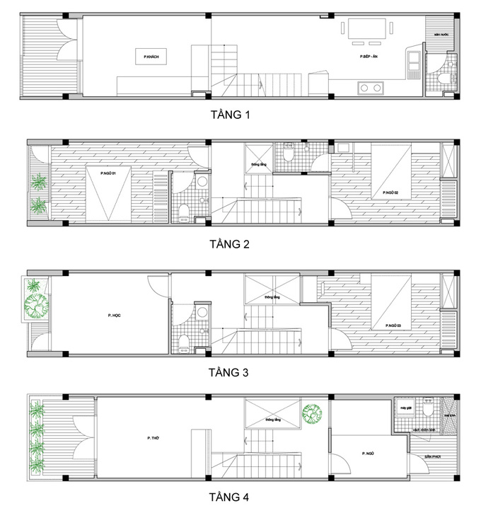
Bản vẽ thiết kế nhà phố 4 tầng (Nguồn: Internet)
>> Xem thêm:
Ở trên là những mẫu nhà phố đẹp hiện đại, tiện nghi được nhiều gia chủ lựa chọn nhất. Hy vọng với những chia sẻ của Vĩnh Tường sẽ giúp bạn có thêm nhiều gợi ý cho ngôi nhà phố tương lai của mình.
Thứ 2 - Thứ 6: từ 8h30 – 17h30
Thứ 7: Từ 8h00 - 12h00
Tag: trần thạch cao phòng khách, trần thạch cao giật cấp, trần thạch cao tân cổ điển, trần thạch cao phòng ngủ, trần thạch cao phẳng, trần thạch cao phòng bếp, trần thạch cao phòng ngủ trẻ em, mẫu trần thạch cao phòng khách 25m2, trần thạch cao phòng ngủ nhỏ 10m2, vách cách âm, vách tiêu âm, vách ngăn chống cháy, vách ngăn nhà vệ sinh, vách ngăn văn phòng, vách tivi, vách tường lắp ghép, vách ngăn phòng khách chung cư, vách ngăn phòng thờ, vách ngăn phòng khách và bếp, vách ngăn cầu thang, vách ngăn cầu thang tam cấp