vinhtuong đăng vào lúc 20/05/2025 - 14:17
Trong xu hướng kiến trúc đương đại, mẫu nhà đẹp 1 tầng đang trở thành lựa chọn ưu tiên của nhiều gia đình tại cả thành thị lẫn nông thôn. Với thiết kế linh hoạt, phù hợp nhiều diện tích đất, dễ dàng tối ưu công năng và chi phí, mẫu nhà 1 tầng không chỉ đảm bảo tính thẩm mỹ, mà còn đáp ứng nhu cầu sinh hoạt tiện nghi, hiện đại. Bài viết dưới đây sẽ tổng hợp hơn 25 mẫu nhà cấp 4 đẹp, được đánh giá cao về công năng sử dụng và giá trị thẩm mỹ, mang đến nhiều gợi ý hữu ích cho gia chủ đang có ý định xây dựng tổ ấm trong năm nay.

Sức hút của các mẫu nhà 1 tầng đến từ sự cân bằng giữa yếu tố thẩm mỹ, công năng và chi phí đầu tư. Dưới đây là những lý do chính đưa nhà 1 tầng trở thành xu hướng được nhiều chủ đầu tư lựa chọn.
Để tối ưu không gian sống hơn mà vẫn đảm bảo cách âm – thẩm mỹ, bạn có thể sử dụng hệ trần – vách thạch cao nhằm phân tách các khu vực như phòng khách, phòng ngủ hay khu thờ cúng. Tấm thạch cao Siêu Bảo Vệ VĨNH TƯỜNG-gyproc là sự lựa chọn toàn diện với tính năng chống ẩm mốc, chống cháy, cách nhiệt, giảm nứt và lọc không khí đến 80%, phù hợp với khí hậu nóng ẩm tại Việt Nam. Dòng trần này không chỉ đáp ứng tiêu chuẩn an toàn mà còn góp phần nâng tầm thẩm mỹ cho không gian.

Nhà 1 tầng đẹp là mẫu nhà rất được ưa chuộng hiện nay (Nguồn: Internet)
>> Xem thêm:
Thiết kế nhà 1 tầng theo phong cách đơn giản nhưng tinh tế là xu hướng được nhiều gia đình Việt lựa chọn trong những năm gần đây. Những mẫu nhà này thường tập trung vào sự tối ưu công năng, bố cục không gian logic và tính thẩm mỹ nhẹ nhàng - phù hợp với nhu cầu sống hiện đại, thực tế. Tùy vào sở thích, diện tích đất và điều kiện tài chính, chủ đầu tư có thể chọn lựa các kiểu mái như mái Nhật, mái Thái, mái bằng hay mái lệch để tạo nên công trình hài hòa và ấn tượng.
Mái Nhật nổi bật với độ dốc vừa phải, tạo cảm giác nhẹ nhàng, thanh lịch. Thiết kế nhà mái Nhật 1 tầng thường kết hợp cùng hệ cửa kính lớn, tường ốp đá tự nhiên và sân vườn tiểu cảnh - giúp tổng thể công trình vừa hiện đại vừa gần gũi thiên nhiên. Mẫu nhà mái Nhật này phù hợp với gia chủ yêu thích không gian sống tinh tế, nhẹ nhàng nhưng vẫn giữ được nét sang trọng.

Mẫu nhà cấp 4 mái Nhật đẹp và sang trọng (Nguồn: Internet)
>> Xem thêm:
Nhà mái Thái 1 tầng là sự kết hợp hoàn hảo giữa truyền thống và hiện đại. Kiểu mái dốc cao giúp thoát nước nhanh, chống nóng hiệu quả, đồng thời tôn lên chiều cao công trình, tạo cảm giác bề thế. Thiết kế nhà mái Thái này thường sử dụng gam màu trung tính, bố trí 2-3 phòng ngủ cùng không gian sinh hoạt chung rộng rãi, đáp ứng tốt nhu cầu của gia đình đông người.

Mẫu nhà cấp 4 mái Thái hiện đại (Nguồn: Internet)
>> Xem thêm:
Mái bằng là lựa chọn lý tưởng cho các công trình mang phong cách tối giản, hiện đại. Hình khối kiến trúc vuông vức, đường nét dứt khoát và mặt tiền ốp vật liệu mới như gạch thẻ, lam nhôm, gỗ nhựa… tạo nên diện mạo trẻ trung, hiện đại và có phần cá tính. Mẫu nhà cấp 4 mái bằng đặc biệt phù hợp với người trẻ, yêu thích sự sáng tạo và tính ứng dụng cao trong không gian sống.

Nhà cấp 4 mái bằng 5x20 tối giản hiện đại (Nguồn: Internet)
Mái lệch tạo điểm nhấn độc đáo cho mặt tiền và tăng hiệu quả thông gió, đón sáng. Thiết kế nhà mái lệch 1 tầng thường kết hợp với không gian mở, nhiều mảng xanh, phù hợp xây dựng tại vùng ven đô, khu nghỉ dưỡng hoặc những nơi có cảnh quan tự nhiên đẹp. Đây là lựa chọn hoàn hảo cho những gia chủ muốn sở hữu công trình “không đụng hàng” và có dấu ấn cá nhân rõ nét.

Nhà 1 tầng với mái lệch độc đáo (Nguồn: Internet)
>> Tham khảo:
Phong cách hiện đại trong thiết kế nhà 1 tầng ưu tiên sự tối giản trong chi tiết, hài hòa về màu sắc và chú trọng công năng sử dụng. Mẫu nhà này thường ứng dụng vật liệu mới, công nghệ thông minh trong chiếu sáng, thông gió và chống nóng. Bên cạnh thẩm mỹ, nhà hiện đại 1 tầng còn đem lại sự tiện nghi tối đa trong sinh hoạt hàng ngày.

Nhà 1 tầng tối giản nhưng hiện đại (Nguồn: Internet)
Nhà vườn 1 tầng là lựa chọn lý tưởng cho những ai yêu thích không gian sống chan hòa với thiên nhiên. Với lợi thế diện tích rộng, mẫu nhà này cho phép bố trí sân vườn, tiểu cảnh, lối đi lát đá hoặc hồ cá, tạo nên môi trường sống thư thái và trong lành. Thiết kế thường mở rộng theo chiều ngang, kết hợp nhiều cửa kính lớn giúp lấy sáng và lưu thông không khí tốt - phù hợp xây dựng ở vùng ngoại ô hoặc nông thôn.

Thiết kế nhà vườn cấp 4 thoáng mát chan hòa với thiên nhiên (Nguồn: Internet)
Mẫu nhà 1 tầng chữ L mang đến sự linh hoạt trong bố trí công năng và tận dụng tối đa diện tích đất. Phần khuyết của mẫu nhà chữ L thường được tận dụng làm sân trong, gara hoặc tiểu cảnh, tạo điểm nhấn sinh động cho tổng thể công trình. Ngoài ra, bố cục hình chữ L giúp tách biệt các khu vực sinh hoạt - nghỉ ngơi hiệu quả, tăng sự riêng tư cho từng không gian chức năng.

Mẫu nhà cấp 4 chữ L tận dụng tối đa diện tích đất (Nguồn: Internet)
Nhà chữ U mang lại cảm giác đối xứng, vững chãi và rất phù hợp với các khu đất có mặt tiền rộng. Kiểu bố trí này tạo nên khoảng sân trung tâm - nơi gia đình có thể trồng cây, làm tiểu cảnh hoặc tổ chức các hoạt động ngoài trời. Thiết kế mở, nhiều cửa sổ bao quanh giúp toàn bộ không gian luôn thoáng mát, tận dụng tối đa ánh sáng tự nhiên.

Mẫu nhà đẹp 1 tầng chữ U hiện đại được ưa chuộng (Nguồn: Internet)
>> Tham khảo thêm:
Gác xép (hay còn gọi là gác lửng) là giải pháp mở rộng không gian sử dụng mà không làm thay đổi chiều cao công trình đáng kể. Thiết kế nhà cấp 4 gác lửng cho phép bố trí thêm phòng ngủ, phòng làm việc hoặc kho chứa đồ - đặc biệt phù hợp với gia đình đông người hoặc có nhu cầu sử dụng linh hoạt. Kiến trúc gác xép hiện đại có thể kết hợp giếng trời hoặc ô kính lấy sáng, giúp không gian không bị bí bách.

Nhà gác lửng 1 tầng tiện ích giúp tiết kiệm không gian (Nguồn: Internet)
>> Xem thêm:
Với những gia đình sở hữu xe hơi, mẫu nhà 1 tầng tích hợp gara là giải pháp thực tế và an toàn. Gara thường được bố trí bên hông hoặc phía trước nhà, có mái che hoặc nằm trong khối kiến trúc chính để đảm bảo thẩm mỹ tổng thể. Thiết kế này đảm bảo phương tiện được bảo vệ khỏi tác động thời tiết, đồng thời tối ưu hóa diện tích sử dụng trên cùng một mặt bằng.

Mẫu nhà đẹp 1 tầng có gara ô tô tích hợp hiện đại (Nguồn: Internet)
Tại khu vực nông thôn, nhà 1 tầng vẫn giữ vai trò chủ đạo nhờ tính kinh tế và phù hợp với lối sống địa phương. Các mẫu thiết kế nhà cấp 4 nông thôn đơn giản hiện nay được cải tiến về thẩm mỹ, công năng và vật liệu, giúp không gian sống ở quê trở nên tiện nghi không thua kém thành thị. Tùy theo diện tích và nhu cầu sử dụng, có thể lựa chọn phong cách truyền thống, hiện đại hoặc kết hợp hài hòa giữa hai yếu tố này để tạo nên công trình đẹp, bền vững và gần gũi thiên nhiên.

Mẫu nhà cấp 4 nông thôn 3 phòng ngủ hợp với lối sống địa phương (Nguồn: Internet)
>> Tham khảo:
Biệt thự mini 1 tầng là lựa chọn lý tưởng cho các gia đình yêu thích sự đẳng cấp trong không gian sống nhưng vẫn muốn tiết chế quy mô theo diện tích đất vừa phải. Thiết kế biệt thự thường sử dụng bố cục mặt bằng mở, kết hợp cùng vật liệu cao cấp như đá tự nhiên, kính cường lực, gỗ nhựa ngoài trời… tạo nên vẻ đẹp sang trọng và thời thượng. Dù có diện tích không quá lớn, biệt thự mini 1 tầng vẫn đảm bảo đầy đủ tiện nghi với 2-3 phòng ngủ, phòng khách rộng và bếp ăn kết nối ra sân vườn.

Biệt thự 1 tầng mini sang trọng kết nối với sân vườn (Nguồn: Internet)
Villa 1 tầng tích hợp hồ bơi là mẫu thiết kế mang hơi hướng nghỉ dưỡng, phù hợp xây dựng tại các khu vực ven đô, vùng khí hậu mát mẻ hoặc gần biển. Kiến trúc villa thường sử dụng mảng kính lớn, mái dốc hoặc mái bằng hiện đại để tạo sự kết nối tối đa giữa không gian bên trong và cảnh quan bên ngoài. Hồ bơi có thể bố trí ở phía trước hoặc bên hông công trình, đóng vai trò như điểm nhấn kiến trúc, đồng thời nâng tầm trải nghiệm sống.

Mẫu nhà villa 1 tầng có hồ bơi đẳng cấp thích hợp để nghỉ dưỡng (Nguồn: Internet)
Với những lô đất có mặt tiền hẹp, mẫu nhà ống đẹp 1 tầng là giải pháp phù hợp, giúp tối ưu diện tích mà vẫn đảm bảo đầy đủ công năng. Thiết kế 2 phòng ngủ bố trí lệch nhau theo chiều sâu, đi kèm phòng khách - bếp liên thông giúp tạo cảm giác rộng rãi, thoáng đãng. Ngoài ra, có thể bố trí giếng trời ở giữa hoặc cuối nhà để tăng lượng ánh sáng tự nhiên và đối lưu không khí hiệu quả - đặc biệt quan trọng đối với nhà phố.

Nhà ống cấp 4 2 phòng ngủ đầy đủ công năng (Nguồn: Internet)
>> Xem thêm:
Với diện tích khoảng 100m², mẫu nhà 1 tầng có 3 phòng ngủ được đánh giá là phương án hợp lý cho gia đình 3-5 người. Thiết kế nhà cấp 4 đẹp 3 phòng ngủ cần tính toán kỹ lưỡng về mặt bằng công năng để đảm bảo mỗi khu vực đều thông thoáng, tiện nghi mà không gây cảm giác chật chội. Cách bố trí phổ biến bao gồm: phòng khách - bếp mở ở trung tâm, các phòng ngủ bố trí tách biệt xung quanh, có thể thêm 1 phòng vệ sinh chung và 1 phòng vệ sinh riêng cho phòng ngủ chính nhằm nâng cao tiện ích sử dụng.

Mẫu nhà cấp 4 3 phòng ngủ 300 triệu 100m2 tiện nghi (Nguồn: Internet)

Bản vẽ nhà cấp 4 3 phòng ngủ 100m2 được nhiều gia đình ưa chuộng (Nguồn: Internet)
Nhà 1 tầng với 4 phòng ngủ phù hợp với các gia đình đa thế hệ hoặc có nhu cầu không gian sinh hoạt rộng rãi. Thiết kế đòi hỏi sự cân đối về bố cục mặt bằng để mỗi phòng đều đảm bảo diện tích hợp lý, thông thoáng. Kết hợp phòng khách và bếp mở, tạo không gian liên thông giúp tăng sự kết nối và tận dụng tối đa ánh sáng tự nhiên.

Mẫu nhà đẹp 1 tầng 4 phòng ngủ phù hợp với gia đình nhiều thế hệ (Nguồn: Internet)
>> Tham khảo: 35+ Mẫu nhà cấp 4 mái Nhật 4 phòng ngủ đẹp, tiết kiệm chi phí
Mẫu nhà ống 1 tầng với mặt tiền 4m thường được thiết kế tối giản nhằm tối ưu diện tích sử dụng. Thiết kế ưu tiên không gian mở và bố trí hợp lý các phòng chức năng để tránh cảm giác chật chội. Giếng trời hoặc cửa sổ lớn là giải pháp hiệu quả giúp lấy sáng và thông gió tự nhiên, nâng cao chất lượng sống.

Mẫu nhà ống 1 tầng mặt tiền 4m tối ưu diện tích sử dụng (Nguồn: Internet)
>> Xem thêm:
Nhà ống 1 tầng mặt tiền 5m là lựa chọn tối ưu cho những gia đình mong muốn mở rộng không gian sống so với bản thiết kế mặt tiền 4m. Với chiều rộng tăng thêm, ngôi nhà dễ dàng bố trí thêm phòng chức năng như phòng làm việc, phòng thờ hoặc đơn giản là mở rộng diện tích các phòng hiện có để tăng sự tiện nghi. Đặc biệt, mẫu mặt tiền nhà gác lửng 5m đang rất được ưa chuộng nhờ thiết kế hiện đại, thẩm mỹ và khả năng tận dụng tối đa không gian theo chiều cao. Bên trong, kiến trúc sư thường bố trí linh hoạt từ 2 đến 3 phòng ngủ, kết hợp với khu vực sinh hoạt chung rộng rãi, phù hợp với nhu cầu sử dụng của các gia đình nhỏ đến trung bình.

Mẫu nhà ống 1 tầng mặt tiền 5m rộng rãi (Nguồn: Internet)
>> Tham khảo:
Nhà ống 1 tầng mặt tiền 6m phù hợp với điều kiện đất nông thôn rộng rãi, thường có thiết kế đơn giản, thân thiện với môi trường. Kiến trúc thường tận dụng vật liệu địa phương, mái thái hoặc mái tôn, giúp tiết kiệm chi phí và phù hợp với khí hậu. Không gian bố trí khoa học, đảm bảo đủ tiện nghi và thoáng mát cho cả gia đình.

Mẫu nhà ống 1 tầng nông thôn mặt tiền 6m trên nền đất rộng rãi (Nguồn: Internet)
>> Tham khảo thêm:
Mặt tiền 7m tạo nhiều cơ hội thiết kế sáng tạo hơn cho nhà ống 1 tầng. Công trình có thể mở rộng không gian sinh hoạt chung hoặc tăng số lượng phòng ngủ, đồng thời tạo điểm nhấn kiến trúc mặt tiền bằng các vật liệu trang trí, lam chắn nắng hay ban công nhỏ. Đây là lựa chọn tối ưu cho những gia đình muốn kết hợp giữa tiện nghi và tính thẩm mỹ cao.

Mẫu nhà ống 1 tầng mặt tiền 7m thiết kế sáng tạo (Nguồn: Internet)
>> 28+ mẫu nhà sàn đẹp, độc đáo, giữ nét văn hóa thời hiện đại
Để xây dựng nhà đẹp 1 tầng, gia chủ cần cân nhắc các lưu ý sau đây:
Việc xác định phong cách thiết kế là bước đầu tiên và quan trọng nhất khi xây dựng nhà 1 tầng. Phong cách cần phù hợp với nhu cầu sinh hoạt, sở thích cá nhân cũng như môi trường xung quanh. Có thể lựa chọn phong cách hiện đại, tối giản, nhà vườn, mái Thái, mái Nhật hay tân cổ điển, tùy thuộc vào diện tích đất và ngân sách dự kiến. Phong cách thiết kế rõ ràng giúp tiết kiệm chi phí và đảm bảo tính thẩm mỹ tổng thể.
Vật liệu xây dựng quyết định phần lớn đến độ bền và tuổi thọ của ngôi nhà. Ưu tiên sử dụng vật liệu có nguồn gốc rõ ràng, chất lượng cao và thân thiện với môi trường như gạch không nung, bê tông nhẹ, vật liệu tái chế hoặc vật liệu địa phương. Vật liệu bền vững giúp giảm thiểu chi phí bảo trì và nâng cao giá trị sử dụng lâu dài cho công trình.
Xây dựng nhà đẹp 1 tầng đòi hỏi quy trình thi công chặt chẽ và được lên kế hoạch bài bản. Từ khâu chuẩn bị mặt bằng, xin phép xây dựng, lựa chọn nhà thầu, đến kiểm soát tiến độ thi công từng hạng mục đều cần được giám sát kỹ lưỡng. Thi công theo đúng tiến độ và đảm bảo chất lượng sẽ tránh phát sinh chi phí không cần thiết và đảm bảo an toàn lao động.
Xem thêm cách thi công, lắp đặt chi tiết trần thạch cao cho nhà đẹp 1 tầng ở video dưới đây:
Nội thất trong nhà 1 tầng cần được bố trí sao cho vừa tiết kiệm diện tích vừa đảm bảo tiện nghi sử dụng. Lựa chọn đồ dùng có kích thước phù hợp, thiết kế thông minh để tận dụng tối đa không gian lưu trữ và tạo cảm giác rộng rãi. Màu sắc và ánh sáng cũng là yếu tố quan trọng giúp nâng cao thẩm mỹ và không gian sống trở nên thoáng đãng, dễ chịu hơn.

Cân nhắc nhiều yếu tố để xây dựng nhà 1 tầng đẹp (Nguồn: Internet)
>> 51+ mẫu nhà cấp 4 đẹp giá rẻ 100 triệu, đơn giản, tiện nghi
Chi phí xây dựng nhà 1 tầng phụ thuộc vào nhiều yếu tố như diện tích xây dựng, phong cách thiết kế, vật liệu sử dụng và vị trí thi công. Trung bình, chi phí hoàn thiện một mẫu nhà đẹp 1 tầng dao động từ 5 triệu đồng/m² trở lên đối với thiết kế cơ bản, và có thể tăng lên từ 10 triệu đồng/m² hoặc hơn nếu lựa chọn vật liệu cao cấp, thiết kế phức tạp hoặc các tiện ích bổ sung như sân vườn, gara, hồ bơi. Gia chủ nên lập dự toán chi tiết ngay từ đầu và lựa chọn nhà thầu uy tín để kiểm soát ngân sách hiệu quả và tránh phát sinh không mong muốn trong quá trình thi công.

Chi phí xây nhà đẹp 1 tầng tùy thuộc vào nhiều yếu tố (Nguồn: Internet)
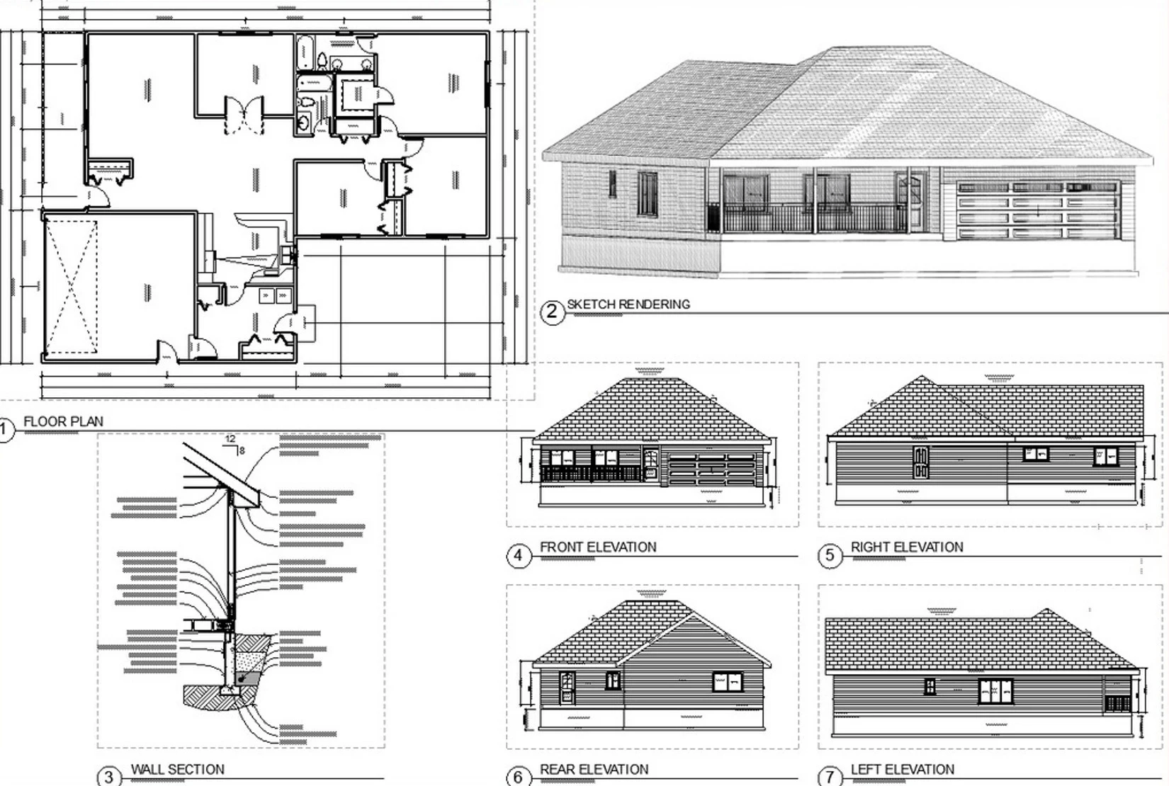
Bản vẽ mặt bằng mẫu nhà 1 tầng đẹp cần được bố trí khoa học, hợp lý để đảm bảo tối ưu công năng sử dụng và thuận tiện trong sinh hoạt. Thông thường, mặt bằng sẽ bao gồm phòng khách liên thông với phòng ăn và bếp, các phòng ngủ được bố trí tách biệt để đảm bảo sự riêng tư, cùng với phòng vệ sinh chung hoặc riêng cho từng phòng ngủ tùy theo diện tích. Các mẫu nhà hiện đại cũng thường tích hợp thêm gara, sân vườn hoặc không gian thư giãn ngoài trời nhằm nâng cao chất lượng cuộc sống. Việc thiết kế bản vẽ nhà cấp 4 cần dựa trên nhu cầu thực tế của gia đình và đặc điểm khu đất để đạt hiệu quả sử dụng tối đa.

Bản vẽ mặt bằng mẫu nhà 1 tầng đẹp cần được bố trí khoa học (Nguồn: Internet)
Diện tích lý tưởng để xây một mẫu nhà 1 tầng đẹp thường từ 70m² đến 150m², tùy theo nhu cầu sử dụng và số lượng thành viên trong gia đình. Với diện tích khoảng 70–90m², bạn có thể bố trí hợp lý 2 phòng ngủ, phòng khách và bếp ăn liền kề. Nếu có diện tích lớn hơn, từ 100–150m², không gian có thể mở rộng thêm 3 phòng ngủ, phòng làm việc, sân vườn hoặc gara. Ngoài ra, yếu tố quan trọng không chỉ là diện tích mà còn là cách bố trí mặt bằng khoa học, đảm bảo công năng và thẩm mỹ hài hòa với cảnh quan xung quanh.
Mẫu nhà đẹp 1 tầng mang đến giải pháp thiết kế tối ưu, kết hợp giữa tính thẩm mỹ, công năng tiện nghi và chi phí hợp lý, phù hợp với đa dạng nhu cầu của các gia đình Việt Nam hiện nay. Để hiện thực hóa ý tưởng thiết kế nhà hoàn hảo, bạn có thể tham khảo và lựa chọn dịch vụ thi công trần thạch cao, vật liệu xây dựng chất lượng tại Vĩnh Tường - đơn vị uy tín với nhiều năm kinh nghiệm trong ngành xây dựng và trang trí nội thất. Hãy liên hệ ngay để được tư vấn chi tiết và hỗ trợ xây dựng không gian sống mơ ước: