vinhtuong đăng vào lúc 19/09/2025 - 15:56
Xây nhà cấp 4 khoảng 150 triệu là giải pháp hiệu quả cho những hộ gia đình có chi phí đầu tư vừa phải, thay vì phải chi quá nhiều để xây dựng tổ ấm như các dạng nhà ống, nhà 2 tầng hiện nay. Bài viết dưới đây sẽ thông tin đầy đủ những lưu ý, bản vẽ và mẫu nhà cấp 4 trọn gói, nhằm giúp gia chủ có cái nhìn tổng quát về mẫu thiết kế này.
Mẫu nhà cấp 4 khoảng 150 triệu tiện nghi - nhỏ gọn (Nguồn: Internet)
Việc sở hữu riêng cho gia đình và bản thân một căn nhà kiên cố, tích hợp đủ công năng sử dụng, nhưng vẫn phải đẹp và thể hiện được phong cách riêng của gia chủ, với giá cả phải chăng có thể được xem là điều bất khả thi. Tuy nhiên, điều này hoàn toàn có thể thực hiện khi xây nhà cấp 4 với khoảng 150 triệu, theo những tiêu chí dưới đây, bao gồm:
Diện tích xây dựng nhà ở hợp lý: Ngân sách 150 triệu có thể xây một ngôi nhà cấp 4 với diện tích khoảng 50m2 đến 80m2, bao gồm những không gian cơ bản như phòng bếp, phòng sinh hoạt chung, 2-3 phòng ngủ và 1 nhà vệ sinh nhỏ, đủ để đáp ứng nhu cầu sử dụng của mỗi cá nhân.
Chọn vật liệu xây dựng phù hợp: Trên thị trường hiện nay cung cấp đa dạng các loại vật liệu xây dựng, phù hợp theo từng nhu cầu và điều kiện kinh tế của người mua. Nên khéo léo chọn những sản phẩm với giá phải chăng, nhưng vẫn đảm bảo chất lượng và phù hợp với thẩm mỹ của ngôi nhà.
Thiết kế tối giản - tiết kiệm: Hầu hết các mẫu nhà hiện đại có chi phí xây dựng cao vì đầu tư quá nhiều vào thiết kế. Với mức giá này, chủ nhà nên tiết chế trong việc làm đẹp không gian sống và đầu tư nội thất tối giản - hợp lý.

Thiết kế nhà cấp 4 theo 3 tiêu chí “đẹp - bền - rẻ” (Nguồn: Internet)
>> Tham khảo:
52+ Mẫu nhà cấp 4 gác lửng 200 triệu đẹp, tiện nghi, giá rẻ
[51+] mẫu nhà cấp 4 đẹp giá rẻ 100 triệu, tiện nghi, tiết kiệm
Để đảm bảo chi phí thi công không chênh lệch quá nhiều so với dự tính ban đầu, cần phải lưu ý những thông tin quan trọng khi xây nhà cấp 4 khoảng 150 triệu, cụ thể:
Đây là khoản đầu tư cần chi tiêu và tính toán nhiều nhất, phải dự trù nguyên vật liệu dựa trên diện tích nhà ở, càng sát với thực tế tỷ lệ đảm bảo kinh phí chính xác càng cao. có được mẫu nhà đẹp đầy đủ tiện nghi và phù hợp ngân sách 150 triệu thì chỉ nên xây nhà với diện tích tối đa khoảng 120m2.

Đảm bảo kinh phí xây nhà hợp lý - hiệu quả (Nguồn: Internet)
Để xây nhà cấp 4 khoảng 150 triệu trọn gói, việc cắt giảm và tối ưu chi phí là điều nên được ưu tiên thực hiện. Dưới đây là một số khoản phí có thể lược bỏ, nhưng vẫn đảm bảo được 3 tiêu chí “đẹp - bền - rẻ” của gia chủ:
Sử dụng cửa sắt hoặc nhôm kính thay vì cửa gỗ, nếu vẫn thích màu gỗ có thể chọn màu sắc giả gỗ để thay thế.
Tự thực hiện những công việc thi công, như lăn sơn, lắp đặt hệ thống điện hoặc vệ sinh tường thạch cao. Đây đều là những công việc có thể làm được hoặc nhờ người thân giúp đỡ với nhà ở quy mô nhỏ, mà không cần phải thuê thợ lành nghề.
Ưu tiên sử dụng nội thất đa năng tích hợp nhiều tính năng để giảm chi phí đầu tư nhỏ lẻ từng thiết bị, việc này còn giúp tối ưu không gian sống.
Đầu tư nội thất với giá thành hợp lý, nên sắm sửa những vật dụng cơ bản trước.
Chỉ nên xây một nhà vệ sinh để hạn chế đầu tư cho các vật liệu không cần thiết, hạn chế lãng phí công năng sử dụng.
Tận dụng và tái sử dụng các thiết bị và vật liệu cũ vẫn còn tốt và sử dụng được, giúp giảm chi phí mua mới.

Tự sơn tường để giảm chi phí xây dựng (Nguồn: Internet)
>> Có thể bạn quan tâm:
Làm gác xép - Cách làm đơn giản và tiết kiệm chi phí tối đa
Làm vách ngăn phòng máy lạnh giá rẻ, hàng chính hãng 2025
Có rất nhiều mẫu xây nhà cấp 4 khoảng 150 triệu, vừa đủ công năng - tiện nghi, đồng thời vẫn đảm bảo được tính thẩm mỹ. Dưới đây là 8 mẫu nhà cấp 4 được ưa chuộng nhất hiện nay.
Mẫu nhà cấp 4 nông thôn đẹp giá rẻ rất được ưa chuộng, phù hợp với túi tiền và nhu cầu của gia chủ. Không gian sân vườn tươi mát sẽ đem đến không khí trong lành cho cả ngồi nhà. Từ vật liệu trang trí đến gạch lát sân, gia chủ cần cân nhắc kỹ lưỡng để phù hợp ngân sách 150 triệu. Nếu muốn trải nghiệm không gian tiện nghi và đầy đủ hơn có thể cân nhắc xây dựng mẫu nhà cấp 4 nông thôn 250 triệu.

Nhà cấp 4 ở nông thôn 150 triệu với nội thất đơn giản (Nguồn: Internet)

Xây dựng nhà cấp 4 khoảng 150 triệu ở nông thôn đơn giản, nhẹ nhàng với tông màu trắng (Nguồn: Internet)
>> Xem thêm:
Top 22+ mẫu nhà 2 tầng nông thôn 500 triệu đẹp, tối ưu chi phí
91+ Mẫu nhà 2 tầng nông thôn 800 triệu đẹp nhất hiện nay
Sử dụng mái tôn giúp mang lại giá thành rẻ, phù hợp với những thiết kế hiện đại. Ngoài ra, sản phẩm này có nhiều màu sắc và dễ dàng tạo hình theo những thiết kế khác nhau, có thể ứng dụng đa dạng trong mọi mẫu nhà. Tuy nhiên, cần có giải pháp chống nóng mái tôn để đảm bảo không gian sống luôn thoải mái.

Thiết kế nhà cấp 4 mái tôn hiện đại với chi phí khoảng 150 triệu (Nguồn: Internet)

Xây nhà cấp 4 khoảng 150 triệu với mái tôn đơn giản, nhiều cửa sổ thoáng mát (Nguồn: Internet)
>> Xem thêm:
Nhà mái tôn có đóng trần thạch cao được không?
80+ Mẫu nhà cấp 4 chữ L đẹp hiện đại, dễ ứng dụng, tiện nghi nhất
Kiểu nhà mái Thái truyền thống luôn là ưu tiên hàng đầu trong các mẫu nhà cấp 4 ở Việt Nam. Sự gần gũi và ấm cúng được thể hiện qua thiết kế mái dốc và uốn cong mềm mại, đồng thời loại mái này giúp dẫn truyền nước tốt, tránh bị đọng nước ở trần nhà gây ẩm mốc. Nhà cấp 4 mái Thái là những thiết kế truyền thống và nội thất cổ điển, mang đến cảm giác sang trọng.

Mẫu nhà mái Thái cấp 4 truyền thống - nhỏ đẹp (Nguồn: Internet)

Thiết kế nhà cấp 4 mái thái khoảng 150 triệu độc đáo - gây ấn tượng (Nguồn: Internet)
>> Xem thêm:
30+ mẫu nhà mái Thái 2 tầng đẹp nhất, hiện đại, xu hướng 2025
25+ Mẫu nhà mái Thái 1 tầng đẹp, hiện đại, được ưa chuộng
40+ Mẫu nhà cấp 4 mái Thái 3 phòng ngủ đẹp, hiện đại, phổ biến
Nhà vườn cấp 4 là thiết kế xu hướng thịnh hành hiện nay. Với những ai có diện tích đất rộng, nên chia đều không gian để vừa có nơi “che nắng - che mưa”, vừa có nơi để thư giãn. Nhà vườn được chú trọng thiết kế từ cây cảnh đến vật liệu ốp lát, đặc biệt gạch ốp cổng phải hài hòa với màu sắc ngôi nhà và khu vườn. Do đó, mẫu nhà này cực kỳ phù hợp với những ai yêu thiên nhiên, thích trồng cây, và muốn có không gian sống yên bình.

Xây nhà cấp 4 khoảng 150 triệu với sân vườn rộng rãi (Nguồn: Internet)

Kết hợp sân vườn với kiểu nhà cấp 4 nhỏ đẹp (Nguồn: Internet)
>> Xem thêm:
Nhà sàn là gì? 25+ mẫu nhà sàn đẹp, ấn tượng, giữ nếp văn hoá thời hiện đại
Nhà ba gian là gì? Mẫu thiết kế nhà 3 gian truyền thống đơn giản
Muốn tận dụng và tạo thêm không gian sử dụng, việc xây nhà cấp 4 khoảng 150 triệu kết hợp với gác lửng là lựa chọn thông minh. Nhà cấp 4 gác lửng giúp mở thêm nhiều chức năng sử dụng cho ngôi nhà, tận dụng tối đa diện tích theo chiều dọc, mà không cần phải chi thêm quá nhiều tiền như các thiết kế nhà ống 2 tầng, nhà ống 3 tầng.

Nhà cấp 4 kết hợp gác lửng hiện đại (Nguồn: Internet)

Xây dựng gác lửng tạo thêm không gian sử dụng (Nguồn: Internet)
>> Xem thêm:
Nhà gác lửng: Khái niệm và lưu ý khi thiết kế tầng lửng đẹp
55+ Mẫu nhà gác lửng 3 phòng ngủ hiện đại, đẹp nhất 2025
Khác với nhà mái bằng thông thường, phần mái nhà mái lệch đổ dốc về một bên, tạo điểm nhấn ấn tượng và sự phá cách độc đáo cho ngôi nhà. Kiến trúc này giúp tránh tình trạng đọng nước, chống thấm hiệu quả cho trần nhà.

Nhà cấp 4 mái lệch khoảng 150 triệu độc đáo, ấn tượng với không gian xanh (Nguồn: Internet)

Nhà cấp 4 khoảng 150 triệu với thiết kế mái lệch hiện đại, tinh tế (Nguồn: Internet)
>> Xem thêm:
Xây nhà cấp khoảng 150 triệu với mái bằng rất được ưa chuộng trong những mẫu thiết kế hiện đại, tạo cảm giác chắc chắn và sang trọng. Tuy nhiên, nhà cấp 4 mái bằng có thể gây ứ nước nếu mưa kéo dài, bởi khả năng thoát nước kém, dẫn đến tường bị ẩm mốc.

Nhà cấp 4 với mái bằng hiện đại (Nguồn: Internet)

Thiết kế nhà cấp 4 với mái bằng (Nguồn: Internet)

Thiết kế nhà cấp 4 mái bằng khoảng 150 triệu sang trọng (Nguồn: Internet)
>> Xem thêm:
50+ Mẫu nhà cấp 4 đẹp hiện đại, đơn giản, xu hướng mới nhất 2025
91+ mẫu nhà phố đẹp, thiết kế hiện đại, đẳng cấp nhất 2025
Nhà cấp 4 mái Nhật cực kỳ phù hợp với những ai thích thiết kế tinh tế - tối giản. Đây được xem là mẫu ngói kết hợp hài hoà giữa phong cách hiện đại và kiến trúc Á Đông, tạo cảm giác gần gũi và ấm cúng. Đồng thời, mái Nhật cũng hỗ trợ thoát nước cực kỳ hiệu quả.

Nhà cấp 4 150 triệu kết hợp mái Nhật đầy sang trọng và tinh tế (Nguồn: Internet)

Sử dụng mái Nhật trong thiết kế nhà cấp 4 khoảng 150 triệu (Nguồn: Internet)
>> Xem thêm:
Top 20+ mẫu nhà mái Nhật 1 tầng đẹp, hiện đại, sang trọng 2025
99+ mẫu nhà mái Nhật 2 tầng đẹp hiện đại, thiết kế tân cổ điển
101+ mẫu nhà cấp 4 mái Nhật 3 phòng ngủ đẹp, hiện đại nhất 2025
Để xây nhà cấp 4 khoảng 150 triệu nên dự trù và lập bảng kinh phí chi tiết trước khi tiến hành xây dựng, dưới đây là kế hoạch cụ thể, hướng dẫn phân bố ngân sách chi tiêu sao cho hợp chí, giảm được tình trạng đầu tư quá mức. Lưu ý rằng, đây chỉ là bản ngân sách đề xuất, giá cả có thể chênh lệch so với thực tế, không thể chính xác 100%.
|
Hạng mục xây dựng |
Chi phí dự kiến (VNĐ) |
|
Xây phần thô và hoàn thiện |
80.000.000 |
|
Sơn tường, vách ngăn |
3.500.000 |
|
Vật liệu xây dựng |
12.000.000 |
|
Cửa |
7.000.000 |
|
Gạch lát nền toàn bộ nhà và ốp tường |
4.300.000 |
|
Thiết bị bếp, nhà tắm, nhà vệ sinh |
6.000.000 |
|
Hệ thống ống nước |
4.000.000 |
|
8.500.000 |
|
|
Đường điện và thiết bị điện |
7.000.000 |
|
Chi phí thi công lắp đặt điện nước |
18.000.000 |
|
Tổng chi phí |
150.300.000 |
>> Có thể bạn quan tâm:
Hướng dẫn thi công vách ngăn và báo giá đầy đủ các loại TP. HCM
Bảng báo giá làm trần thạch cao trọn gói 2025 Vĩnh Tường
Quý khách hàng có thể tham khảo hệ trần thạch cao Vĩnh Tường – Siêu Bền X có cấu tạo từ tấm thạch cao dày 9mm VĨNH TƯỜNG- Gyproc Siêu Bền X cùng với Khung VĨNH TƯỜNG TIKA tạo nên một hệ trần nhà cấp 4 bền đẹp, vững chắc.

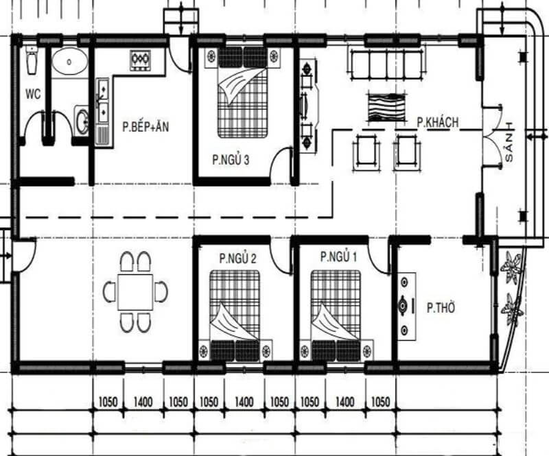
Bản vẽ xây nhà cấp 4 khoảng 150 triệu thường có thiết kế đơn giản, chủ yếu tập trung vào việc tối ưu không gian sử dụng và tiết kiệm chi phí, sau đó mới xem xét đến tính thẩm mỹ. Bản vẽ dưới đây chia ngôi nhà thành 7 không gian chính, bao gồm:
1 phòng khách lớn kết hợp với phòng thờ ngay trước nhà, với thiết kế này, gia chủ có thể tận dụng vách ngăn bàn thờ nhỏ để giảm chi phí và tiết kiệm không gian.
Phía sau 2 không gian này là 3 phòng ngủ nhỏ nằm liền kề và đối diện nhau.
Cuối cùng là bếp ăn và mẫu nhà vệ sinh nhỏ đẹp.

Bản vẽ chi tiết nhà cấp 4 với đầy đủ công năng (Nguồn: Internet)

Bản vẽ chi tiết nhà cấp 4 với 3 phòng ngủ (Nguồn: Internet)

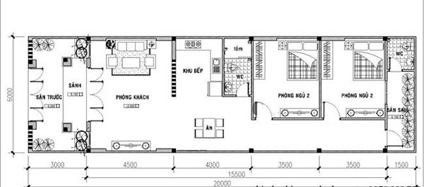
Bản vẽ chi tiết nhà cấp 4 với 2 phòng ngủ đơn giản (Nguồn: Internet)
>> Xem thêm: 17+ bản vẽ nhà cấp 4 3 phòng ngủ 100m2 tiện nghi, được ưa chuộng
Trước khi khởi công xây nhà cấp 4 khoảng 150 triệu nên chú ý một số thông tin quan trọng, giúp hạn chế được những rủi ro không đáng có, và giảm bớt những rắc rối không mong muốn.
Nên tính toán rõ diện tích xây dựng dựa trên diện tích đất được cấp phép và ngân sách hiện có. Việc này giúp gia chủ có thể định hình chính xác ngôi nhà sẽ có kích thước như thế nào. Tiếp theo, nên vẽ một bản thảo sơ bộ để xác định và phân chia rõ từng không gian và công năng sử dụng. Điều này cũng giúp thợ xây và gia chủ dễ trao đổi và bàn bạc hơn. Nếu không thể tự thiết k, có thể tham khảo bản vẽ một số mẫu nhà có sẵn.

Lên kế hoạch chi tiết - cụ thể cho bản vẽ nhà cấp 4 (Nguồn: Internet)
Chọn vật liệu xây dựng phù hợp giúp tăng tuổi thọ của ngôi nhà, đồng thời tiết kiệm được chi phí. Nên ưu tiên vật liệu dễ kiếm, sẵn có tại địa phương giúp giảm chi phí vận chuyển. Ngoài ra có thể tận dụng các vật liệu tái chế hoạch gạch không nung để tối ưu kinh phí tốt nhất. Đặc biệt, nên so sánh và khảo sát thị trường giữa các nhà cung cấp để lựa chọn được nơi phù hợp với tiêu chí đề ra.

Lựa chọn - tính toán vật liệu xây dựng phù hợp (Nguồn: Internet)
Tối ưu và tiết chế trong thiết kế có thể giúp giảm chi phí hiệu quả khi xây nhà cấp 4 khoảng 150 triệu. Bởi đây luôn là một trong những hạng mục đầu tư tốn kém nhất, đặc biệt với những gia đình thích phong cách cổ điển - ưu tiên sử dụng gỗ. Nên chọn kiểu dáng tối giản, ít cầu kỳ, tránh những hoa văn tỉ mỉ - đòi hỏi tay nghề cao, có thể giảm được chi phí lắp đặt và xây dựng.

Sử dụng thiết kế đơn giản giúp tối ưu không gian nhà ở (Nguồn: Internet)
Tự thực hiện những công việc đơn giản như sơn tường, dọn dẹp, lát gạch, trang trí ở một số khu vực, sẽ giúp tiết kiệm chi phí rất nhiều khi không phải trả tiền thuê thợ lành nghề. Tuy nhiên, cần lưu ý rằng, chỉ làm những việc trong khả năng và kiến thức để đảm bảo an toàn cho bản thân cũng như chất lượng của ngôi nhà.

Tự thực hiện những công việc đơn giản trong khả năng (Nguồn: Internet)
Lựa chọn đơn vị thi công uy tín là bước cực kỳ quan trọng, không chỉ hạn chế được tình trạng chậm tiến độ mà còn đảm bảo sự rõ ràng minh bạch trong bảng báo giá vật liệu và xây dựng. Điều này là yếu tố then chốt giúp xây nhà cấp 4 khoảng 150 triệu chính xác với dự tính đã đề ra.

Lựa chọn nhà thầu uy tín - nhiều kinh nghiệm (Nguồn: Internet)
>> Xem thêm:
54+ Mẫu nhà cấp 4 đẹp giá rẻ 300 triệu, đơn giản, tiết kiệm chi phí
75+ Mẫu nhà cấp 4 3 phòng ngủ 300 triệu đẹp, giá rẻ HOT nhất
Xây nhà cấp 4 khoảng 150 triệu luôn là lựa chọn hàng đầu cho những hộ gia đình có ít thành viên với mức đầu tư vừa phải. Bài viết trên đã thông tin chi tiết về những điểm cần lưu ý và gợi ý các mẫu nhà cấp 4 tiện lợi - mang tính thẩm mỹ cao, hy vọng quý khách hàng có thể lựa chọn được thiết kế ưng ý với bản thân, đồng thời phù hợp với nhu cầu của gia đình. Nếu có nhu cầu thi công thạch cao, bạn có thể liên hệ với Vĩnh Tường thông qua:
Địa chỉ trụ sở chính: Tầng 8 - Tòa nhà SOFIC Tower, 10 Đường Mai Chí Thọ, Quận 2, Thành phố Hồ Chí Minh.
Thời gian hoạt động:
Thứ 2 - Thứ 6: từ 8h30 – 17h30
Thứ 7: Từ 8h00 - 12h00
Liên hệ qua số điện thoại: 1800-1218 hoặc trang website: https://vinhtuong.com/lien-he
Tag: ban công, tầng trệt, phòng khách nhà ống 5m hiện đại, phòng ngủ tân cổ điển, phòng khách liền bếp nhà ống, trần thạch cao phòng thờ, trần thạch cao phòng bếp, trần nhà la phông, trần thả thạch cao, vật liệu tiêu âm, vách cách âm, vật liệu chống cháy, vách tiêu âm, chống nóng tường