vinhtuong đăng vào lúc 10/03/2026 - 16:49
Bạn đang tìm ý tưởng thiết kế nhà 1 trệt 1 lầu vừa tiện nghi vừa tiết kiệm chi phí? Đây là lựa chọn được nhiều gia đình yêu thích bởi sự cân đối giữa không gian sinh hoạt và tính thẩm mỹ. Trong bài viết này, hãy cùng Vĩnh Tường khám phá những mẫu thiết kế nổi bật, xu hướng mới nhất và các giải pháp giúp tối ưu công năng cho ngôi nhà của bạn.
Nhà 1 trệt 1 lầu là kiểu kiến trúc gồm một tầng trệt và một tầng lầu, được nhiều gia đình lựa chọn bởi sự cân đối giữa chi phí, công năng và tính thẩm mỹ. Đây là dạng nhà ở quen thuộc cả ở thành phố lẫn nông thôn, dễ dàng thích ứng với nhiều diện tích đất và nhu cầu sử dụng khác nhau, tương tư như thiết kế mẫu nhà 2 tầng, nhà ống 2 tầng, nhà mái Nhật 2 tầng và nhà mái Thái 2 tầng.

Nhà 1 trệt 1 lầu được nhiều gia đình lựa chọn nhờ thiết kế gọn gàng, chi phí hợp lý và vẫn đảm bảo đầy đủ công năng sinh hoạt (Nguồn: Internet)
Điểm đặc trưng của nhà 1 trệt 1 lầu:
Tầng trệt: Được bố trí chủ yếu cho các không gian sinh hoạt chung như phòng khách, phòng bếp, phòng ăn và nhà vệ sinh. Thiết kế chú trọng sự thông thoáng, tiện lợi trong di chuyển và tạo sự kết nối giữa các thành viên.
Tầng lầu: Thường dành cho phòng ngủ, phòng thờ, gác lửng làm việc hoặc những khu vực riêng tư khác. Nhiều mẫu còn kết hợp ban công để tận dụng ánh sáng, gió trời và tăng vẻ đẹp cho mặt tiền ngôi nhà.
>> Tham khảo thêm:
35+ mẫu nhà 2 tầng đẹp ở nông thôn, thiết kế mái thái hiện đại
30+ mẫu nhà cấp 4 gác lửng đẹp, sang trọng, tiết kiệm chi phí 2025
Nhà 1 trệt 1 lầu ngày càng được nhiều gia đình trẻ và trung lưu ưa chuộng bởi những lợi ích thiết thực mà nó mang lại:
Chi phí hợp lý: Thiết kế gọn gàng, tối ưu diện tích giúp giảm bớt khoản đầu tư ban đầu, phù hợp với ngân sách của đa số gia đình.
Đa dạng phong cách: Gia chủ có thể lựa chọn thiết kế hiện đại, tối giản hay ấm cúng truyền thống để thể hiện cá tính riêng.
Thi công nhanh, dễ bảo trì: Kết cấu đơn giản giúp quá trình xây dựng diễn ra thuận lợi, việc sửa chữa hay cải tạo sau này cũng không phức tạp.
Thích ứng nhiều địa hình: Dù xây ở đồng bằng hay khu đất dốc, mẫu nhà này vẫn triển khai thuận tiện.
Không gian thông minh: Dù diện tích không quá lớn, nhưng vẫn đầy đủ công năng như phòng khách, bếp, phòng ngủ, khu sinh hoạt chung.
Đáp ứng nhu cầu gia đình nhỏ: Rất phù hợp cho 3–5 thành viên, vừa có sự riêng tư vừa giữ được sự gắn kết.
Dễ mở rộng: Khi cần, gia chủ có thể nâng thêm tầng hoặc cải tạo nội thất mà không làm ảnh hưởng nhiều đến kết cấu chung.
>> Có thể bạn quan tâm:
Có nên làm trần thạch cao không? Ưu, nhược điểm & lời khuyên
Tường nhà lắp ghép là gì? Đặc điểm, vật liệu, hướng dẫn thi công
Với chi phí xây dựng dưới 1 tỷ, gia chủ vẫn có thể sở hữu một ngôi nhà khang trang, đầy đủ công năng. Thiết kế của mẫu nhà 1 trệt 1 lầu dưới 1 tỷ thường ưu tiên sự gọn gàng, bố trí hợp lý để tiết kiệm chi phí mà vẫn đảm bảo không gian sống tiện nghi.

Mẫu nhà 1 trệt 1 lầu dưới 1 tỷ là lựa chọn tối ưu cho các gia đình trẻ muốn sở hữu không gian sống tiện nghi với chi phí hợp lý (Nguồn: Internet)

Nhiều người ưa chuộng Mẫu nhà 1 trệt 1 lầu dưới 1 tỷ bởi sự tiết kiệm chi phí nhưng vẫn mang lại vẻ đẹp hiện đại (Nguồn: Internet)
>> Xem thêm:
Mẫu nhà 1 trệt 1 lầu đẹp 5x20 vừa vặn cho những gia đình ở phố. Ngôi nhà thường gây ấn tượng ngay từ mặt tiền với phong cách tối giản, bên trong lại rộng rãi, dễ dàng sắp xếp 3 phòng ngủ, bếp và phòng khách đầy đủ tiện nghi.

Mẫu nhà 1 trệt 1 lầu đẹp 5x20 mang đến không gian sống hiện đại, thoáng đãng và đầy đủ công năng cho gia đình (Nguồn: Internet)

Sở hữu Mẫu nhà 1 trệt 1 lầu đẹp 5x20 giúp gia chủ tận dụng tối đa diện tích đất, tạo nên tổ ấm hiện đại và tiện lợi (Nguồn: Internet)
>> Xem thêm:
Mẫu nhà 1 trệt 1 lầu 4x20 nhỏ gọn nhưng không hề tù túng. Thiết kế 4x20m thường kết hợp giếng trời hoặc ban công để đón gió, ánh sáng tự nhiên, giúp không gian luôn sáng thoáng và mát mẻ.

Mẫu nhà 1 trệt 1 lầu đẹp 4x20 thường được kết hợp giếng trời và ban công để đón gió, ánh sáng tự nhiên (Nguồn: Internet)

Với thiết kế khoa học, mẫu nhà 1 trệt 1 lầu đẹp 4x20 tối ưu diện tích sử dụng, tạo cảm giác rộng rãi cho gia đình nhỏ (Nguồn: Internet)
>> Xem thêm:
Vừa đủ rộng để bố trí 3 phòng ngủ, vừa tiết kiệm diện tích. Mẫu nhà 1 trệt 1 lầu 6x15 mang đến sự tiện lợi, phù hợp cho gia đình trẻ muốn một không gian gọn gàng nhưng vẫn thoải mái.

Với diện tích vừa phải, mẫu nhà 1 trệt 1 lầu 6x15 dễ dàng bố trí 3 đến 4 phòng ngủ cùng đầy đủ tiện nghi (Nguồn: Internet)

Sở hữu mẫu nhà 1 trệt 1 lầu 6x15 giúp gia đình có một tổ ấm hiện đại, tiện nghi mà vẫn gọn gàng (Nguồn: Internet)
>> Xem thêm:
40+ Mẫu nhà cấp 4 3 phòng ngủ đẹp, tiết kiệm chi phí nhất
55+ Mẫu nhà gác lửng 3 phòng ngủ hiện đại, đẹp nhất
Mẫu nhà 1 trệt 1 lầu 8x15 thường mang đến cảm giác thoáng rộng và sang trọng. Không chỉ đáp ứng đầy đủ công năng, mẫu này còn cho phép kết hợp thêm gara, sân vườn hoặc phòng sinh hoạt chung lớn, tạo ra không gian sống tiện nghi và gần gũi với thiên nhiên.

Với diện tích rộng rãi, mẫu nhà 1 trệt 1 lầu 8x15 mang đến không gian sinh hoạt thoải mái cho cả gia đình (Nguồn: Internet)

Thiết kế hiện đại của mẫu nhà 1 trệt 1 lầu 8x15 giúp tối ưu ánh sáng tự nhiên và tạo cảm giác thoáng mát (Nguồn: Internet)
>> Xem thêm:
Mẫu thiết kế nhà 1 trệt 1 lầu 3 phòng ngủ đặc biệt phù hợp với gia đình có 3-4 thành viên. Phòng ngủ được bố trí khoa học ở tầng lầu nhằm mang lại sự riêng tư, trong khi tầng trệt dành cho không gian sinh hoạt chung, nơi cả gia đình cùng quây quần sau một ngày làm việc bận rộn.

Với thiết kế khoa học, mẫu nhà 1 trệt 1 lầu 3 phòng ngủ đáp ứng tốt nhu cầu sinh hoạt của gia đình 3–4 thành viên (Nguồn: Internet)

Nhiều người ưa chuộng mẫu nhà 1 trệt 1 lầu 3 phòng ngủ vì vừa đảm bảo sự riêng tư, vừa có không gian sinh hoạt chung ấm cúng (Nguồn: Internet)
>> Xem thêm:
17+ bản vẽ nhà cấp 4 3 phòng ngủ 100m2 tiện nghi, được ưa chuộng
75+ Mẫu nhà cấp 4 3 phòng ngủ 300 triệu đẹp, giá rẻ HOT nhất
Với những gia đình đông người, mẫu nhà 1 trệt 1 lầu 4 phòng ngủ sẽ là lựa chọn lý tưởng. Không gian được mở rộng hợp lý, vừa đảm bảo sự tiện nghi, vừa giữ được sự ấm áp, để mỗi thành viên đều có không gian riêng nhưng vẫn kết nối cùng nhau trong một mái nhà chung.

Mẫu nhà 1 trệt 1 lầu 4 phòng ngủ là lựa chọn lý tưởng cho gia đình nhiều thành viên với không gian rộng rãi, thoải mái (Nguồn: Internet)

Nhiều gia chủ yêu thích mẫu nhà 1 trệt 1 lầu 4 phòng ngủ bởi tính linh hoạt trong thiết kế và công năng đầy đủ (Nguồn: Internet)
>> Xem thêm:
Chỉ với khoảng 400 triệu đồng, bạn vẫn có thể xây dựng một ngôi nhà 1 trệt 1 lầu nhỏ nhắn nhưng đầy đủ tiện nghi. Đây là kiểu thiết kế thường thấy ở nông thôn, giản dị nhưng vững chãi, mang đến sự bình yên cho gia đình.

Mẫu nhà 1 trệt 1 lầu 400 triệu phù hợp cho những gia đình có ngân sách hạn chế nhưng vẫn muốn sở hữu tổ ấm khang trang (Nguồn: Internet)

Với thiết kế đơn giản, mẫu nhà 1 trệt 1 lầu 400 triệu vẫn đáp ứng đầy đủ công năng sinh hoạt cơ bản cho gia đình nhỏ (Nguồn: Internet)
>> Xem thêm:
Mái Thái luôn được ưa chuộng bởi vẻ đẹp thanh thoát, khả năng chống nóng hiệu quả và tính thẩm mỹ cao. Kết hợp cùng kiến trúc hiện đại, mẫu nhà 1 trệt 1 lầu mái Thái mang đến sự sang trọng và cuốn hút ngay từ cái nhìn đầu tiên.

Mẫu nhà 1 trệt 1 lầu mái Thái nổi bật với thiết kế thanh thoát, sang trọng và hợp khí hậu Việt Nam (Nguồn: Internet)

Chi phí xây dựng hợp lý khiến mẫu nhà 1 trệt 1 lầu mái Thái trở thành lựa chọn phổ biến ở cả thành thị và nông thôn (Nguồn: Internet)
>> Tìm hiểu thêm về nồm ẩm miền Bắc:
Mang hơi thở tinh tế và nhẹ nhàng, nhà mái Nhật với độ dốc thoải nhẹ tạo cảm giác thanh thoát cho tổng thể ngôi nhà. Mẫu nhà 1 trệt 1 lầu mái Nhật là lựa chọn hoàn hảo cho những ai yêu thích sự tối giản nhưng vẫn gần gũi với thiên nhiên.
>> Xem thêm: Top 20+ mẫu nhà mái Nhật 1 tầng đẹp, hiện đại, sang trọng

Với độ dốc nhẹ đặc trưng, mẫu nhà 1 trệt 1 lầu mái Nhật tạo cảm giác thanh thoát và thoáng mát cho ngôi nhà (Nguồn: Internet)

Sở hữu mẫu nhà 1 trệt 1 lầu mái Nhật giúp không gian sống trở nên sang trọng mà vẫn giữ được sự ấm cúng (Nguồn: Internet)
Tiết kiệm chi phí nhưng vẫn bền bỉ, mái tôn có chi phí rẻ và thi công nhanh nhưng cần có tối ưu khả năng chống nóng mái tôn để không gian nhà ở không quá nực nội, nhất là vào mùa hè. Đây là giải pháp dành cho những gia đình muốn xây dựng nhanh gọn mà vẫn đảm bảo chất lượng cuộc sống.

Mẫu nhà 1 trệt 1 lầu mái tôn là lựa chọn tiết kiệm chi phí nhưng vẫn đảm bảo công năng cho gia đình (Nguồn: Internet)
>> Xem thêm:
Nhà mái ngói truyền thống luôn gợi nhắc đến sự ấm áp và bền vững. Với ưu điểm mát về mùa hè, ấm về mùa đông, mẫu nhà 1 trệt 1 lầu mái ngói phù hợp với những gia chủ yêu thích vẻ đẹp cổ điển pha lẫn sang trọng.

Mẫu nhà 1 trệt 1 lầu mái ngói mang vẻ đẹp truyền thống, bền vững và gần gũi với phong cách sống của người Việt (Nguồn: Internet)

Nhờ kiến trúc hài hòa, mẫu nhà 1 trệt 1 lầu mái ngói vừa giữ được nét cổ điển vừa đáp ứng nhu cầu sống hiện đại (Nguồn: Internet)
>> Xem thêm:
Thiết kế thêm một tum nhỏ không chỉ tăng thêm diện tích sử dụng mà còn tạo điểm nhấn độc đáo. Tum thường được dùng làm phòng thờ, kho chứa hoặc sân phơi tiện lợi.

Mẫu nhà 1 trệt 1 lầu 1 tum được nhiều gia chủ lựa chọn nhờ khả năng mở rộng thêm không gian sử dụng mà vẫn tiết kiệm chi phí (Nguồn: Internet)

Nhờ thiết kế tối ưu, mẫu nhà 1 trệt 1 lầu 1 tum mang đến tổ ấm tiện nghi, hiện đại và bền vững theo thời gian (Nguồn: Internet)
>> Xem thêm:
Nhà gác lửng là giải pháp thông minh cho gia đình muốn mở rộng không gian sống mà không cần đầu tư quá nhiều chi phí. Đây cũng là yếu tố tạo điểm nhấn kiến trúc riêng biệt cho mẫu nhà 1 trệt 1 lầu 1 lửng.

Mẫu nhà 1 trệt 1 lầu 1 lửng là giải pháp thông minh giúp mở rộng diện tích sử dụng mà không tốn quá nhiều chi phí (Nguồn: Internet)

Sở hữu mẫu nhà 1 trệt 1 lầu 1 lửng giúp ngôi nhà nhỏ trở nên tiện nghi và hiện đại hơn (Nguồn: Internet)
>> Xem thêm:
Đường nét tinh giản, vật liệu xây dựng hiện đại như kính, gỗ và bê tông được kết hợp khéo léo để tạo nên không gian sống sang trọng. Mẫu nhà 1 trệt 1 lầu hiện đại là lựa chọn được các gia đình trẻ ưa chuộng trong năm 2025.

Với đường nét tối giản, mẫu nhà 1 trệt 1 lầu hiện đại mang lại không gian sống trẻ trung và năng động (Nguồn: Internet)
>> Xem thêm:
Những mẫu nhà 1 trệt 1 lầu đơn giản thường ưu tiên sự gọn gàng và tiện nghi, phù hợp với nhu cầu sinh hoạt cơ bản của gia đình. Dù không cầu kỳ trong thiết kế, nhưng chính sự tinh tế và hài hòa lại mang đến cảm giác thoải mái, ấm áp và dễ chịu mỗi khi trở về.

Mẫu nhà 1 trệt 1 lầu đơn giản được ưa chuộng nhờ thiết kế gọn gàng, dễ thi công và tiết kiệm chi phí (Nguồn: Internet)
>> Xem thêm:
Khi thiết kế nhà 1 trệt 1 lầu, gia chủ nên lưu ý một số điểm quan trọng dưới đây:
Đất diện tích nhỏ: Ưu tiên thiết kế tối giản, tăng sự thoáng đãng bằng giếng trời và cửa kính.
Đất diện tích lớn: Có thể kết hợp thêm sân vườn, gara hoặc ban công rộng rãi.
Đất mặt tiền rộng: Thích hợp cho những mẫu nhà phố hiện đại, sang trọng.
Đất hình chữ nhật hoặc không vuông vức: Cần bố trí linh hoạt để tận dụng tối đa không gian.
Số lượng phòng ngủ, phòng khách, phòng bếp cần được bố trí phù hợp với quy mô gia đình.
Thiết kế không gian khoa học, tận dụng diện tích hiệu quả để ngôi nhà luôn thoáng mát.
Đảm bảo đầy đủ tiện nghi và công năng, đáp ứng nhu cầu sinh hoạt hiện đại.
>> Tham khảo thêm:
Phong cách hiện đại: Thiết kế tối giản, tinh tế, sử dụng vật liệu mới, bắt kịp xu hướng.
Phong cách tân cổ điển: Sang trọng, hài hòa với phào chỉ và họa tiết nhẹ nhàng.
Phong cách nhà vườn: Không gian mở, gần gũi thiên nhiên, bố trí nhiều cây xanh.
Phong cách nhà ống: Thích hợp cho nhà phố diện tích nhỏ, có giếng trời để tăng sự thông thoáng.
>> Tham khảo:
Ngân sách quyết định đến việc lựa chọn vật liệu, phong cách thiết kế cũng như mức độ hoàn thiện của ngôi nhà.
Cần dự trù chi phí xây dựng, nội thất và những khoản phát sinh để chủ động hơn.
Hãy chọn nhà thầu uy tín nhằm tối ưu ngân sách và hạn chế rủi ro chi phí ngoài kế hoạch.
Tận dụng giếng trời và cửa sổ rộng để đưa ánh sáng tự nhiên vào nhà.
Chọn hệ thống chiếu sáng phù hợp với từng không gian chức năng.
Thiết kế mở và sử dụng vách ngăn thạch cao để phân chia khu vực, giúp tăng độ thông thoáng
>> Tham khảo:
45+ Mẫu vách ngăn phòng khách đẹp hiện đại, tối ưu không gian
1000 mẫu vách ngăn cầu thang đẹp, hiện đại cho nhà ở
Vách ngăn phòng thờ, vách ngăn bàn thờ CNC đẹp
Top 100+ mẫu vách ngăn phòng ngủ giá rẻ cố định & di động
Quý khách hàng có thể tham khảo mẫu Tường thạch cao GypWall DW4. Với cấu trúc sử dụng khung xương VT V-Wall C75 và tấm thạch cao Gyproc tiêu chuẩn, vách tường có khả năng cách âm vượt trội lên đến 50dB.

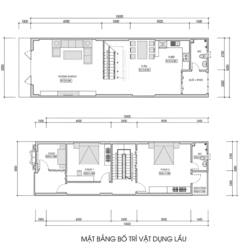
Mẫu nhà 1 trệt 1 lầu thường được thiết kế với cầu thang nối liền hai tầng, giúp việc phân chia không gian trở nên thuận tiện và hợp lý. Các khu vực chức năng như phòng khách, bếp, phòng ngủ, nhà vệ sinh nhỏ đẹp, khu giặt phơi hay ban công đều được bố trí khoa học, gọn gàng. Nhờ cách sắp xếp đơn giản, tránh rườm rà, mẫu nhà 2 tầng này vừa tối ưu diện tích, vừa mang lại sự thoải mái cho gia đình trong sinh hoạt hằng ngày.

Bản vẽ mẫu nhà 1 trệt 1 lầu 5x20 đep, đầy đủ tiện nghi (Nguồn: Internet)

Tham khảo bản vẽ thiết kế nhà 1 trệt 1 lầu 5x20m (Nguồn: Internet)
>> Xem thêm:
Mẫu nhà 2 tầng và 50+ bản thiết kế nhà 2 tầng đẹp nhất 2025
17+ bản vẽ nhà cấp 4 3 phòng ngủ 100m2 tiện nghi, được ưa chuộng
Việc tính diện tích xây dựng nhà 1 trệt 1 lầu khá đơn giản. Dưới đây là quy định chung giúp bạn ước lượng chi phí và có sự chuẩn bị tốt nhất trước khi thi công:
Tầng hầm: 150% – 250% diện tích (tùy độ sâu: 1–1,3m = 150%; 1,3–1,7m = 170%; 1,7–2m = 200%; trên 2m = 250%).
Móng cọc: 45% – 65% diện tích tầng trệt.
Móng băng: 60% – 65% diện tích tầng trệt.
Móng bè: 70% – 90% diện tích tầng trệt.
Tầng trệt: 100% diện tích.
Tầng 1: 100% diện tích tầng trệt + diện tích ban công.
Sân thượng không mái: 50% diện tích tầng trệt.
Ban công: Chiều rộng × chiều sâu ban công.
Mái bê tông: 35% diện tích tầng trệt.
Mái tôn: 15% diện tích tầng trệt.
Mái ngói: 100% diện tích tầng trệt.
Tổng diện tích xây dựng của ngôi nhà = cộng tất cả các hạng mục trên.
>> Tìm hiểu thêm:
Chi phí xây dựng nhà 1 trệt 1 lầu sẽ phụ thuộc vào nhiều yếu tố như diện tích, phong cách thiết kế, vật liệu sử dụng và mức độ hoàn thiện mong muốn. Dưới đây là bảng báo giá tham khảo theo từng hạng mục để gia chủ dễ hình dung:
|
Hạng mục |
Đơn giá tham khảo (VNĐ/m²) |
Ghi chú |
|
Phần thô + nhân công |
3.000.000 – 3.500.000 |
Bao gồm móng, khung, tường, mái thô |
|
Xây trọn gói cơ bản |
4.500.000 – 5.500.000 |
Hoàn thiện ở mức tiêu chuẩn, vật liệu trung bình |
|
Xây trọn gói cao cấp |
6.000.000 – 7.500.000 |
Sử dụng vật liệu cao cấp, thiết kế chi tiết |
|
Thi công móng cọc |
45% – 65% diện tích tầng trệt |
Tùy loại đất và kết cấu móng |
|
Thi công mái tôn |
150.000 – 250.000 /m² |
Giá tùy loại tôn chống nóng, cách nhiệt |
|
Thi công mái ngói |
600.000 – 900.000 /m² |
Bao gồm khung kèo + ngói |
|
Nhân công hoàn thiện |
1.200.000 – 1.500.000 /m² |
Sơn, lát gạch, lắp thiết bị cơ bản |
|
Thiết kế kiến trúc |
180.000 – 250.000 /m² |
Hồ sơ thiết kế 2D/3D chi tiết |
|
Nội thất cơ bản |
2.500.000 – 4.000.000 /m² |
Tủ bếp, cửa, trần, thiết bị vệ sinh |
|
Thiết kế trần nhà |
230.000 - 450.000/m² |
Tấm thạch cao, khung xương, ty ren, vít,... |
Lưu ý: Mức giá trên chỉ mang tính chất tham khảo, có thể thay đổi tùy theo thời điểm, khu vực thi công và nhu cầu vật liệu của gia chủ.
>> Xem thêm:
Hướng dẫn thi công các loại trần thạch cao Vĩnh Tường
Tường thạch cao là gì? Báo giá thi công vách thạch cao
Trước khi tiến hành thiết kế, gia chủ nên khảo sát kỹ địa hình và chất lượng nền đất để lựa chọn phương án xây dựng phù hợp, vừa an toàn vừa tiết kiệm chi phí. Bên cạnh đó, việc xem xét đặc điểm khí hậu cũng rất quan trọng nhằm xác định hướng nhà, vị trí cửa sổ và ban công hợp lý để hạn chế ảnh hưởng của nắng nóng và độ ẩm.
Khi xây dựng nhà 1 trệt 1 lầu, việc chọn vật liệu là yếu tố then chốt. Vật liệu không chỉ cần bền chắc, an toàn mà còn phải hài hòa với phong cách thiết kế để tạo nên không gian sống tinh tế. Ngày nay, những lựa chọn bền vững và thân thiện với môi trường cũng được nhiều gia chủ ưu tiên nhằm vừa đảm bảo thẩm mỹ vừa góp phần bảo vệ môi trường.

Lựa chọn vật liệu xây dựng chất lượng giúp công trình bền vững, an toàn và đảm bảo tính thẩm mỹ lâu dài (Nguồn: Internet)
>> Có thể bạn quan tâm:
Phong cách thiết kế chính là “linh hồn” giúp ngôi nhà trở nên khác biệt. Nếu bạn yêu thích sự trẻ trung, hãy chọn phong cách hiện đại với đường nét tối giản, tập trung vào tiện ích sử dụng. Ngược lại, những ai say mê vẻ đẹp truyền thống có thể tìm đến kiến trúc cổ điển, tân cổ điển với chi tiết tinh xảo và sang trọng. Bên cạnh đó, phong cách nhà vườn, gần gũi thiên nhiên cũng là lựa chọn lý tưởng cho gia chủ chuộng sự giản dị và bình yên.
Để sử dụng diện tích hiệu quả, các không gian chức năng cần được sắp xếp hợp lý và khoa học. Tầng trệt thường là nơi dành cho sinh hoạt chung như phòng khách, bếp và khu vực ăn uống, tạo sự gắn kết giữa các thành viên. Trong khi đó, tầng lầu thích hợp để bố trí phòng ngủ, phòng làm việc hoặc phòng thờ, đảm bảo sự riêng tư và yên tĩnh.

Bố trí không gian hợp lý, tiện nghi sẽ giúp ngôi nhà tối ưu diện tích và mang lại sự thoải mái trong sinh hoạt (Nguồn: Internet)
>> Xem thêm:
Quy trình xây dựng nhà 1 trệt 1 lầu thường được các đơn vị thi công chuyên nghiệp triển khai theo các bước chuẩn sau:
Tiếp nhận thông tin: Lắng nghe nhu cầu, mong muốn và ngân sách từ gia chủ.
Tư vấn thiết kế: Đưa ra ý tưởng phù hợp về công năng, thẩm mỹ và khả năng tài chính.
Lập dự toán: Tính toán diện tích xây dựng, công năng sử dụng và chi phí chi tiết.
Thiết kế kiến trúc: Hoàn thiện mặt bằng, phối cảnh tổng thể và không gian chức năng.
Thiết kế kết cấu kỹ thuật: Bao gồm móng, dầm, cột, sàn, cầu thang, mái, bể phốt, bể nước,…
Hệ thống điện – nước: Bố trí ổ cắm, công tắc, đèn chiếu sáng, đường dây và các thiết bị cần thiết.
Cấp – thoát nước: Lên phương án cho bếp, vệ sinh, phòng giặt, máy bơm,…
Hoàn thiện nội – ngoại thất: Lựa chọn màu sơn, vật liệu, cửa, đèn và các chi tiết trang trí.
>> Có thể bạn quan tâm:
Trần thạch cao cấu tạo ra sao? Trần giật cấp, khung chìm, nổi, thả
Tường thạch cao có khoan được không? Hướng dẫn nhanh chóng
Trên đây là những thông tin chi tiết cùng nhiều mẫu thiết kế nhà 1 trệt 1 lầu đang được ưa chuộng nhất hiện nay. Với sự đa dạng về phong cách, công năng và chi phí, kiểu nhà này chắc chắn sẽ là lựa chọn phù hợp cho nhiều gia đình Việt. Nếu bạn đang tìm giải pháp tối ưu để xây dựng tổ ấm của mình, hãy đồng hành cùng Vĩnh Tường – đơn vị tiên phong mang đến những sản phẩm và giải pháp trần, tường, vách ngăn chất lượng cao, góp phần hoàn thiện ngôi nhà bền đẹp, tiện nghi. Mọi thắc mắc khách hàng có thể liên hệ:
Thứ 2 - Thứ 6: từ 8h30 – 17h30
Thứ 7: Từ 8h00 - 12h00
Tag: trần thạch cao phòng khách, mẫu trần thạch cao phòng ngủ, trần thạch cao phòng ngủ trẻ em, trần thạch cao phòng ngủ nhỏ 10m2, trần thạch cao phòng thờ, trần nhà vệ sinh, trần thạch cao phòng bếp, mẫu trần thạch cao phòng khách 25m2, trần thạch cao văn phòng, trần thạch cao tân cổ điển, mẫu trần thạch cao phòng khách có quạt trần, trần thạch cao hình ngôi sao, mẫu trần thạch cao hình elip, mặt tiền nhà gác lửng 5m, vách tivi phòng khách, phòng khách nhà ống 5m hiện đại, phòng khách liền bếp nhà ống, vách tường lắp ghép, vách ngăn phòng khách chung cư, trang trí phòng khách, phòng ngủ màu hồng, phòng ngủ tân cổ điển