vinhtuong đăng vào lúc 18/12/2025 - 17:12

Phòng ngủ Master là gì? Mẫu thiết kế phòng ngủ Master đẹp, hiện đại, sang trọng nhất hiện nay (Nguồn: Internet)
Phòng ngủ master là phòng ngủ chính trong ngôi nhà. Vì vậy, việc chú trọng đến cách thiết kế và bố trí cho không gian này đang trở thành mối quan tâm hàng đầu của các gia chủ. Trong bài viết dưới đây, Vĩnh Tường sẽ chia sẻ đến bạn những thông tin chi tiết và các mẫu phòng master hot nhất hiện nay. Từ đó, giúp bạn tạo ra một căn phòng ngủ đẹp mắt, đáp ứng được các nhu cầu cá nhân. Hãy cùng theo dõi nhé!
>> Xem thêm:
Phòng ngủ master (hay phòng ngủ chính), được thiết kế dành cho gia chủ nghỉ ngơi và sinh hoạt. Đây là không gian có tính riêng tư cao và thường rộng hơn so với các phòng ngủ khác. Mẫu phòng này thường được sử dụng cho vợ chồng thay vì làm phòng ngủ cho bé gái, bé trai. Ngoài ra, bên cạnh việc đáp ứng nhu cầu nghỉ ngơi, phòng master thường được bổ sung thêm các khu vực khác như góc làm việc, phòng tắm hoặc phòng thay đồ, tạo điều kiện thuận lợi cho cuộc sống hàng ngày của gia chủ.

Phòng ngủ master của mẫu nhà cấp 4 đẹp với thiết kế có ban công ngắm cảnh cùng hệ trần thạch cao đơn giản, sang trọng (Nguồn: Internet)
Những đặc điểm nổi bật của phòng ngủ master:
Cấu trúc điển hình của một phòng ngủ master:
>> Xem thêm:

Được ưu ái dành diện tích lớn nhất, phòng ngủ master khác biệt hoàn toàn so với những phòng ngủ nhỏ khác trong nhà (Nguồn: Internet)
>> 200+ Mẫu trang trí phòng khách đẹp, đơn giản, sang trọng nhất
Phòng ngủ master không có quy định kích thước cố định mà phụ thuộc vào tổng diện tích của ngôi nhà hoặc căn hộ. Trong trường hợp căn hộ có diện tích nhỏ, phòng thường có khoảng diện tích từ 10m2 đến 15m2. Trong khi đó, trong các biệt thự lớn, phòng ngủ chính thường có diện tích rộng hơn, khoảng từ 30m2 đến 40m2.

Mẫu phòng ngủ cho bé trai có diện tích từ 10 - 30m2 làm phòng ngủ Master ấn tượng (Nguồn: Internet)
>> Top 40 mẫu phòng khách nhà ống 5m hiện đại, đẹp nhất
Lịch sử hình thành và phát triển phòng ngủ Master qua từng giai đoạn:
Trước thế kỷ 19, khái niệm phòng ngủ master chưa được hình thành và các ngôi nhà ở Mỹ thường chỉ có duy nhất một phòng để sinh hoạt chung cho mọi hoạt động. Ngay cả những gia đình giàu có cũng không có phòng ngủ chính ở trong nhà.
>> 55+ Mẫu trang trí nội thất phòng khách nhà ống đẹp, hiện đại nhất

Nhà ở những năm 1700 không phân chia phòng ngủ trẻ em hay người lớn, chỉ có duy nhất một phòng để hoạt động chung (Nguồn: Internet)
Khi xã hội dần phát triển, con người trở nên giàu có hơn, nhu cầu ăn uống được đáp ứng, dẫn đến nhu cầu về nhà ở cũng nâng cao hơn. Do đó, các mẫu nhà đẹp dần xuất hiện nhiều hơn, không gian bên trong cũng từ một phòng duy nhất để sinh hoạt chung chuyển sang ngôi nhà có nhiều phòng riêng biệt với các chức năng khác nhau. Tuy nhiên, các phòng ngủ master chỉ mới được thiết kế ở các gia đình giàu có và diện tích vẫn còn hạn chế.

Ngôi nhà mái Thái lịch sử ở Đan Mạch vào những năm 1800 (Nguồn: Internet)
>> Tổng hợp các mẫu phòng khách tân cổ điển đẹp, sang trọng nhất hiện nay
Đầu thế kỷ XX, khái niệm “Phòng ngủ master” chính thức được ghi nhận, đánh dấu một bước ngoặt quan trọng trong thiết kế nhà ở. Phòng ngủ master lúc này bắt đầu được trang bị đầy đủ tiện nghi hơn như thiết kế nhà vệ sinh và nhà tắm riêng, tủ quần áo...nhưng sau chiến tranh thế giới thứ II mới dần trở nên phổ biến hơn khi được nhiều gia đình sử dụng cho ngôi nhà của mình. Cùng với sự phát triển của công nghệ và nhu cầu về không gian sống chất lượng hơn đã thúc đẩy sự ra đời của phòng ngủ master sau này.
>> 45+ Cách trang trí phòng khách nhà cấp 4 đẹp, đơn giản, sang trọng

Phòng ngủ Master dần được sử dụng phổ biến những năm 1900 (Nguồn: Internet)
Thiết kế phòng ngủ Master không bị giới hạn bởi bất kỳ quy chuẩn nào. Từ phong cách cổ điển đến hiện đại, từ đơn giản đến cầu kỳ, tất cả đều có thể được thể hiện trong căn phòng này. Tuy nhiên, các kiến trúc sư cho rằng dù theo phong cách nào giường ngủ và tủ quần áo vẫn luôn là 2 vật dụng cơ bản cần phải có thiết kế phòng ngủ master. Chính cách bố trí của giường và tủ quần áo sẽ quyết định đến vẻ đẹp của toàn bộ không gian của bạn.

Mẫu phòng ngủ đẹp cho nữ hiện đại với cách bố trí giường và phòng ngủ tiện nghi (Nguồn: Internet)
Trong phòng ngủ master, giường ngủ thường được chế tác từ chất liệu gỗ tự nhiên như óc chó, sồi, mang đến vẻ đẹp ấm cúng, sang trọng hoặc da thật, cao cấp tôn lên sự quý phái của căn phòng. Bên cạnh đó, thiết kế giường ngủ cũng vô cùng đa dạng, từ những đường nét đơn giản, hiện đại cho đến những họa tiết hoa văn tinh xảo, cổ điển. Đặc biệt, đối với những gia chủ ưa thích phong cách hiện đại, giường ngủ còn được tích hợp thêm hệ thống lưu trữ thông minh như ngăn kéo, hộc tủ để tối ưu hóa không gian và tăng tính tiện dụng.

Decor phòng trọ với phòng ngủ master thiết kế hiện đại, sang trọng (Nguồn: Internet)
Việc lựa chọn một chiếc tủ quần áo phù hợp không chỉ đơn thuần là tạo nên sự cân đối và hài hòa cho không gian phòng ngủ, mà còn phản ánh gu thẩm mỹ và phong cách sống của gia chủ. Tủ âm tường, tủ đứng tự do, tủ góc, hay những thiết kế hiện đại tích hợp nhiều chức năng như tủ kết hợp bàn làm việc, tủ kết hợp kệ sách... đều là những mẫu tủ lý tưởng mà bạn có thể tham khảo.

Phòng ngủ master với thiết kế tủ áo quần hiện đại, thông minh (Nguồn: Internet)
Thiết kế phòng ngủ master theo đúng phong thủy không chỉ là một xu hướng, mà còn là một cách để bạn đầu tư vào sức khỏe và hạnh phúc của mình. Các nghiên cứu khoa học đã chứng minh rằng, một không gian phòng ngủ tốt có thể giúp cải thiện chất lượng giấc ngủ, giảm căng thẳng và tăng cường hệ miễn dịch. Vì vậy, khi thiết kế phòng ngủ master, gia chủ cần chú ý đến những yếu tố hướng giường ngủ, màu sắc và vị trí đồ vật để tạo ra một không gian phòng ngủ master vừa đẹp mắt, vừa mang lại sự thoải mái và may mắn cho gia đình.

Mẫu phòng ngủ Master hiện đại, chuẩn phong thủy (Nguồn: Internet)
>> Tham khảo: 45+ Mẫu phối màu sơn trần thạch cao nổi bật trong năm 2025
Với sự đa dạng về phong cách và tính tiện nghi, các mẫu phòng master đã trở thành xu hướng nổi bật trong năm 2026. Dưới đây là các thiết kế phòng Master mà các bạn có thể tham khảo:
Phong cách tối giản thể hiện sự tinh tế qua việc loại bỏ các chi tiết không cần thiết và tập trung vào sự mộc mạc. Với mẫu phòng ngủ Master đẹp này, các đường nét đơn giản, màu sắc nhẹ nhàng và sự sắp xếp khoa học tạo nên không gian thư giãn và thanh lịch.

Mẫu phòng ngủ master đẹp phong cách tối giản, hiện đại (Nguồn: Internet)

Mẫu phòng ngủ master đẹp, sang trọng với thiết kế trần thạch cao (Nguồn: Internet)

Mẫu phòng master phong cách tối giản với thiết kế trần phẳng (Nguồn: Internet)

Mẫu phòng master phong cách tối giản với cửa kính lớn đón ánh sáng (Nguồn: Internet)
Hiện nay, nhiều gia chủ đang ưu tiên lựa chọn trần thạch cao khi thi công xây dựng phòng ngủ master. Trong đó, hệ Trần thạch cao Vĩnh Tường Siêu Bền X nổi bật hơn cả nhờ tính năng chống võng lên tốt, giúp bạn có thể thoải mái trang trí hệ thống đèn led hoặc đèn chùm mà không lo trần sẽ bị nứt, gây mất thẩm mỹ.
Hay một hệ trần khác cũng nổi trội không kém - Trần thạch cao Vĩnh Tường SIÊU BẢO VỆ. Hệ trần thạch cao này sở hữu cơ chế bảo vệ 5 lớp: siêu thanh lọc không khí, siêu chống nồm ẩm, siêu chống võng, siêu chống nứt và siêu chống cháy. Từ đó, mang đến không gian phòng ngủ master vừa đẹp mắt, vừa an toàn cho sức khỏe.
Mọi chi tiết thắc mắc về hệ sản phẩm trần - tường - vách thạch cao phòng master, các quý khách hàng vui lòng liên hệ qua:
Mẫu thiết kế phòng ngủ master hiện đại mang phong cách độc đáo, thể hiện sự cá tính của gia chủ một cách rõ rệt. Tông màu chủ đạo là trắng, được kết hợp tinh tế với những điểm nhấn màu vàng kim để tạo nên một không gian tổng thể đẹp mắt. Bên cạnh đó, nội thất trong phòng được trang bị đầy đủ các tiện nghi bao gồm giường, tủ đầu giường, hệ thống tủ kịch trần cùng với bộ đèn chùm trang trí độc đáo và thu hút.

Mẫu phòng ngủ đẹp cho nữ màu xanh với thiết kế trần thạch cao giật cấp (Nguồn: Internet)

Mẫu thiết kế phòng ngủ thiết kế hiện đại, sang trọng (Nguồn: Internet)

Mẫu phòng master hiện đại kết hợp nội thất gỗ ấm cúng (Nguồn: Internet)
>> Xem thêm:
Phong cách sang trọng, luxury tượng trưng cho sự xa hoa và đẳng cấp, được thể hiện qua việc chăm chút tỉ mỉ và hoàn thiện từng chi tiết trong thiết kế. Các mẫu nội thất đơn giản nhưng tinh tế trong phong cách này mang lại vẻ đẹp quý phái và sang trọng.

Mẫu phòng master sang trọng, luxury với thiết kế trần thạch cao giật 2 cấp (Nguồn: Internet)

Mẫu phòng master sang trọng với đèn thả đẹp mắt, ấn tượng (Nguồn: Internet)

Mẫu phòng master sang trọng, luxury với thiết kế kiểu trần thạch cao giật cấp kín (Nguồn: Internet)
Mẫu thiết kế phòng ngủ master tân cổ điển là sự kết hợp hoàn hảo giữa nét cổ điển và hiện đại. Bạn có thể sử dụng gam màu trắng và be, sau đó tạo điểm nhấn bởi các chi tiết như trần giật cấp hoặc trang trí tường bằng các đường phào chỉ thạch cao tinh tế.
Ngoài ra, việc lựa chọn nội thất từ các vật liệu cao cấp như gỗ, vải nỉ, đá marble, đường line vàng đồng,… cũng góp phần trang trí không gian phòng ngủ tân cổ điển mang đậm chất sang trọng, đẳng cấp.

Mẫu phòng master phong cách tân cổ điển quý phái, đẳng cấp (Nguồn: Internet)

Mẫu thiết kế phòng ngủ đẹp, sang trọng theo phong cách nội thất phòng ngủ tân cổ điển (Nguồn: Internet)

Mẫu phòng ngủ màu hồng đẹp, ấn tượng với kiểu trần thạch cao tân cổ điển (Nguồn: Internet)
Mẫu phòng ngủ master cổ điển sử dụng gam màu ấm áp, sang trọng như màu nâu, vàng nhạt, kem,...kết hợp cùng những đồ nội thất trang trí bằng gỗ họa tiết cầu kỳ, đèn thả chùm cổ điển mang đến cho gia chủ một không gian phòng ngủ vừa cổ kính, vừa độc đáo.

Thiết kế nội thất phòng ngủ Master phong cách cổ điển sang trọng (Nguồn: Internet)
>> Tìm hiểu thêm: 100 mẫu trần nhà đẹp đơn giản, đa phong cách và giá rẻ
Nếu bạn ưa thích một phong cách nhẹ nhàng, cá tính và đầy phóng khoáng, thì không nên bỏ qua mẫu phòng master phong cách vintage. Phong cách Vintage là sự hòa quyện hoàn hảo giữa những chi tiết cổ điển và hiện đại.
Bạn có thể sử dụng những món đồ nội thất mới hoặc thậm chí tái chế từ những vật dụng đã qua sử dụng. Ngoài ra, cây xanh cũng là một phần không thể thiếu trong mẫu thiết kế này, giúp mang lại cảm giác nhẹ nhàng và thư thái cho không gian nghỉ ngơi của bạn.

Mẫu phòng master phong cách vintage bắt mắt, ấn tượng (Nguồn: Internet)
Phong cách phòng ngủ Bắc Âu thường hướng tới kiểu trang trí tối giản, sử dụng gam màu trắng để làm nổi bật căn phòng. Ngoài ra, gia chủ có thể kết hợp màu trắng với các gam màu khác như xanh ngọc, xám nhẹ, đen, kem,... cùng nội thất từ gỗ, đá hoặc lông thú để ngôi nhà trở nên ấm cúng và sức sống hơn.

Mẫu phòng ngủ trần phẳng phong cách Bắc Âu ấm cúng (Nguồn: Internet)
>> Xem thêm:
Phòng ngủ phong cách Indochine là sự hòa quyện tinh tế giữa yếu tố truyền thống và hiện đại. Với bảng màu trầm ấm lấy cảm hứng từ thiên nhiên, kết hợp cùng những họa tiết hoa văn tinh xảo trên tường, tạo nên một không gian phòng ngủ mang đậm vẻ đẹp cổ điển Đông Dương.

Thiết kế phòng ngủ giật cấp phong cách Indochine sang trọng (Nguồn: Internet)
Phần lớn các phòng ngủ master trong các căn hộ chung cư thường có diện tích khiêm tốn hơn so với các loại nhà ở khác. Vì vậy, khi thiết kế nội thất cho căn phòng này trong các căn hộ chung cư, bạn cần tập trung vào tính thẩm mỹ và sự thuận tiện trong việc di chuyển và sinh hoạt. Từ đó, gia chủ nên chọn những đồ nội thất đơn giản cùng loại bỏ các chi tiết không cần thiết. Đồng thời, thiết kế thêm nguồn ánh sáng tự nhiên sẽ giúp không gian rộng rãi và thoáng đãng hơn.

Mẫu thiết kế phòng master chung cư thiết kế tối giản (Nguồn: Internet)

Mẫu phòng master chung cư đẹp, tối ưu diện tích (Nguồn: Internet)

Mẫu thiết kế phòng master chung cư đẹp, ấm cúng kết hợp nội thất gỗ (Nguồn: Internet)
>> Tìm hiểu thêm:
Phòng ngủ Master biệt thự thường được thiết kế theo phong cách hiện đại, tinh tế với gam màu trung tính nhẹ nhàng. Kết hợp thêm đèn thả chùm cao cấp sẽ tạo nên một không gian ấm cúng, lãng mạn cho phòng ngủ của bạn.

Mẫu phòng ngủ master cho biệt thự cao cấp (Nguồn: Internet)
>> Xem thêm: Tổng hợp 500+ mẫu thiết kế biệt thự đẹp, hiện đại, sang trọng nhất 2025
Thiết kế phòng ngủ master với chất liệu gỗ cao cấp, mang đến cho căn phòng vẻ đẹp sang trọng, hiện đại cùng gam màu trung tính hài hòa, mang đến cho gia chủ cảm giác thoải mái, thư giãn.

Mẫu phòng ngủ master với chất liệu gỗ hiện đại (Nguồn: Internet)
Diện tích của các căn nhà ống cũng thường không rộng lớn. Do đó, khi thiết kế nội thất cho phòng ngủ master, việc tối ưu hóa không gian là điều quan trọng. Sử dụng nội thất cơ bản và trang trí nhẹ nhàng sẽ giúp tạo ra một không gian ấm cúng và tiện nghi nhất.

Mẫu thiết kế phòng master nhà ống với gam màu trung tính, hiện đại (Nguồn: Internet)

Mẫu thiết kế phòng master nhà ống đơn giản với các đồ nội thất cơ bản (Nguồn: Internet)
>> Đọc thêm:
Biệt thự mang đến ưu điểm vượt trội về diện tích và không gian, tạo điều kiện lý tưởng để bạn tạo dấu ấn riêng cho không gian phòng master theo ý muốn. Dù ưa chuộng phong cách hiện đại, tân cổ điển sang trọng, hay một lối thiết kế gần gũi với thiên nhiên, bạn đều cần phải chú ý đến tính hài hòa và đồng điệu với phong cách thiết kế chung của ngôi biệt thự.

Mẫu phòng master cho biệt thự sang trọng kết hợp đèn chùm cỡ lớn (Nguồn: Internet)

Mẫu phòng master cho biệt thự đẹp, lịch lãm (Nguồn: Internet)
Với những phòng master có diện tích khá hạn chế như 15m2 thì gia chủ nên chú trọng vào cách lựa chọn và bày trí đồ nội thất sao cho hài hoà, tiện nghi để có thể tối ưu không gian hiệu quả. Vì diện tích phòng nhỏ nên gia chủ chỉ nên sử dụng các nội thất cơ bản như: giường ngủ, tủ quần áo, tab đầu giường,... Bên cạnh đó, bạn cũng có thể trang trí thêm cây xanh để giúp không gian thông thoáng hơn nhé.

Mẫu phòng master 15m2 đẹp, tối ưu không gian hiệu quả (Nguồn: Internet)

Mẫu thiết kế phòng master 15m2 thiết kế đơn giản, thông thoáng (Nguồn: Internet)
Đối với phòng ngủ master có diện tích 25m2, việc sử dụng các đồ nội thất thông minh, tích hợp nhiều tính năng như tủ quần áo kết hợp kệ đựng đồ, giường bục, bàn trang điểm,... sẽ mang đến cho không gian phòng vẻ đẹp tinh tế và hiện đại.

Mẫu thiết kế phòng master 25m2 thiết kế hiện đại, tiện nghi (Nguồn: Internet)
>> Xem thêm:
Dưới đây là mẫu thiết kế phòng ngủ master 30m2 đơn giản bạn có thể tham khảo. Tone màu chủ đạo là trắng, nâu và xám kết hợp cùng các đồ nội thất thông minh. Sau đó được sắp xếp một cách hợp lý để tránh mang lại cảm giác chật chội, bí bách cho người dùng.

Mẫu thiết kế phòng master 30m2 đẹp, tràn ngập ánh sáng (Nguồn: Internet)
Phòng ngủ master 40m² với chất liệu cao cấp, thiết kế nội thất đa năng, tiện nghi như một phiên bản thế giới thu nhỏ, đang dần trở nên phổ biến và được nhiều người ưa thích.

Mẫu phòng ngủ master đẹp với diện tích 40m2 (Nguồn: Internet)
>> Xem thêm: 20+ Mẫu nhà cấp 4 đẹp 3 phòng ngủ ấn tượng, hiện đại
Phòng ngủ 50m2 có diện tích khá lớn, gần như một căn hộ gia đình nhỏ. Trong diện tích này, bạn có thể thoải mái trang trí phòng ngủ master của mình bằng đồ nội thất cao cấp với hệ thống trường kịch trần, giường kích thước lớn và nhiều tiện nghi giải trí khác.

Mẫu thiết kế phòng ngủ master 50m2 cao cấp (Nguồn: Internet)
Phong cách thiết kế hiện đại làm bật lên vẻ đẹp xa hoa, lộng lẫy của phòng ngủ master 60m2. Với nội thất thiết kế tinh xảo, kết hợp những chất liệu quý hiếm, đèn chùm sang trọng mang lại cho gia chủ một cảm giác như đang sống trong những cung điện tráng lệ.

Mẫu thiết kế nội thất phòng ngủ master 60m2 hiện đại, tinh tế (Nguồn: Internet)
Thiết kế phòng ngủ master 70m2 hiện đại, đơn giản mang đến không gian sang trọng, đẳng cấp. Cùng sự kết hợp tinh tế giữa gam màu trung tính và thảm trải sàn sáng màu tạo cho bạn một không gian sống hài hòa và ấn tượng.

Không gian phòng ngủ hiện đại, đơn giản (Nguồn: Internet)
Các mẫu phòng ngủ đẹp có diện tích lớn thường sẽ tích hợp thêm phòng thay đồ. Điều này mang lại sự thuận tiện trong việc làm đẹp với các gia chủ. Sẽ thật tuyệt vời khi bạn có một không gian riêng biệt để trưng bày quần áo, túi xách, trang sức,... theo sở thích ngay chính trong không gian nghỉ ngơi và thư giãn của mình.

Mẫu phòng master kết hợp phòng thay đồ tiện nghi (Nguồn: Internet)
Mẫu nội thất phòng master có phòng tắm không còn quá xa lạ với nhiều gia đình. Tuy nhiên để tạo sự độc đáo cũng như tối ưu hóa tầm nhìn và không gian, gia chủ có thể thử thiết kế phòng tắm kính cho căn phòng của mình. Nhà tắm với vách ngăn bằng kính sẽ tạo cảm giác rộng rãi, thông thoáng và sang trọng cho căn phòng.

Mẫu nội thất phòng ngủ đẹp có phòng tắm kính (Nguồn: Internet)
Để phòng master thêm nổi bật và sinh động, các gia chủ có thể bố trí thêm cây xanh ngoài ban công và một ít trong phòng ngủ. Tuy nhiên, các bạn nên chú ý chọn những loại cây có công dụng lọc bụi bẩn, thích hợp trong không gian kín để an toàn cho sức khỏe và việc chăm sóc cũng dễ dàng hơn.

Mẫu thiết kế phòng master kết hợp không gian xanh (Nguồn: Internet)
Với khả năng phối hợp màu linh hoạt, màu xám đang dần trở thành lựa chọn hoàn hảo để tạo nên một không gian phòng ngủ master vừa sang trọng, vừa cá tính.

Tone màu xám đang dần trở thành sự lựa chọn ưa thích của nhiều người (Nguồn: Internet)
Thiết kế phòng ngủ master với màu đen chủ đạo kết hợp đồ nội thất thông minh, đèn âm trần ánh vàng mang đến cho bạn cảm giác vừa huyền bí, vừa độc đáo.

Phòng ngủ màu đen kết hợp đèn chiếu sáng ánh vàng tạo nên vẻ đẹp huyền bí cho căn phòng (Nguồn: Internet)
Mẫu thiết kế nội thất phòng ngủ master hiện đại kết hợp bàn làm việc đang dần trở nên phổ biến hiện nay với sự tiện lợi khi tích hợp được không gian theo chiều dọc, trả lại diện tích sàn rộng rãi cho phòng ngủ của bạn.

Kết hợp phòng ngủ và bàn làm việc đang trở thành xu hướng phổ biến hiện nay (Nguồn: Internet)
Bạn nên chọn vị trí yên tĩnh và thoáng đãng trong ngôi nhà, tránh gần khu vực ồn ào như phòng khách hoặc bếp để đảm bảo yếu tố riêng tư và thoải mái. Bên cạnh đó, gia chủ có thể ưu tiên vị trí có tầm nhìn đẹp và cửa sổ lớn để đón ánh sáng tự nhiên và không khí trong lành, tạo cảm giác thư giãn, đồng thời mang ý nghĩa tốt trong phong thủy.
Khi tiến hành thiết kế một phòng ngủ chính, việc phân chia không gian một cách hợp lý và tối ưu hóa công năng sử dụng là điều vô cùng cần thiết để mang lại sự tiện nghi và thoải mái cho người sử dụng. Việc sắp xếp giường ngủ là một trong những yếu tố quan trọng nhất; nó nên được đặt ở vị trí trung tâm của căn phòng hoặc dựa vào bức tường lớn nhất để tạo ra điểm nhấn nổi bật cho không gian. Đồng thời, cần đảm bảo rằng có đủ khoảng trống xung quanh giường để người dùng có thể dễ dàng di chuyển mà không gặp trở ngại nào.
Gia chủ có thể lựa chọn màu sắc riêng theo sở thích của mình. Lưu ý nên chọn màu sắc tươi sáng, nhẹ nhàng để mang lại cảm giác thoải mái, thư giãn. Đồng thời, việc lựa chọn đồ nội thất cho phòng master cũng dễ dàng hơn. Tuy nhiên, gia chủ cần đảm bảo màu sắc của không gian phòng đồng bộ với màu sắc chung của căn nhà để không gian trông hài hòa và đẹp mắt hơn.
Ánh sáng chính là yếu tố quan trọng để tạo không gian thông thoáng và tràn đầy sức sống. Đối với nhà ống thì phòng master thường được bố trí ở hướng có sân vườn, còn chung cư thì cần cân nhắc thiết kế cửa sổ để đón nắng, gió tự nhiên.
Hiện nay, nhiều gia chủ thường đặt bàn làm việc ở trong phòng ngủ để thuận tiện và tập trung làm việc hơn. Vì vậy, khi thiết kế không gian làm việc trong phòng ngủ, bạn cần lựa chọn bàn làm việc có màu sắc, kích thước sao cho phù hợp với những đồ nội thất khác.

Mẫu thiết kế phòng master đẹp, đầy đủ tiện nghi (Nguồn: Internet)
Khi trang trí phòng ngủ master, việc lựa chọn đồ decor ấn tượng là yếu tố quan trọng giúp thể hiện cá tính riêng của gia chủ. Hãy chọn những phụ kiện trang trí phù hợp với phong cách thiết kế tổng thể của phòng nhưng vẫn mang dấu ấn cá nhân. Chẳng hạn những bức tranh nghệ thuật, đèn trang trí độc đáo là lựa chọn lý tưởng.
Phong thủy là một yếu tố quan trọng cần được cân nhắc khi thiết kế phòng master. Để đảm bảo sự hài hòa và mang lại năng lượng tích cực, hãy chú ý đến các nguyên tắc phong thủy cơ bản. Giường ngủ nên được đặt ở vị trí thuận lợi, tránh đối diện trực tiếp với cửa ra vào hoặc nằm dưới cửa sổ. Màu sắc phòng ngủ nên được chọn dựa trên mệnh và ngũ hành của gia chủ để tạo sự cân bằng và thu hút tài lộc. Ngoài ra, hãy giữ cho phòng ngủ luôn gọn gàng, sạch sẽ và thoáng mát để dòng năng lượng luân chuyển dễ dàng, tạo cảm giác thư thái và an lành.
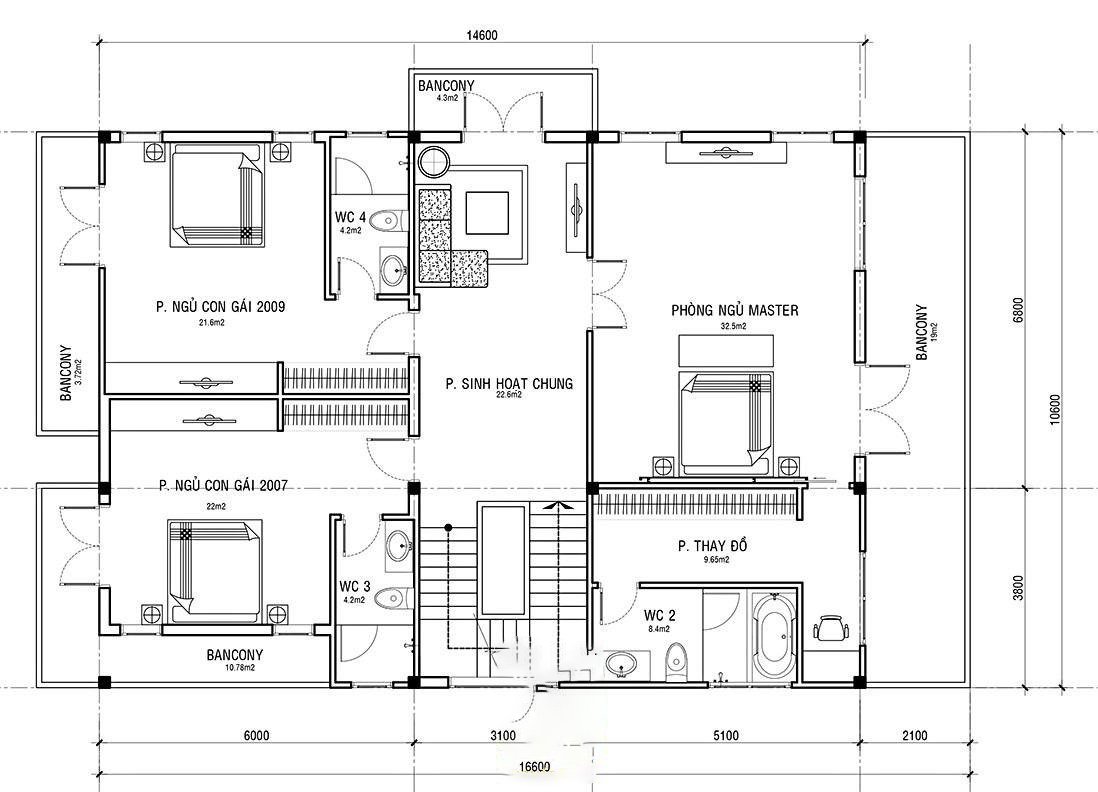
Việc bố trí phòng ngủ Master như thế nào để đảm bảo tiện nghi thoải mái, không lãng phí diện tích không gian cũng như gây chật chối khó chịu khi sinh hoạt là thách thức đối với nhiều người. Vĩnh Tường gửi đến bạn một số bản vẽ mặt bằng phòng ngủ Master phổ biến hiện nay:

Bản vẽ 3d phòng ngủ Master (Nguồn: Internet)

Bản vẽ mặt bằng phòng ngủ Master tiện nghi (Nguồn: Internet)

Bản vẽ nhà ở có phòng ngủ Master (Nguồn: Internet)
Giá thi công nội thất phòng ngủ màu master thường dao động tùy thuộc vào diện tích, chất liệu và mức độ tùy chỉnh trong thiết kế. Đối với thiết kế hiện đại, sử dụng chất liệu cao cấp như gỗ tự nhiên, da, vải cao cấp, cùng hệ thống đèn chiếu sáng tinh tế, giá thành có thể dao động từ 100 triệu đồng trở lên. Với phòng ngủ master cao cấp hơn, sử dụng các công nghệ hiện đại, giá thành của một phòng ngủ master có thể từ 150 triệu đồng trở lên.
Xem thêm các bước thi công vách ngăn thạch cao cho phòng ngủ master đẹp, sang trọng dưới đây:
Nếu quý khách hàng có nhu cầu đóng trần thạch cao phòng ngủ nhỏ, hãy liên hệ ngay với Vĩnh Tường để nhận được tư vấn tận tâm nhất:
Trên đây là những mẫu phòng ngủ master đẹp, hiện đại, sang trọng nhất hiện nay mà bạn có thể tham khảo. Hy vọng qua bài viết trên, các gia chủ sẽ có những ý tưởng độc đáo để thiết kế phòng ngủ của mình! Chi tiết thông tin liên hệ của Vĩnh Tương:
Địa chỉ trụ sở chính: Tầng 8 - Tòa nhà SOFIC Tower, 10 Đường Mai Chí Thọ, Quận 2, Thành phố Hồ Chí Minh.
Thời gian hoạt động:
Thứ 2 - Thứ 6: từ 8h30 – 17h30
Thứ 7: Từ 8h00 - 12h00
Liên hệ qua số điện thoại: 1800-1218 hoặc email: chamsockhachhang@vinhtuong.com
Tag: trần thạch cao phòng khách, trần thạch cao giật cấp, trần thạch cao phẳng, trần thạch cao phòng bếp, vách thạch cao đẹp, vách ngăn cầu thang, vách ngăn phòng khách và bếp, vách ngăn cầu thang tam cấp, vách ngăn phòng thờ, vách ngăn phòng khách, vách cách âm, vách tiêu âm, vách ngăn chống cháy, vách ngăn nhà vệ sinh, vách ngăn văn phòng, tấm cách nhiệt, tấm tiêu âm, vách tường lắp ghép, vách ngăn phòng ngủ, vách ngăn phòng khách chung cư, cách âm phòng ngủ,